thinkSPAIN Logo
  • Osta

    Myytävät kiinteistöt

    • Katso kaikki myytävät kiinteistöt
    • Aloita haku käyttämällä suodattimiamme
    • Käytä karttahakua
    • Piirrä hakemasi alue

    Suositut kiinteistöhaut

    Asunnot Huvilat Maalaistalot Omakotitalot
    Hissi Merinäköala Pool Puutarha Pysäköinti/Autotalli Terassi/parveke Uusi rakennus Ylellinen
    Alicante Almería Barcelona Benahavís Calvià Cartagena Costa Blanca Costa del Sol Dénia Estepona Girona Gran Canaria Ibiza Javea / Xàbia Madrid Mallorca Marbella Mazarrón Mijas Murcia Málaga Orihuela Palma de Mallorca Teneriffa Torrevieja Valencia
    Selaa kaikkia sijainteja ja kiinteistötyyppejä
  • Vuokraa

    Vuokrattavat kiinteistöt

    • Katso kaikki vuokrattavat kiinteistöt
    • Loma-asunnot
    • Aloita haku käyttämällä suodattimiamme
    • Käytä karttahakua
    • Piirrä hakemasi alue

    Suositut vuokrahaut

    Asunnot Huvilat Maalaistalot Omakotitalot
    Hissi Merinäköala Pool Puutarha Pysäköinti/Autotalli Terassi/parveke Uusi rakennus Vuoristonäköala
    Alicante Almería Almuñécar Altea Barcelona Calvià Cartagena Costa Blanca Costa del Sol Dénia Estepona Gran Canaria Granada Ibiza Madrid Mallorca Marbella Murcia Málaga Orihuela Palma de Mallorca Teneriffa Torre-Pacheco Torrevieja Torrox Valencia
    Selaa kaikkia sijainteja ja kiinteistötyyppejä
  • Haluan ilmoittaa thinkSPAINissa

    Etsin kiinteistönvälittäjää kohteessa:

    Alicante Almería Barcelona Castellón Cádiz Girona Granada Málaga Tarragona Valencia
    Katso kaikki kiinteistönvälittäjät
  • Kartta / Piirrä alueesi

    Käytä interaktiivista karttaamme löytääksesi kiinteistöjä

    • Karttahaku
    • Piirrä hakemasi alue

    Suositut karttahaut

    Alicante Almería Barcelona Benahavís Calvià Cartagena Costa Blanca Costa del Sol Dénia Estepona Girona Gran Canaria Ibiza Javea / Xàbia Madrid Mallorca Marbella Mazarrón Mijas Murcia Málaga Orihuela Palma de Mallorca Teneriffa Torrevieja Valencia
  • Kuinka voimme auttaa sinua?

    • Yritykset & Palvelut -hakemisto
    • Mainostajan kirjautuminen

    Suositut haut

    Asianajajat Kiinnelainan antajat Kiinteistönvälittäjä Kiinteistöhuolto / isännöinti Valuutanvälittäjät Maanmittarit Arkkitehdit / Arkkitehtoninen suunnittelu Veroneuvojat
thinkSPAIN Logo Kiinteistöä

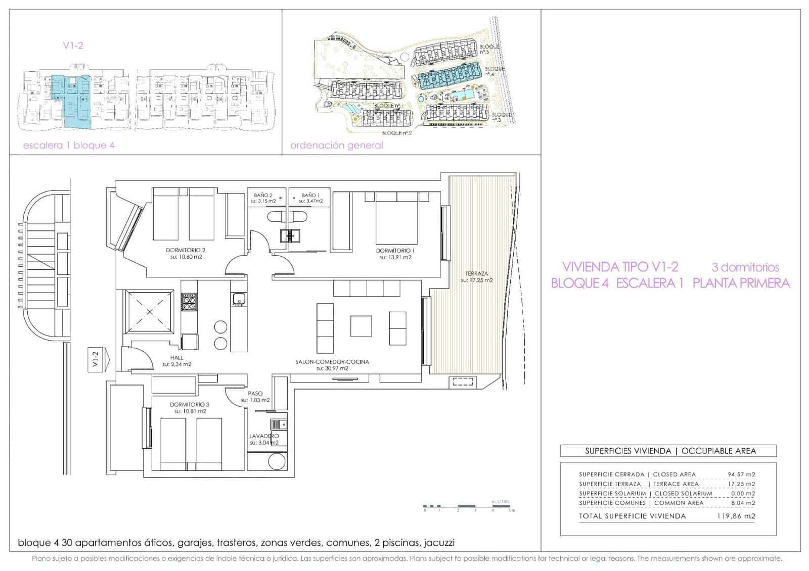
Huoneisto kiinteistö myytävänä Playa Flamenca, Orihuela, Alicantessa

  • 469 000 €
  • 94 m2
  • 3
  • 2

469 000 € Viitteellä 9638149

Kiinteistöä
Viitteellä 9638149
Soita
  • 3 makuuhuone Huoneisto myytävänä paikassa Playa Flamenca mukana uima-altaan 
autotalli - 469 000 € (Ref: 9638149)
  • 3 makuuhuone Huoneisto myytävänä paikassa Playa Flamenca mukana uima-altaan 
autotalli - 469 000 € (Ref: 9638149)
  • 3 makuuhuone Huoneisto myytävänä paikassa Playa Flamenca mukana uima-altaan 
autotalli - 469 000 € (Ref: 9638149)
  • 3 makuuhuone Huoneisto myytävänä paikassa Playa Flamenca mukana uima-altaan 
autotalli - 469 000 € (Ref: 9638149)
  • 3 makuuhuone Huoneisto myytävänä paikassa Playa Flamenca mukana uima-altaan 
autotalli - 469 000 € (Ref: 9638149)
  • 3 makuuhuone Huoneisto myytävänä paikassa Playa Flamenca mukana uima-altaan 
autotalli - 469 000 € (Ref: 9638149)
  • 3 makuuhuone Huoneisto myytävänä paikassa Playa Flamenca mukana uima-altaan 
autotalli - 469 000 € (Ref: 9638149)
  • 3 makuuhuone Huoneisto myytävänä paikassa Playa Flamenca mukana uima-altaan 
autotalli - 469 000 € (Ref: 9638149)
  • 3 makuuhuone Huoneisto myytävänä paikassa Playa Flamenca mukana uima-altaan 
autotalli - 469 000 € (Ref: 9638149)
  • 3 makuuhuone Huoneisto myytävänä paikassa Playa Flamenca mukana uima-altaan 
autotalli - 469 000 € (Ref: 9638149)
  • 3 makuuhuone Huoneisto myytävänä paikassa Playa Flamenca mukana uima-altaan 
autotalli - 469 000 € (Ref: 9638149)
  • 3 makuuhuone Huoneisto myytävänä paikassa Playa Flamenca mukana uima-altaan 
autotalli - 469 000 € (Ref: 9638149)
  • 3 makuuhuone Huoneisto myytävänä paikassa Playa Flamenca mukana uima-altaan 
autotalli - 469 000 € (Ref: 9638149)
  • 3 makuuhuone Huoneisto myytävänä paikassa Playa Flamenca mukana uima-altaan 
autotalli - 469 000 € (Ref: 9638149)
  • 3 makuuhuone Huoneisto myytävänä paikassa Playa Flamenca mukana uima-altaan 
autotalli - 469 000 € (Ref: 9638149)
  • 3 makuuhuone Huoneisto myytävänä paikassa Playa Flamenca mukana uima-altaan 
autotalli - 469 000 € (Ref: 9638149)
  • 3 makuuhuone Huoneisto myytävänä paikassa Playa Flamenca mukana uima-altaan 
autotalli - 469 000 € (Ref: 9638149)
  • 3 makuuhuone Huoneisto myytävänä paikassa Playa Flamenca mukana uima-altaan 
autotalli - 469 000 € (Ref: 9638149)
  • 3 makuuhuone Huoneisto myytävänä paikassa Playa Flamenca mukana uima-altaan 
autotalli - 469 000 € (Ref: 9638149)
  • 3 makuuhuone Huoneisto myytävänä paikassa Playa Flamenca mukana uima-altaan 
autotalli - 469 000 € (Ref: 9638149)
  • 3 makuuhuone Huoneisto myytävänä paikassa Playa Flamenca mukana uima-altaan 
autotalli - 469 000 € (Ref: 9638149)
  • 3 makuuhuone Huoneisto myytävänä paikassa Playa Flamenca mukana uima-altaan 
autotalli - 469 000 € (Ref: 9638149)
  • 3 makuuhuone Huoneisto myytävänä paikassa Playa Flamenca mukana uima-altaan 
autotalli - 469 000 € (Ref: 9638149)
  • 3 makuuhuone Huoneisto myytävänä paikassa Playa Flamenca mukana uima-altaan 
autotalli - 469 000 € (Ref: 9638149)
  • 3 makuuhuone Huoneisto myytävänä paikassa Playa Flamenca mukana uima-altaan 
autotalli - 469 000 € (Ref: 9638149)
  • 3 makuuhuone Huoneisto myytävänä paikassa Playa Flamenca mukana uima-altaan 
autotalli - 469 000 € (Ref: 9638149)
  • 3 makuuhuone Huoneisto myytävänä paikassa Playa Flamenca mukana uima-altaan 
autotalli - 469 000 € (Ref: 9638149)
  • 3 makuuhuone Huoneisto myytävänä paikassa Playa Flamenca mukana uima-altaan 
autotalli - 469 000 € (Ref: 9638149)
  • 3 makuuhuone Huoneisto myytävänä paikassa Playa Flamenca mukana uima-altaan 
autotalli - 469 000 € (Ref: 9638149)
  • 3 makuuhuone Huoneisto myytävänä paikassa Playa Flamenca mukana uima-altaan 
autotalli - 469 000 € (Ref: 9638149)
  • 3 makuuhuone Huoneisto myytävänä paikassa Playa Flamenca mukana uima-altaan 
autotalli - 469 000 € (Ref: 9638149)
  • 3 makuuhuone Huoneisto myytävänä paikassa Playa Flamenca mukana uima-altaan 
autotalli - 469 000 € (Ref: 9638149)
  • 3 makuuhuone Huoneisto myytävänä paikassa Playa Flamenca mukana uima-altaan 
autotalli - 469 000 € (Ref: 9638149)
  • 3 makuuhuone Huoneisto myytävänä paikassa Playa Flamenca mukana uima-altaan 
autotalli - 469 000 € (Ref: 9638149)
  • 3 makuuhuone Huoneisto myytävänä paikassa Playa Flamenca mukana uima-altaan 
autotalli - 469 000 € (Ref: 9638149)
1/35

469 000 €

Huoneisto kiinteistö myytävänä Playa Flamenca, Orihuela, Alicantessa

  • 94 m2
  • 3
  • 2

Kuvaus

Uusi rakennusresidenssi Playa Flamencassa!

Kokeneen alueen kehittäjän tuomana olemme ylpeitä voidessamme tarjota tämän uuden residenssin, joka on äskettäin tullut myyntiin vain 500 metrin päässä merestä Playa Flamencan (Orihuela Costa) suositulla alueella.

Residenssi upeine yhteisöuima-altaineen, porealtaineen ja kauniine yhteisine puutarhoineen. Kaikki palvelut kuten supermarketit, baarit ja ravintolat jne. ovat lyhyen matkan päässä erittäin keskeisellä paikalla Orihuela Costalla.

Laaja valikoima tyyppejä valittavaksi: 2, 3 tai 4 makuuhuoneen asunnot. Alakerran asunnot yksityisine puutarhoineen tai kattoterassilliset asunnot yksityisine auringonottoalueineen. Kaikissa asunnoissa on autopaikka ja varastotila mukana hinnassa.

Zenian liikekeskus on 1 km:n päässä ja useat golfkentät kuten Villamartín, Campoamor noin 5 km päässä tästä residenssistä tekevät siitä ihanteellisen paikan lomallesi tai pysyväksi asumiseksesi.

Sijainti

Playa Flamenca, Orihuela, Alicante Sijainnin tarjoaa Mainostaja

Ominaisuudet

  • Huoneisto
  • Makuuhuoneet: 3
  • Kylpyhuoneet: 2
  • Rakennuksen koko: 94 m2
  • Uusi rakennus
  • Uima-allas
  • Pysäköinti/Autotalli
  • Yksityinen puutarha
  • Hissi
  • Energiatodistus (kulutus): B
  • Energiatodistus (päästöt): B

Kuinka voimme auttaa sinua?

Löysitkö virheen?

Kerro meille, mitä olet havainnut korjataksesi sen

Asuntolaskin

€
€
%

1 489 € kuukaudessa*

+ 48 600 € verot (46 900 €) & kulut (1 700 €)*

*Huomaa, että tulokset ovat vain ohjeellisia eivätkä asuntolainatarjous.

Ota yhteyttä mainostajaan

Kuinka voimme auttaa sinua?

This field is required

Tarkista yllä olevat virheet
+34 865 445 392

Viitteellä 9638149

Lähettämällä tämän lomakkeen vahvistat hyväksyväsi Käyttöehtomme ja Yksityisyyskäytäntömme.

Jaa

Aiheeseen liittyvät kiinteistöt

3 makuuhuone Huoneisto myytävänä paikassa Playa Flamenca, Orihuela mukana uima-altaan autotalli - 522 000 € (Ref: 9308708) 2 makuuhuone Huoneisto myytävänä paikassa Playa Flamenca, Orihuela mukana uima-altaan autotalli - 435 000 € (Ref: 9328616) 3 makuuhuone Huoneisto myytävänä paikassa Playa Flamenca, Orihuela mukana uima-altaan - 522 000 € (Ref: 6424344) 2 makuuhuone Huoneisto myytävänä paikassa Playa Flamenca, Orihuela mukana uima-altaan - 395 000 € (Ref: 9191494)

Mainos

  1. Espanja
  2. Valencia
  3. Alicante
  4. Costa Blanca
  5. Orihuela
  6. Orihuela Costa
  7. Playa Flamenca
  8. 3 makuuhuone Huoneisto myytävänä paikassa Playa Flamenca, Orihuela mukana uima-altaan autotalli - 469 000 € (Ref: 9638149)