- 91 m2 Rakenna
- 3 Makuuhuoneet
- 2 Kylpyhuoneet
Uuden rakennuksen asuinrakennus yhteisellä uima-altaalla katolla, joka sijaitsee viehättävässä Benijofarin kylässä. Voit valita modernien huoneistojen, joissa on terassit, tai kattoterassilla... Lue lisää
Uuden rakennuksen asuinrakennus yhteisellä uima-altaalla katolla, joka sijaitsee viehättävässä Benijofarin kylässä. Voit valita modernien huoneistojen, joissa on terassit, tai kattoterassilla... Lue lisää
Uusien asuntojen asunnot Benijófarissa - suunnittelu, mukavuus ja etuoikeutettu sijainti Eksklusiiviset asunnot tiheän kasvun alueella Sijaitsee Benijófarin sisääntulevalla alueella Costa Blanca... Lue lisää
Uudet asunnot Benijófarissa Nykyaikaista elämäntapaa arvostetulla paikalla Eksklusiivinen uusi kehitys Costa Blancan etelärannikolla. Tämä uusi asuntoprojekti koostuu 18 modernista asunnosta... Lue lisää
Uudet asunnot Benijófarissa Moderni elämäntapa hyvässä paikassa Exclusiivinen uusi promissio Costa Blanca South Tämä uusi asuntoprojekti koostuu 18 modernista asunnosta Benijófarin... Lue lisää
Residencial Benisol 2 on 18-huoneiston luksusyritys, joka sijaitsee vain lyhyen kävelymatkan päässä Benijófarista, kaupungista, jossa on laaja valikoima baareja, kauppoja ja ravintoloita.... Lue lisää
Sijaitsee hurmaavassa Benijófárin kunnassa, tämä asuinkiinteistötuotanto tarjoaa valikoiman 18 asuinrakennusta, jotka on suunniteltu täyttämään ne, jotka etsivät kotia rauhallisessa ja... Lue lisää
Uuden rakennuksen asuinyhteisö rauhallisella Benijofarin alueella. Asuinyhteisö koostuu 35:stä 2, 3 ja 4 makuuhuoneen ja 2 kylpyhuoneen huoneistosta ja kattoterassista, avokeittiö olohuoneen... Lue lisää
66 m² rakennettu asunto, 2 makuuhuonetta, 2 kylpyhuonetta, 0 wc:tä. Uuden rakennuksen asuinyhteisö rauhallisella Benijofarin alueella. Asuinyhteisö koostuu 35 asunnosta ja kattoterassista, joissa... Lue lisää
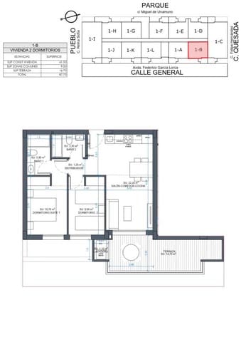
Uudet asunnot Benijóförssä, keskustassa sijaiten Rinnakaiselämää Benijóförissa Tämä eksklusiivinen uusi kehitys Benijóförissä tarjoaa vain 11 moderneiksi suunniteltua asuntoa, jotka... Lue lisää
Äskettäin rakennettavat asunnot Benijófarissa Moderni elämäntapa privileoidulla paikalla Ylellinen uusi kehitys Costa Blanca Surilla Tämä uusi asuntokokonaisuus koostuu 18 moderneista... Lue lisää
Uusi asuntomme sijaitsee viehättävän Benijófarin kylän keskustassa, Seguran alavan sydämessä. Läheisyys tunnetuille golfkentille, luonnonpuistoille ja historiallisille ja kulttuurillisille... Lue lisää
Residencial Moma2 on 35 asunnon luksusisäpiha-alue, joka sijaitsee vain muutaman minuutin kävelymatkan päässä Benijófarista, kaupungista, jossa on laaja valikoima baareja, kauppoja ja... Lue lisää
Uudet rakennusasunnot Benijofarissa, Costa Blanca Etelä Täällä meillä on valikoima upeita uusia rakennusasunnot Benijofarin kylän sydämessä, lyhyen kävelymatkan päässä kaikista... Lue lisää
Uudet asunnot Benijófarissa Tämä uusi asuinaloitus koostuu 18 modernista asunnosta Benijófarin sisääntulossa, lyhyen matkan päässä kaupungin keskustasta. Sijaitsee Costa Blanca Surin... Lue lisää
Uudet asunnot Benijóförssä, keskustassa sijaiten Rinnakaiselämää Benijóförissa Tämä eksklusiivinen uusi kehitys Benijóförissä tarjoaa vain 11 moderneiksi suunniteltua asuntoa, jotka... Lue lisää
Residencial Benisol 2 on 18 kodosaaressa sijaitseva ylellinen asuinalue, joka on vain muutaman minuutin kävelymatkan päässä Benijófarista, kaupungista, jolla on laaja valikoima baareja, kauppoja... Lue lisää