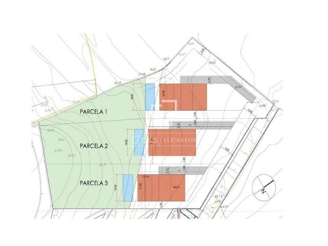
- 1322 m2 Rakenna
Erinomainen mahdollisuus sijoittajille ja Costa Bravan rakastajille! Esittelemme houkuttelevan tontin Lloret de Marissa, ihanteellinen unelmakodin rakentamiseen. Tontin ominaisuudet: - Etuoikeutettu... Lue lisää
Erinomainen mahdollisuus sijoittajille ja Costa Bravan rakastajille! Esittelemme houkuttelevan tontin Lloret de Marissa, ihanteellinen unelmakodin rakentamiseen. Tontin ominaisuudet: - Etuoikeutettu... Lue lisää
Poikkeuksellinen tilaisuus Lloret de Marissa: rakennuskelpoinen tontti, 1 577 m², luontoa ympäröimä ja vain muutaman minuutin päässä keskustasta ja rannasta. Kyse on harvoista tämän... Lue lisää
Tontti myytävänä Lloret de Marissa, Els Pinars -aluerakennuskaavan alueella, kokonaispinta-ala 1322 m². Tontti oninia rakennuskelpoinen ja mahdollistaa asunnon rakentamisen jopa 250 m² kaupungin... Lue lisää
Myytävänä oleva kaupunkitontti, jonka koko on 826 m² arvostetussa Cala Canyelles -asuinalueessa, Lloret de Marissa, joka on etuoikeutettu paikka Costa Bravalla. Mahdollisuus rakentaa erillinen... Lue lisää
Parcela de 925 m² ubicado en las proximidades de Aiguaviva Parc, Lloret de Mar. Terreno urbano listo para construir, con acceso asfaltado y servicios disponibles en la zona (luz, agua, canalización... Lue lisää
Myytävänä oleva tontti rauhallisessa ja arvostetussa ympäristössä Lloret de Marissa Costa Bravalla. Luonnon, luksusvillojen ja viehättävien poukamien ympäröimä. Vain 5 minuutin ajomatkan... Lue lisää
Erinomainen mahdollisuus Lloret de Marissa: rakennuskelpoinen tontti 728 m²:n luonnonkauniilla alueella, lyhyen matkan päässä keskustasta ja rannasta. Yksi alueen harvoista tämän kokoisista... Lue lisää
Uniikki tilaisuus Lloret de Marissa (maa-alue myytävänä) Myydään 832 m²: n kaavoitettu rakennusmaa Lloret de Marin (Girona) rauhallisimmista ja hyvin yhteyksin olevista alueista. Tämä tontti... Lue lisää
¡Gran oportunidad! Soleada parcela ubicada en Lloret Residencial, orientada a sur, con una pendiente descendente desde la calle, accediendo a un terreno bastante uniforme, ideal para quien busque... Lue lisää
«Uniikki mahdollisuus Lloret de Marissa! Myydään poikkeuksellinen 756 m²:n tontti vain 95 000 €. Sijaitsee etuoikeutetulla asuinalueella, tämä tila tarjoaa mahdollisuuden rakentaa unelmiesi... Lue lisää
Myydään 895 m²:n tontti, joka sijaitsee rauhallisessa Lloret Residencial -asutusalueella. Tontilla on helppo pääsy tieltä, alapuoli on jo tasoitettu — ihanteellinen aloittamaan rakennukset... Lue lisää
Tämä upea 409 m²:n täysin suorakulmainen ja melko tasainen tontti sijaitsee rauhallisessa Lloret Residencial -aluerakennuksessa. 15,50 metrin julkisivulla ja 27,2 metrin takana se tarjoaa... Lue lisää
Se sale autaranta 375 m², jossa on minimaalinen korkeusjousto, ja se luovutetaan mukaan sisältyvän esisuunnitelman kanssa 5 asunnon rakennuksen ja 7 pysäköintipaikan rakentamiseen, kaikki... Lue lisää
Kaksi yksityistä, eksklusiivista tonttia Montgodassa, Lloret de Marissa Löydä kaksi upeaa tonttia Montgoda-kaupunginosassa, Lloret de Marissa. Nämä tontit, kooltaan 865 m² ja 847 m², ovat... Lue lisää
Tarjolla myyntiin upea 897 m²:n urbaani tontti, joka sijaitsee vaikutusvaltaisulla Los Pinares -alueella Lloret de Marissa. Tontilla on erinomainen eteläinen suuntaus, joka takaa valon ja... Lue lisää
Uniikki mahdollisuus Lloret de Marissa Myydään 832 m²:n vakiintunut urbanisoitu tontti Lloret de Marin rauhallisimmista ja hyvin yhteyksin varustetuista alueista (Girona). Tällä tontilla on... Lue lisää