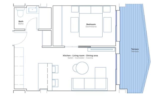
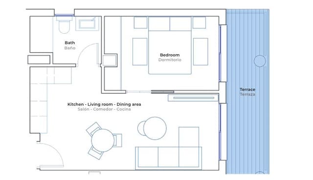
- 86 m2 Rakenna
- 2 Makuuhuoneet
- 2 Kylpyhuoneet
Uusikohteinen asuinkompleksi Calanova Golfissa, Mijas Tämä luksusasuntojen kokonaisuus tarjoaa unelmaelämän: ylellinen asuinpaikka suurine terasseineen ja loistavat näkymät, ensiluokkainen... Lue lisää
Uusikohteinen asuinkompleksi Calanova Golfissa, Mijas Tämä luksusasuntojen kokonaisuus tarjoaa unelmaelämän: ylellinen asuinpaikka suurine terasseineen ja loistavat näkymät, ensiluokkainen... Lue lisää
Tervetuloa uuteen luksusasuntojen kehitykseen, joka sijaitsee arvostetulla Calanova Golfin alueella, Mijas Costa. Tämä eksklusiivinen projekti tarjoaa valikoiman ensimmäisen kerroksen asuntoja,... Lue lisää
Lujosa Asuinalue Mijaksessa: Täydellinen yhdistelmä luontoa, mukavuutta ja käytännöllisyyttä Löydä moderni asuinalue Mijaksessa, joka uudelleen määrittelee rauhallisen elämän. Täysin... Lue lisää
Uuden rakennuksen asuinyhteisö kauniilla paikalla Las Lagunas de Mijaksessa, Espanjassa. Kompleksissa on vain 36 asuntoa, joten se takaa parhaiten yksityisyytesi ja rauhasi. Kaikista asunnoista on... Lue lisää
Mies asunno Mijaksessa Tämä moderni penthouse Mijaksessa, Málagassa, yhdistää täydellisesti mukavuuden ja tyylin. Se sijaitsee suoraan golfkentällä ja tarjoaa upeita merinäkymiä, joten voit... Lue lisää
Uudet Asunnot Mijas Costalla Moderni muotoilu luonnon keskellä vain minuutin päässä merestä Tämä eksklusiivinen uusi asuntokohde Mijas Costalla yhdistää täydellisesti nykyaikaisen... Lue lisää
Uusi kampanja: Hinnat alkaen 335 000 € aina 1 000 000 € asti. [Huoneet: 2 - 3] [Kylpyhuoneet: 2 - 2] [Rakennetut: 86.00 m2 - 348.00 m2] Tämä kampanja sisältää 103 asuintaloa Costa del... Lue lisää
Horizonte Village on yhteisö, joka tarjoaa asuntoja, penthousereita ja huviloita, täydellisesti sijoittuneena kauniiseen Higueron-alueeseen Malagan lähellä. Rauhoittavien vuorten ympäröimänä... Lue lisää
Uudet merinäköalat Mijasin, Málaga: moderni elämä Costa del Solilla Eksklusiivinen uusi promootio, joka on golfin ja luonnon ympäröimä Tämä uusi asuinprojekti Mijasin kaupungissa Málagassa... Lue lisää
Eksklusiivinen asunto Santa Barbara Heightsissa, Mijas Costa Modernia ylellisyyttä yksityisellä terassipoolilla ja panoraamanäkymillä merensä Tämä moderni ja tyylikäs asunto sijaitsee... Lue lisää
Esittelyssä uusi kehitys, joka koostuu 233 modernista kodista, joissa on jopa 4 makuuhuonetta, sijaitsee Mijasin ja Fuengirolan välissä. Tämä ensiluokkainen sijainti takaa sujuvan pääsyn... Lue lisää
Talo Mijaksessa Myytävänä ensimmäisessä kerroksessa oleva asunto, jossa on 3 makuuhuonetta, 2 kylpyhuonetta, erillinen, täysin varustettu keittiö, pyykkitupa ja varastotila. Tämä asunto... Lue lisää
Uudet merinäköalat Mijasin, Málaga: moderni elämä Costa del Solilla Eksklusiivinen uusi promootio, joka on golfin ja luonnon ympäröimä Tämä uusi asuinprojekti Mijasin kaupungissa Málagassa... Lue lisää
Asunto Uusi Kohde: Hinnat alkaen 1 190 000 € aina 1 530 000 € asti. [Huoneet: 3 - 3] [Kylpyhuoneet: 3 - 3] [Rakennettu: 130,00 m2 - 130,00 m2] Ole etuoikeus asua yhdessä 19 kaksikerroksisten... Lue lisää
Tervetuloa uuteen luksusasuntojen kehitykseen, joka sijaitsee arvostetulla Calanova Golfin alueella, Mijas Costa. Tämä eksklusiivinen projekti tarjoaa valikoiman ensimmäisen kerroksen asuntoja,... Lue lisää
Uudet merinäköalat Mijasin, Málaga: moderni elämä Costa del Solilla Eksklusiivinen uusi promootio, joka on golfin ja luonnon ympäröimä Tämä uusi asuinprojekti Mijasin kaupungissa Málagassa... Lue lisää