- 77 m2 Rakenna
- 2 Makuuhuoneet
- 2 Kylpyhuoneet
Tämä hyvin esillä oleva 2 makuuhuoneen, 2 kylpyhuoneen asunto sijaitsee suosittua El Rincon aidattua yhteisöä Playa Flamencassa kolmannessa kerroksessa, tarjoten erinomaisen sijainnin ja... Lue lisää
Tämä hyvin esillä oleva 2 makuuhuoneen, 2 kylpyhuoneen asunto sijaitsee suosittua El Rincon aidattua yhteisöä Playa Flamencassa kolmannessa kerroksessa, tarjoten erinomaisen sijainnin ja... Lue lisää
Uuden rakennuksen asuinalue Playa Flamencassa! Kokeneelta kehittäjältä alueella olemme ylpeitä voidessamme tarjota tämän uuden asuinalueen, joka on juuri tullut myyntiin vain 500 m merestä... Lue lisää
Tämä hyvin esillä oleva, kahden makuuhuoneen yläkerroksen kaksio sijaitsee halutussa asuinkaupunginosassa Playa Flamenca, Orihuela Costa Costa Blanca Eteläosa. Ihanteellisesti sijaitsee lyhyen... Lue lisää
Uusi rakennusresidenssi Playa Flamencassa! Kokeneen alueen kehittäjän tuomana olemme ylpeitä voidessamme tarjota tämän uuden residenssin, joka on äskettäin tullut myyntiin vain 500 metrin... Lue lisää
Taattu asunnon kuvaus on ensimmäinen nimeämistään: Ático situado en la prestigiosa y moderna urbanización Amanecer Deluxe, en una zona tranquila que destaca por su arquitectura contemporánea y... Lue lisää
Uuden rakennuksen asuinalue Playa Flamencassa! Kokeneelta kehittäjältä alueella olemme ylpeitä voidessamme tarjota tämän uuden asuinalueen, joka on juuri tullut myyntiin vain 500 m merestä... Lue lisää
Playa Flamenca 2 makuuhuoneen, 1 kylpyhuoneen huoneisto myytävänä yhteisön uima-altaalla ja alle 10 minuutin kävelymatkan päässä Zenia Boulevard -ostoskeskuksesta. Esittelemme viehättävän... Lue lisää
Myynnissä upea luksuskattohuoneisto, jossa on oma aurinkoterassi. Myynnissä eksklusiivisessa Flamenca Village -asuinalueessa, joka on yksi parhaista alueista asua lähellä Playa Flamencaa. Tämä... Lue lisää
Tämä kauniisti kunnostettu 1 makuuhuoneen, 1 kylpyhuoneen kattohuoneisto sijaitsee täydellisesti erittäin halutussa Playa Flamenca -alueella, halutun Zenia Star 1 -avainkohdan yhteydessä.... Lue lisää
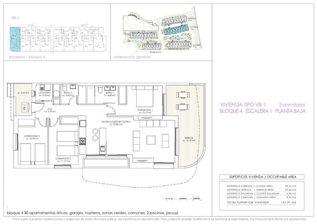
Sijaitsee halutulla Playa Flamencan alueella, tämä asuinyhteisö tarjoaa valikoiman 43 asuntoa, jotka on suunniteltu täyttämään vaativimpien tarpeet. Tarjontaan kuuluu huoneistoja,... Lue lisää
Uusi rakennusresidenssi Playa Flamencassa! Kokeneen alueen kehittäjän tuomana olemme ylpeitä voidessamme tarjota tämän uuden residenssin, joka on äskettäin tullut myyntiin vain 500 metrin... Lue lisää
Sijaitsee halutulla Playa Flamenca -alueella, tämä asuinalue tarjoaa valikoiman 43 asuinrakennusta, jotka on suunniteltu täyttämään vaativimpienkin tarpeet. Tarjontaan kuuluu kalustettuja,... Lue lisää
Playa Flamencan asunnot Orihuela Costalla, uusi asunto, uudiskohde, edullinen asunto, erinomaiset laatuominaisuudet Costa Blancalla, terassilliset asunnot, asunto lähellä rantaa, yhteinen uima... Lue lisää
Uuden rakennuksen asuinalue Playa Flamencassa! Kokeneelta kehittäjältä alueella olemme ylpeitä voidessamme tarjota tämän uuden asuinalueen, joka on juuri tullut myyntiin vain 500 m merestä... Lue lisää
El Bosque Playa Flamenca 2 makuuhuoneen 1 kylpyhuoneen asunto myytävänä tässä aidatussa kompleksissa yhteisön uima-altaalla ja lähellä kaupallista keskustaa kaikkine palveluineen ja 20... Lue lisää
Yläkerran bungalow omaa solariumin, yhteisöllinen uima-allas ja poreallas sekä merinäköala. Kodikas yläkerran bungalow myyntiin, ihanteellinen nauttimaan Välimeren ilmastosta ympäri vuoden.... Lue lisää