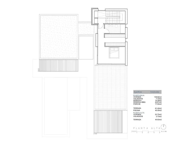
- 239 m2 Rakenna
- 3 Makuuhuoneet
- 3 Kylpyhuoneet
- 759m2 Tontti
Tämä upea kiinteistö sijaitsee ensisijaisesti viheralueella, josta avautuu näkymä Javean rannikolle, ja nauttii uskomattomasta näkymästä. Hotelli sijaitsee rauhallisella kadulla, jossa on... Lue lisää