thinkSPAIN Logo
  • Køb

    Ejendomme til salg

    • Se alle ejendomme til salg
    • Start din søgning ved hjælp af vores filtre
    • Brug vores kortsøgning
    • Indgiv dit søgeområde

    Populære boligsøgninger

    Byhuse Fincas/Landehuse Lejligheder Villaer
    Elevator Have Havudsigt Luksus Nybygning Parkering/Garage Pool Terrasse / Altan
    Alicante Almería Barcelona Benahavís Calvià Cartagena Costa Blanca Costa del Sol Dénia Estepona Girona Gran Canaria Ibiza Javea / Xàbia Madrid Mallorca Marbella Mazarrón Mijas Murcia Málaga Orihuela Palma de Mallorca Tenerife Torrevieja Valencia
    Gennemse alle placeringer og ejendomstyper
  • Lej

    Ejendomme til leje

    • Se alle ejendomme til leje
    • Ferieudlejninger
    • Start din søgning ved hjælp af vores filtre
    • Brug vores kortsøgning
    • Indgiv dit søgeområde

    Populære lejesøgninger

    Byhuse Fincas/Landehuse Lejligheder Villaer
    Elevator Have Havudsigt Nybygning Parkering/Garage Pool Terrasse / Altan Udsigt over bjergene
    Alicante Almería Almuñécar Altea Barcelona Calvià Cartagena Costa Blanca Costa del Sol Dénia Estepona Gran Canaria Granada Ibiza Madrid Mallorca Marbella Murcia Málaga Orihuela Palma de Mallorca Tenerife Torre-Pacheco Torrevieja Torrox Valencia
    Gennemse alle placeringer og ejendomstyper
  • Jeg vil annoncere på thinkSPAIN

    Jeg leder efter en ejendomsmægler i:

    Alicante Almería Barcelona Castellón Cádiz Girona Granada Málaga Tarragona Valencia
    Se alle ejendomsmæglere
  • Kort / Indgiv dit område

    Brug vores interaktive kort til at finde ejendomme

    • Søg på kort
    • Indgiv dit søgeområde

    Populære kortsøgninger

    Alicante Almería Barcelona Benahavís Calvià Cartagena Costa Blanca Costa del Sol Dénia Estepona Girona Gran Canaria Ibiza Javea / Xàbia Madrid Mallorca Marbella Mazarrón Mijas Murcia Málaga Orihuela Palma de Mallorca Tenerife Torrevieja Valencia
  • Katalog

    Hvad søger du?

    • Ejendomsmæglere
    • Byggesagkyndige
    • Arkitekter / Arkitektonisk design
    • Advokater / jurister
    • Skatterådgivere
    • Valutamæglere
    • Realkreditmæglere
    • Ejendomsadministration / vedligehold

    Seneste søgninger

    Ejendomsmæglere i Marbella Advokater / jurister i Costa Cálida Byggesagkyndige i Barx Ejendomsmæglere i Orihuela Ejendomsmæglere i Cádiz Ejendomsmæglere i Costa Blanca Advokater / jurister i Aguilas Ejendomsmæglere i San Javier Ejendomsmæglere i Costa Almería Ejendomsmæglere i Rábade Ejendomsmæglere i Ibiza by Advokater / jurister i Alicante Byggesagkyndige i Costa Valencia Advokater / jurister i Alicante
  • Hjælp og info

    Hvordan kan vi hjælpe dig?

    • Artikler og vejledninger
    • Annoncør-login

    Populære søgninger

    Køb af ejendom i Spanien Flytning til Spanien At bo i Spanien Økonomi, jura og skat Ejendomsmarkedet Spansk livsstil og kultur
  • Annoncør-login
thinkSPAIN Logo Ejendomme

Lejlighed til salg i Carolinas Bajas, Alicante by, Alicante

  • € 309.900
  • 90 m2
  • 2
  • 2
Ejendomme

€ 309.900

Ref. 9743502

Ring
  • 2 soveværelse Lejlighed til salg i Alicante by med swimmingpool - € 309.900 (Ref: 9743502)
  • 2 soveværelse Lejlighed til salg i Alicante by med swimmingpool - € 309.900 (Ref: 9743502)
  • 2 soveværelse Lejlighed til salg i Alicante by med swimmingpool - € 309.900 (Ref: 9743502)
  • 2 soveværelse Lejlighed til salg i Alicante by med swimmingpool - € 309.900 (Ref: 9743502)
  • 2 soveværelse Lejlighed til salg i Alicante by med swimmingpool - € 309.900 (Ref: 9743502)
  • 2 soveværelse Lejlighed til salg i Alicante by med swimmingpool - € 309.900 (Ref: 9743502)
  • 2 soveværelse Lejlighed til salg i Alicante by med swimmingpool - € 309.900 (Ref: 9743502)
  • 2 soveværelse Lejlighed til salg i Alicante by med swimmingpool - € 309.900 (Ref: 9743502)
  • 2 soveværelse Lejlighed til salg i Alicante by med swimmingpool - € 309.900 (Ref: 9743502)
  • 2 soveværelse Lejlighed til salg i Alicante by med swimmingpool - € 309.900 (Ref: 9743502)
  • 2 soveværelse Lejlighed til salg i Alicante by med swimmingpool - € 309.900 (Ref: 9743502)
  • 2 soveværelse Lejlighed til salg i Alicante by med swimmingpool - € 309.900 (Ref: 9743502)
  • 2 soveværelse Lejlighed til salg i Alicante by med swimmingpool - € 309.900 (Ref: 9743502)
  • 2 soveværelse Lejlighed til salg i Alicante by med swimmingpool - € 309.900 (Ref: 9743502)
  • 2 soveværelse Lejlighed til salg i Alicante by med swimmingpool - € 309.900 (Ref: 9743502)
  • 2 soveværelse Lejlighed til salg i Alicante by med swimmingpool - € 309.900 (Ref: 9743502)
  • 2 soveværelse Lejlighed til salg i Alicante by med swimmingpool - € 309.900 (Ref: 9743502)
  • 2 soveværelse Lejlighed til salg i Alicante by med swimmingpool - € 309.900 (Ref: 9743502)
  • 2 soveværelse Lejlighed til salg i Alicante by med swimmingpool - € 309.900 (Ref: 9743502)
1/19

€ 309.900

Lejlighed til salg i Carolinas Bajas, Alicante by, Alicante

  • 90 m2
  • 2
  • 2

Beskrivelse

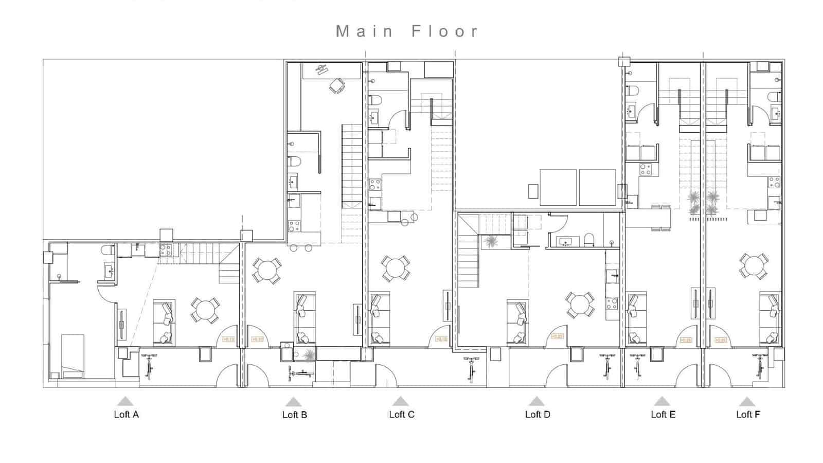
Moderne duplex-loftlejligheder i hjertet af Alicante

Eksklusivt nyt byggeri i Benalúa-kvarteret
Oplev en enestående mulighed for at eje en stilfuld duplex-loftlejlighed i Benalúa, et af de mest livlige og velforbundne kvarterer i Alicante. Dette unikke projekt omdanner seks ubrugte erhvervsenheder til moderne boliglofts, der tilbyder en moderne urban livsstil kun 1 km fra Middelhavskysten. Benalúa er kendt for sine lokale butikker, caféer, kulturelle aktiviteter og sin nærhed til byens centrum, hvilket gør det til et meget eftertragtet område for både beboere og investorer.

Moderne loft-stil design
Hver bolig er blevet fuldstændig redesignet for at tilbyde et friskt, åbent og elegant boligareal. Projektet omfatter 1- og 2-værelses duplex-lofts med 2 badeværelser, alle med imponerende dobbelthøje områder, der forbedrer det naturlige lys og giver en ægte loftstemning. Den øverste etage rummer et soveværelse og et fuldt udstyret badeværelse, hvilket skaber privatliv og komfort.

Med uafhængig adgang fra gaden og privat terrasse kombinerer hver lejlighed moderne arkitektur med praktisk bolig. Højkvalitets finish, moderne indretning og lyse interiører gør disse lofts til et fremragende valg for dem, der søger stil og funktionalitet.

Komfort og fælles faciliteter
Beboerne har adgang til en fælles swimmingpool i bygningen, der skaber en afslappende og forfriskende atmosfære på varme middelhavsdage. De private terrasser og separate indgange tilføjer ekstra bekvemmelighed og eksklusivitet.

Fremragende beliggenhed tæt på vigtige seværdigheder
Bebyggelsen er perfekt beliggende til både beboelse og investering og er omgivet af vigtige faciliteter og store attraktioner:
Alicante strandpromenade: 1 km
Renfe togstation: 0,8 km
El Corte Inglés shoppingcenter: 0,7 km
Alicante retspalads: 0,5 km
Alicante lufthavn: 12 km
Alicante marina og havn: 2 km
Golfbaner (Alicante Golf): 7 km

Området tilbyder fremragende offentlige transportforbindelser, kulturelle attraktioner, grønne områder og nem adgang til byens smukke strande.

En smart investering i Alicantes kystliv
Uanset om du er på udkig efter en primær bolig, en feriebolig eller en investering med stort udlejningspotentiale, udgør disse duplex-loftlejligheder i Benalúa en unik mulighed i et af Alicantes mest lovende områder.

Adgang til swimmingpool afhænger af godkendelse fra boligforeningen, når lokalerne skifter anvendelse.

Placering

Carolinas Bajas, Alicante by, Alicante Placering leveret af annoncøren

Egenskaber

  • Lejlighed
  • Soveværelser: 2
  • Badeværelser: 2
  • Bygningsstørrelse: 90 m2
  • Nybygning
  • Fælles pool
  • Terrasse / Altan
  • Energicertifikat (forbrug): B
  • Energicertifikat (emissioner): B

Hvordan kan vi hjælpe dig?

Fandt du en fejl?

Fortæl os, hvad du har fundet for at rette det

Lån regnemaskine

€
€
%

€ 984 om måneden*

+ € 32.690 skatter (€ 30.990) & udgifter (€ 1.700)*

*Bemærk, at resultaterne kun er en vejledning og ikke et pant eller tilbud.

Kontakt annoncøren

Hvordan kan vi hjælpe dig?

This field is required

Kontroller ovenstående fejl
+34 865 445 392

Ref. 9743502

Når du indsender denne formular, bekræfter du, at du accepterer vores brugervilkår og fortrolighedspolitik .

Del

Tilknyttede ejendomme

2 soveværelse Lejlighed til salg i Carolinas Bajas, Alicante by med swimmingpool - € 319.900 (Ref: 9432612) 2 soveværelse Lejlighed til salg i Carolinas Bajas, Alicante by med swimmingpool - € 309.900 (Ref: 9432613) 1 soveværelse Lejlighed til salg i Carolinas Bajas, Alicante by med swimmingpool - € 249.900 (Ref: 9743313) 2 soveværelse Lejlighed til salg i Carolinas Bajas, Alicante by med swimmingpool - € 319.900 (Ref: 9743542)

Annonce

  1. Spanien
  2. Valencia
  3. Alicante
  4. Costa Blanca
  5. Alicante by
  6. Carolinas Bajas
  7. 2 soveværelse Lejlighed til salg i Carolinas Bajas, Alicante by med swimmingpool - € 309.900 (Ref: 9743502)
Ring