- 7238 m2 Bygning
- 100 Soveværelser
Oplev en eksklusiv femstjernet indkvartering, der forener nutidig luksus, fuld komfort og en privilegeret beliggenhed midt i byens kulturelle hjerte. Dette sofistikerede hotel tilbyder 100 elegante... Læs mere
Oplev en eksklusiv femstjernet indkvartering, der forener nutidig luksus, fuld komfort og en privilegeret beliggenhed midt i byens kulturelle hjerte. Dette sofistikerede hotel tilbyder 100 elegante... Læs mere
--- Hotelprojekt - L'Hospitalet de Llobregat (Barcelona) Titel: Enestående mulighed - Grund med godkendt hotelprojekt i Barcelona --- 1. Samlet forslag Vi præsenterer en enestående mulighed... Læs mere
🏨 Hotel til salg – Barcelona by Fremragende mulighed i et boligområde med direkte forbindelse til centrum Til salg tilbydes et fuldt operationelt byhotel beliggende i Barcelona by, i et pænt... Læs mere
4-stjernet hotelkompleks til salg beliggende i en privilegeret omgivelser ved foden af Montseny Naturpark, 25 minutter fra Barcelona og 40 minutter fra Girona (begge byer med en international... Læs mere
Denne nyopførte hotelaktivitet ligger i et af Barcelonas mest fremadstormende områder, tæt ved havet, handelsområder og kun få minutter fra byens centrum. Anlægget har 280 moderne værelser,... Læs mere
Et firestjernet hotel med 80 værelser beliggende tæt ved Sants-stationen. Det tilbyder gratis WiFi, aircondition, fladskærms-tv, minibar og sikker i værelserne. Dets tjenester inkluderer en... Læs mere
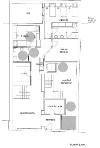
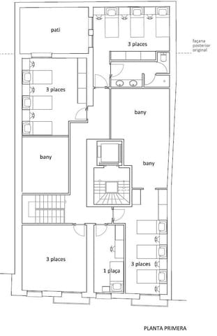
Beliggende i stueetagen og førstesalen i en boligbygning Tilstand til renovering Kapacitet - 18 senge 5 treværelses værelser 1 dobbeltværelse 1 enkeltværelse 2 rummelige badeværelser stort... Læs mere
Det drejer sig om en boligbygning med et areal på 917 m2, der er fuldt udlejet. Den har plads til 44 personer, en restaurant og 4 parkeringspladser. Ejendommen er i perfekt stand og har en... Læs mere