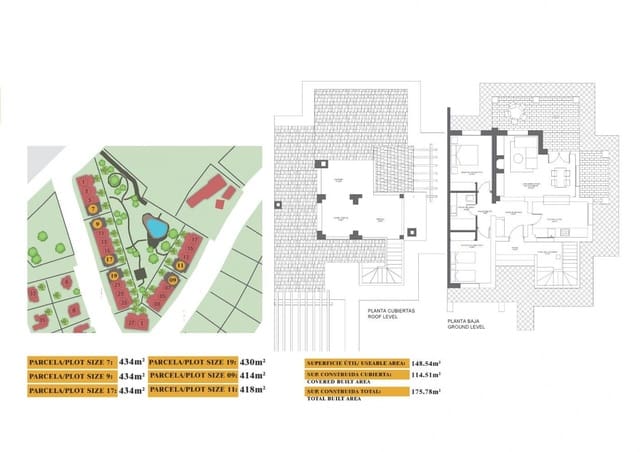
- 94 m2 Bygning
- 3 Soveværelser
- 2 Badeværelser
- 181 m2 Byggegrund
Nybygget boligkompleks med villaer og rækkehuse i Fuente Álamo, Murcia. Denne beliggenhed tilbyder en enestående naturlig omgivelse, langt væk fra storbyens larm og turistpresset ved kysten. Her... Læs mere