thinkSPAIN Logo
  • Kaufen

    Immobilien zum Verkauf

    • Alle Immobilien zum Verkauf anzeigen
    • Starten Sie Ihre Suche mit unseren Filtern
    • Immobilien auf der Karte finden
    • Ihr persönliches Suchgebiet definieren
    • Standorte gezielt finden

    Beliebte Immobiliensuchen

    Einfamilienhäuser, Chalets, Bungalows Fincas, Landhäuser, Bauernhöfe Stadthäuser Wohnungen/Apartments
    Aufzug Garten Luxuriös Meerblick Neubau Parken/Garage Pool Terrasse/Balkon
    Alicante Almería Barcelona Benahavís Calpe / Calp Calvià Cartagena Costa Blanca Costa del Sol Dénia Estepona Girona Gran Canaria Ibiza Madrid Mallorca Marbella Mazarrón Mijas Murcia Málaga Orihuela Palma de Mallorca Teneriffa Torrevieja Valencia
    Durchsuche alle Standorte und Immobilientypen
  • Mieten

    Immobilien zur Miete

    • Alle verfügbaren Mietobjekte entdecken
    • Ferienunterkünfte finden
    • Starten Sie Ihre Suche mit unseren Filtern
    • Mietobjekte auf der Karte finden
    • Ihr persönliches Suchgebiet definieren

    Beliebte Mietimmobiliensuchen

    Einfamilienhäuser, Chalets, Bungalows Fincas, Landhäuser, Bauernhöfe Stadthäuser Wohnungen/Apartments
    Aufzug Bergblick Erste Meereslinie Garten Meerblick Parken/Garage Pool Terrasse/Balkon
    Alicante Almería Almuñécar Altea Barcelona Calvià Cartagena Costa Blanca Costa del Sol Dénia Estepona Gran Canaria Granada Ibiza Madrid Mallorca Marbella Murcia Málaga Orihuela Palma de Mallorca San Javier Teneriffa Torrevieja Torrox Valencia
    Durchsuche alle Standorte und Immobilientypen
  • Verkaufen

    Ich möchte auf thinkSPAIN werben

    • Ich bin Immobilienmakler und möchte meine Immobilien anbieten
    • Ich bin Eigentümer und möchte meine Immobilie direkt inserieren

    Finden Sie einen Immobilienmakler in:

    Alicante Almería Barcelona Castellón Cádiz Girona Granada Málaga Tarragona Valencia
    Alle Immobilienmakler entdecken
  • Wo?

    Wo kaufen/mieten?

    • Finden Sie Orte basierend auf Ihrem Lebensstil (Standortfilter)
    • Entdecken Sie Standorte nach Eigenschaften und Angeboten
    • Standorte auf der Karte finden
    • Ihr persönliches Suchgebiet definieren

    Beliebte Ortssuchen

    Alicante Almería Barcelona Castellón Cádiz Girona Gran Canaria Granada Ibiza Madrid Mallorca Murcia Málaga Tarragona Teneriffa Valencia
  • Karte & Suchgebiet Definieren

    Finden Sie Immobilien mit unserer interaktiven Karte

    • Immobilien auf der Karte suchen
    • Ihr persönliches Suchgebiet definieren

    Beliebte Kartensuchen

    Alicante Almería Barcelona Benahavís Calpe / Calp Calvià Cartagena Costa Blanca Costa del Sol Dénia Estepona Girona Gran Canaria Ibiza Madrid Mallorca Marbella Mazarrón Mijas Murcia Málaga Orihuela Palma de Mallorca Teneriffa Torrevieja Valencia
  • Verzeichnis

    Wonach suchen Sie?

    • Immobilienmakler
    • Sachverständige
    • Architekten / Architektonische Gestaltung
    • Juristen / Rechtsanwälte
    • Steuerberater
    • Devisenmakler
    • Hypothekenmakler
    • Grundstückspflege / -management

    Letzte Suchanfragen

    Juristen / Rechtsanwälte in Almería Juristen / Rechtsanwälte in Costa Valencia Juristen / Rechtsanwälte in Costa Cálida Immobilienmakler in Artà Immobilienmakler in Málaga Stadt Juristen / Rechtsanwälte in Orihuela Immobilienmakler in Guardamar del Segura Immobilienmakler in Antigua Immobilienmakler in Costa Blanca Immobilienmakler in Montserrat Immobilienmakler in Madrid Stadt Juristen / Rechtsanwälte in Orihuela Immobilienmakler in Valencia Grundstückspflege / -management in Costa Blanca
  • Hilfe & Infos

    Wie können wir Ihnen helfen?

    • Ratgeber und Leitfäden
    • Login für Anbieter
    • Werben mit thinkSPAIN

    Beliebte Suchen

    Kaufen in Spanien Umziehen nach Spanien Rente in Spanien Leben in Spanien Arbeiten in Spanien Top-Lagen & Immobilien Finanzen, Recht & Steuern Finden Sie die richtige Immobilie Spanischer Lebensstil & Kultur Gebiete in Spanien Transport Umzug Haushalt Gesundheit Immobilienmarkt Sprachen & Integration Alicante Murcia Sicherheit Aktivitäten
  • Login für Anbieter
thinkSPAIN Logo Immobilien

Villa zu verkaufen in San Eugenio, Adeje, Teneriffa

  • 1.995.000 €
  • 200 m2
  • 6
  • 6
  • 588 m2
Immobilien

1.995.000 €

Ref. 8288951

Anrufen
  • 6 Zimmer Villa zu verkaufen in San Eugenio mit Pool Garage - 1.995.000 € (Ref: 8288951)
  • 6 Zimmer Villa zu verkaufen in San Eugenio mit Pool Garage - 1.995.000 € (Ref: 8288951)
  • 6 Zimmer Villa zu verkaufen in San Eugenio mit Pool Garage - 1.995.000 € (Ref: 8288951)
  • 6 Zimmer Villa zu verkaufen in San Eugenio mit Pool Garage - 1.995.000 € (Ref: 8288951)
  • 6 Zimmer Villa zu verkaufen in San Eugenio mit Pool Garage - 1.995.000 € (Ref: 8288951)
  • 6 Zimmer Villa zu verkaufen in San Eugenio mit Pool Garage - 1.995.000 € (Ref: 8288951)
  • 6 Zimmer Villa zu verkaufen in San Eugenio mit Pool Garage - 1.995.000 € (Ref: 8288951)
  • 6 Zimmer Villa zu verkaufen in San Eugenio mit Pool Garage - 1.995.000 € (Ref: 8288951)
  • 6 Zimmer Villa zu verkaufen in San Eugenio mit Pool Garage - 1.995.000 € (Ref: 8288951)
  • 6 Zimmer Villa zu verkaufen in San Eugenio mit Pool Garage - 1.995.000 € (Ref: 8288951)
  • 6 Zimmer Villa zu verkaufen in San Eugenio mit Pool Garage - 1.995.000 € (Ref: 8288951)
  • 6 Zimmer Villa zu verkaufen in San Eugenio mit Pool Garage - 1.995.000 € (Ref: 8288951)
  • 6 Zimmer Villa zu verkaufen in San Eugenio mit Pool Garage - 1.995.000 € (Ref: 8288951)
  • 6 Zimmer Villa zu verkaufen in San Eugenio mit Pool Garage - 1.995.000 € (Ref: 8288951)
  • 6 Zimmer Villa zu verkaufen in San Eugenio mit Pool Garage - 1.995.000 € (Ref: 8288951)
  • 6 Zimmer Villa zu verkaufen in San Eugenio mit Pool Garage - 1.995.000 € (Ref: 8288951)
  • 6 Zimmer Villa zu verkaufen in San Eugenio mit Pool Garage - 1.995.000 € (Ref: 8288951)
  • 6 Zimmer Villa zu verkaufen in San Eugenio mit Pool Garage - 1.995.000 € (Ref: 8288951)
  • 6 Zimmer Villa zu verkaufen in San Eugenio mit Pool Garage - 1.995.000 € (Ref: 8288951)
  • 6 Zimmer Villa zu verkaufen in San Eugenio mit Pool Garage - 1.995.000 € (Ref: 8288951)
  • 6 Zimmer Villa zu verkaufen in San Eugenio mit Pool Garage - 1.995.000 € (Ref: 8288951)
  • 6 Zimmer Villa zu verkaufen in San Eugenio mit Pool Garage - 1.995.000 € (Ref: 8288951)
  • 6 Zimmer Villa zu verkaufen in San Eugenio mit Pool Garage - 1.995.000 € (Ref: 8288951)
  • 6 Zimmer Villa zu verkaufen in San Eugenio mit Pool Garage - 1.995.000 € (Ref: 8288951)
  • 6 Zimmer Villa zu verkaufen in San Eugenio mit Pool Garage - 1.995.000 € (Ref: 8288951)
  • 6 Zimmer Villa zu verkaufen in San Eugenio mit Pool Garage - 1.995.000 € (Ref: 8288951)
  • 6 Zimmer Villa zu verkaufen in San Eugenio mit Pool Garage - 1.995.000 € (Ref: 8288951)
  • 6 Zimmer Villa zu verkaufen in San Eugenio mit Pool Garage - 1.995.000 € (Ref: 8288951)
  • 6 Zimmer Villa zu verkaufen in San Eugenio mit Pool Garage - 1.995.000 € (Ref: 8288951)
  • 6 Zimmer Villa zu verkaufen in San Eugenio mit Pool Garage - 1.995.000 € (Ref: 8288951)
  • 6 Zimmer Villa zu verkaufen in San Eugenio mit Pool Garage - 1.995.000 € (Ref: 8288951)
  • 6 Zimmer Villa zu verkaufen in San Eugenio mit Pool Garage - 1.995.000 € (Ref: 8288951)
  • 6 Zimmer Villa zu verkaufen in San Eugenio mit Pool Garage - 1.995.000 € (Ref: 8288951)
  • 6 Zimmer Villa zu verkaufen in San Eugenio mit Pool Garage - 1.995.000 € (Ref: 8288951)
  • 6 Zimmer Villa zu verkaufen in San Eugenio mit Pool Garage - 1.995.000 € (Ref: 8288951)
  • 6 Zimmer Villa zu verkaufen in San Eugenio mit Pool Garage - 1.995.000 € (Ref: 8288951)
  • 6 Zimmer Villa zu verkaufen in San Eugenio mit Pool Garage - 1.995.000 € (Ref: 8288951)
  • 6 Zimmer Villa zu verkaufen in San Eugenio mit Pool Garage - 1.995.000 € (Ref: 8288951)
  • 6 Zimmer Villa zu verkaufen in San Eugenio mit Pool Garage - 1.995.000 € (Ref: 8288951)
  • 6 Zimmer Villa zu verkaufen in San Eugenio mit Pool Garage - 1.995.000 € (Ref: 8288951)
  • 6 Zimmer Villa zu verkaufen in San Eugenio mit Pool Garage - 1.995.000 € (Ref: 8288951)
  • 6 Zimmer Villa zu verkaufen in San Eugenio mit Pool Garage - 1.995.000 € (Ref: 8288951)
  • 6 Zimmer Villa zu verkaufen in San Eugenio mit Pool Garage - 1.995.000 € (Ref: 8288951)
  • 6 Zimmer Villa zu verkaufen in San Eugenio mit Pool Garage - 1.995.000 € (Ref: 8288951)
  • 6 Zimmer Villa zu verkaufen in San Eugenio mit Pool Garage - 1.995.000 € (Ref: 8288951)
  • 6 Zimmer Villa zu verkaufen in San Eugenio mit Pool Garage - 1.995.000 € (Ref: 8288951)
  • 6 Zimmer Villa zu verkaufen in San Eugenio mit Pool Garage - 1.995.000 € (Ref: 8288951)
  • 6 Zimmer Villa zu verkaufen in San Eugenio mit Pool Garage - 1.995.000 € (Ref: 8288951)
  • 6 Zimmer Villa zu verkaufen in San Eugenio mit Pool Garage - 1.995.000 € (Ref: 8288951)
1/49

Angeboten von

Engel & Völkers Costa Adeje Engel & Völkers Costa Adeje

1.995.000 €

Villa zu verkaufen in San Eugenio, Adeje, Teneriffa

  • 200 m2
  • 6
  • 6
  • 588 m2

Beschreibung

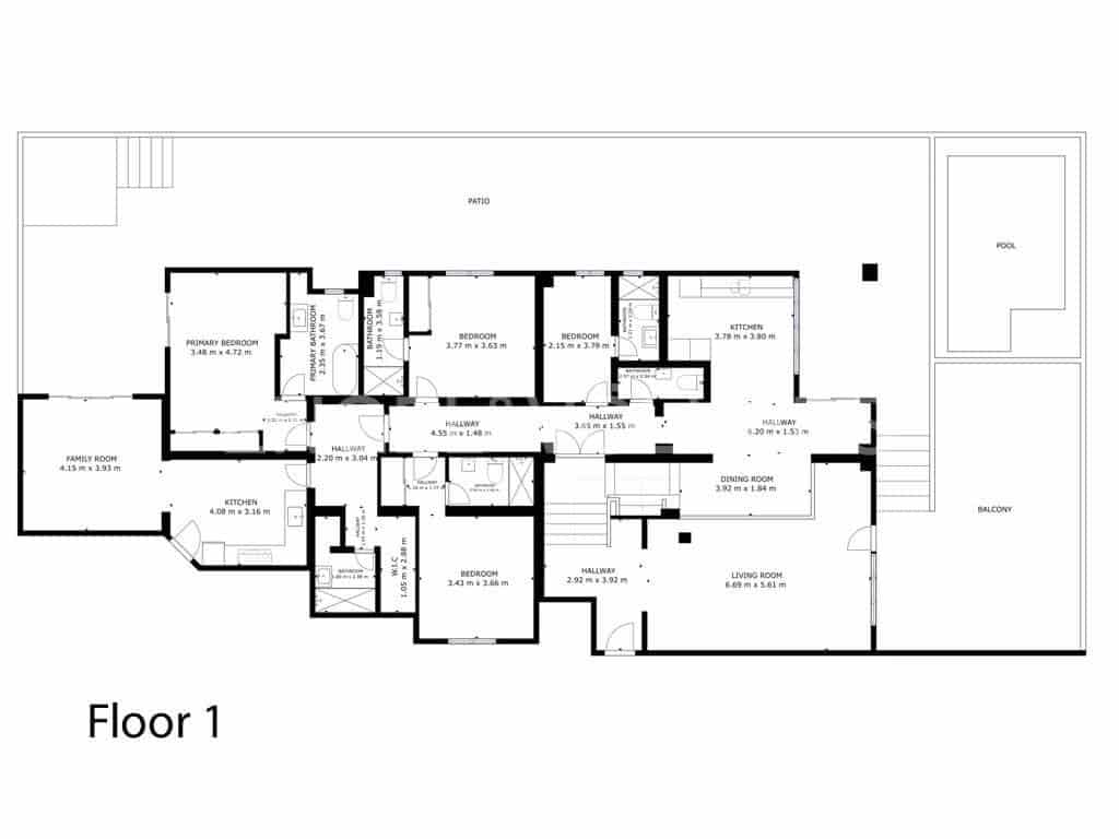
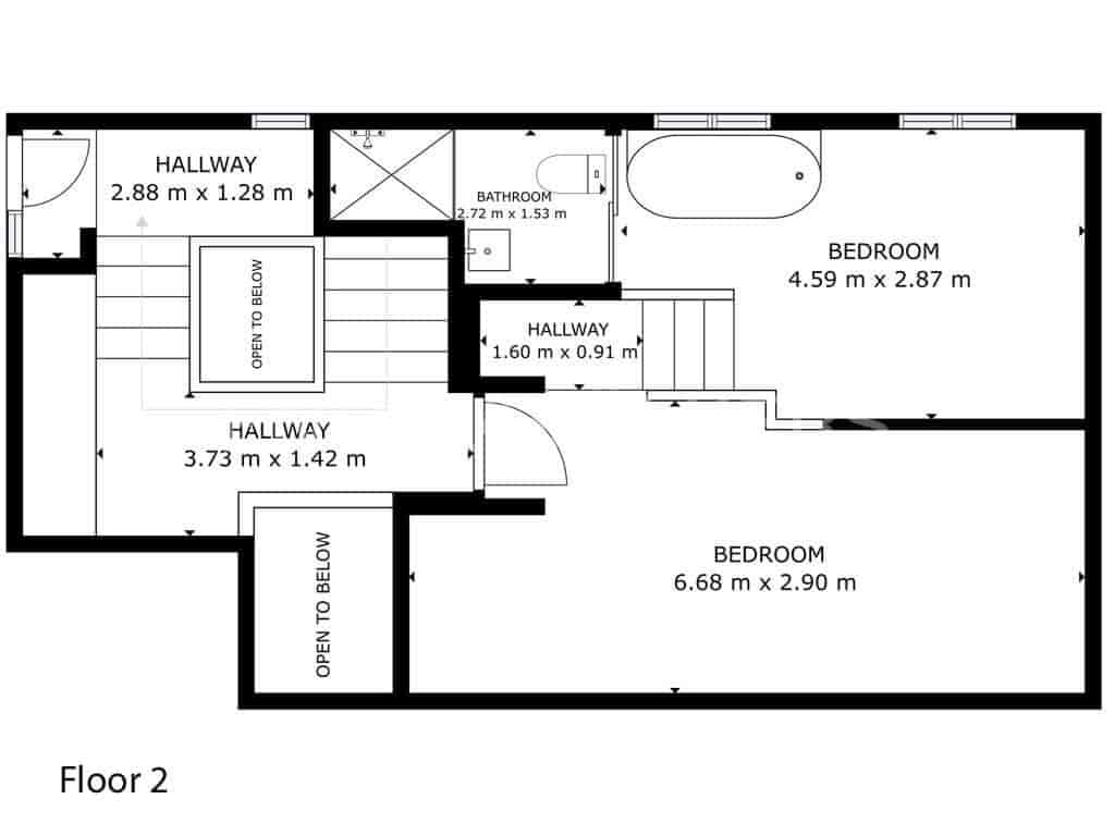
Diese exklusive Villa mit 5 Schlafzimmern und 6,5 Badezimmern, einem separaten 1-Schlafzimmer-Apartment und einem Studio-Apartment liegt zentral in San Eugenio Alto! Kürzlich renoviert, vereint dieses Anwesen modernen Stil mit hochwertiger Ausstattung, großzügigen Außenbereichen und einem herrlichen beheizten Pool. Das Wohnzimmer im Haupthaus ist einladend und hell und bietet Zugang zur Terrasse, während die stilvolle Küche mit einer Durchreiche zum Außenessbereich führt. Ein Gäste-WC ist praktisch gelegen. Jedes der fünf Schlafzimmer im Haupthaus ist geräumig und verfügt über ein eigenes Bad.

Das separate Apartment im hinteren Teil des Anwesens verfügt über eine elegante Küche mit Frühstückstheke, die in das großzügige, lichtdurchflutete Wohnzimmer übergeht. Das Schlafzimmer bietet Zugang zur Terrasse sowie ein großes en-suite Badezimmer. Ein weiteres separates Badezimmer und ein begehbarer Kleiderschrank vervollständigen das Angebot. Im Untergeschoss der Villa befindet sich ein gemütliches Studioapartment mit separater Küche und Bad.

Die Außenbereiche dieser Villa sind ein wahres Highlight! Ein privater beheizter Pool, eine großzügige Dachterrasse und zwei Essbereiche im Freien bieten den perfekten Rahmen für Outdoor-Genuss. Die atemberaubende Aussicht auf das Meer und die Küste im Süden Teneriffas rundet das Gesamtbild ab. Eine private Garage mit Platz für zwei Autos sowie ein zusätzlicher Stellplatz stehen ebenfalls zur Verfügung. Dies ist eine perfekte Kaufgelegenheit in zentraler Lage für Investoren oder große Familien!

San Eugenio Alto gehört zu den privilegiertesten Wohngegenden im Süden von Teneriffa. Von hier aus genießen Sie einen traumhaften Blick über die Südspitze der Insel und befinden sich im unmittelbaren Umfeld der schönsten Villen und Neubauten. Die größten Shoppingzentren X-Sur und Siam Mall, wo Sie Boutiquen, Cafés und Restaurants finden, sind innerhalb von wenigen Minuten erreichbar. Die beiden Freizeitwasserparks Aqualand und Siam Park befinden sich in der Nähe. Auch der charmante Hafen „Puerto Colón“ und verschiedene Strände sind in zehn Minuten zu Fuß zu erreichen.

Lage

San Eugenio, Adeje, Teneriffa Der genaue Standort wurde nicht angegeben.

Eigenschaften

  • Villa
  • Schlafzimmer: 6
  • Badezimmer: 6
  • Wohnfläche: 200 m2
  • Grundstück: 588 m2
  • Pool
  • Meerblick
  • Parken/Garage
  • Garten
  • Klimaanlage
  • Terrasse/Balkon
  • Bergblick
  • Einbauschränke
  • Energieausweis (Verbrauch): G

Wie können wir Ihnen helfen?

Haben Sie einen Fehler in der Anzeige entdeckt?

Teilen Sie uns den Fehler mit, den Sie gefunden haben, um ihn zu korrigieren

Kreditrechner

€
€
%

6.335 € pro Monat*

+ 131.375 € Steuern (129.675 €) & Ausgaben (1.700 €)*

*Bitte beachten Sie, dass die Ergebnisse nur ein Anhaltspunkt sind und kein Finanzierungsangebot oder Kostenvoranschlag darstellen.

Über Engel & Völkers Costa Adeje

Engel & Völkers Costa Adeje ist Ihr vertrauenswürdiger Immobilienpartner im Süden Teneriffas. Mit über 45 Jahren Erfahrung auf dem internationalen Markt und 15 Jahren lokaler Präsenz...

Wir sprechen

    Deutsch Spanisch Französisch Englisch Italienisch
Mehr über diesen Anbieter

Angeboten von

Engel & Völkers Costa Adeje

Engel & Völkers Costa Adeje

Kontaktieren Sie den Anbieter

Wie können wir Ihnen helfen?

Wie können wir Ihnen helfen?

€

Eingabe ist erforderlich

Prüfen Sie den/die obigen Fehler

Ref. 8288951

Mit dem Absenden dieses Formulars bestätigen Sie, dass Sie unsere Nutzungsbedingungen und Datenschutzerklärung akzeptieren.

Teilen

Über Engel & Völkers Costa Adeje Über Engel & Völkers Costa Adeje

Engel & Völkers Costa Adeje ist Ihr vertrauenswürdiger Immobilienpartner im Süden Teneriffas. Mit über 45 Jahren Erfahrung auf dem internationalen Markt und 15 Jahren lokaler Präsenz...

Wir sprechen

    Deutsch Spanisch Französisch Englisch Italienisch
Mehr über diesen Anbieter +34 822 680 031 Anrufen

Ähnliche Immobilien

3 Zimmer Villa zu verkaufen in San Eugenio, Adeje mit Pool - 2.084.400 € (Ref: 5585819) 5 Zimmer Villa zu verkaufen in San Eugenio, Adeje mit Pool - 1.995.500 € (Ref: 5512960) 3 Zimmer Villa zu verkaufen in San Eugenio, Adeje mit Pool Garage - 2.087.000 € (Ref: 7043247) 3 Zimmer Villa zu verkaufen in San Eugenio Alto, Adeje - 1.900.000 € (Ref: 9181959)

Werbung

  1. Spanien
  2. Kanaren
  3. Teneriffa
  4. Adeje
  5. Costa Adeje
  6. San Eugenio Alto
  7. San Eugenio
  8. 6 Zimmer Villa zu verkaufen in San Eugenio, Adeje mit Pool Garage - 1.995.000 € (Ref: 8288951)
Anrufen