thinkSPAIN Logo
  • Kaufen

    Immobilien zum Verkauf

    • Alle Immobilien zum Verkauf anzeigen
    • Starten Sie Ihre Suche mit unseren Filtern
    • Immobilien auf der Karte finden
    • Ihr persönliches Suchgebiet definieren
    • Standorte gezielt finden

    Beliebte Immobiliensuchen

    Einfamilienhäuser, Chalets, Bungalows Fincas, Landhäuser, Bauernhöfe Stadthäuser Wohnungen/Apartments
    Aufzug Garten Luxuriös Meerblick Neubau Parken/Garage Pool Terrasse/Balkon
    Alicante Almería Barcelona Benahavís Calvià Cartagena Costa Blanca Costa del Sol Dénia Estepona Girona Gran Canaria Ibiza Javea / Xàbia Madrid Mallorca Marbella Mazarrón Mijas Murcia Málaga Orihuela Palma de Mallorca Teneriffa Torrevieja Valencia
    Durchsuche alle Standorte und Immobilientypen
  • Mieten

    Immobilien zur Miete

    • Alle verfügbaren Mietobjekte entdecken
    • Ferienunterkünfte finden
    • Starten Sie Ihre Suche mit unseren Filtern
    • Mietobjekte auf der Karte finden
    • Ihr persönliches Suchgebiet definieren

    Beliebte Mietimmobiliensuchen

    Einfamilienhäuser, Chalets, Bungalows Fincas, Landhäuser, Bauernhöfe Stadthäuser Wohnungen/Apartments
    Aufzug Bergblick Garten Meerblick Neubau Parken/Garage Pool Terrasse/Balkon
    Alicante Almería Almuñécar Altea Barcelona Calvià Cartagena Costa Blanca Costa del Sol Dénia Estepona Gran Canaria Granada Ibiza Madrid Mallorca Marbella Murcia Málaga Orihuela Palma de Mallorca Teneriffa Torre-Pacheco Torrevieja Torrox Valencia
    Durchsuche alle Standorte und Immobilientypen
  • Verkaufen

    Ich möchte auf thinkSPAIN werben

    • Ich bin Immobilienmakler und möchte meine Immobilien anbieten
    • Ich bin Eigentümer und möchte meine Immobilie direkt inserieren

    Finden Sie einen Immobilienmakler in:

    Alicante Almería Barcelona Castellón Cádiz Girona Granada Málaga Tarragona Valencia
    Alle Immobilienmakler entdecken
  • Wo?

    Wo kaufen/mieten?

    • Finden Sie Orte basierend auf Ihrem Lebensstil (Standortfilter)
    • Entdecken Sie Standorte nach Eigenschaften und Angeboten
    • Standorte auf der Karte finden
    • Ihr persönliches Suchgebiet definieren

    Beliebte Ortssuchen

    Alicante Almería Barcelona Castellón Cádiz Girona Gran Canaria Granada Ibiza Madrid Mallorca Murcia Málaga Tarragona Teneriffa Valencia
  • Karte & Suchgebiet Definieren

    Finden Sie Immobilien mit unserer interaktiven Karte

    • Immobilien auf der Karte suchen
    • Ihr persönliches Suchgebiet definieren

    Beliebte Kartensuchen

    Alicante Almería Barcelona Benahavís Calvià Cartagena Costa Blanca Costa del Sol Dénia Estepona Girona Gran Canaria Ibiza Javea / Xàbia Madrid Mallorca Marbella Mazarrón Mijas Murcia Málaga Orihuela Palma de Mallorca Teneriffa Torrevieja Valencia
  • Verzeichnis

    Wonach suchen Sie?

    • Immobilienmakler
    • Sachverständige
    • Architekten / Architektonische Gestaltung
    • Juristen / Rechtsanwälte
    • Steuerberater
    • Devisenmakler
    • Hypothekenmakler
    • Grundstückspflege / -management

    Letzte Suchanfragen

    Juristen / Rechtsanwälte in Orihuela Immobilienmakler in Costa Maresme Sachverständige in Valencia Immobilienmakler in Alcaucín Immobilienmakler in Costa de la Luz Immobilienmakler in Granada Grundstückspflege / -management in Costa Blanca Juristen / Rechtsanwälte in Valencia Juristen / Rechtsanwälte in Alicante Immobilienmakler in Conil de la Frontera Immobilienmakler in Mallorca Juristen / Rechtsanwälte in Orihuela Immobilienmakler in Altea Immobilienmakler in San Miguel de Salinas
  • Hilfe & Infos

    Wie können wir Ihnen helfen?

    • Ratgeber und Leitfäden
    • Login für Anbieter
    • Werben mit thinkSPAIN

    Beliebte Suchen

    Kaufen in Spanien Umziehen nach Spanien Rente in Spanien Leben in Spanien Arbeiten in Spanien Top-Lagen & Immobilien Finanzen, Recht & Steuern Finden Sie die richtige Immobilie Spanischer Lebensstil & Kultur Gebiete in Spanien Umzug Transport Gesundheit Haushalt Immobilienmarkt Alicante Sprachen & Integration Sicherheit Selbständigkeit Einen Job finden
  • Login für Anbieter
thinkSPAIN Logo Immobilien

Bungalow zu verkaufen in Ciudad Quesada, Rojales, Alicante

  • 303.000 €
  • 73 m2
  • 2
  • 2
  • 33 m2
Immobilien

303.000 €

Ref. 9204283

Anrufen
  • 2 Zimmer Bungalow zu verkaufen in Ciudad Quesada mit Pool - 303.000 € (Ref: 9204283)
  • 2 Zimmer Bungalow zu verkaufen in Ciudad Quesada mit Pool - 303.000 € (Ref: 9204283)
  • 2 Zimmer Bungalow zu verkaufen in Ciudad Quesada mit Pool - 303.000 € (Ref: 9204283)
  • 2 Zimmer Bungalow zu verkaufen in Ciudad Quesada mit Pool - 303.000 € (Ref: 9204283)
  • 2 Zimmer Bungalow zu verkaufen in Ciudad Quesada mit Pool - 303.000 € (Ref: 9204283)
  • 2 Zimmer Bungalow zu verkaufen in Ciudad Quesada mit Pool - 303.000 € (Ref: 9204283)
  • 2 Zimmer Bungalow zu verkaufen in Ciudad Quesada mit Pool - 303.000 € (Ref: 9204283)
  • 2 Zimmer Bungalow zu verkaufen in Ciudad Quesada mit Pool - 303.000 € (Ref: 9204283)
  • 2 Zimmer Bungalow zu verkaufen in Ciudad Quesada mit Pool - 303.000 € (Ref: 9204283)
  • 2 Zimmer Bungalow zu verkaufen in Ciudad Quesada mit Pool - 303.000 € (Ref: 9204283)
  • 2 Zimmer Bungalow zu verkaufen in Ciudad Quesada mit Pool - 303.000 € (Ref: 9204283)
  • 2 Zimmer Bungalow zu verkaufen in Ciudad Quesada mit Pool - 303.000 € (Ref: 9204283)
  • 2 Zimmer Bungalow zu verkaufen in Ciudad Quesada mit Pool - 303.000 € (Ref: 9204283)
  • 2 Zimmer Bungalow zu verkaufen in Ciudad Quesada mit Pool - 303.000 € (Ref: 9204283)
  • 2 Zimmer Bungalow zu verkaufen in Ciudad Quesada mit Pool - 303.000 € (Ref: 9204283)
  • 2 Zimmer Bungalow zu verkaufen in Ciudad Quesada mit Pool - 303.000 € (Ref: 9204283)
  • 2 Zimmer Bungalow zu verkaufen in Ciudad Quesada mit Pool - 303.000 € (Ref: 9204283)
  • 2 Zimmer Bungalow zu verkaufen in Ciudad Quesada mit Pool - 303.000 € (Ref: 9204283)
  • 2 Zimmer Bungalow zu verkaufen in Ciudad Quesada mit Pool - 303.000 € (Ref: 9204283)
  • 2 Zimmer Bungalow zu verkaufen in Ciudad Quesada mit Pool - 303.000 € (Ref: 9204283)
  • 2 Zimmer Bungalow zu verkaufen in Ciudad Quesada mit Pool - 303.000 € (Ref: 9204283)
  • 2 Zimmer Bungalow zu verkaufen in Ciudad Quesada mit Pool - 303.000 € (Ref: 9204283)
  • 2 Zimmer Bungalow zu verkaufen in Ciudad Quesada mit Pool - 303.000 € (Ref: 9204283)
1/23

303.000 €

Bungalow zu verkaufen in Ciudad Quesada, Rojales, Alicante

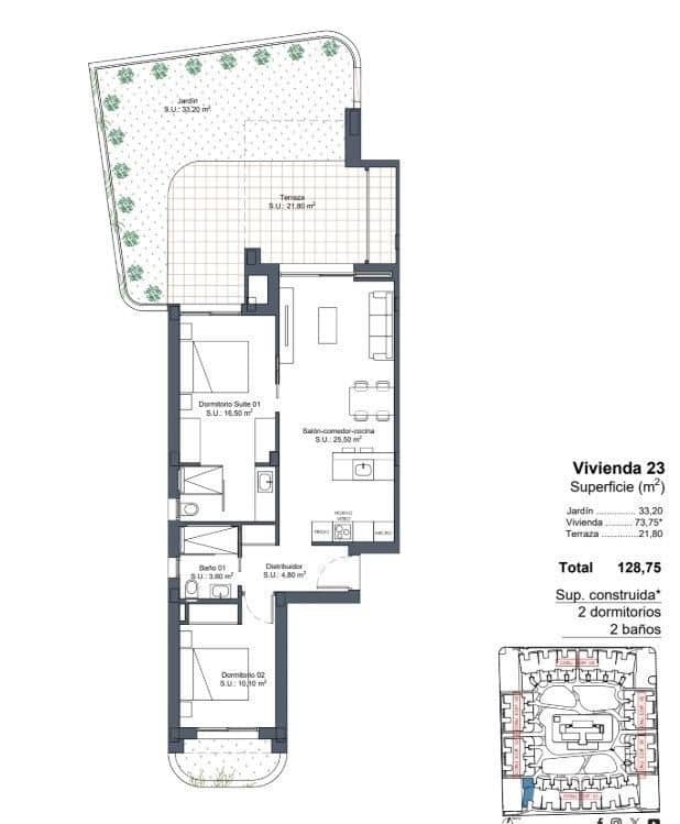
  • 73 m2
  • 2
  • 2
  • 33 m2

Beschreibung

Exklusive Neubauprojekte in Lo Marabú, Ciudad Quesada

Modernes Design und maximaler Komfort in mediterraner Umgebung

Entdecken Sie diese spektakuläre Wohnanlage in Lo Marabú, Ciudad Quesada, die 80 Wohnungen mit 2 und 3 Schlafzimmern und 2 Bädern umfasst. Die modern und effizient gestalteten Wohnungen bieten geräumige Terrassen, Querlüftung und hochwertige Ausstattungen für maximalen Komfort und Energieeffizienz.

Die Wohnungen im Erdgeschoss verfügen über private Gärten, während die Wohnungen im Obergeschoss über private Solarien mit Vorinstallation für einen Whirlpool und eine Außendusche verfügen. Darüber hinaus verfügt die Anlage über Gemeinschaftspools, die von Gärten umgeben sind und eine perfekte Umgebung für Entspannung und Geselligkeit schaffen.

Hochwertige Ausstattung für einen exklusiven Lebensstil

Jede Wohnung wurde so konzipiert, dass sie maximalen Komfort bietet, mit hochwertigen Materialien und einem modernen Design:

Große Aluminium-Schiebefenster mit thermischer Trennung.

Motorisierte Jalousien für mehr Komfort.

Climalit 4+4/14/4/4+4-Verglasung für Wärme- und Schalldämmung.

Gepanzerte Eingangstür mit Sicherheitsschloss.

Vollständig ausgestattete Küchen mit Elektrogeräten.

Bäder mit Möbeln, Spiegeln und Duschabtrennungen.

150-Liter-Aerothermie-System für Warmwasser.

Komplette Installation einer kanalisierten Klimaanlage (warm/kalt).

Beleuchtung in allen Räumen bereits eingebaut.

Parkplatz inklusive.

Dank ihrer Doppelfassade bieten die Wohnungen eine natürliche Querlüftung, die im Sommer für Abkühlung sorgt und den Energieverbrauch der Klimaanlage reduziert.

Privilegierte Lage in Ciudad Quesada

Lo Marabú ist eine exklusive Wohngegend in Ciudad Quesada (Rojales), umgeben von Naturräumen und mit allen Dienstleistungen in Reichweite. Die Urbanisation liegt ganz in der Nähe der Salzseen von La Mata und Torrevieja, eine ideale Umgebung, um die Natur zu genießen und Ihr Wohlbefinden zu verbessern.

Von Ihrem neuen Zuhause aus haben Sie schnellen Zugang zu den wichtigsten Sehenswürdigkeiten der Gegend:

Die Strände von Guardamar del Segura und Torrevieja sind 10 km entfernt (15 Minuten mit dem Auto).

Flughafen Alicante-Elche (ALC) - 38 km (35 Minuten mit dem Auto).

Flughafen Murcia-Corvera (RMU) - 65 km (50 Minuten Fahrzeit).

Renommierte Golfplätze - weniger als 5 km.

Einkaufszentren und Restaurants - nur wenige Minuten entfernt.

Schneller Zugang zu den Autobahnen AP-7 und N-332, die die gesamte Costa Blanca erschließen.

Ein perfektes Zuhause, um das Mittelmeer zu genießen

Mit ihrer Kombination aus modernem Design, strategischer Lage und außergewöhnlicher natürlicher Umgebung sind diese Häuser in Lo Marabu ideal für einen dauerhaften Wohnsitz, ein Feriendomizil oder eine Anlageimmobilie.

Lassen Sie sich diese einmalige Gelegenheit nicht entgehen.

Lage

Ciudad Quesada, Rojales, Alicante Der genaue Standort wurde nicht angegeben.

Eigenschaften

  • Bungalow
  • Schlafzimmer: 2
  • Badezimmer: 2
  • Wohnfläche: 73 m2
  • Grundstück: 33 m2
  • Neubau
  • Gemeinschaftspool
  • Privatgarten
  • Klimaanlage
  • Terrasse/Balkon
  • Energieeffizienzklasse: in Bearbeitung

Wie können wir Ihnen helfen?

Haben Sie einen Fehler in der Anzeige entdeckt?

Teilen Sie uns den Fehler mit, den Sie gefunden haben, um ihn zu korrigieren

Kreditrechner

€
€
%

962 € pro Monat*

+ 32.000 € Steuern (30.300 €) & Ausgaben (1.700 €)*

*Bitte beachten Sie, dass die Ergebnisse nur ein Anhaltspunkt sind und kein Finanzierungsangebot oder Kostenvoranschlag darstellen.

Kontaktieren Sie den Anbieter

Wie können wir Ihnen helfen?

€

Eingabe ist erforderlich

Prüfen Sie den/die obigen Fehler
+34 965 020 889

Ref. 9204283

Mit dem Absenden dieses Formulars bestätigen Sie, dass Sie unsere Nutzungsbedingungen und Datenschutzerklärung akzeptieren.

Teilen

Ähnliche Immobilien

2 Zimmer Bungalow zu verkaufen in Ciudad Quesada, Rojales mit Pool - 298.000 € (Ref: 9435072) 3 Zimmer Bungalow zu verkaufen in Ciudad Quesada, Rojales mit Pool - 320.000 € (Ref: 9362453) 2 Zimmer Bungalow zu verkaufen in Ciudad Quesada, Rojales mit Pool - 330.000 € (Ref: 9622117) 3 Zimmer Bungalow zu verkaufen in Ciudad Quesada, Rojales - 249.000 € (Ref: 9606574)

Werbung

  1. Spanien
  2. Valencia
  3. Alicante
  4. Costa Blanca
  5. Rojales
  6. Ciudad Quesada
  7. 2 Zimmer Bungalow zu verkaufen in Ciudad Quesada, Rojales mit Pool - 303.000 € (Ref: 9204283)
Anrufen