thinkSPAIN Logo
  • Kaufen

    Immobilien zum Verkauf

    • Alle Immobilien zum Verkauf anzeigen
    • Starten Sie Ihre Suche mit unseren Filtern
    • Immobilien auf der Karte finden
    • Ihr persönliches Suchgebiet definieren
    • Standorte gezielt finden

    Beliebte Immobiliensuchen

    Einfamilienhäuser, Chalets, Bungalows Fincas, Landhäuser, Bauernhöfe Stadthäuser Wohnungen/Apartments
    Aufzug Garten Luxuriös Meerblick Neubau Parken/Garage Pool Terrasse/Balkon
    Alicante Almería Barcelona Benahavís Calpe / Calp Calvià Cartagena Costa Blanca Costa del Sol Dénia Estepona Girona Gran Canaria Ibiza Madrid Mallorca Marbella Mazarrón Mijas Murcia Málaga Orihuela Palma de Mallorca Teneriffa Torrevieja Valencia
    Durchsuche alle Standorte und Immobilientypen
  • Mieten

    Immobilien zur Miete

    • Alle verfügbaren Mietobjekte entdecken
    • Ferienunterkünfte finden
    • Starten Sie Ihre Suche mit unseren Filtern
    • Mietobjekte auf der Karte finden
    • Ihr persönliches Suchgebiet definieren

    Beliebte Mietimmobiliensuchen

    Einfamilienhäuser, Chalets, Bungalows Fincas, Landhäuser, Bauernhöfe Stadthäuser Wohnungen/Apartments
    Aufzug Bergblick Erste Meereslinie Garten Meerblick Parken/Garage Pool Terrasse/Balkon
    Alicante Almería Almuñécar Altea Barcelona Calvià Cartagena Costa Blanca Costa del Sol Dénia Estepona Gran Canaria Granada Ibiza Madrid Mallorca Marbella Murcia Málaga Orihuela Palma de Mallorca San Javier Teneriffa Torrevieja Torrox Valencia
    Durchsuche alle Standorte und Immobilientypen
  • Verkaufen

    Ich möchte auf thinkSPAIN werben

    • Ich bin Immobilienmakler und möchte meine Immobilien anbieten
    • Ich bin Eigentümer und möchte meine Immobilie direkt inserieren

    Finden Sie einen Immobilienmakler in:

    Alicante Almería Barcelona Castellón Cádiz Girona Granada Málaga Tarragona Valencia
    Alle Immobilienmakler entdecken
  • Wo?

    Wo kaufen/mieten?

    • Finden Sie Orte basierend auf Ihrem Lebensstil (Standortfilter)
    • Entdecken Sie Standorte nach Eigenschaften und Angeboten
    • Standorte auf der Karte finden
    • Ihr persönliches Suchgebiet definieren

    Beliebte Ortssuchen

    Alicante Almería Barcelona Castellón Cádiz Girona Gran Canaria Granada Ibiza Madrid Mallorca Murcia Málaga Tarragona Teneriffa Valencia
  • Karte & Suchgebiet Definieren

    Finden Sie Immobilien mit unserer interaktiven Karte

    • Immobilien auf der Karte suchen
    • Ihr persönliches Suchgebiet definieren

    Beliebte Kartensuchen

    Alicante Almería Barcelona Benahavís Calpe / Calp Calvià Cartagena Costa Blanca Costa del Sol Dénia Estepona Girona Gran Canaria Ibiza Madrid Mallorca Marbella Mazarrón Mijas Murcia Málaga Orihuela Palma de Mallorca Teneriffa Torrevieja Valencia
  • Verzeichnis

    Wonach suchen Sie?

    • Immobilienmakler
    • Sachverständige
    • Architekten / Architektonische Gestaltung
    • Juristen / Rechtsanwälte
    • Steuerberater
    • Devisenmakler
    • Hypothekenmakler
    • Grundstückspflege / -management

    Letzte Suchanfragen

    Immobilienmakler in Ibiza Juristen / Rechtsanwälte in Costa Tropical Juristen / Rechtsanwälte in Costa Almería Immobilienmakler in Benalmádena Sachverständige in Costa Valencia Immobilienmakler in Costa Almería Immobilienmakler in Rábade Immobilienmakler in Mogán Immobilienmakler in Pliego Juristen / Rechtsanwälte in Huelva Sachverständige in Costa Valencia Immobilienmakler in Almuñécar Immobilienmakler in Málaga Juristen / Rechtsanwälte in Costa Cálida
  • Hilfe & Infos

    Wie können wir Ihnen helfen?

    • Ratgeber und Leitfäden
    • Login für Anbieter
    • Werben mit thinkSPAIN

    Beliebte Suchen

    Kaufen in Spanien Umziehen nach Spanien Rente in Spanien Leben in Spanien Arbeiten in Spanien Top-Lagen & Immobilien Finanzen, Recht & Steuern Finden Sie die richtige Immobilie Spanischer Lebensstil & Kultur Gebiete in Spanien Transport Umzug Gesundheit Haushalt Immobilienmarkt Sprachen & Integration Alicante Sicherheit Murcia Einen Job finden
  • Login für Anbieter
thinkSPAIN Logo Immobilien

Gewerbe zu verkaufen in Jaén Stadt, Jaén

  • 33.000 €
  • 70 m2
Immobilien

33.000 €

Ref. 9249474

Anrufen
  • Gewerbe zu verkaufen in Jaen Stadt - 33.000 € (Ref: 9249474)
  • Gewerbe zu verkaufen in Jaen Stadt - 33.000 € (Ref: 9249474)
  • Gewerbe zu verkaufen in Jaen Stadt - 33.000 € (Ref: 9249474)
  • Gewerbe zu verkaufen in Jaen Stadt - 33.000 € (Ref: 9249474)
  • Gewerbe zu verkaufen in Jaen Stadt - 33.000 € (Ref: 9249474)
  • Gewerbe zu verkaufen in Jaen Stadt - 33.000 € (Ref: 9249474)
  • Gewerbe zu verkaufen in Jaen Stadt - 33.000 € (Ref: 9249474)
  • Gewerbe zu verkaufen in Jaen Stadt - 33.000 € (Ref: 9249474)
  • Gewerbe zu verkaufen in Jaen Stadt - 33.000 € (Ref: 9249474)
  • Gewerbe zu verkaufen in Jaen Stadt - 33.000 € (Ref: 9249474)
  • Gewerbe zu verkaufen in Jaen Stadt - 33.000 € (Ref: 9249474)
  • Gewerbe zu verkaufen in Jaen Stadt - 33.000 € (Ref: 9249474)
  • Gewerbe zu verkaufen in Jaen Stadt - 33.000 € (Ref: 9249474)
  • Gewerbe zu verkaufen in Jaen Stadt - 33.000 € (Ref: 9249474)
  • Gewerbe zu verkaufen in Jaen Stadt - 33.000 € (Ref: 9249474)
  • Gewerbe zu verkaufen in Jaen Stadt - 33.000 € (Ref: 9249474)
  • Gewerbe zu verkaufen in Jaen Stadt - 33.000 € (Ref: 9249474)
  • Gewerbe zu verkaufen in Jaen Stadt - 33.000 € (Ref: 9249474)
  • Gewerbe zu verkaufen in Jaen Stadt - 33.000 € (Ref: 9249474)
1/19

33.000 €

Gewerbe zu verkaufen in Jaén Stadt, Jaén

  • 70 m2

Beschreibung

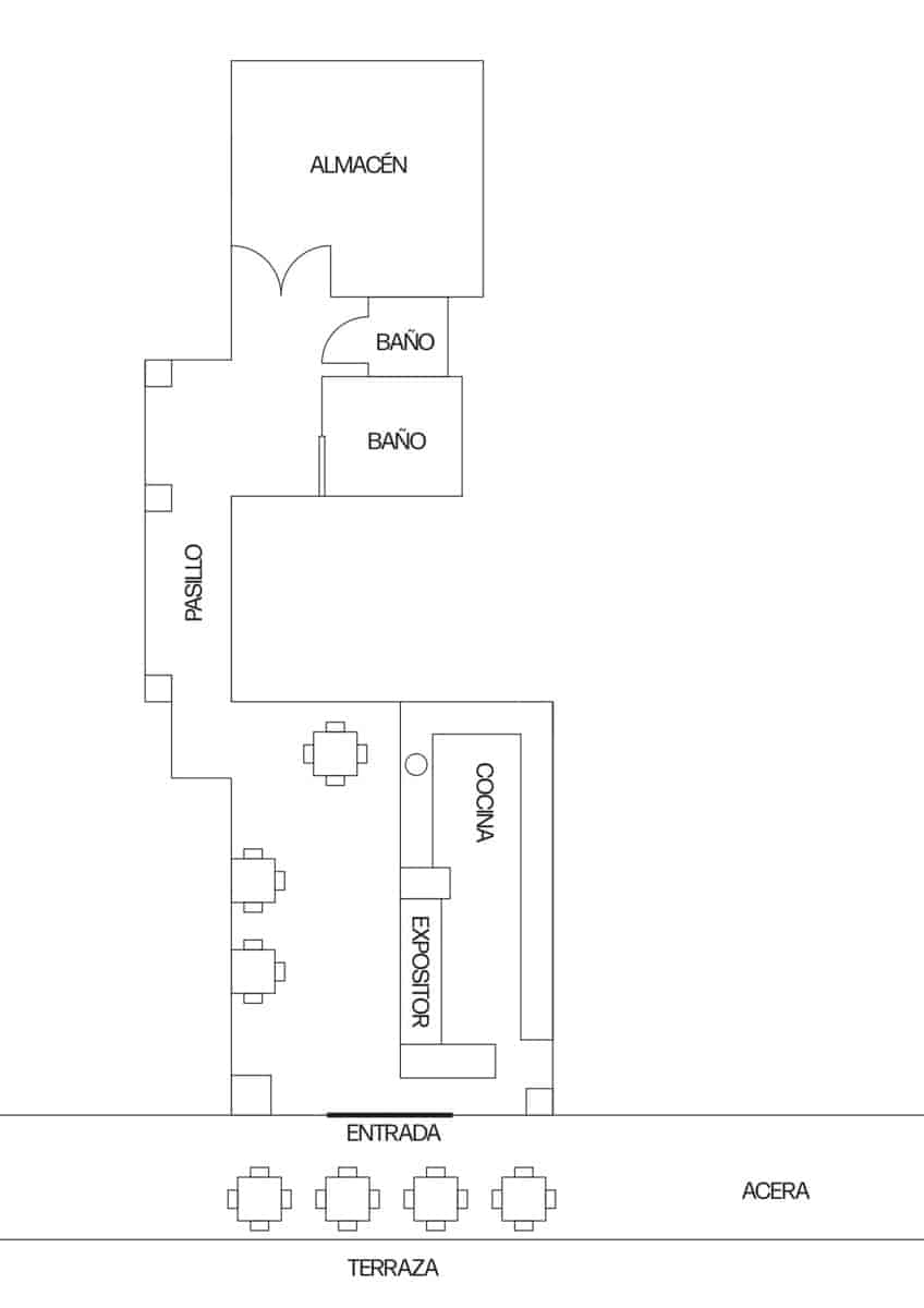
Wollen Sie ein sofort einsatzbereites Geschäft? Hier ist es:

Es wird ein Poke-Geschäft mit nachweislich hohem Umsatz übertragen, vollständig ausgestattet und an einer unschlagbaren Lage: der Gran Bulevar de Jaén.

Warum es eine Chance ist:

- Alle Möbel und Maschinen inklusive (Vakuumierer, Kühlschränke, etc.)
- Vollständiger Lagerbestand verfügbar für den Anfragenden
- Eigenes Lager und funktionaler Innenraum im Lokal
- Zentral klimatisierte Heizung/Kühlung für maximalen Komfort
- Becnahmte Terrasse und Innentische, perfekt für Kunden
- Betrieb des Geschäfts mit gültigem Mietvertrag
- Verbrauchs- und Kostenangaben:

Wasser: ca. 110 € pro Quartal

Strom im Sommer: ca. 600 €

Wirtschaftliche Bedingungen:

Monatliche Mietpreis: derzeit 800 €

Übernahmepreis: 33.000 €

Ideal für Gründer oder Investoren, die ein erprobtes Geschäft mit fest etablierten Kundenstamm suchen und ab dem ersten Tag Einnahmen erzielen möchten.

Lage

Jaén Stadt, Jaén Standort wurde zur Verfügung gestellt

Eigenschaften

  • Gewerbe
  • Wohnfläche: 70 m2
  • Klimaanlage
  • Terrasse/Balkon
  • Heizung
  • Energieeffizienzklasse: in Bearbeitung

Wie können wir Ihnen helfen?

Haben Sie einen Fehler in der Anzeige entdeckt?

Teilen Sie uns den Fehler mit, den Sie gefunden haben, um ihn zu korrigieren

Kreditrechner

€
€
%

104 € pro Monat*

+ 4.010 € Steuern (2.310 €) & Ausgaben (1.700 €)*

*Bitte beachten Sie, dass die Ergebnisse nur ein Anhaltspunkt sind und kein Finanzierungsangebot oder Kostenvoranschlag darstellen.

Kontaktieren Sie den Anbieter

Wie können wir Ihnen helfen?

€

Eingabe ist erforderlich

Prüfen Sie den/die obigen Fehler

Ref. 9249474

Mit dem Absenden dieses Formulars bestätigen Sie, dass Sie unsere Nutzungsbedingungen und Datenschutzerklärung akzeptieren.

Teilen

Ähnliche Immobilien

2 Zimmer Gewerbe zu verkaufen in Castillo de Locubín - 29.000 € (Ref: 7316165) Gewerbe zu verkaufen in Guadix - 34.000 € (Ref: 9051162) 1 Zimmer Gewerbe zu verkaufen in Freila - 28.500 € (Ref: 2004482) Gewerbe zu verkaufen in Motril - 35.000 € (Ref: 9503446)

Werbung

  1. Spanien
  2. Andalusien
  3. Jaén
  4. Jaén Stadt
  5. Gewerbe zu verkaufen in Jaén Stadt - 33.000 € (Ref: 9249474)
Anrufen