thinkSPAIN Logo
  • Kaufen

    Immobilien zum Verkauf

    • Alle Immobilien zum Verkauf anzeigen
    • Starten Sie Ihre Suche mit unseren Filtern
    • Immobilien auf der Karte finden
    • Ihr persönliches Suchgebiet definieren
    • Standorte gezielt finden

    Beliebte Immobiliensuchen

    Einfamilienhäuser, Chalets, Bungalows Fincas, Landhäuser, Bauernhöfe Stadthäuser Wohnungen/Apartments
    Aufzug Garten Luxuriös Meerblick Neubau Parken/Garage Pool Terrasse/Balkon
    Alicante Almería Barcelona Benahavís Calpe / Calp Calvià Costa Blanca Costa del Sol Dénia Estepona Girona Gran Canaria Ibiza Los Alcázares Madrid Mallorca Marbella Mazarrón Mijas Murcia Málaga Orihuela Palma de Mallorca Teneriffa Torrevieja Valencia
    Durchsuche alle Standorte und Immobilientypen
  • Mieten

    Immobilien zur Miete

    • Alle verfügbaren Mietobjekte entdecken
    • Ferienunterkünfte finden
    • Starten Sie Ihre Suche mit unseren Filtern
    • Mietobjekte auf der Karte finden
    • Ihr persönliches Suchgebiet definieren

    Beliebte Mietimmobiliensuchen

    Einfamilienhäuser, Chalets, Bungalows Fincas, Landhäuser, Bauernhöfe Stadthäuser Wohnungen/Apartments
    Aufzug Bergblick Garten Meerblick Neubau Parken/Garage Pool Terrasse/Balkon
    Alicante Almería Almuñécar Altea Barcelona Calvià Cartagena Costa Blanca Costa del Sol Dénia Estepona Gran Canaria Granada Ibiza Madrid Mallorca Marbella Murcia Málaga Orihuela Palma de Mallorca Teneriffa Torre-Pacheco Torrevieja Torrox Valencia
    Durchsuche alle Standorte und Immobilientypen
  • Verkaufen

    Ich möchte auf thinkSPAIN werben

    • Ich bin Immobilienmakler und möchte meine Immobilien anbieten
    • Ich bin Eigentümer und möchte meine Immobilie direkt inserieren

    Finden Sie einen Immobilienmakler in:

    Alicante Almería Barcelona Castellón Cádiz Girona Granada Málaga Tarragona Valencia
    Alle Immobilienmakler entdecken
  • Wo?

    Wo kaufen/mieten?

    • Finden Sie Orte basierend auf Ihrem Lebensstil (Standortfilter)
    • Entdecken Sie Standorte nach Eigenschaften und Angeboten
    • Standorte auf der Karte finden
    • Ihr persönliches Suchgebiet definieren

    Beliebte Ortssuchen

    Alicante Almería Barcelona Castellón Cádiz Girona Gran Canaria Granada Ibiza Madrid Mallorca Murcia Málaga Tarragona Teneriffa Valencia
  • Karte & Suchgebiet Definieren

    Finden Sie Immobilien mit unserer interaktiven Karte

    • Immobilien auf der Karte suchen
    • Ihr persönliches Suchgebiet definieren

    Beliebte Kartensuchen

    Alicante Almería Barcelona Benahavís Calpe / Calp Calvià Costa Blanca Costa del Sol Dénia Estepona Girona Gran Canaria Ibiza Los Alcázares Madrid Mallorca Marbella Mazarrón Mijas Murcia Málaga Orihuela Palma de Mallorca Teneriffa Torrevieja Valencia
  • Verzeichnis

    Wonach suchen Sie?

    • Immobilienmakler
    • Sachverständige
    • Architekten / Architektonische Gestaltung
    • Juristen / Rechtsanwälte
    • Steuerberater
    • Devisenmakler
    • Hypothekenmakler
    • Grundstückspflege / -management

    Letzte Suchanfragen

    Immobilienmakler in Barcelona Stadt Juristen / Rechtsanwälte in Valencia Juristen / Rechtsanwälte in Costa Almería Immobilienmakler in Benitachell / Benitatxell Juristen / Rechtsanwälte in Alicante Immobilienmakler in Sax Immobilienmakler in Artà Grundstückspflege / -management in Costa Blanca Immobilienmakler in Marbella Immobilienmakler in Javea / Xàbia Immobilienmakler in Barcelona Architekten / Architektonische Gestaltung in Dénia Juristen / Rechtsanwälte in Costa Valencia Immobilienmakler in Palma de Mallorca
  • Hilfe & Infos

    Wie können wir Ihnen helfen?

    • Ratgeber und Leitfäden
    • Login für Anbieter
    • Werben mit thinkSPAIN

    Beliebte Suchen

    Kaufen in Spanien Umziehen nach Spanien Rente in Spanien Leben in Spanien Arbeiten in Spanien Top-Lagen & Immobilien Finanzen, Recht & Steuern Finden Sie die richtige Immobilie Spanischer Lebensstil & Kultur Gebiete in Spanien Umzug Transport Gesundheit Haushalt Immobilienmarkt Alicante Sprachen & Integration Sicherheit Selbständigkeit Einen Job finden
  • Login für Anbieter
thinkSPAIN Logo Immobilien

Bungalow zu verkaufen in El Molino, Torrevieja, Alicante

  • 340.000 €
  • 99 m2
  • 3
  • 2
  • 76 m2

340.000 € Ref. 9530202

Immobilien
Ref. 9530202
Anrufen
  • 3 Zimmer Bungalow zu verkaufen in Torrevieja mit Pool - 340.000 € (Ref: 9530202)
  • 3 Zimmer Bungalow zu verkaufen in Torrevieja mit Pool - 340.000 € (Ref: 9530202)
  • 3 Zimmer Bungalow zu verkaufen in Torrevieja mit Pool - 340.000 € (Ref: 9530202)
  • 3 Zimmer Bungalow zu verkaufen in Torrevieja mit Pool - 340.000 € (Ref: 9530202)
  • 3 Zimmer Bungalow zu verkaufen in Torrevieja mit Pool - 340.000 € (Ref: 9530202)
  • 3 Zimmer Bungalow zu verkaufen in Torrevieja mit Pool - 340.000 € (Ref: 9530202)
  • 3 Zimmer Bungalow zu verkaufen in Torrevieja mit Pool - 340.000 € (Ref: 9530202)
  • 3 Zimmer Bungalow zu verkaufen in Torrevieja mit Pool - 340.000 € (Ref: 9530202)
  • 3 Zimmer Bungalow zu verkaufen in Torrevieja mit Pool - 340.000 € (Ref: 9530202)
  • 3 Zimmer Bungalow zu verkaufen in Torrevieja mit Pool - 340.000 € (Ref: 9530202)
  • 3 Zimmer Bungalow zu verkaufen in Torrevieja mit Pool - 340.000 € (Ref: 9530202)
  • 3 Zimmer Bungalow zu verkaufen in Torrevieja mit Pool - 340.000 € (Ref: 9530202)
  • 3 Zimmer Bungalow zu verkaufen in Torrevieja mit Pool - 340.000 € (Ref: 9530202)
  • 3 Zimmer Bungalow zu verkaufen in Torrevieja mit Pool - 340.000 € (Ref: 9530202)
  • 3 Zimmer Bungalow zu verkaufen in Torrevieja mit Pool - 340.000 € (Ref: 9530202)
  • 3 Zimmer Bungalow zu verkaufen in Torrevieja mit Pool - 340.000 € (Ref: 9530202)
  • 3 Zimmer Bungalow zu verkaufen in Torrevieja mit Pool - 340.000 € (Ref: 9530202)
1/17

340.000 €

Bungalow zu verkaufen in El Molino, Torrevieja, Alicante

  • 99 m2
  • 3
  • 2
  • 76 m2

Beschreibung

Neubau-Wohnungen in Los Balcones, Torrevieja

Moderne Wohnungen in einer erstklassigen Wohngegend
Entdecken Sie diesen attraktiven Neubau-Wohnkomplex in Los Balcones, einem der beliebtesten und etabliertesten Viertel am Stadtrand von Torrevieja. In einer ruhigen Umgebung mit ausgezeichneter Anbindung an alle wichtigen Dienstleistungen gelegen, befindet sich diese Wohnanlage nur 4 km von den Sandstränden der Costa Blanca entfernt. Los Balcones ist bekannt für seine entspannte Atmosphäre, breite Straßen, Grünflächen und die Nähe zu Krankenhäusern, Supermärkten, Restaurants und Einkaufszentren, was es ideal für das ganze Jahr oder als Ferienwohnsitz macht.

Moderne Wohnungen mit privaten Außenbereichen
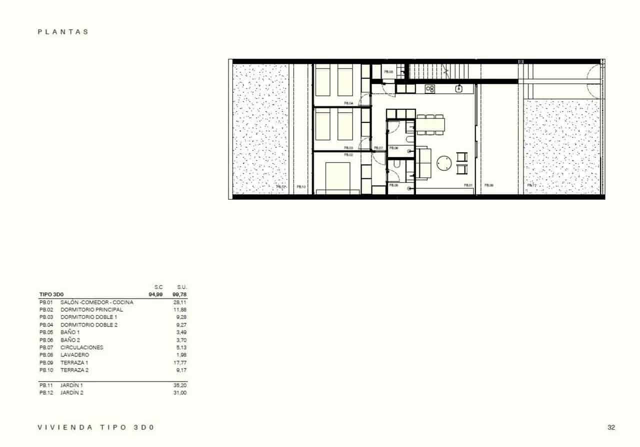
Der Komplex besteht aus 52 modernen Wohnungen auf einer Gesamtfläche von 6700 m2. Jede Immobilie verfügt über einen privaten Parkplatz und einen Abstellraum in der Tiefgarage. Die Wohnungen verfügen über 2 oder 3 Schlafzimmer und 2 Badezimmer, eines davon en suite.

Käufer können zwischen Wohnungen im Erdgeschoss mit privatem Garten oder Wohnungen in den oberen Etagen mit einer großzügigen Terrasse und einem privaten Solarium wählen. Diese Grundrisse sind so gestaltet, dass sie das natürliche Licht maximieren und komfortable Wohnräume im Innen- und Außenbereich bieten, um das mediterrane Klima das ganze Jahr über genießen zu können.

Gemeinschaftsbereiche zum Entspannen
Das Projekt ist in vier Blöcke unterteilt, die einen großen zentralen Gemeinschaftsbereich umgeben. Dieses grüne Herzstück der Anlage verfügt über einen Swimmingpool mit einem eigenen Kinderbereich und wunderschön angelegten Gärten. Diese Gemeinschaftsbereiche sind ideal zum Entspannen, für geselliges Beisammensein und für Familienzeit in einer sicheren und freundlichen Umgebung.

Hochwertige Ausstattung und energieeffizientes Design
Jede Wohnung wurde nach modernen Standards gebaut und verfügt über eine vorinstallierte Klimaanlage, ein aerothermisches Warmwassersystem für verbesserte Energieeffizienz, Außenbeleuchtung und doppelt verglaste Außenfenster. Die Küchen sind komplett ausgestattet und bieten einen funktionalen und stilvollen Raum für das tägliche Leben.

Diese Merkmale sorgen für einen hohen Komfort, geringen Wartungsaufwand und reduzierten Energieverbrauch, wodurch die Wohnungen sowohl praktisch als auch nachhaltig sind.

Ausgezeichnete Lage in der Nähe von Stränden und Golfplätzen
Los Balcones bietet eine strategisch günstige Lage in der Nähe vieler Sehenswürdigkeiten. Die Strände von Torrevieja sind etwa 4 km entfernt. Mehrere renommierte Golfplätze wie Villamartin Golf, Las Ramblas Golf und Campoamor Golf sind innerhalb von 10 bis 15 km zu erreichen. Das Universitätskrankenhaus von Torrevieja ist weniger als 2 km entfernt, was für zusätzlichen Komfort und Sicherheit sorgt.

Das Stadtzentrum von Torrevieja ist etwa 5 km entfernt und mit Los Balcones durch eine Busverbindung verbunden. Dort finden Sie eine große Auswahl an Geschäften, Restaurants, kulturellen Einrichtungen und einen lebhaften Yachthafen. Der internationale Flughafen Alicante ist etwa 42 km entfernt und bietet gute internationale Verbindungen. Der Hafen von Torrevieja ist etwa 6 km entfernt.

Ideal zum Wohnen oder als Investition
Mit seinem modernen Design, den ausgezeichneten Gemeinschaftsbereichen und der erstklassigen Lage in der Nähe von Stränden, Golfplätzen und Dienstleistungen eignet sich dieser neue Wohnkomplex in Los Balcones Torrevieja perfekt als Dauerwohnsitz, Ferienhaus oder Investitionsmöglichkeit.

Lage

El Molino, Torrevieja, Alicante Standort wurde zur Verfügung gestellt

Eigenschaften

  • Bungalow
  • Schlafzimmer: 3
  • Badezimmer: 2
  • Wohnfläche: 99 m2
  • Grundstück: 76 m2
  • Neubau
  • Pool
  • Privatgarten
  • Terrasse/Balkon
  • Energieeffizienzklasse: in Bearbeitung

Wie können wir Ihnen helfen?

Haben Sie einen Fehler in der Anzeige entdeckt?

Teilen Sie uns den Fehler mit, den Sie gefunden haben, um ihn zu korrigieren

Kreditrechner

€
€
%

1.079 € pro Monat*

+ 35.700 € Steuern (34.000 €) & Ausgaben (1.700 €)*

*Bitte beachten Sie, dass die Ergebnisse nur ein Anhaltspunkt sind und kein Finanzierungsangebot oder Kostenvoranschlag darstellen.

Kontaktieren Sie den Anbieter

Wie können wir Ihnen helfen?

€

Eingabe ist erforderlich

Prüfen Sie den/die obigen Fehler
+34 965 020 378

Ref. 9530202

Mit dem Absenden dieses Formulars bestätigen Sie, dass Sie unsere Nutzungsbedingungen und Datenschutzerklärung akzeptieren.

Teilen

Ähnliche Immobilien

2 Zimmer Bungalow zu verkaufen in El Molino, Torrevieja - 279.900 € (Ref: 9735292) 2 Zimmer Bungalow zu verkaufen in El Molino, Torrevieja mit Pool Garage - 319.900 € (Ref: 7279031) 3 Zimmer Bungalow zu verkaufen in El Molino, Torrevieja mit Pool - 305.900 € (Ref: 9393083) 3 Zimmer Bungalow zu verkaufen in Parque de las Naciones, Torrevieja - 295.000 € (Ref: 9149256)

Werbung

  1. Spanien
  2. Valencia
  3. Alicante
  4. Costa Blanca
  5. Torrevieja
  6. Centro
  7. El Molino
  8. 3 Zimmer Bungalow zu verkaufen in El Molino, Torrevieja mit Pool - 340.000 € (Ref: 9530202)