thinkSPAIN Logo
  • Kaufen

    Immobilien zum Verkauf

    • Alle Immobilien zum Verkauf anzeigen
    • Starten Sie Ihre Suche mit unseren Filtern
    • Immobilien auf der Karte finden
    • Ihr persönliches Suchgebiet definieren
    • Standorte gezielt finden

    Beliebte Immobiliensuchen

    Einfamilienhäuser, Chalets, Bungalows Fincas, Landhäuser, Bauernhöfe Stadthäuser Wohnungen/Apartments
    Aufzug Garten Luxuriös Meerblick Neubau Parken/Garage Pool Terrasse/Balkon
    Alicante Almería Barcelona Benahavís Calvià Cartagena Costa Blanca Costa del Sol Dénia Estepona Girona Gran Canaria Ibiza Javea / Xàbia Madrid Mallorca Marbella Mazarrón Mijas Murcia Málaga Orihuela Palma de Mallorca Teneriffa Torrevieja Valencia
    Durchsuche alle Standorte und Immobilientypen
  • Mieten

    Immobilien zur Miete

    • Alle verfügbaren Mietobjekte entdecken
    • Ferienunterkünfte finden
    • Starten Sie Ihre Suche mit unseren Filtern
    • Mietobjekte auf der Karte finden
    • Ihr persönliches Suchgebiet definieren

    Beliebte Mietimmobiliensuchen

    Einfamilienhäuser, Chalets, Bungalows Fincas, Landhäuser, Bauernhöfe Stadthäuser Wohnungen/Apartments
    Aufzug Bergblick Garten Meerblick Neubau Parken/Garage Pool Terrasse/Balkon
    Alicante Almería Almuñécar Altea Barcelona Calvià Cartagena Costa Blanca Costa del Sol Dénia Estepona Gran Canaria Granada Ibiza Madrid Mallorca Marbella Murcia Málaga Orihuela Palma de Mallorca Teneriffa Torre-Pacheco Torrevieja Torrox Valencia
    Durchsuche alle Standorte und Immobilientypen
  • Verkaufen

    Ich möchte auf thinkSPAIN werben

    • Ich bin Immobilienmakler und möchte meine Immobilien anbieten
    • Ich bin Eigentümer und möchte meine Immobilie direkt inserieren

    Finden Sie einen Immobilienmakler in:

    Alicante Almería Barcelona Castellón Cádiz Girona Granada Málaga Tarragona Valencia
    Alle Immobilienmakler entdecken
  • Wo?

    Wo kaufen/mieten?

    • Finden Sie Orte basierend auf Ihrem Lebensstil (Standortfilter)
    • Entdecken Sie Standorte nach Eigenschaften und Angeboten
    • Standorte auf der Karte finden
    • Ihr persönliches Suchgebiet definieren

    Beliebte Ortssuchen

    Alicante Almería Barcelona Castellón Cádiz Girona Gran Canaria Granada Ibiza Madrid Mallorca Murcia Málaga Tarragona Teneriffa Valencia
  • Karte & Suchgebiet Definieren

    Finden Sie Immobilien mit unserer interaktiven Karte

    • Immobilien auf der Karte suchen
    • Ihr persönliches Suchgebiet definieren

    Beliebte Kartensuchen

    Alicante Almería Barcelona Benahavís Calvià Cartagena Costa Blanca Costa del Sol Dénia Estepona Girona Gran Canaria Ibiza Javea / Xàbia Madrid Mallorca Marbella Mazarrón Mijas Murcia Málaga Orihuela Palma de Mallorca Teneriffa Torrevieja Valencia
  • Wie können wir Ihnen helfen?

    • Ratgeber und Leitfäden
    • Verzeichnis für Branchen und Dienstleistungen
    • Anmeldebereich für Werbekunden
    • Werben mit thinkSPAIN

    Beliebte Suchen

    Juristen / Rechtsanwälte Hypothekenmakler Immobilienmakler Grundstückspflege / -management Devisenmakler Sachverständige Architekten / Architektonische Gestaltung Steuerberater
    Finanzen, Recht & Steuern Kaufen in Spanien Leben in Spanien Umziehen nach Spanien Finden Sie die richtige Immobilie Spanischer Lebensstil & Kultur Gebiete in Spanien Arbeiten in Spanien Rente in Spanien Top-Lagen & Immobilien Umzug Transport
thinkSPAIN Logo Immobilien

Apartment zu verkaufen in Playa Flamenca, Orihuela, Alicante

  • 469.000 €
  • 94 m2
  • 3
  • 2

469.000 € Ref. 9550401

Immobilien
Ref. 9550401
Anrufen
  • 3 Zimmer Apartment zu verkaufen in Playa Flamenca - 469.000 € (Ref: 9550401)
  • 3 Zimmer Apartment zu verkaufen in Playa Flamenca - 469.000 € (Ref: 9550401)
  • 3 Zimmer Apartment zu verkaufen in Playa Flamenca - 469.000 € (Ref: 9550401)
  • 3 Zimmer Apartment zu verkaufen in Playa Flamenca - 469.000 € (Ref: 9550401)
  • 3 Zimmer Apartment zu verkaufen in Playa Flamenca - 469.000 € (Ref: 9550401)
  • 3 Zimmer Apartment zu verkaufen in Playa Flamenca - 469.000 € (Ref: 9550401)
  • 3 Zimmer Apartment zu verkaufen in Playa Flamenca - 469.000 € (Ref: 9550401)
  • 3 Zimmer Apartment zu verkaufen in Playa Flamenca - 469.000 € (Ref: 9550401)
  • 3 Zimmer Apartment zu verkaufen in Playa Flamenca - 469.000 € (Ref: 9550401)
  • 3 Zimmer Apartment zu verkaufen in Playa Flamenca - 469.000 € (Ref: 9550401)
  • 3 Zimmer Apartment zu verkaufen in Playa Flamenca - 469.000 € (Ref: 9550401)
  • 3 Zimmer Apartment zu verkaufen in Playa Flamenca - 469.000 € (Ref: 9550401)
  • 3 Zimmer Apartment zu verkaufen in Playa Flamenca - 469.000 € (Ref: 9550401)
  • 3 Zimmer Apartment zu verkaufen in Playa Flamenca - 469.000 € (Ref: 9550401)
  • 3 Zimmer Apartment zu verkaufen in Playa Flamenca - 469.000 € (Ref: 9550401)
  • 3 Zimmer Apartment zu verkaufen in Playa Flamenca - 469.000 € (Ref: 9550401)
  • 3 Zimmer Apartment zu verkaufen in Playa Flamenca - 469.000 € (Ref: 9550401)
  • 3 Zimmer Apartment zu verkaufen in Playa Flamenca - 469.000 € (Ref: 9550401)
  • 3 Zimmer Apartment zu verkaufen in Playa Flamenca - 469.000 € (Ref: 9550401)
  • 3 Zimmer Apartment zu verkaufen in Playa Flamenca - 469.000 € (Ref: 9550401)
  • 3 Zimmer Apartment zu verkaufen in Playa Flamenca - 469.000 € (Ref: 9550401)
  • 3 Zimmer Apartment zu verkaufen in Playa Flamenca - 469.000 € (Ref: 9550401)
  • 3 Zimmer Apartment zu verkaufen in Playa Flamenca - 469.000 € (Ref: 9550401)
  • 3 Zimmer Apartment zu verkaufen in Playa Flamenca - 469.000 € (Ref: 9550401)
  • 3 Zimmer Apartment zu verkaufen in Playa Flamenca - 469.000 € (Ref: 9550401)
  • 3 Zimmer Apartment zu verkaufen in Playa Flamenca - 469.000 € (Ref: 9550401)
  • 3 Zimmer Apartment zu verkaufen in Playa Flamenca - 469.000 € (Ref: 9550401)
  • 3 Zimmer Apartment zu verkaufen in Playa Flamenca - 469.000 € (Ref: 9550401)
  • 3 Zimmer Apartment zu verkaufen in Playa Flamenca - 469.000 € (Ref: 9550401)
  • 3 Zimmer Apartment zu verkaufen in Playa Flamenca - 469.000 € (Ref: 9550401)
  • 3 Zimmer Apartment zu verkaufen in Playa Flamenca - 469.000 € (Ref: 9550401)
  • 3 Zimmer Apartment zu verkaufen in Playa Flamenca - 469.000 € (Ref: 9550401)
  • 3 Zimmer Apartment zu verkaufen in Playa Flamenca - 469.000 € (Ref: 9550401)
  • 3 Zimmer Apartment zu verkaufen in Playa Flamenca - 469.000 € (Ref: 9550401)
  • 3 Zimmer Apartment zu verkaufen in Playa Flamenca - 469.000 € (Ref: 9550401)
1/35

469.000 €

Apartment zu verkaufen in Playa Flamenca, Orihuela, Alicante

  • 94 m2
  • 3
  • 2

Beschreibung

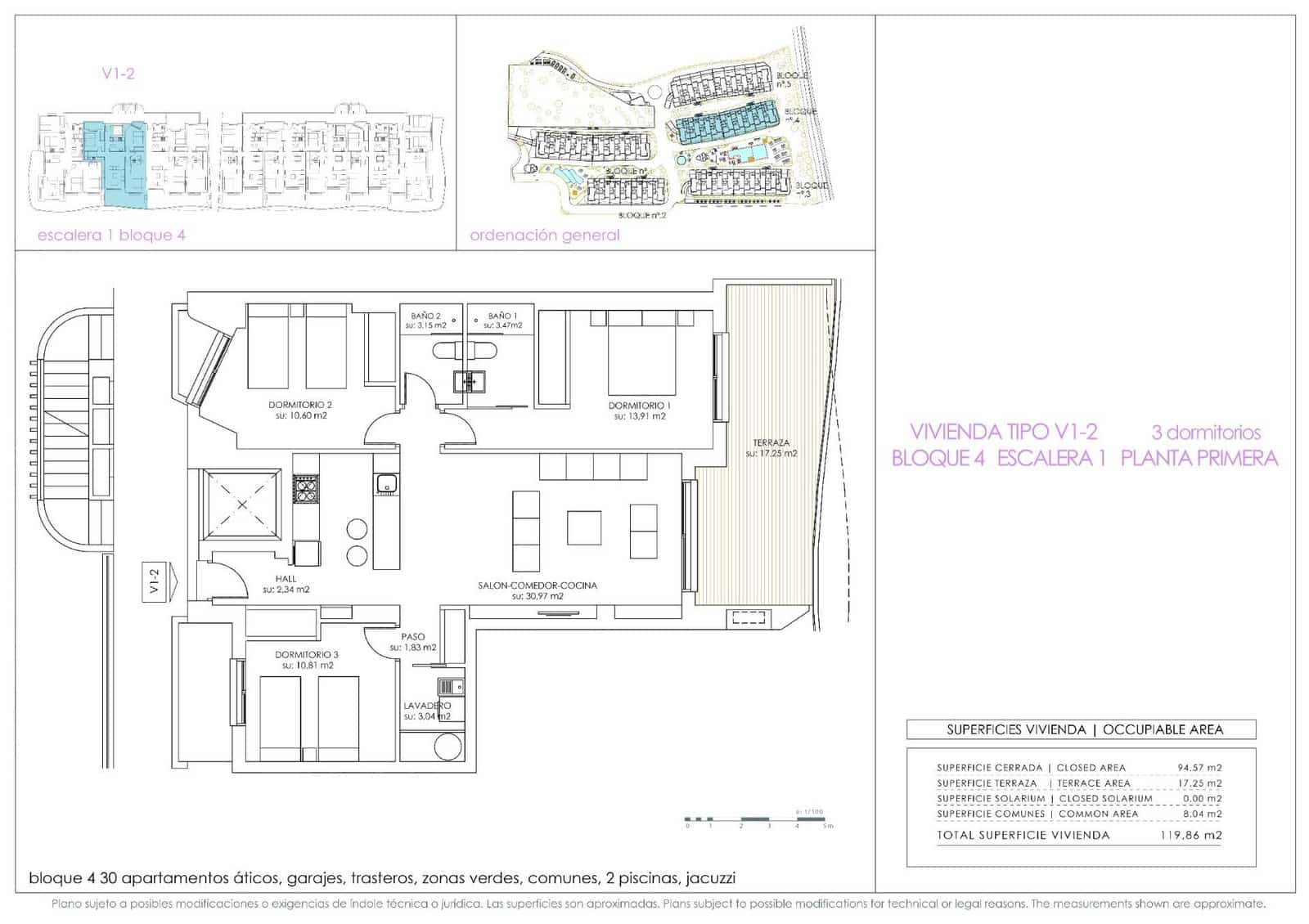
Neues Wohnhaus in Playa Flamenca bauen!

Von einem etablierten Bauträger sind wir stolz darauf, diese gerade neu eröffnete Wohnanlage nur 500 m vom Meer entfernt am beliebten Playa Flamenca (Orihuela Costa) anbieten zu können.

Wohnanlage mit schönen Gemeinschaftspools, Whirlpools und schönen Gemeinschaftsgärten. Alle Dienstleistungen wie Supermärkte, Bars und Restaurants usw. sind in einer sehr zentralen Lage in Orihuela Costa zu Fuß erreichbar.

Große Auswahl an Typen: Apartments mit 2, 3 oder 4 Schlafzimmern. Niedrige Etagen mit privaten Gärten oder oberste Etagen mit privaten Solarien. Alle Häuser verfügen über einen Parkplatz und einen Abstellraum im Preis inbegriffen.

Das Einkaufszentrum Zenia Boulevard 1 km entfernt und mehrere Golfplätze wie Villamartin, Campoamor im Umkreis von 5 km von dieser Wohnanlage machen einen idealen Ort für Ihren Urlaub oder Ihr dauerhaftes Leben.

802

Lage

Playa Flamenca, Orihuela, Alicante Der genaue Standort wurde nicht angegeben.

Eigenschaften

  • Apartment
  • Schlafzimmer: 3
  • Badezimmer: 2
  • Wohnfläche: 94 m2
  • Neubau
  • Privatgarten
  • Energieausweis (Verbrauch): B
  • Energieausweis (Emissionen): B

Wie können wir Ihnen helfen?

Haben Sie einen Fehler in der Anzeige entdeckt?

Teilen Sie uns den Fehler mit, den Sie gefunden haben, um ihn zu korrigieren

Kreditrechner

€
€
%

1.489 € pro Monat*

+ 48.600 € Steuern (46.900 €) & Ausgaben (1.700 €)*

*Bitte beachten Sie, dass die Ergebnisse nur ein Anhaltspunkt sind und kein Finanzierungsangebot oder Kostenvoranschlag darstellen.

Kontaktieren Sie den Anbieter

Wie können wir Ihnen helfen?

€

Eingabe ist erforderlich

Prüfen Sie den/die obigen Fehler
+34 851 813 358

Ref. 9550401

Mit dem Absenden dieses Formulars bestätigen Sie, dass Sie unsere Nutzungsbedingungen und Datenschutzerklärung akzeptieren.

Teilen

Ähnliche Immobilien

3 Zimmer Apartment zu verkaufen in Playa Flamenca, Orihuela mit Pool Garage - 450.000 € (Ref: 9642184) 3 Zimmer Apartment zu verkaufen in Playa Flamenca, Orihuela mit Pool - 395.000 € (Ref: 9642995) 3 Zimmer Apartment zu verkaufen in Playa Flamenca, Orihuela mit Pool Garage - 499.000 € (Ref: 9118120) 3 Zimmer Apartment zu verkaufen in Playa Flamenca, Orihuela mit Pool Garage - 522.000 € (Ref: 9308708)

Werbung

  1. Spanien
  2. Valencia
  3. Alicante
  4. Costa Blanca
  5. Orihuela
  6. Orihuela Costa
  7. Playa Flamenca
  8. 3 Zimmer Apartment zu verkaufen in Playa Flamenca, Orihuela - 469.000 € (Ref: 9550401)