thinkSPAIN Logo
  • Kaufen

    Immobilien zum Verkauf

    • Alle Immobilien zum Verkauf anzeigen
    • Starten Sie Ihre Suche mit unseren Filtern
    • Immobilien auf der Karte finden
    • Ihr persönliches Suchgebiet definieren
    • Standorte gezielt finden

    Beliebte Immobiliensuchen

    Einfamilienhäuser, Chalets, Bungalows Fincas, Landhäuser, Bauernhöfe Stadthäuser Wohnungen/Apartments
    Aufzug Garten Luxuriös Meerblick Neubau Parken/Garage Pool Terrasse/Balkon
    Alicante Almería Barcelona Benahavís Calvià Cartagena Costa Blanca Costa del Sol Dénia Estepona Girona Gran Canaria Ibiza Javea / Xàbia Madrid Mallorca Marbella Mazarrón Mijas Murcia Málaga Orihuela Palma de Mallorca Teneriffa Torrevieja Valencia
    Durchsuche alle Standorte und Immobilientypen
  • Mieten

    Immobilien zur Miete

    • Alle verfügbaren Mietobjekte entdecken
    • Ferienunterkünfte finden
    • Starten Sie Ihre Suche mit unseren Filtern
    • Mietobjekte auf der Karte finden
    • Ihr persönliches Suchgebiet definieren

    Beliebte Mietimmobiliensuchen

    Einfamilienhäuser, Chalets, Bungalows Fincas, Landhäuser, Bauernhöfe Stadthäuser Wohnungen/Apartments
    Aufzug Bergblick Garten Meerblick Neubau Parken/Garage Pool Terrasse/Balkon
    Alicante Almería Almuñécar Altea Barcelona Calvià Cartagena Costa Blanca Costa del Sol Dénia Estepona Gran Canaria Granada Ibiza Madrid Mallorca Marbella Murcia Málaga Orihuela Palma de Mallorca Teneriffa Torre-Pacheco Torrevieja Torrox Valencia
    Durchsuche alle Standorte und Immobilientypen
  • Verkaufen

    Ich möchte auf thinkSPAIN werben

    • Ich bin Immobilienmakler und möchte meine Immobilien anbieten
    • Ich bin Eigentümer und möchte meine Immobilie direkt inserieren

    Finden Sie einen Immobilienmakler in:

    Alicante Almería Barcelona Castellón Cádiz Girona Granada Málaga Tarragona Valencia
    Alle Immobilienmakler entdecken
  • Wo?

    Wo kaufen/mieten?

    • Finden Sie Orte basierend auf Ihrem Lebensstil (Standortfilter)
    • Entdecken Sie Standorte nach Eigenschaften und Angeboten
    • Standorte auf der Karte finden
    • Ihr persönliches Suchgebiet definieren

    Beliebte Ortssuchen

    Alicante Almería Barcelona Castellón Cádiz Girona Gran Canaria Granada Ibiza Madrid Mallorca Murcia Málaga Tarragona Teneriffa Valencia
  • Karte & Suchgebiet Definieren

    Finden Sie Immobilien mit unserer interaktiven Karte

    • Immobilien auf der Karte suchen
    • Ihr persönliches Suchgebiet definieren

    Beliebte Kartensuchen

    Alicante Almería Barcelona Benahavís Calvià Cartagena Costa Blanca Costa del Sol Dénia Estepona Girona Gran Canaria Ibiza Javea / Xàbia Madrid Mallorca Marbella Mazarrón Mijas Murcia Málaga Orihuela Palma de Mallorca Teneriffa Torrevieja Valencia
  • Wie können wir Ihnen helfen?

    • Ratgeber und Leitfäden
    • Verzeichnis für Branchen und Dienstleistungen
    • Anmeldebereich für Werbekunden
    • Werben mit thinkSPAIN

    Beliebte Suchen

    Juristen / Rechtsanwälte Hypothekenmakler Immobilienmakler Grundstückspflege / -management Devisenmakler Sachverständige Architekten / Architektonische Gestaltung Steuerberater
    Finanzen, Recht & Steuern Kaufen in Spanien Leben in Spanien Umziehen nach Spanien Finden Sie die richtige Immobilie Spanischer Lebensstil & Kultur Gebiete in Spanien Arbeiten in Spanien Rente in Spanien Top-Lagen & Immobilien Umzug Transport
thinkSPAIN Logo Immobilien

Haus zu verkaufen in Los Altos, Alicante

  • 340.000 €
  • 99 m2
  • 3
  • 2
  • 191 m2

340.000 € Ref. 9663196

Immobilien
Ref. 9663196
Anrufen
  • 3 Zimmer Haus zu verkaufen in Los Altos mit Pool Garage - 340.000 € (Ref: 9663196)
  • 3 Zimmer Haus zu verkaufen in Los Altos mit Pool Garage - 340.000 € (Ref: 9663196)
  • 3 Zimmer Haus zu verkaufen in Los Altos mit Pool Garage - 340.000 € (Ref: 9663196)
  • 3 Zimmer Haus zu verkaufen in Los Altos mit Pool Garage - 340.000 € (Ref: 9663196)
  • 3 Zimmer Haus zu verkaufen in Los Altos mit Pool Garage - 340.000 € (Ref: 9663196)
  • 3 Zimmer Haus zu verkaufen in Los Altos mit Pool Garage - 340.000 € (Ref: 9663196)
  • 3 Zimmer Haus zu verkaufen in Los Altos mit Pool Garage - 340.000 € (Ref: 9663196)
  • 3 Zimmer Haus zu verkaufen in Los Altos mit Pool Garage - 340.000 € (Ref: 9663196)
  • 3 Zimmer Haus zu verkaufen in Los Altos mit Pool Garage - 340.000 € (Ref: 9663196)
  • 3 Zimmer Haus zu verkaufen in Los Altos mit Pool Garage - 340.000 € (Ref: 9663196)
  • 3 Zimmer Haus zu verkaufen in Los Altos mit Pool Garage - 340.000 € (Ref: 9663196)
  • 3 Zimmer Haus zu verkaufen in Los Altos mit Pool Garage - 340.000 € (Ref: 9663196)
  • 3 Zimmer Haus zu verkaufen in Los Altos mit Pool Garage - 340.000 € (Ref: 9663196)
1/13

340.000 €

Haus zu verkaufen in Los Altos, Alicante

  • 99 m2
  • 3
  • 2
  • 191 m2

Beschreibung

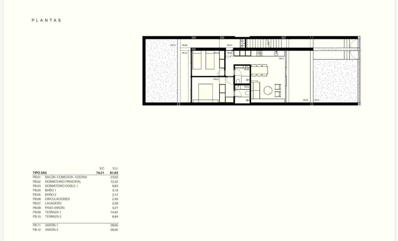
Mirasal II Duplex, Preise ab 340.000 €. Neubau von schönen Duplex-Eigentumswohnungen, sie verfügen über 3 Schlafzimmer und 2 Badezimmer sowie einen Dachboden-Solarium. Sie haben auch eine Garage und einen Abstellraum inklusive. Sie werden unmöbliert geliefert, damit Sie Ihren eigenen Einrichtungsstil wählen können. Schönes, umzäuntes Wohngebiet mit gemeinschaftlichem Pool und gemeinschaftlichen Gärten. Befindet sich im Los Altos Gebiet in der Nähe des Salzwassersees von Torrevieja.

Lage

Los Altos, Alicante Der genaue Standort wurde nicht angegeben.

Eigenschaften

  • Haus
  • Schlafzimmer: 3
  • Badezimmer: 2
  • Wohnfläche: 99 m2
  • Grundstück: 191 m2
  • Neubau
  • Gemeinschaftspool
  • Parken/Garage
  • Gemeinschaftsgarten
  • Terrasse/Balkon
  • Einbauschränke
  • Energieeffizienzklasse: in Bearbeitung

Wie können wir Ihnen helfen?

Haben Sie einen Fehler in der Anzeige entdeckt?

Teilen Sie uns den Fehler mit, den Sie gefunden haben, um ihn zu korrigieren

Kreditrechner

€
€
%

1.079 € pro Monat*

+ 35.700 € Steuern (34.000 €) & Ausgaben (1.700 €)*

*Bitte beachten Sie, dass die Ergebnisse nur ein Anhaltspunkt sind und kein Finanzierungsangebot oder Kostenvoranschlag darstellen.

Kontaktieren Sie den Anbieter

Wie können wir Ihnen helfen?

€

Eingabe ist erforderlich

Prüfen Sie den/die obigen Fehler
+34 865 445 780

Ref. 9663196

Mit dem Absenden dieses Formulars bestätigen Sie, dass Sie unsere Nutzungsbedingungen und Datenschutzerklärung akzeptieren.

Teilen

Ähnliche Immobilien

3 Zimmer Haus zu verkaufen in Los Altos mit Pool - 288.000 € (Ref: 9559576) 3 Zimmer Haus zu verkaufen in Los Altos mit Pool - 288.000 € (Ref: 9013513) 3 Zimmer Haus zu verkaufen in Los Altos mit Pool - 288.000 € (Ref: 9133173) 3 Zimmer Haus zu verkaufen in Los Altos mit Pool - 288.000 € (Ref: 9497659)

Werbung

  1. Spanien
  2. Valencia
  3. Alicante
  4. Costa Blanca
  5. Los Altos
  6. 3 Zimmer Haus zu verkaufen in Los Altos mit Pool Garage - 340.000 € (Ref: 9663196)