thinkSPAIN Logo
  • Kaufen

    Immobilien zum Verkauf

    • Alle Immobilien zum Verkauf anzeigen
    • Starten Sie Ihre Suche mit unseren Filtern
    • Immobilien auf der Karte finden
    • Ihr persönliches Suchgebiet definieren
    • Standorte gezielt finden

    Beliebte Immobiliensuchen

    Einfamilienhäuser, Chalets, Bungalows Fincas, Landhäuser, Bauernhöfe Stadthäuser Wohnungen/Apartments
    Aufzug Garten Luxuriös Meerblick Neubau Parken/Garage Pool Terrasse/Balkon
    Alicante Almería Barcelona Benahavís Calvià Cartagena Costa Blanca Costa del Sol Dénia Estepona Girona Gran Canaria Ibiza Javea / Xàbia Madrid Mallorca Marbella Mazarrón Mijas Murcia Málaga Orihuela Palma de Mallorca Teneriffa Torrevieja Valencia
    Durchsuche alle Standorte und Immobilientypen
  • Mieten

    Immobilien zur Miete

    • Alle verfügbaren Mietobjekte entdecken
    • Ferienunterkünfte finden
    • Starten Sie Ihre Suche mit unseren Filtern
    • Mietobjekte auf der Karte finden
    • Ihr persönliches Suchgebiet definieren

    Beliebte Mietimmobiliensuchen

    Einfamilienhäuser, Chalets, Bungalows Fincas, Landhäuser, Bauernhöfe Stadthäuser Wohnungen/Apartments
    Aufzug Bergblick Garten Meerblick Neubau Parken/Garage Pool Terrasse/Balkon
    Alicante Almería Almuñécar Altea Barcelona Calvià Cartagena Costa Blanca Costa del Sol Dénia Estepona Gran Canaria Granada Ibiza Madrid Mallorca Marbella Murcia Málaga Orihuela Palma de Mallorca San Javier Teneriffa Torrevieja Torrox Valencia
    Durchsuche alle Standorte und Immobilientypen
  • Verkaufen

    Ich möchte auf thinkSPAIN werben

    • Ich bin Immobilienmakler und möchte meine Immobilien anbieten
    • Ich bin Eigentümer und möchte meine Immobilie direkt inserieren

    Finden Sie einen Immobilienmakler in:

    Alicante Almería Barcelona Castellón Cádiz Girona Granada Málaga Tarragona Valencia
    Alle Immobilienmakler entdecken
  • Wo?

    Wo kaufen/mieten?

    • Finden Sie Orte basierend auf Ihrem Lebensstil (Standortfilter)
    • Entdecken Sie Standorte nach Eigenschaften und Angeboten
    • Standorte auf der Karte finden
    • Ihr persönliches Suchgebiet definieren

    Beliebte Ortssuchen

    Alicante Almería Barcelona Castellón Cádiz Girona Gran Canaria Granada Ibiza Madrid Mallorca Murcia Málaga Tarragona Teneriffa Valencia
  • Karte & Suchgebiet Definieren

    Finden Sie Immobilien mit unserer interaktiven Karte

    • Immobilien auf der Karte suchen
    • Ihr persönliches Suchgebiet definieren

    Beliebte Kartensuchen

    Alicante Almería Barcelona Benahavís Calvià Cartagena Costa Blanca Costa del Sol Dénia Estepona Girona Gran Canaria Ibiza Javea / Xàbia Madrid Mallorca Marbella Mazarrón Mijas Murcia Málaga Orihuela Palma de Mallorca Teneriffa Torrevieja Valencia
  • Verzeichnis

    Wonach suchen Sie?

    • Immobilienmakler
    • Sachverständige
    • Architekten / Architektonische Gestaltung
    • Juristen / Rechtsanwälte
    • Steuerberater
    • Devisenmakler
    • Hypothekenmakler
    • Grundstückspflege / -management

    Letzte Suchanfragen

    Immobilienmakler in Alicante Juristen / Rechtsanwälte in Orihuela Immobilienmakler in Orihuela Juristen / Rechtsanwälte in Alicante Immobilienmakler in San Fulgencio Immobilienmakler in Oliva Architekten / Architektonische Gestaltung in Dénia Hypothekenmakler in Madrid Stadt Immobilienmakler in Alcalá la Real Immobilienmakler in Marbella Immobilienmakler in Costa Brava Immobilienmakler in Benitachell / Benitatxell Juristen / Rechtsanwälte in Orihuela Juristen / Rechtsanwälte in Alicante
  • Hilfe & Infos

    Wie können wir Ihnen helfen?

    • Ratgeber und Leitfäden
    • Login für Anbieter
    • Werben mit thinkSPAIN

    Beliebte Suchen

    Kaufen in Spanien Umziehen nach Spanien Rente in Spanien Leben in Spanien Arbeiten in Spanien Top-Lagen & Immobilien Finanzen, Recht & Steuern Finden Sie die richtige Immobilie Spanischer Lebensstil & Kultur Gebiete in Spanien Umzug Transport Gesundheit Haushalt Immobilienmarkt Alicante Sprachen & Integration Sicherheit Selbständigkeit Einen Job finden
  • Login für Anbieter
thinkSPAIN Logo Immobilien

Reihenhaus zu verkaufen in Churriana de la Vega, Granada

  • 345.000 €
  • 232 m2
  • 4
  • 3
Immobilien

345.000 €

Ref. 9762174

Anrufen
  • 4 Zimmer Reihenhaus zu verkaufen in Churriana de la Vega mit Garage - 345.000 € (Ref: 9762174)
  • 4 Zimmer Reihenhaus zu verkaufen in Churriana de la Vega mit Garage - 345.000 € (Ref: 9762174)
  • 4 Zimmer Reihenhaus zu verkaufen in Churriana de la Vega mit Garage - 345.000 € (Ref: 9762174)
  • 4 Zimmer Reihenhaus zu verkaufen in Churriana de la Vega mit Garage - 345.000 € (Ref: 9762174)
  • 4 Zimmer Reihenhaus zu verkaufen in Churriana de la Vega mit Garage - 345.000 € (Ref: 9762174)
  • 4 Zimmer Reihenhaus zu verkaufen in Churriana de la Vega mit Garage - 345.000 € (Ref: 9762174)
  • 4 Zimmer Reihenhaus zu verkaufen in Churriana de la Vega mit Garage - 345.000 € (Ref: 9762174)
  • 4 Zimmer Reihenhaus zu verkaufen in Churriana de la Vega mit Garage - 345.000 € (Ref: 9762174)
  • 4 Zimmer Reihenhaus zu verkaufen in Churriana de la Vega mit Garage - 345.000 € (Ref: 9762174)
  • 4 Zimmer Reihenhaus zu verkaufen in Churriana de la Vega mit Garage - 345.000 € (Ref: 9762174)
  • 4 Zimmer Reihenhaus zu verkaufen in Churriana de la Vega mit Garage - 345.000 € (Ref: 9762174)
  • 4 Zimmer Reihenhaus zu verkaufen in Churriana de la Vega mit Garage - 345.000 € (Ref: 9762174)
  • 4 Zimmer Reihenhaus zu verkaufen in Churriana de la Vega mit Garage - 345.000 € (Ref: 9762174)
  • 4 Zimmer Reihenhaus zu verkaufen in Churriana de la Vega mit Garage - 345.000 € (Ref: 9762174)
  • 4 Zimmer Reihenhaus zu verkaufen in Churriana de la Vega mit Garage - 345.000 € (Ref: 9762174)
  • 4 Zimmer Reihenhaus zu verkaufen in Churriana de la Vega mit Garage - 345.000 € (Ref: 9762174)
  • 4 Zimmer Reihenhaus zu verkaufen in Churriana de la Vega mit Garage - 345.000 € (Ref: 9762174)
  • 4 Zimmer Reihenhaus zu verkaufen in Churriana de la Vega mit Garage - 345.000 € (Ref: 9762174)
  • 4 Zimmer Reihenhaus zu verkaufen in Churriana de la Vega mit Garage - 345.000 € (Ref: 9762174)
  • 4 Zimmer Reihenhaus zu verkaufen in Churriana de la Vega mit Garage - 345.000 € (Ref: 9762174)
  • 4 Zimmer Reihenhaus zu verkaufen in Churriana de la Vega mit Garage - 345.000 € (Ref: 9762174)
  • 4 Zimmer Reihenhaus zu verkaufen in Churriana de la Vega mit Garage - 345.000 € (Ref: 9762174)
  • 4 Zimmer Reihenhaus zu verkaufen in Churriana de la Vega mit Garage - 345.000 € (Ref: 9762174)
  • 4 Zimmer Reihenhaus zu verkaufen in Churriana de la Vega mit Garage - 345.000 € (Ref: 9762174)
  • 4 Zimmer Reihenhaus zu verkaufen in Churriana de la Vega mit Garage - 345.000 € (Ref: 9762174)
  • 4 Zimmer Reihenhaus zu verkaufen in Churriana de la Vega mit Garage - 345.000 € (Ref: 9762174)
  • 4 Zimmer Reihenhaus zu verkaufen in Churriana de la Vega mit Garage - 345.000 € (Ref: 9762174)
  • 4 Zimmer Reihenhaus zu verkaufen in Churriana de la Vega mit Garage - 345.000 € (Ref: 9762174)
  • 4 Zimmer Reihenhaus zu verkaufen in Churriana de la Vega mit Garage - 345.000 € (Ref: 9762174)
  • 4 Zimmer Reihenhaus zu verkaufen in Churriana de la Vega mit Garage - 345.000 € (Ref: 9762174)
  • 4 Zimmer Reihenhaus zu verkaufen in Churriana de la Vega mit Garage - 345.000 € (Ref: 9762174)
  • 4 Zimmer Reihenhaus zu verkaufen in Churriana de la Vega mit Garage - 345.000 € (Ref: 9762174)
  • 4 Zimmer Reihenhaus zu verkaufen in Churriana de la Vega mit Garage - 345.000 € (Ref: 9762174)
  • 4 Zimmer Reihenhaus zu verkaufen in Churriana de la Vega mit Garage - 345.000 € (Ref: 9762174)
  • 4 Zimmer Reihenhaus zu verkaufen in Churriana de la Vega mit Garage - 345.000 € (Ref: 9762174)
  • 4 Zimmer Reihenhaus zu verkaufen in Churriana de la Vega mit Garage - 345.000 € (Ref: 9762174)
  • 4 Zimmer Reihenhaus zu verkaufen in Churriana de la Vega mit Garage - 345.000 € (Ref: 9762174)
  • 4 Zimmer Reihenhaus zu verkaufen in Churriana de la Vega mit Garage - 345.000 € (Ref: 9762174)
  • 4 Zimmer Reihenhaus zu verkaufen in Churriana de la Vega mit Garage - 345.000 € (Ref: 9762174)
  • 4 Zimmer Reihenhaus zu verkaufen in Churriana de la Vega mit Garage - 345.000 € (Ref: 9762174)
  • 4 Zimmer Reihenhaus zu verkaufen in Churriana de la Vega mit Garage - 345.000 € (Ref: 9762174)
  • 4 Zimmer Reihenhaus zu verkaufen in Churriana de la Vega mit Garage - 345.000 € (Ref: 9762174)
  • 4 Zimmer Reihenhaus zu verkaufen in Churriana de la Vega mit Garage - 345.000 € (Ref: 9762174)
  • 4 Zimmer Reihenhaus zu verkaufen in Churriana de la Vega mit Garage - 345.000 € (Ref: 9762174)
  • 4 Zimmer Reihenhaus zu verkaufen in Churriana de la Vega mit Garage - 345.000 € (Ref: 9762174)
  • 4 Zimmer Reihenhaus zu verkaufen in Churriana de la Vega mit Garage - 345.000 € (Ref: 9762174)
  • 4 Zimmer Reihenhaus zu verkaufen in Churriana de la Vega mit Garage - 345.000 € (Ref: 9762174)
  • 4 Zimmer Reihenhaus zu verkaufen in Churriana de la Vega mit Garage - 345.000 € (Ref: 9762174)
  • 4 Zimmer Reihenhaus zu verkaufen in Churriana de la Vega mit Garage - 345.000 € (Ref: 9762174)
  • 4 Zimmer Reihenhaus zu verkaufen in Churriana de la Vega mit Garage - 345.000 € (Ref: 9762174)
1/50

345.000 €

Reihenhaus zu verkaufen in Churriana de la Vega, Granada

  • 232 m2
  • 4
  • 3

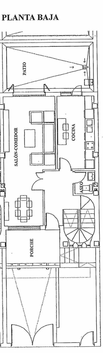
Beschreibung

Das Design-Chalet, nach dem alle suchen, in der Vial de Churriana, das fast nie zum Verkauf steht.

In der begehrtesten Gegend von Churriana de la Vega, direkt an der gefragten Vial und mit unmittelbarem Anschluss an die U-Bahn und das Zentrum von Granada, befindet sich dieses Wohnhaus, das das bietet, was nur sehr wenige bieten können: Top-Lage + Premium-Design + echte Weite.

Hier hast du absolut alles: U-Bahn in wenigen Minuten, Supermärkte, Schulen, Geschäfte, Dienstleistungen… und eines der Gebiete mit der höchsten Nachfrage und Wertsteigerung im Metropolgürtel von Granada. Hier zu kaufen bedeutet nicht nur gut zu leben. Es ist eine intelligente Investition.

Beim Betreten des Hauses empfängt uns eine wunderschöne und gemütliche Veranda, ideal für deine Entspannungsmomente.

Von dem ersten Schritt im Inneren an strahlt das Haus Solidität, Design und Qualität aus. Das Wohnzimmer ist sehr geräumig und verteilt sich auf zwei unterschiedliche Bereiche, perfekt um einen Wohn- und Essbereich zu schaffen, mit direktem Zugang zu einem wunderschönen privaten Patio, wo Sommerabende und Familienzusammenkünfte zur Routine werden.

Es verfügt über 4 Schlafzimmer, aber eines verdient ein eigenes Kapitel, das Zimmer im Turm. Riesig. Exklusiv. Mit zwei privaten Terrassen und offenem Blick auf Granada. Ein einzigartiger Raum, der dein Traumarbeitszimmer oder dein lichtdurchflutetes privates Refugium sein kann.

Die Wohnung hat 3 Bäder (eines davon ist ein Gäste-WC im Erdgeschoss und ein weiteres Bad en suite), die für den täglichen Komfort gedacht sind.

Die Küche ist komplett ausgestattet, bereit zur Nutzung ab dem ersten Tag, funktional und elegant.

Und wenn wir von Weite sprechen… meinen wir es ernst.

Die Garage ist einfach spektakulär: motorisierte Türen und Platz für bis zu 4 Fahrzeuge. Etwas, das in der Gegend praktisch unmöglich zu finden ist und einen absoluten Unterschied macht.

Was den Komfort betrifft: Gasheizung und eine Vorinstallation für Klimaanlage durch Kanäle im gesamten Haus.

Ein Haus, das dafür gedacht ist, gelebt und genossen zu werden, ohne dass etwas fehlt.

Solche Wohnungen in der Vial de Churriana bleiben nicht lange auf dem Markt.
Bereich mit extrem hoher Nachfrage im Ballungsraum.
Strategische Lage neben der U-Bahn und der Hauptstadt Granada.

Es ist nicht nur ein Reihenhaus.
Es ist eine echte Gelegenheit, in einer der besten Gegenden rund um Granada zu leben.

Wenn du auf etwas Besonderes wartest… ist es gerade erschienen. Und es wird nicht lange warten.

Lage

Churriana de la Vega, Granada Standort wurde zur Verfügung gestellt

Eigenschaften

  • Reihenhaus
  • Schlafzimmer: 4
  • Badezimmer: 3
  • Wohnfläche: 232 m2
  • Parken/Garage
  • Klimaanlage
  • Terrasse/Balkon
  • Einbauschränke
  • Energieausweis (Verbrauch): D
  • Energieausweis (Emissionen): D

Wie können wir Ihnen helfen?

Haben Sie einen Fehler in der Anzeige entdeckt?

Teilen Sie uns den Fehler mit, den Sie gefunden haben, um ihn zu korrigieren

Kreditrechner

€
€
%

1.095 € pro Monat*

+ 25.850 € Steuern (24.150 €) & Ausgaben (1.700 €)*

*Bitte beachten Sie, dass die Ergebnisse nur ein Anhaltspunkt sind und kein Finanzierungsangebot oder Kostenvoranschlag darstellen.

Kontaktieren Sie den Anbieter

Wie können wir Ihnen helfen?

€

Eingabe ist erforderlich

Prüfen Sie den/die obigen Fehler
+34 858 800 050

Ref. 9762174

Mit dem Absenden dieses Formulars bestätigen Sie, dass Sie unsere Nutzungsbedingungen und Datenschutzerklärung akzeptieren.

Teilen

Ähnliche Immobilien

3 Zimmer Reihenhaus zu verkaufen in Las Gabias mit Pool Garage - 279.000 € (Ref: 9652256) 4 Zimmer Reihenhaus zu verkaufen in Las Gabias mit Garage - 310.000 € (Ref: 9675000) 3 Zimmer Reihenhaus zu verkaufen in Armilla mit Garage - 300.000 € (Ref: 1835938) 4 Zimmer Reihenhaus zu verkaufen in Armilla mit Garage - 349.500 € (Ref: 9341110)

Werbung

  1. Spanien
  2. Andalusien
  3. Granada
  4. Churriana de la Vega
  5. 4 Zimmer Reihenhaus zu verkaufen in Churriana de la Vega mit Garage - 345.000 € (Ref: 9762174)
Anrufen