thinkSPAIN Logo
  • Comprar

    Propiedades en venta

    • Ver todas las propiedades en venta
    • Empieza tu búsqueda usando los filtros
    • Busca propiedades en el mapa
    • Dibuja tu zona de búsqueda
    • Utiliza los filtros de ubicación

    Búsquedas inmobiliarias populares

    Casas Casas Rurales, Fincas Chalets, Bungalows Pisos/Apartamentos
    Ascensor Jardín Lujo Obra nueva Parking/Garaje Piscina Terraza/Balcón Vistas al mar
    Alicante Almería Barcelona Benahavís Calpe / Calp Calvià Cartagena Costa Blanca Costa del Sol Dénia Estepona Girona Gran Canaria Ibiza Madrid Mallorca Marbella Mazarrón Mijas Murcia Málaga Orihuela Palma de Mallorca Tenerife Torrevieja Valencia
    Ver todas las ubicaciones y tipos de propiedades
  • Alquilar

    Propiedades en alquiler

    • Ver todas las propiedades en alquiler
    • Alquileres vacacionales
    • Empieza tu búsqueda usando los filtros
    • Busca propiedades en el mapa
    • Dibuja tu zona de búsqueda

    Búsquedas de alquiler populares

    Casas Casas Rurales, Fincas Chalets, Bungalows Pisos/Apartamentos
    Ascensor Jardín Parking/Garaje Piscina Primera línea de mar/playa Terraza/Balcón Vistas al mar Vistas de la montaña
    Alicante Almería Almuñécar Altea Barcelona Calvià Cartagena Costa Blanca Costa del Sol Dénia Estepona Gran Canaria Granada Ibiza Madrid Mallorca Marbella Murcia Málaga Orihuela Palma de Mallorca San Javier Tenerife Torrevieja Torrox Valencia
    Ver todas las ubicaciones y tipos de propiedades
  • Vender

    Quiero publicar en thinkSPAIN

    • Soy una agencia inmobiliaria y quiero publicar mis propiedades
    • Soy propietario y quiero anunciar mi propiedad directamente

    Busco una agencia inmobiliaria en:

    Alicante Almería Barcelona Castellón Cádiz Girona Granada Málaga Tarragona Valencia
    Ver todas las inmobiliarias
  • ¿Dónde?

    ¿Dónde comprar/alquilar?

    • Encuentra zonas según tu estilo de vida (Filtros de ubicación)
    • Explora ubicaciones por características/servicios
    • Busca propiedades en el mapa
    • Dibuja tu zona de búsqueda

    Búsquedas de ubicaciones populares

    Alicante Almería Barcelona Castellón Cádiz Girona Gran Canaria Granada Ibiza Madrid Mallorca Murcia Málaga Tarragona Tenerife Valencia
  • Mapa / Dibuja tu zona

    Encuentra propiedades con nuestro mapa interactivo

    • Busca propiedades en el mapa
    • Dibuja tu zona de búsqueda

    Búsquedas en el mapa populares

    Alicante Almería Barcelona Benahavís Calpe / Calp Calvià Cartagena Costa Blanca Costa del Sol Dénia Estepona Girona Gran Canaria Ibiza Madrid Mallorca Marbella Mazarrón Mijas Murcia Málaga Orihuela Palma de Mallorca Tenerife Torrevieja Valencia
  • Directorio

    ¿Qué busca?

    • Inmobiliarias
    • Aparejadores
    • Arquitectos / Diseño Arquitectónico
    • Abogados
    • Asesor fiscal
    • Agentes de divisas
    • Agentes Hipotecarios
    • Mantenimiento / Gestión de Propiedades

    Búsquedas recientes

    Abogados en Costa Blanca Abogados en Costa Cálida Inmobiliarias en Almuñécar Abogados en Huelva Inmobiliarias en Arona Inmobiliarias en Torre-Pacheco Abogados en Javea / Xàbia Abogados en Orihuela Inmobiliarias en San Pedro del Pinatar Arquitectos / Diseño Arquitectónico en Costa Valencia Inmobiliarias en Costa de la Luz Inmobiliarias en Conil de la Frontera Inmobiliarias en Madrid ciudad Inmobiliarias en Casares
  • Ayuda e información

    ¿Cómo podemos ayudarte?

    • Artículos y guías
    • Acceso anunciantes
    • Anunciar propiedades en thinkSPAIN

    Búsquedas populares

    Comprar tu casa Vivir en España Noticias Mercado Inmobiliario Finanzas, asuntos legales e impuestos Mercado Inmobiliario Encuentra la propiedad ideal Estilo de vida y cultura Seguridad Actividades Hogar Zonas Proceso de traslado Inmobiliarias
  • Acceso anunciantes
thinkSPAIN Logo Propiedades

Finca/Casa Rural en venta en Canyamel, Capdepera, Mallorca

  • 4.400.000 €
  • 550 m2
  • 4
  • 5
  • 78519 m2
Propiedades

4.400.000 €

Ref. 9474531

Llamar
  • Finca/Casa Rural de 4 habitaciones en Canyamel en venta con piscina garaje - 4.400.000 € (Ref: 9474531)
  • Finca/Casa Rural de 4 habitaciones en Canyamel en venta con piscina garaje - 4.400.000 € (Ref: 9474531)
  • Finca/Casa Rural de 4 habitaciones en Canyamel en venta con piscina garaje - 4.400.000 € (Ref: 9474531)
  • Finca/Casa Rural de 4 habitaciones en Canyamel en venta con piscina garaje - 4.400.000 € (Ref: 9474531)
  • Finca/Casa Rural de 4 habitaciones en Canyamel en venta con piscina garaje - 4.400.000 € (Ref: 9474531)
  • Finca/Casa Rural de 4 habitaciones en Canyamel en venta con piscina garaje - 4.400.000 € (Ref: 9474531)
  • Finca/Casa Rural de 4 habitaciones en Canyamel en venta con piscina garaje - 4.400.000 € (Ref: 9474531)
  • Finca/Casa Rural de 4 habitaciones en Canyamel en venta con piscina garaje - 4.400.000 € (Ref: 9474531)
  • Finca/Casa Rural de 4 habitaciones en Canyamel en venta con piscina garaje - 4.400.000 € (Ref: 9474531)
  • Finca/Casa Rural de 4 habitaciones en Canyamel en venta con piscina garaje - 4.400.000 € (Ref: 9474531)
  • Finca/Casa Rural de 4 habitaciones en Canyamel en venta con piscina garaje - 4.400.000 € (Ref: 9474531)
  • Finca/Casa Rural de 4 habitaciones en Canyamel en venta con piscina garaje - 4.400.000 € (Ref: 9474531)
  • Finca/Casa Rural de 4 habitaciones en Canyamel en venta con piscina garaje - 4.400.000 € (Ref: 9474531)
  • Finca/Casa Rural de 4 habitaciones en Canyamel en venta con piscina garaje - 4.400.000 € (Ref: 9474531)
  • Finca/Casa Rural de 4 habitaciones en Canyamel en venta con piscina garaje - 4.400.000 € (Ref: 9474531)
  • Finca/Casa Rural de 4 habitaciones en Canyamel en venta con piscina garaje - 4.400.000 € (Ref: 9474531)
  • Finca/Casa Rural de 4 habitaciones en Canyamel en venta con piscina garaje - 4.400.000 € (Ref: 9474531)
  • Finca/Casa Rural de 4 habitaciones en Canyamel en venta con piscina garaje - 4.400.000 € (Ref: 9474531)
  • Finca/Casa Rural de 4 habitaciones en Canyamel en venta con piscina garaje - 4.400.000 € (Ref: 9474531)
  • Finca/Casa Rural de 4 habitaciones en Canyamel en venta con piscina garaje - 4.400.000 € (Ref: 9474531)
  • Finca/Casa Rural de 4 habitaciones en Canyamel en venta con piscina garaje - 4.400.000 € (Ref: 9474531)
  • Finca/Casa Rural de 4 habitaciones en Canyamel en venta con piscina garaje - 4.400.000 € (Ref: 9474531)
  • Finca/Casa Rural de 4 habitaciones en Canyamel en venta con piscina garaje - 4.400.000 € (Ref: 9474531)
  • Finca/Casa Rural de 4 habitaciones en Canyamel en venta con piscina garaje - 4.400.000 € (Ref: 9474531)
  • Finca/Casa Rural de 4 habitaciones en Canyamel en venta con piscina garaje - 4.400.000 € (Ref: 9474531)
  • Finca/Casa Rural de 4 habitaciones en Canyamel en venta con piscina garaje - 4.400.000 € (Ref: 9474531)
  • Finca/Casa Rural de 4 habitaciones en Canyamel en venta con piscina garaje - 4.400.000 € (Ref: 9474531)
  • Finca/Casa Rural de 4 habitaciones en Canyamel en venta con piscina garaje - 4.400.000 € (Ref: 9474531)
  • Finca/Casa Rural de 4 habitaciones en Canyamel en venta con piscina garaje - 4.400.000 € (Ref: 9474531)
  • Finca/Casa Rural de 4 habitaciones en Canyamel en venta con piscina garaje - 4.400.000 € (Ref: 9474531)
  • Finca/Casa Rural de 4 habitaciones en Canyamel en venta con piscina garaje - 4.400.000 € (Ref: 9474531)
  • Finca/Casa Rural de 4 habitaciones en Canyamel en venta con piscina garaje - 4.400.000 € (Ref: 9474531)
  • Finca/Casa Rural de 4 habitaciones en Canyamel en venta con piscina garaje - 4.400.000 € (Ref: 9474531)
  • Finca/Casa Rural de 4 habitaciones en Canyamel en venta con piscina garaje - 4.400.000 € (Ref: 9474531)
  • Finca/Casa Rural de 4 habitaciones en Canyamel en venta con piscina garaje - 4.400.000 € (Ref: 9474531)
  • Finca/Casa Rural de 4 habitaciones en Canyamel en venta con piscina garaje - 4.400.000 € (Ref: 9474531)
  • Finca/Casa Rural de 4 habitaciones en Canyamel en venta con piscina garaje - 4.400.000 € (Ref: 9474531)
  • Finca/Casa Rural de 4 habitaciones en Canyamel en venta con piscina garaje - 4.400.000 € (Ref: 9474531)
  • Finca/Casa Rural de 4 habitaciones en Canyamel en venta con piscina garaje - 4.400.000 € (Ref: 9474531)
  • Finca/Casa Rural de 4 habitaciones en Canyamel en venta con piscina garaje - 4.400.000 € (Ref: 9474531)
  • Finca/Casa Rural de 4 habitaciones en Canyamel en venta con piscina garaje - 4.400.000 € (Ref: 9474531)
  • Finca/Casa Rural de 4 habitaciones en Canyamel en venta con piscina garaje - 4.400.000 € (Ref: 9474531)
  • Finca/Casa Rural de 4 habitaciones en Canyamel en venta con piscina garaje - 4.400.000 € (Ref: 9474531)
  • Finca/Casa Rural de 4 habitaciones en Canyamel en venta con piscina garaje - 4.400.000 € (Ref: 9474531)
  • Finca/Casa Rural de 4 habitaciones en Canyamel en venta con piscina garaje - 4.400.000 € (Ref: 9474531)
  • Finca/Casa Rural de 4 habitaciones en Canyamel en venta con piscina garaje - 4.400.000 € (Ref: 9474531)
  • Finca/Casa Rural de 4 habitaciones en Canyamel en venta con piscina garaje - 4.400.000 € (Ref: 9474531)
  • Finca/Casa Rural de 4 habitaciones en Canyamel en venta con piscina garaje - 4.400.000 € (Ref: 9474531)
  • Finca/Casa Rural de 4 habitaciones en Canyamel en venta con piscina garaje - 4.400.000 € (Ref: 9474531)
  • Finca/Casa Rural de 4 habitaciones en Canyamel en venta con piscina garaje - 4.400.000 € (Ref: 9474531)
  • Finca/Casa Rural de 4 habitaciones en Canyamel en venta con piscina garaje - 4.400.000 € (Ref: 9474531)
  • Finca/Casa Rural de 4 habitaciones en Canyamel en venta con piscina garaje - 4.400.000 € (Ref: 9474531)
  • Finca/Casa Rural de 4 habitaciones en Canyamel en venta con piscina garaje - 4.400.000 € (Ref: 9474531)
  • Finca/Casa Rural de 4 habitaciones en Canyamel en venta con piscina garaje - 4.400.000 € (Ref: 9474531)
  • Finca/Casa Rural de 4 habitaciones en Canyamel en venta con piscina garaje - 4.400.000 € (Ref: 9474531)
  • Finca/Casa Rural de 4 habitaciones en Canyamel en venta con piscina garaje - 4.400.000 € (Ref: 9474531)
  • Finca/Casa Rural de 4 habitaciones en Canyamel en venta con piscina garaje - 4.400.000 € (Ref: 9474531)
  • Finca/Casa Rural de 4 habitaciones en Canyamel en venta con piscina garaje - 4.400.000 € (Ref: 9474531)
  • Finca/Casa Rural de 4 habitaciones en Canyamel en venta con piscina garaje - 4.400.000 € (Ref: 9474531)
  • Finca/Casa Rural de 4 habitaciones en Canyamel en venta con piscina garaje - 4.400.000 € (Ref: 9474531)
  • Finca/Casa Rural de 4 habitaciones en Canyamel en venta con piscina garaje - 4.400.000 € (Ref: 9474531)
  • Finca/Casa Rural de 4 habitaciones en Canyamel en venta con piscina garaje - 4.400.000 € (Ref: 9474531)
  • Finca/Casa Rural de 4 habitaciones en Canyamel en venta con piscina garaje - 4.400.000 € (Ref: 9474531)
  • Finca/Casa Rural de 4 habitaciones en Canyamel en venta con piscina garaje - 4.400.000 € (Ref: 9474531)
  • Finca/Casa Rural de 4 habitaciones en Canyamel en venta con piscina garaje - 4.400.000 € (Ref: 9474531)
  • Finca/Casa Rural de 4 habitaciones en Canyamel en venta con piscina garaje - 4.400.000 € (Ref: 9474531)
  • Finca/Casa Rural de 4 habitaciones en Canyamel en venta con piscina garaje - 4.400.000 € (Ref: 9474531)
  • Finca/Casa Rural de 4 habitaciones en Canyamel en venta con piscina garaje - 4.400.000 € (Ref: 9474531)
  • Finca/Casa Rural de 4 habitaciones en Canyamel en venta con piscina garaje - 4.400.000 € (Ref: 9474531)
  • Finca/Casa Rural de 4 habitaciones en Canyamel en venta con piscina garaje - 4.400.000 € (Ref: 9474531)
  • Finca/Casa Rural de 4 habitaciones en Canyamel en venta con piscina garaje - 4.400.000 € (Ref: 9474531)
  • Finca/Casa Rural de 4 habitaciones en Canyamel en venta con piscina garaje - 4.400.000 € (Ref: 9474531)
  • Finca/Casa Rural de 4 habitaciones en Canyamel en venta con piscina garaje - 4.400.000 € (Ref: 9474531)
  • Finca/Casa Rural de 4 habitaciones en Canyamel en venta con piscina garaje - 4.400.000 € (Ref: 9474531)
  • Finca/Casa Rural de 4 habitaciones en Canyamel en venta con piscina garaje - 4.400.000 € (Ref: 9474531)
  • Finca/Casa Rural de 4 habitaciones en Canyamel en venta con piscina garaje - 4.400.000 € (Ref: 9474531)
  • Finca/Casa Rural de 4 habitaciones en Canyamel en venta con piscina garaje - 4.400.000 € (Ref: 9474531)
  • Finca/Casa Rural de 4 habitaciones en Canyamel en venta con piscina garaje - 4.400.000 € (Ref: 9474531)
  • Finca/Casa Rural de 4 habitaciones en Canyamel en venta con piscina garaje - 4.400.000 € (Ref: 9474531)
  • Finca/Casa Rural de 4 habitaciones en Canyamel en venta con piscina garaje - 4.400.000 € (Ref: 9474531)
  • Finca/Casa Rural de 4 habitaciones en Canyamel en venta con piscina garaje - 4.400.000 € (Ref: 9474531)
  • Finca/Casa Rural de 4 habitaciones en Canyamel en venta con piscina garaje - 4.400.000 € (Ref: 9474531)
  • Finca/Casa Rural de 4 habitaciones en Canyamel en venta con piscina garaje - 4.400.000 € (Ref: 9474531)
  • Finca/Casa Rural de 4 habitaciones en Canyamel en venta con piscina garaje - 4.400.000 € (Ref: 9474531)
  • Finca/Casa Rural de 4 habitaciones en Canyamel en venta con piscina garaje - 4.400.000 € (Ref: 9474531)
  • Finca/Casa Rural de 4 habitaciones en Canyamel en venta con piscina garaje - 4.400.000 € (Ref: 9474531)
  • Finca/Casa Rural de 4 habitaciones en Canyamel en venta con piscina garaje - 4.400.000 € (Ref: 9474531)
1/87

4.400.000 €

Finca/Casa Rural en venta en Canyamel, Capdepera, Mallorca

  • 550 m2
  • 4
  • 5
  • 78519 m2

Descripción

Presenta esta finca excepcional de obra nueva en una de las zonas más exclusivas y demandadas del noreste de Mallorca, muy próxima a Canyamel y a su prestigioso campo de golf. Su localización ofrece privacidad absoluta, fácil acceso y cercanía a playas, servicios y restaurantes de la zona y está a una distancia cómoda del aeropuerto de Mallorca.

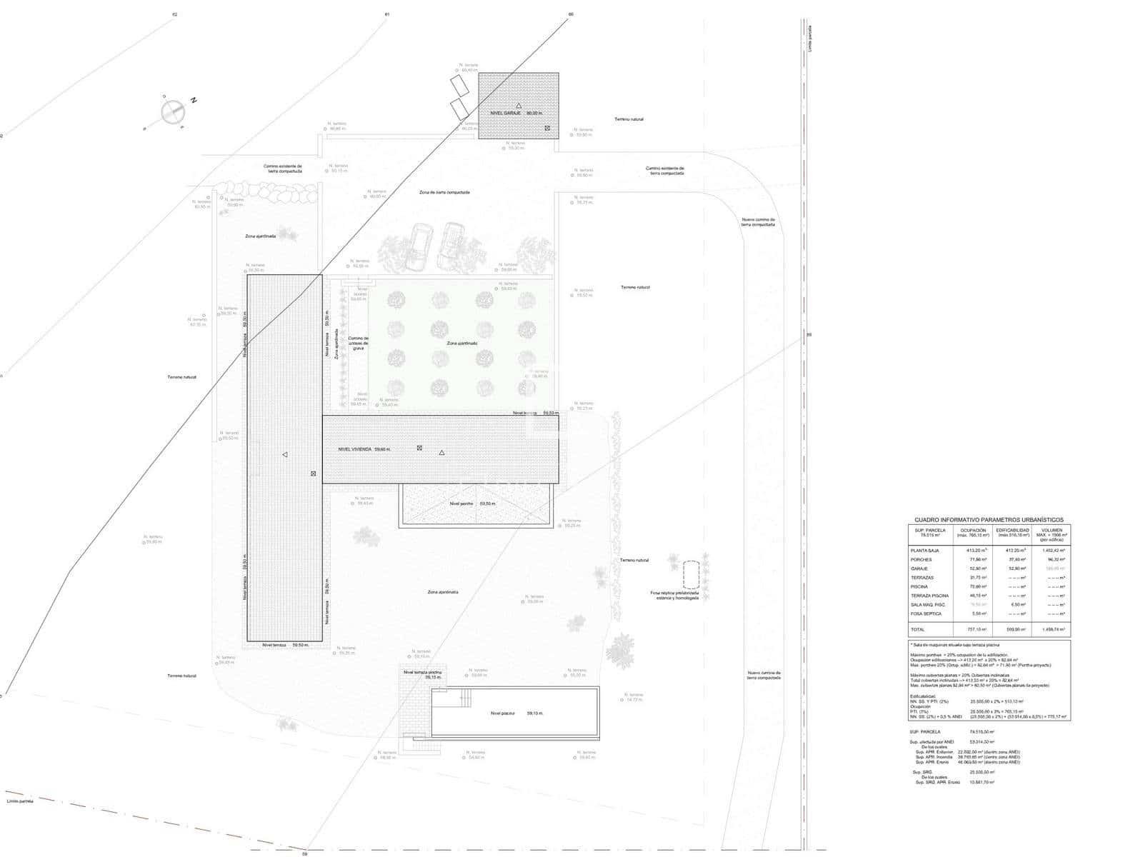
Se asienta sobre una enorme parcela privada y ofrece unas vistas panorámicas abiertas al entorno natural de Canyamel y al mar. La vivienda cuenta con un diseño contemporáneo de estilo mediterráneo. La arquitectura cuenta con volúmenes bien proporcionados y fachadas revestidas de piedra mallorquina.

Además, destaca por la calidad de sus materiales y por la integración de tecnología domótica avanzada. La propiedad está distribuida en una gran planta principal más sótano.

El exterior incluye un jardín cuidadosamente diseñado, terrazas de piedra natural con iluminación integrada, un patio interior y una amplia piscina con solárium, por lo que ofrece distintos ambientes pensados para el descanso y la vida al aire libre.

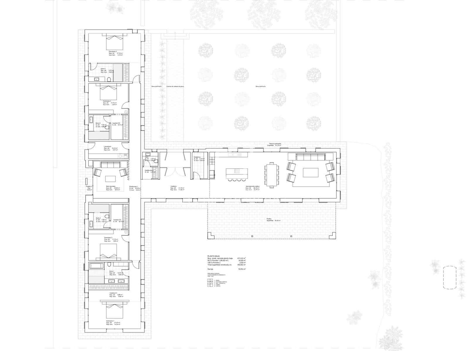
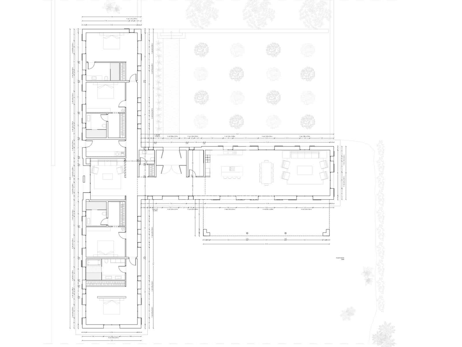
En la planta principal, se ofrece una luminosa zona de entrada con ventanales de suelo a techo que nos conduce al ala izquierda de la finca. Aquí, se dispone el salón-comedor con una chimenea de diseño, techos de gran altura y salida a las terrazas cubiertas y al jardín. La cocina tipo Bora con isla central se integra de forma natural en este espacio y se presenta completamente equipada. Un aseo de cortesía completa esta zona

El ala derecha alberga la zona de noche, con una biblioteca y cuatro dormitorios, todos con baño privado, con acabados en piedra natural y grifería de acero inoxidable. Los dormitorios principales incorporan bañeras exentas y armarios empotrados de alta calidad con iluminación interior led, y todos cuentan con salida directa al jardín.

El sótano alberga espacios complementarios muy versátiles, entre los que se incluyen una elegante bodega, un cuarto de servicio, una estancia adicional pensada como sala de cine, gimnasio o sala de juegos con acceso a un patio interior y un baño completo.

Además, la finca está equipada con calefacción por suelo radiante, aire acondicionado con bomba de calor, sistema de iluminación led interior y exterior con varios circuitos, domótica avanzada con control mediante iPad y paneles táctiles, sistema de seguridad e incluso un pozo propio. El mobiliario de alta gama puede adquirirse de forma opcional.

Una oportunidad única para quienes buscan una finca de alto nivel, lista para estrenar, en un entorno natural privilegiado y con vistas abiertas a la naturaleza y al mar. Ideal como residencia principal o segunda vivienda para familias o compradores exigentes que valoran la privacidad, la calidad constructiva y una ubicación exclusiva en Mallorca.

Ubicación

Canyamel, Capdepera, Mallorca La ubicación no ha sido proporcionada.

Características

  • Finca/Casa Rural
  • Dormitorios: 4
  • Baños: 5
  • Superficie: 550 m2
  • Terreno: 78519 m2
  • Obra nueva
  • Piscina
  • Parking/Garaje
  • Vista del campo de golf
  • Jardín
  • Aire acondicionado
  • Terraza/Balcón
  • Vistas de la montaña
  • Calefacción
  • Apto para sillas de ruedas
  • Chimenea
  • Trastero
  • Armarios empotrados
  • Certificado energético (Consumo): A
  • Certificado energético (Emisiones): A

¿Como podemos ayudarte?

¿Hay algún problema con este anuncio?

Cuéntanos qué has detectado para corregirlo

Calculadora de hipoteca

€
€
%

13.437 € por mes*

+ 353.700 € impuestos (352.000 €) y gastos (1.700 €)*

*Tenga en cuenta que los resultados son sólo una guía y no una oferta o presupuesto de hipoteca.

Contacta al Anunciante

¿Como podemos ayudarte?

€

Este campo es obligatorio

Comprueba los errores arriba

Ref. 9474531

Al enviar este formulario, confirmas que aceptas nuestros Términos de Uso y Política de Privacidad.

Compartir

Propiedades relacionadas

Finca/Casa Rural de 4 habitaciones en Canyamel, Capdepera en venta con piscina garaje - 3.900.000 € (Ref: 9468811) Finca/Casa Rural de 4 habitaciones en Canyamel, Capdepera en venta con piscina garaje - 4.200.000 € (Ref: 9474458) Finca/Casa Rural de 3 habitaciones en Font de Sa Cala / Font de La Cala, Capdepera en venta con piscina garaje - 4.000.000 € (Ref: 8472252) Finca/Casa Rural de 5 habitaciones en Son Servera en venta - 3.500.000 € (Ref: 7431498)

Anuncio

  1. España
  2. Islas Baleares/Illes Balears
  3. Mallorca
  4. Capdepera
  5. Canyamel
  6. Finca/Casa Rural de 4 habitaciones en Canyamel, Capdepera en venta con piscina garaje - 4.400.000 € (Ref: 9474531)
Llamar