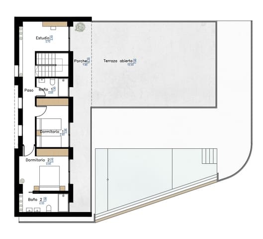
- 245 m2 Construidos
- 3 Dormitorios
- 2 Baños
- 1024 m2 Parcela
Moderna villa en venta en Benissa Costa con vistas al mar y cerca de la cala Baladrar Ubicada en la codiciada zona de Baladrar en Benissa Costa, esta elegante villa moderna ofrece una combinación... Lee mas