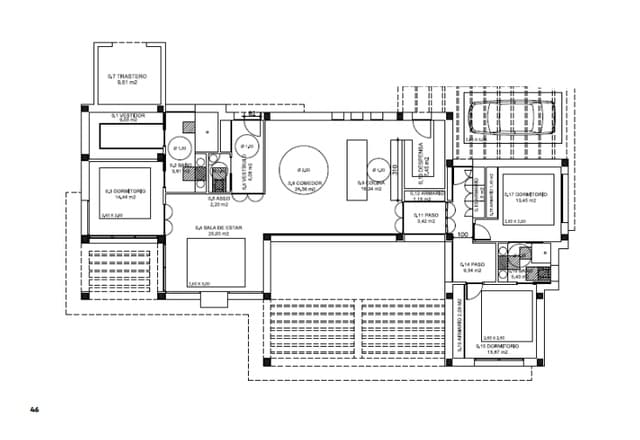
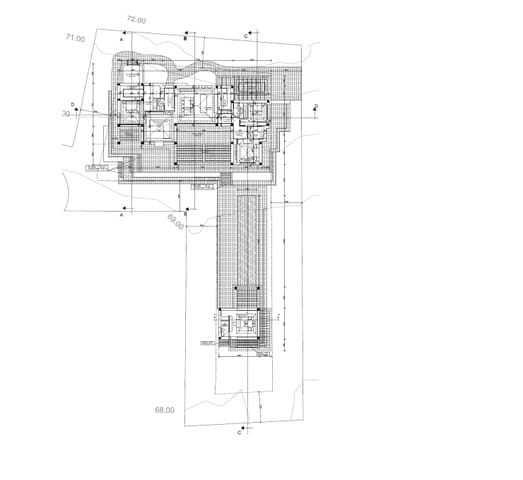
- 465 m2 Construidos
- 3 Dormitorios
- 4 Baños
- 859 m2 Parcela
Esta moderna villa de obra nueva en una bonita parcela esquinera ofrece vistas panorámicas a la costa de Jávea y se encuentra a solo un corto paseo del Casco Antiguo. La construcción se distribuye... Lee mas