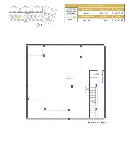
- 95 m2 Construidos
- 3 Dormitorios
- 2 Baños
- 353 m2 Parcela
Ubicado en el encantador municipio de Los Alcázares, este exclusivo conjunto residencial ofrece 13 viviendas cuidadosamente diseñadas para satisfacer las necesidades de quienes buscan un hogar en... Lee mas