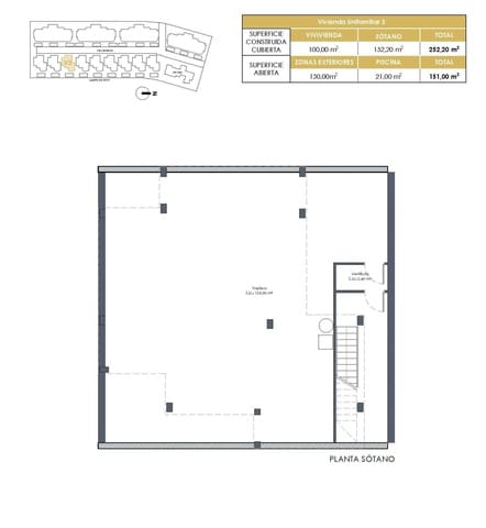
- 124 m2 Construidos
- 3 Dormitorios
- 2 Baños
- 224 m2 Parcela
Descubre un desarrollo exclusivo situado en el idílico entorno de Los Alcázares, en la hermosa Costa Cálida. Esta zona residencial privada cuenta con solo siete elegias villas, cada una combinando... Lee mas