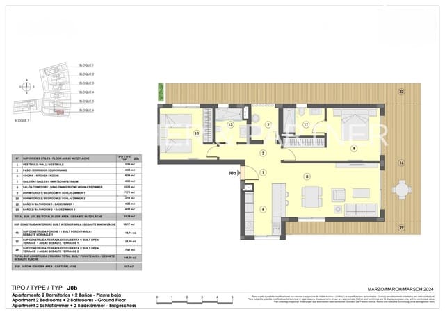
- 87 m2 Construidos
- 3 Dormitorios
- 2 Baños
Este proyecto de nueva construcción en Palma combina calidad, diseño y tecnologías de construcción nórdicas en excepcionales propiedades en Mallorca ofreciendo alto confort y funcionalidad. La... Lee mas
Este proyecto de nueva construcción en Palma combina calidad, diseño y tecnologías de construcción nórdicas en excepcionales propiedades en Mallorca ofreciendo alto confort y funcionalidad. La... Lee mas
Este elegante piso reformado en Palma de Mallorca ofrece una atractiva ubicación, en un barrio muy solicitado, cerca de las famosas calles Jaime III y Paseo de Mallorca, en el centro de la capital... Lee mas
Estudio de diseño reformado en el corazón de Santa Ponsa Confort y estilo a pasos del mar Si buscas una propiedad práctica, moderna y ubicada en el epicentro de la vida de Santa Ponsa, este... Lee mas
Este amplio y luminoso piso situado en la zona de Bons Aires, en Palma, ubicado en una segunda planta con ascensor. La zona de Blanquerna ofrece una excelente calidad de vida, con supermercados,... Lee mas
Tiene el placer de presentaros este exclusivo primer piso con carácter y doble balcón a la calle, ubicado en la primera planta de una finca histórica del año 1850 sin ascensor, en pleno Casco... Lee mas
Se vende amplia casa de pueblo en Llucmajor, con 368 m2 construidos de los cuales 248m2 corresponden a la vivienda distribuida en planta baja y planta piso. La vivienda dispone de 4 dormitorios, 2... Lee mas
Bienvenido a la nueva casa de sus sueños en Mallorca. Esta ultramoderna y lujosa planta baja en un exclusivo complejo de apartamentos ofrece todo lo que su corazón desea: confort, estilo y una... Lee mas
Ubicado en el corazón de Palma, en la zona de Avenidas, este amplio y luminoso piso ofrece una oportunidad única para quienes buscan un hogar con vistas privilegiadas a la bahía de Palma y con una... Lee mas
Encantador apartamento con orientación sur y vistas abiertas a la piscina comunitaria, ubicado en una urbanización prestigiosa y cuidada en Nova Santa Ponsa. Esta zona es una de las más demandadas... Lee mas
Te presentamos una propiedad singular tanto por sus características como por su ubicación privilegiada. Se trata de un amplio local diáfano de 115 m² que cuenta con un valor diferencial clave en... Lee mas
Este bonito ático ocupa la última planta de un edificio con piscina comunitaria y ofrece máxima privacidad junto con unas impresionantes vistas panorámicas al mar y a la bahía de Santa Ponsa.... Lee mas
En una ubicación elevada y tranquila, con excelente conexión a Palma y a los centros comerciales cercanos, este moderno dúplex forma parte de una nueva promoción con solo cinco viviendas. El... Lee mas
Exclusivo piso en venta en una de las zonas más codiciadas de Palma, muy cerca del Paseo Marítimo. Reformado recientemente con materiales de alta calidad, cuenta con muebles, cocina y detalles... Lee mas
Excelente apartamento de obra nueva ubicado en una promoción de 12 viviendas en una de las zonas con mayor proyección de Palma. La propiedad cuenta con 91,01 m2 en zonas interiores distribuida 3... Lee mas
Apartamento renovado en el casco antiguo de Palma con garaje privado y trastero de 15 m². Este encantador apartamento renovado está situado en una tranquila calle del casco antiguo de Palma, a... Lee mas
Apartamento directamente en el puerto de Port Andratx, con vistas al barrio portuario y al muelle, ideal para disfrutar desde su propio balcón. El apartamento se encuentra en la tercera planta y... Lee mas