Regiones

Provincias

Islas

Costas

Municipios

Distritos

Barrios

Zonas

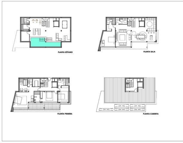
Chalets, Bungalows en venta en Oltamar - Cucarres, Calpe / Calp

101 encontrados

101 encontrados

  1. España
  2. Valencia
  3. Alicante
  4. Costa Blanca
  5. Calpe / Calp
  6. Oltamar - Cucarres