thinkSPAIN Logo
  • Acheter

    Propriétés à vendre

    • Voir toutes les propriétés à vendre
    • Commencez votre recherche en utilisant nos filtres
    • Utilisez notre recherche sur carte
    • Dessinez votre zone de recherche

    Recherches immobilières populaires

    Appartements Fincas/Maisons de Campagne Maisons de Ville Villas/Maisons
    Ascenseur Jardin Luxe Nouvelle construction Parking/Garage Piscine Terrasse/Balcon Vue sur la mer
    Alicante Almería Barcelone Benahavís Calpe / Calp Calvià Carthagène Costa Blanca Costa del Sol Dénia Estepona Gran Canaria Gérone Ibiza Madrid Malaga Mallorca Marbella Mazarrón Mijas Murcie Orihuela Palma de Mallorca Tenerife Torrevieja Valence
    Parcourez toutes les localisations et types de propriétés
  • Louer

    Propriétés à louer

    • Voir toutes les propriétés à louer
    • Locations de vacances
    • Commencez votre recherche en utilisant nos filtres
    • Utilisez notre recherche sur carte
    • Dessinez votre zone de recherche

    Recherches de location populaires

    Appartements Fincas/Maisons de Campagne Maisons de Ville Villas/Maisons
    Ascenseur Jardin Parking/Garage Piscine Première ligne de mer/plage Terrasse/Balcon Vue sur la mer Vues de la montagne
    Alicante Almería Almuñécar Altea Barcelone Calvià Carthagène Costa Blanca Costa del Sol Dénia Estepona Gran Canaria Grenade Ibiza Javea / Xàbia Madrid Malaga Mallorca Marbella Murcie Palma de Mallorca San Javier Tenerife Torrevieja Torrox Valence
    Parcourez toutes les localisations et types de propriétés
  • Je veux annoncer sur thinkSPAIN

    Je cherche un agent immobilier à:

    Alicante Almería Barcelone Cadix Castellón Grenade Gérone Malaga Tarragone Valence
    Voir tous les agents immobiliers
  • Carte / Dessinez votre zone

    Utilisez notre carte interactive pour trouver des propriétés

    • Recherche sur carte
    • Dessinez votre zone de recherche

    Recherches sur la carte populaires

    Alicante Almería Barcelone Benahavís Calpe / Calp Calvià Carthagène Costa Blanca Costa del Sol Dénia Estepona Gran Canaria Gérone Ibiza Madrid Malaga Mallorca Marbella Mazarrón Mijas Murcie Orihuela Palma de Mallorca Tenerife Torrevieja Valence
  • Annuaire

    Que cherchez-vous?

    • Agences immobilières
    • Experts en bâtiment
    • Architectes / Création architecturale
    • Avocats
    • Conseillers fiscaux
    • Courtiers en devises
    • Prêts hypothécaires
    • Entretien / gestion du bien immobilier

    Recherches récentes

    Agences immobilières dans Grenade Agences immobilières dans Coín Avocats dans Aguilas Agences immobilières dans Alicante Agences immobilières dans Casares Entretien / gestion du bien immobilier dans Alicante Agences immobilières dans Aguilas Agences immobilières dans Pliego Prêts hypothécaires dans Madrid ville Avocats dans Costa Blanca Avocats dans Orihuela Agences immobilières dans Gérone Agences immobilières dans Torrevieja Avocats dans Ayamonte
  • Aide et informations

    Comment pouvons-nous vous aider ?

    • Articles et guides
    • Connexion annonceur

    Recherches populaires

    Acheter un bien en Espagne S'installer en Espagne Prendre sa retraite en Espagne Vivre en Espagne Travailler en Espagne Lieux & Propriétés de Prestige Finances, législation et taxes Trouver la propriété qui vous convient Le style de vie et la culture espagnole Régions espagnoles Transport Processus de relocalisation Ménage Santé Marché immobilier Langues et intégration Alicante Murcie Sécurité Activités
  • Connexion annonceur
thinkSPAIN Logo Propriétés

Villa/Maison à vendre à Coloma , La Nucia, Alicante

  • 600 000 €
  • 141 m2
  • 3
  • 4
  • 213 m2
Propriétés

600 000 €

Réf. 8372863

Appel
  • 3 chambre Villa/Maison à vendre à La Nucia avec piscine - 600 000 € (Ref: 8372863)
  • 3 chambre Villa/Maison à vendre à La Nucia avec piscine - 600 000 € (Ref: 8372863)
  • 3 chambre Villa/Maison à vendre à La Nucia avec piscine - 600 000 € (Ref: 8372863)
  • 3 chambre Villa/Maison à vendre à La Nucia avec piscine - 600 000 € (Ref: 8372863)
  • 3 chambre Villa/Maison à vendre à La Nucia avec piscine - 600 000 € (Ref: 8372863)
  • 3 chambre Villa/Maison à vendre à La Nucia avec piscine - 600 000 € (Ref: 8372863)
  • 3 chambre Villa/Maison à vendre à La Nucia avec piscine - 600 000 € (Ref: 8372863)
  • 3 chambre Villa/Maison à vendre à La Nucia avec piscine - 600 000 € (Ref: 8372863)
  • 3 chambre Villa/Maison à vendre à La Nucia avec piscine - 600 000 € (Ref: 8372863)
  • 3 chambre Villa/Maison à vendre à La Nucia avec piscine - 600 000 € (Ref: 8372863)
  • 3 chambre Villa/Maison à vendre à La Nucia avec piscine - 600 000 € (Ref: 8372863)
  • 3 chambre Villa/Maison à vendre à La Nucia avec piscine - 600 000 € (Ref: 8372863)
  • 3 chambre Villa/Maison à vendre à La Nucia avec piscine - 600 000 € (Ref: 8372863)
  • 3 chambre Villa/Maison à vendre à La Nucia avec piscine - 600 000 € (Ref: 8372863)
  • 3 chambre Villa/Maison à vendre à La Nucia avec piscine - 600 000 € (Ref: 8372863)
  • 3 chambre Villa/Maison à vendre à La Nucia avec piscine - 600 000 € (Ref: 8372863)
  • 3 chambre Villa/Maison à vendre à La Nucia avec piscine - 600 000 € (Ref: 8372863)
  • 3 chambre Villa/Maison à vendre à La Nucia avec piscine - 600 000 € (Ref: 8372863)
  • 3 chambre Villa/Maison à vendre à La Nucia avec piscine - 600 000 € (Ref: 8372863)
  • 3 chambre Villa/Maison à vendre à La Nucia avec piscine - 600 000 € (Ref: 8372863)
  • 3 chambre Villa/Maison à vendre à La Nucia avec piscine - 600 000 € (Ref: 8372863)
  • 3 chambre Villa/Maison à vendre à La Nucia avec piscine - 600 000 € (Ref: 8372863)
  • 3 chambre Villa/Maison à vendre à La Nucia avec piscine - 600 000 € (Ref: 8372863)
  • 3 chambre Villa/Maison à vendre à La Nucia avec piscine - 600 000 € (Ref: 8372863)
  • 3 chambre Villa/Maison à vendre à La Nucia avec piscine - 600 000 € (Ref: 8372863)
  • 3 chambre Villa/Maison à vendre à La Nucia avec piscine - 600 000 € (Ref: 8372863)
  • 3 chambre Villa/Maison à vendre à La Nucia avec piscine - 600 000 € (Ref: 8372863)
  • 3 chambre Villa/Maison à vendre à La Nucia avec piscine - 600 000 € (Ref: 8372863)
  • 3 chambre Villa/Maison à vendre à La Nucia avec piscine - 600 000 € (Ref: 8372863)
  • 3 chambre Villa/Maison à vendre à La Nucia avec piscine - 600 000 € (Ref: 8372863)
  • 3 chambre Villa/Maison à vendre à La Nucia avec piscine - 600 000 € (Ref: 8372863)
  • 3 chambre Villa/Maison à vendre à La Nucia avec piscine - 600 000 € (Ref: 8372863)
  • 3 chambre Villa/Maison à vendre à La Nucia avec piscine - 600 000 € (Ref: 8372863)
  • 3 chambre Villa/Maison à vendre à La Nucia avec piscine - 600 000 € (Ref: 8372863)
  • 3 chambre Villa/Maison à vendre à La Nucia avec piscine - 600 000 € (Ref: 8372863)
  • 3 chambre Villa/Maison à vendre à La Nucia avec piscine - 600 000 € (Ref: 8372863)
  • 3 chambre Villa/Maison à vendre à La Nucia avec piscine - 600 000 € (Ref: 8372863)
1/37

600 000 €

Villa/Maison à vendre à Coloma , La Nucia, Alicante

  • 141 m2
  • 3
  • 4
  • 213 m2

Description

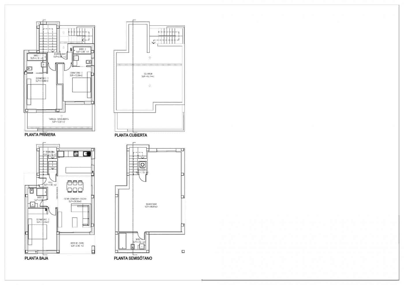
Villas de nouvelle construction à La Nucia

Nouvelle construction résidentielle de villas confortables et luxueuses avec piscines privées à La Nucia.

Les villas se composent de 3 grandes chambres doubles avec des armoires encastrées et doublées, une chambre au rez-de-chaussée et les deux autres au premier étage.

Il s'agit de 4 salles de bains complètement terminées avec des écrans en verre, des toilettes en porcelaine et des robinets thermostatiques dans les douches, une au premier étage, une autre dans le garage et les 2 autres en suite dans les chambres du premier étage.

Salon lumineux avec de grandes fenêtres qui donnent accès à la parcelle privée avec piscine et gazon artificiel où vous pourrez profiter et vous détendre.

Cuisine américaine entièrement équipée avec des meubles hauts et bas, des appareils électroménagers haut de gamme et un îlot avec des meubles bas, un plan de travail en Silestone avec un évier intégré en acier inoxydable et une hotte aspirante design en acier inoxydable.

Installation de climatisation et de chauffage par conduits aérothermaux avec 2 machines indépendantes (double zone).

Le confort et le design Porcelanosa offrent des finitions exclusives, telles que les planchers flottants, les sols en pierre naturelle et le grès de première qualité. Toute la villa dispose d'un éclairage LED intérieur et extérieur et de volets électriques.

Résidentiel situé dans une zone exclusive de grande qualité et avec tous les conforts ; terrasse, solarium, garage privé pour 2 véhicules, zones de jardin, urbanisation, piscine et tout ce que vous pouvez imaginer.

Résidentiel engagé pour l'environnement, équipé de panneaux solaires pour la production d'eau chaude sanitaire, éclairage LED et isolation thermique-acoustique.

La Nucía est une municipalité de la comarca de Marina Baixa, Alicante. Elle est limitrophe des municipalités d'Altea, Callosa d'En Sarrià, Benidorm, Polop et L'Alfàs del Pi.

La Nucia est située dans une vallée fruitière entre Benidorm et Callosa d'En Sarrià, à 3 km de la côte d'Altea. Le centre urbain se trouve sur un promontoire surplombant la mer Méditerranée, à 51 km au nord d'Alicante et à 8 km au nord de Benidorm.

Distances :
- Accès par l'autoroute A.
- 5 minutes de Terra Mitica.
- 5 minutes de l'école ELIANS.
- 5 minutes des supermarchés, cafés et toutes sortes de services.
- 10 minutes de la plage de Benidorm.
- 15 minutes de la Playa del Albir.
- 20 minutes du château de Guadalest.
- 40Km de l'aéroport d'Alicante-Elche.

Localisation

Coloma , La Nucia, Alicante Localisation indiquée par l'annonceur

Caractéristiques

  • Villa/Maison
  • Chambres : 3
  • Salles de bain : 4
  • Superficie: 141 m2
  • Terrain : 213 m2
  • Nouvelle construction
  • Piscine privée
  • Vue sur la mer
  • Jardin
  • Terrasse/Balcon
  • Certificat énergétique (consommation) : B

Comment pouvons-nous vous aider?

Avez-vous trouvé une erreur?

Dites-nous ce que vous avez détecté afin de le corriger

Calculateur d'hypothèque

€
€
%

1 905 € par mois*

+ 61 700 € impôts (60 000 €) & dépenses (1 700 €)*

*Veuillez noter que les résultats ne sont qu'un guide et non une offre ou un devis de prêt hypothécaire.

Contacter l'annonceur

Comment pouvons-nous vous aider?

€

This field is required

Vérifiez la ou les erreurs ci-dessus

Réf. 8372863

En soumettant ce formulaire, vous confirmez que vous acceptez nos conditions d'utilisation et règles de confidentialité.

Partager

Biens immobiliers correspondants

4 chambre Villa/Maison à vendre à Coloma , La Nucia avec piscine garage - 695 000 € (Ref: 4745781) 3 chambre Villa/Maison à vendre à Coloma , La Nucia avec garage - 535 000 € (Ref: 9440222) 5 chambre Villa/Maison à vendre à Coloma , La Nucia avec garage - 511 000 € (Ref: 8837596) 3 chambre Villa/Maison à vendre à Coloma , La Nucia - 600 000 € (Ref: 9642579)

Publicité

  1. Espagne
  2. Valence
  3. Alicante
  4. Costa Blanca
  5. La Nucia
  6. Coloma
  7. 3 chambre Villa/Maison à vendre à Coloma , La Nucia avec piscine - 600 000 € (Ref: 8372863)
Appel