thinkSPAIN Logo
  • Acheter

    Propriétés à vendre

    • Voir toutes les propriétés à vendre
    • Commencez votre recherche en utilisant nos filtres
    • Utilisez notre recherche sur carte
    • Dessinez votre zone de recherche

    Recherches immobilières populaires

    Appartements Fincas/Maisons de Campagne Maisons de Ville Villas/Maisons
    Ascenseur Jardin Luxe Nouvelle construction Parking/Garage Piscine Terrasse/Balcon Vue sur la mer
    Alicante Almería Barcelone Benahavís Calpe / Calp Calvià Carthagène Costa Blanca Costa del Sol Dénia Estepona Gran Canaria Gérone Ibiza Madrid Malaga Mallorca Marbella Mazarrón Mijas Murcie Orihuela Palma de Mallorca Tenerife Torrevieja Valence
    Parcourez toutes les localisations et types de propriétés
  • Louer

    Propriétés à louer

    • Voir toutes les propriétés à louer
    • Locations de vacances
    • Commencez votre recherche en utilisant nos filtres
    • Utilisez notre recherche sur carte
    • Dessinez votre zone de recherche

    Recherches de location populaires

    Appartements Fincas/Maisons de Campagne Maisons de Ville Villas/Maisons
    Ascenseur Jardin Parking/Garage Piscine Première ligne de mer/plage Terrasse/Balcon Vue sur la mer Vues de la montagne
    Alicante Almería Almuñécar Altea Barcelone Calvià Carthagène Costa Blanca Costa del Sol Dénia Estepona Gran Canaria Grenade Ibiza Madrid Malaga Mallorca Marbella Murcie Orihuela Palma de Mallorca San Javier Tenerife Torrevieja Torrox Valence
    Parcourez toutes les localisations et types de propriétés
  • Je veux annoncer sur thinkSPAIN

    Je cherche un agent immobilier à:

    Alicante Almería Barcelone Cadix Castellón Grenade Gérone Malaga Tarragone Valence
    Voir tous les agents immobiliers
  • Carte / Dessinez votre zone

    Utilisez notre carte interactive pour trouver des propriétés

    • Recherche sur carte
    • Dessinez votre zone de recherche

    Recherches sur la carte populaires

    Alicante Almería Barcelone Benahavís Calpe / Calp Calvià Carthagène Costa Blanca Costa del Sol Dénia Estepona Gran Canaria Gérone Ibiza Madrid Malaga Mallorca Marbella Mazarrón Mijas Murcie Orihuela Palma de Mallorca Tenerife Torrevieja Valence
  • Annuaire

    Que cherchez-vous?

    • Agences immobilières
    • Experts en bâtiment
    • Architectes / Création architecturale
    • Avocats
    • Conseillers fiscaux
    • Courtiers en devises
    • Prêts hypothécaires
    • Entretien / gestion du bien immobilier

    Recherches récentes

    Prêts hypothécaires dans Madrid ville Avocats dans Valence Agences immobilières dans Costa del Sol Avocats dans Costa Blanca Agences immobilières dans Aguilas Agences immobilières dans Alicante Avocats dans Costa Blanca Agences immobilières dans Costa Blanca Agences immobilières dans San Pedro del Pinatar Avocats dans Alicante Avocats dans Ayamonte Agences immobilières dans Calpe / Calp Agences immobilières dans Arona Agences immobilières dans Guardamar del Segura
  • Aide et informations

    Comment pouvons-nous vous aider ?

    • Articles et guides
    • Connexion annonceur

    Recherches populaires

    Acheter un bien en Espagne S'installer en Espagne Prendre sa retraite en Espagne Vivre en Espagne Travailler en Espagne Lieux & Propriétés de Prestige Finances, législation et taxes Trouver la propriété qui vous convient Le style de vie et la culture espagnole Régions espagnoles Transport Processus de relocalisation Ménage Santé Marché immobilier Langues et intégration Alicante Murcie Sécurité Activités
  • Connexion annonceur
thinkSPAIN Logo Propriétés

Villa/Maison à vendre à Mijas, Malaga

  • 1 345 000 €
  • 355 m2
  • 4
  • 4
  • 678 m2
Propriétés

1 345 000 €

Réf. 8966195

  • 4 chambre Villa/Maison à vendre à Mijas avec piscine - 1 345 000 € (Ref: 8966195)
  • 4 chambre Villa/Maison à vendre à Mijas avec piscine - 1 345 000 € (Ref: 8966195)
  • 4 chambre Villa/Maison à vendre à Mijas avec piscine - 1 345 000 € (Ref: 8966195)
  • 4 chambre Villa/Maison à vendre à Mijas avec piscine - 1 345 000 € (Ref: 8966195)
  • 4 chambre Villa/Maison à vendre à Mijas avec piscine - 1 345 000 € (Ref: 8966195)
  • 4 chambre Villa/Maison à vendre à Mijas avec piscine - 1 345 000 € (Ref: 8966195)
  • 4 chambre Villa/Maison à vendre à Mijas avec piscine - 1 345 000 € (Ref: 8966195)
  • 4 chambre Villa/Maison à vendre à Mijas avec piscine - 1 345 000 € (Ref: 8966195)
  • 4 chambre Villa/Maison à vendre à Mijas avec piscine - 1 345 000 € (Ref: 8966195)
  • 4 chambre Villa/Maison à vendre à Mijas avec piscine - 1 345 000 € (Ref: 8966195)
  • 4 chambre Villa/Maison à vendre à Mijas avec piscine - 1 345 000 € (Ref: 8966195)
  • 4 chambre Villa/Maison à vendre à Mijas avec piscine - 1 345 000 € (Ref: 8966195)
  • 4 chambre Villa/Maison à vendre à Mijas avec piscine - 1 345 000 € (Ref: 8966195)
  • 4 chambre Villa/Maison à vendre à Mijas avec piscine - 1 345 000 € (Ref: 8966195)
  • 4 chambre Villa/Maison à vendre à Mijas avec piscine - 1 345 000 € (Ref: 8966195)
  • 4 chambre Villa/Maison à vendre à Mijas avec piscine - 1 345 000 € (Ref: 8966195)
1/16

1 345 000 €

Villa/Maison à vendre à Mijas, Malaga

  • 355 m2
  • 4
  • 4
  • 678 m2

Description

Villa individuelle avec vue sur la ville, dans une zone tranquille à Mijas.

La villa élégante est située à Mijas, Malaga, dans la région de la Costa del Sol, en Espagne. La région offre un climat merveilleux, de belles plages de sable, des beautés naturelles exclusives, des infrastructures routières bien développées, des installations sportives comme des terrains de golf et un intérêt croissant pour le marché de l’immobilier. Ces atouts confèrent à Mijas une grande popularité auprès des investisseurs étrangers. L’environnement cosmopolite laisse place à une vie quotidienne colorée.

La villa individuelle à Mijas se trouve dans une zone résidentielle du quartier Buenavista, à courte distance de l’autoroute A-7. La villa est à 4 km de la plage, 4,5 km du centre-ville de Mijas Pueblo, 9 km du centre-ville de Fuengirola, 18 km de l’aéroport de Malaga-Costa del Sol et 35 km de Marbella.

La villa est construite sur une superficie de 700 m², comprenant une piscine extérieure et un beau jardin. Le projet propose également des terrasses dans la villa offrant une vue panoramique sur la montagne.

La villa économe en énergie est équipée de matériaux de la plus haute qualité, tels qu’un système de climatisation qui fournit de l’eau chaude pour le chauffage et l’usage quotidien. La villa de 3 étages présente un concept ouvert qui réunit les intérieurs et les extérieurs. La cuisine est équipée d’électroménagers de haute qualité.

AGP-00786

Localisation

Mijas, Malaga La localisation n'a pas été communiqué.

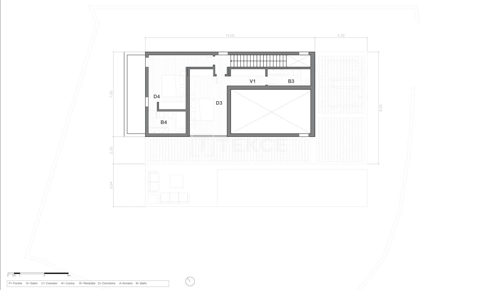
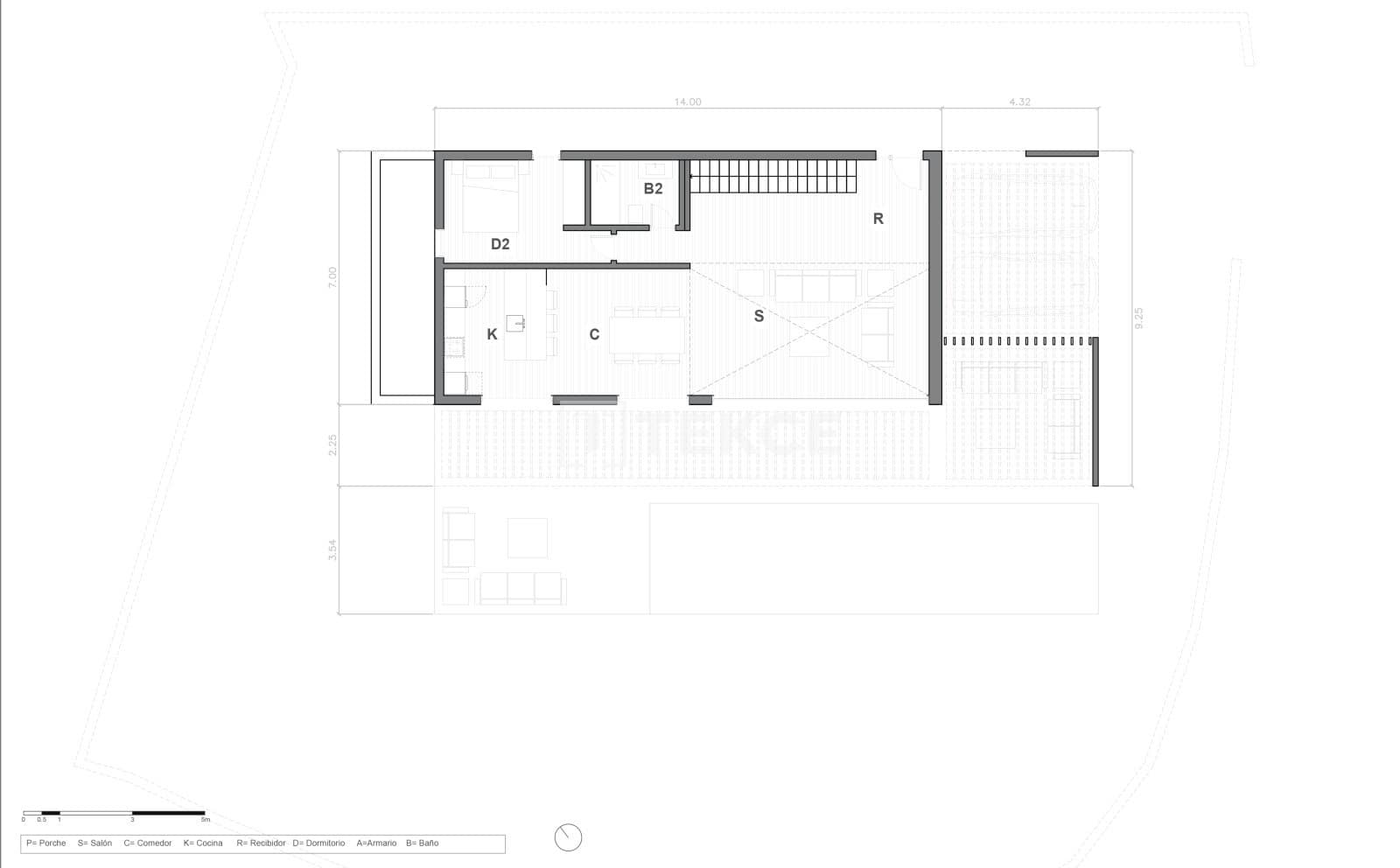
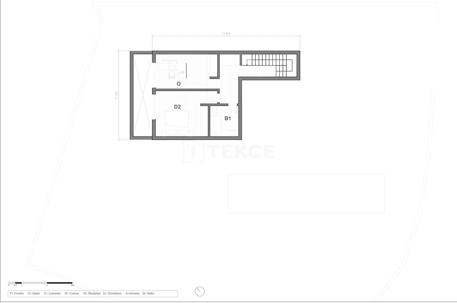
Caractéristiques

  • Villa/Maison
  • Chambres : 4
  • Salles de bain : 4
  • Superficie: 355 m2
  • Terrain : 678 m2
  • Étages : 2
  • Année de construction : 2026
  • Nouvelle construction
  • Piscine privée
  • Vue sur la mer
  • Jardin privé
  • Climatisation
  • Terrasse/Balcon
  • Vues de la montagne
  • Salle d'entreposage
  • Certificat énergétique (consommation) : A

Comment pouvons-nous vous aider?

Avez-vous trouvé une erreur?

Dites-nous ce que vous avez détecté afin de le corriger

Calculateur d'hypothèque

€
€
%

4 271 € par mois*

+ 95 850 € impôts (94 150 €) & dépenses (1 700 €)*

*Veuillez noter que les résultats ne sont qu'un guide et non une offre ou un devis de prêt hypothécaire.

Contacter l'annonceur

Comment pouvons-nous vous aider?

€

This field is required

Vérifiez la ou les erreurs ci-dessus
Si l'annonceur a indiqué un numéro de téléphone, vous pourrez le voir une fois que vous aurez rempli et envoyé ce formulaire de demande d'informations.

Réf. 8966195

En soumettant ce formulaire, vous confirmez que vous acceptez nos conditions d'utilisation et règles de confidentialité.

Partager

Biens immobiliers correspondants

4 chambre Villa/Maison à vendre à Mijas avec piscine garage - 1 245 000 € (Ref: 8114243) 3 chambre Villa/Maison à vendre à Mijas avec piscine garage - 1 249 000 € (Ref: 9821427) 4 chambre Villa/Maison à vendre à Mijas avec piscine - 1 420 000 € (Ref: 8333806) 4 chambre Villa/Maison à vendre à Mijas avec piscine garage - 1 450 000 € (Ref: 9387034)

Publicité

  1. Espagne
  2. Andalousie
  3. Malaga
  4. Costa del Sol
  5. Mijas
  6. 4 chambre Villa/Maison à vendre à Mijas avec piscine - 1 345 000 € (Ref: 8966195)