thinkSPAIN Logo
  • Acheter

    Propriétés à vendre

    • Voir toutes les propriétés à vendre
    • Commencez votre recherche en utilisant nos filtres
    • Utilisez notre recherche sur carte
    • Dessinez votre zone de recherche

    Recherches immobilières populaires

    Appartements Fincas/Maisons de Campagne Maisons de Ville Villas/Maisons
    Ascenseur Jardin Luxe Nouvelle construction Parking/Garage Piscine Terrasse/Balcon Vue sur la mer
    Alicante Almería Barcelone Benahavís Calvià Carthagène Costa Blanca Costa del Sol Dénia Estepona Gran Canaria Gérone Ibiza Javea / Xàbia Madrid Malaga Mallorca Marbella Mazarrón Mijas Murcie Orihuela Palma de Mallorca Tenerife Torrevieja Valence
    Parcourez toutes les localisations et types de propriétés
  • Louer

    Propriétés à louer

    • Voir toutes les propriétés à louer
    • Locations de vacances
    • Commencez votre recherche en utilisant nos filtres
    • Utilisez notre recherche sur carte
    • Dessinez votre zone de recherche

    Recherches de location populaires

    Appartements Fincas/Maisons de Campagne Maisons de Ville Villas/Maisons
    Ascenseur Jardin Nouvelle construction Parking/Garage Piscine Terrasse/Balcon Vue sur la mer Vues de la montagne
    Alicante Almería Almuñécar Altea Barcelone Calvià Carthagène Costa Blanca Costa del Sol Dénia Estepona Gran Canaria Grenade Ibiza Madrid Malaga Mallorca Marbella Murcie Orihuela Palma de Mallorca Tenerife Torre-Pacheco Torrevieja Torrox Valence
    Parcourez toutes les localisations et types de propriétés
  • Je veux annoncer sur thinkSPAIN

    Je cherche un agent immobilier à:

    Alicante Almería Barcelone Cadix Castellón Grenade Gérone Malaga Tarragone Valence
    Voir tous les agents immobiliers
  • Carte / Dessinez votre zone

    Utilisez notre carte interactive pour trouver des propriétés

    • Recherche sur carte
    • Dessinez votre zone de recherche

    Recherches sur la carte populaires

    Alicante Almería Barcelone Benahavís Calvià Carthagène Costa Blanca Costa del Sol Dénia Estepona Gran Canaria Gérone Ibiza Javea / Xàbia Madrid Malaga Mallorca Marbella Mazarrón Mijas Murcie Orihuela Palma de Mallorca Tenerife Torrevieja Valence
  • Comment pouvons-nous vous aider ?

    • Articles et guides
    • Annuaire des entreprises et services
    • Connexion annonceur

    Recherches populaires

    Avocats Prêts hypothécaires Agences immobilières Entretien / gestion du bien immobilier Courtiers en devises Experts en bâtiment Architectes / Création architecturale Conseillers fiscaux
    Finances, législation et taxes Acheter un bien en Espagne Vivre en Espagne S'installer en Espagne Trouver la propriété qui vous convient Le style de vie et la culture espagnole Régions espagnoles Travailler en Espagne Prendre sa retraite en Espagne Lieux & Propriétés de Prestige Processus de relocalisation Transport
thinkSPAIN Logo Propriétés

Appartement à vendre à Orihuela Costa, Orihuela, Alicante

  • 325 000 €
  • 73 m2
  • 2
  • 2

325 000 € Réf. 9513648

Propriétés
Réf. 9513648
Appel
  • 2 chambre Appartement à vendre à Orihuela Costa avec piscine - 325 000 € (Ref: 9513648)
  • 2 chambre Appartement à vendre à Orihuela Costa avec piscine - 325 000 € (Ref: 9513648)
  • 2 chambre Appartement à vendre à Orihuela Costa avec piscine - 325 000 € (Ref: 9513648)
  • 2 chambre Appartement à vendre à Orihuela Costa avec piscine - 325 000 € (Ref: 9513648)
  • 2 chambre Appartement à vendre à Orihuela Costa avec piscine - 325 000 € (Ref: 9513648)
  • 2 chambre Appartement à vendre à Orihuela Costa avec piscine - 325 000 € (Ref: 9513648)
  • 2 chambre Appartement à vendre à Orihuela Costa avec piscine - 325 000 € (Ref: 9513648)
  • 2 chambre Appartement à vendre à Orihuela Costa avec piscine - 325 000 € (Ref: 9513648)
  • 2 chambre Appartement à vendre à Orihuela Costa avec piscine - 325 000 € (Ref: 9513648)
  • 2 chambre Appartement à vendre à Orihuela Costa avec piscine - 325 000 € (Ref: 9513648)
  • 2 chambre Appartement à vendre à Orihuela Costa avec piscine - 325 000 € (Ref: 9513648)
  • 2 chambre Appartement à vendre à Orihuela Costa avec piscine - 325 000 € (Ref: 9513648)
  • 2 chambre Appartement à vendre à Orihuela Costa avec piscine - 325 000 € (Ref: 9513648)
  • 2 chambre Appartement à vendre à Orihuela Costa avec piscine - 325 000 € (Ref: 9513648)
  • 2 chambre Appartement à vendre à Orihuela Costa avec piscine - 325 000 € (Ref: 9513648)
  • 2 chambre Appartement à vendre à Orihuela Costa avec piscine - 325 000 € (Ref: 9513648)
  • 2 chambre Appartement à vendre à Orihuela Costa avec piscine - 325 000 € (Ref: 9513648)
  • 2 chambre Appartement à vendre à Orihuela Costa avec piscine - 325 000 € (Ref: 9513648)
  • 2 chambre Appartement à vendre à Orihuela Costa avec piscine - 325 000 € (Ref: 9513648)
  • 2 chambre Appartement à vendre à Orihuela Costa avec piscine - 325 000 € (Ref: 9513648)
  • 2 chambre Appartement à vendre à Orihuela Costa avec piscine - 325 000 € (Ref: 9513648)
  • 2 chambre Appartement à vendre à Orihuela Costa avec piscine - 325 000 € (Ref: 9513648)
  • 2 chambre Appartement à vendre à Orihuela Costa avec piscine - 325 000 € (Ref: 9513648)
  • 2 chambre Appartement à vendre à Orihuela Costa avec piscine - 325 000 € (Ref: 9513648)
  • 2 chambre Appartement à vendre à Orihuela Costa avec piscine - 325 000 € (Ref: 9513648)
  • 2 chambre Appartement à vendre à Orihuela Costa avec piscine - 325 000 € (Ref: 9513648)
  • 2 chambre Appartement à vendre à Orihuela Costa avec piscine - 325 000 € (Ref: 9513648)
  • 2 chambre Appartement à vendre à Orihuela Costa avec piscine - 325 000 € (Ref: 9513648)
  • 2 chambre Appartement à vendre à Orihuela Costa avec piscine - 325 000 € (Ref: 9513648)
  • 2 chambre Appartement à vendre à Orihuela Costa avec piscine - 325 000 € (Ref: 9513648)
  • 2 chambre Appartement à vendre à Orihuela Costa avec piscine - 325 000 € (Ref: 9513648)
  • 2 chambre Appartement à vendre à Orihuela Costa avec piscine - 325 000 € (Ref: 9513648)
  • 2 chambre Appartement à vendre à Orihuela Costa avec piscine - 325 000 € (Ref: 9513648)
  • 2 chambre Appartement à vendre à Orihuela Costa avec piscine - 325 000 € (Ref: 9513648)
  • 2 chambre Appartement à vendre à Orihuela Costa avec piscine - 325 000 € (Ref: 9513648)
1/35

325 000 €

Appartement à vendre à Orihuela Costa, Orihuela, Alicante

  • 73 m2
  • 2
  • 2

Description

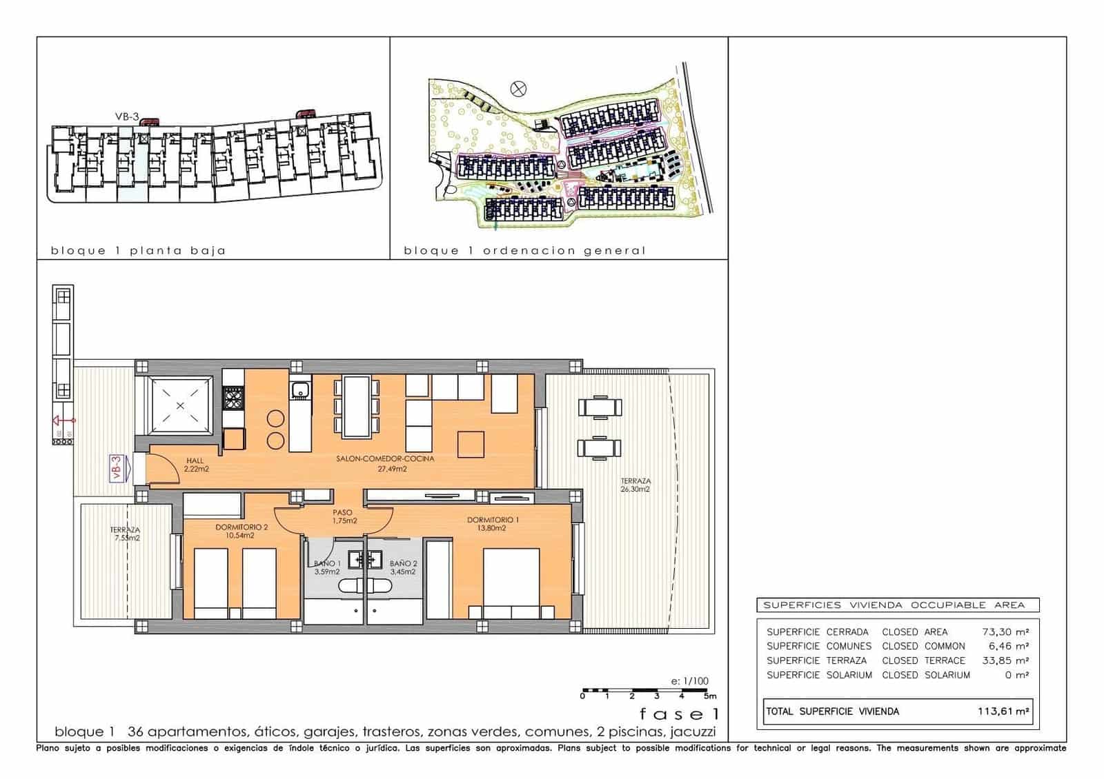
Nouvelle construction résidentielle à Playa Flamenca ! D'un développeur bien établi, nous sommes fiers d'offrir ce nouveau résidentiel à seulement 500 m de la mer à Playa Flamenca (Orihuela Costa). Résidentiel avec de belles piscines communes, des jacuzzis et de beaux jardins communs. Tous les services comme les supermarchés, bars et restaurants, etc. sont accessibles à pied dans un endroit très central à Orihuela Costa. Grande variété de types au choix : appartements 2, 3 ou 4 chambres. Étages bas avec jardins privés ou étages supérieurs avec solariums privés. Toutes les maisons disposent d'une place de parking et d'un débarras inclus dans le prix. Le centre commercial Zenia Boulevard à 1 km et plusieurs terrains de golf comme Villamartin, Campoamor à moins de 5 km de cette résidence feront un endroit idéal pour vos vacances ou votre vie permanente.

Localisation

Orihuela Costa, Orihuela, Alicante La localisation n'a pas été communiqué.

Caractéristiques

  • Appartement
  • Chambres : 2
  • Salles de bain : 2
  • Superficie: 73 m2
  • Nouvelle construction
  • Piscine commune
  • Jardin privé
  • Certificat énergétique (consommation) : B
  • Certificat énergétique (émissions) : B

Comment pouvons-nous vous aider?

Avez-vous trouvé une erreur?

Dites-nous ce que vous avez détecté afin de le corriger

Calculateur d'hypothèque

€
€
%

1 032 € par mois*

+ 34 200 € impôts (32 500 €) & dépenses (1 700 €)*

*Veuillez noter que les résultats ne sont qu'un guide et non une offre ou un devis de prêt hypothécaire.

Contacter l'annonceur

Comment pouvons-nous vous aider?

€

This field is required

Vérifiez la ou les erreurs ci-dessus
+34 865 440 042

Réf. 9513648

En soumettant ce formulaire, vous confirmez que vous acceptez nos conditions d'utilisation et règles de confidentialité.

Partager

Biens immobiliers correspondants

2 chambre Appartement à vendre à Orihuela Costa, Orihuela avec piscine garage - 265 000 € (Ref: 8093819) 2 chambre Appartement à vendre à Orihuela Costa, Orihuela avec piscine - 263 000 € (Ref: 8921460) 3 chambre Appartement à vendre à Orihuela Costa, Orihuela avec piscine - 299 900 € (Ref: 9143569) 2 chambre Appartement à vendre à Orihuela Costa, Orihuela avec piscine garage - 272 000 € (Ref: 9324695)

Publicité

  1. Espagne
  2. Valence
  3. Alicante
  4. Costa Blanca
  5. Orihuela
  6. Orihuela Costa
  7. 2 chambre Appartement à vendre à Orihuela Costa, Orihuela avec piscine - 325 000 € (Ref: 9513648)