thinkSPAIN Logo
  • Acheter

    Propriétés à vendre

    • Voir toutes les propriétés à vendre
    • Commencez votre recherche en utilisant nos filtres
    • Utilisez notre recherche sur carte
    • Dessinez votre zone de recherche

    Recherches immobilières populaires

    Appartements Fincas/Maisons de Campagne Maisons de Ville Villas/Maisons
    Ascenseur Jardin Luxe Nouvelle construction Parking/Garage Piscine Terrasse/Balcon Vue sur la mer
    Alicante Almería Barcelone Benahavís Calpe / Calp Calvià Carthagène Costa Blanca Costa del Sol Dénia Estepona Gran Canaria Gérone Ibiza Madrid Malaga Mallorca Marbella Mazarrón Mijas Murcie Orihuela Palma de Mallorca Tenerife Torrevieja Valence
    Parcourez toutes les localisations et types de propriétés
  • Louer

    Propriétés à louer

    • Voir toutes les propriétés à louer
    • Locations de vacances
    • Commencez votre recherche en utilisant nos filtres
    • Utilisez notre recherche sur carte
    • Dessinez votre zone de recherche

    Recherches de location populaires

    Appartements Fincas/Maisons de Campagne Maisons de Ville Villas/Maisons
    Ascenseur Jardin Parking/Garage Piscine Première ligne de mer/plage Terrasse/Balcon Vue sur la mer Vues de la montagne
    Alicante Almería Almuñécar Altea Barcelone Calvià Carthagène Costa Blanca Costa del Sol Dénia Estepona Gran Canaria Grenade Ibiza Javea / Xàbia Madrid Malaga Mallorca Marbella Murcie Palma de Mallorca San Javier Tenerife Torrevieja Torrox Valence
    Parcourez toutes les localisations et types de propriétés
  • Je veux annoncer sur thinkSPAIN

    Je cherche un agent immobilier à:

    Alicante Almería Barcelone Cadix Castellón Grenade Gérone Malaga Tarragone Valence
    Voir tous les agents immobiliers
  • Carte / Dessinez votre zone

    Utilisez notre carte interactive pour trouver des propriétés

    • Recherche sur carte
    • Dessinez votre zone de recherche

    Recherches sur la carte populaires

    Alicante Almería Barcelone Benahavís Calpe / Calp Calvià Carthagène Costa Blanca Costa del Sol Dénia Estepona Gran Canaria Gérone Ibiza Madrid Malaga Mallorca Marbella Mazarrón Mijas Murcie Orihuela Palma de Mallorca Tenerife Torrevieja Valence
  • Annuaire

    Que cherchez-vous?

    • Agences immobilières
    • Experts en bâtiment
    • Architectes / Création architecturale
    • Avocats
    • Conseillers fiscaux
    • Courtiers en devises
    • Prêts hypothécaires
    • Entretien / gestion du bien immobilier

    Recherches récentes

    Agences immobilières dans Valence Agences immobilières dans Torrevieja Agences immobilières dans Ibiza ville Avocats dans Alicante Avocats dans Costa Blanca Avocats dans Orihuela Agences immobilières dans Fuerteventura Avocats dans Gandia Agences immobilières dans Costa Blanca Agences immobilières dans Mallorca Avocats dans Costa Valencia Agences immobilières dans Pulpí Avocats dans Alicante Agences immobilières dans Almuñécar
  • Aide et informations

    Comment pouvons-nous vous aider ?

    • Articles et guides
    • Connexion annonceur

    Recherches populaires

    Acheter un bien en Espagne S'installer en Espagne Prendre sa retraite en Espagne Vivre en Espagne Travailler en Espagne Lieux & Propriétés de Prestige Finances, législation et taxes Trouver la propriété qui vous convient Le style de vie et la culture espagnole Régions espagnoles Transport Processus de relocalisation Ménage Santé Marché immobilier Langues et intégration Alicante Murcie Sécurité Activités
  • Connexion annonceur
thinkSPAIN Logo Propriétés

Villa/Maison à vendre à Ciudad Quesada, Rojales, Alicante

  • 699 000 €
  • 153 m2
  • 4
  • 3
  • 504 m2
Propriétés

699 000 €

Réf. 9790203

Appel
  • 4 chambre Villa/Maison à vendre à Ciudad Quesada avec piscine - 699 000 € (Ref: 9790203)
  • 4 chambre Villa/Maison à vendre à Ciudad Quesada avec piscine - 699 000 € (Ref: 9790203)
  • 4 chambre Villa/Maison à vendre à Ciudad Quesada avec piscine - 699 000 € (Ref: 9790203)
  • 4 chambre Villa/Maison à vendre à Ciudad Quesada avec piscine - 699 000 € (Ref: 9790203)
  • 4 chambre Villa/Maison à vendre à Ciudad Quesada avec piscine - 699 000 € (Ref: 9790203)
  • 4 chambre Villa/Maison à vendre à Ciudad Quesada avec piscine - 699 000 € (Ref: 9790203)
  • 4 chambre Villa/Maison à vendre à Ciudad Quesada avec piscine - 699 000 € (Ref: 9790203)
  • 4 chambre Villa/Maison à vendre à Ciudad Quesada avec piscine - 699 000 € (Ref: 9790203)
  • 4 chambre Villa/Maison à vendre à Ciudad Quesada avec piscine - 699 000 € (Ref: 9790203)
  • 4 chambre Villa/Maison à vendre à Ciudad Quesada avec piscine - 699 000 € (Ref: 9790203)
  • 4 chambre Villa/Maison à vendre à Ciudad Quesada avec piscine - 699 000 € (Ref: 9790203)
  • 4 chambre Villa/Maison à vendre à Ciudad Quesada avec piscine - 699 000 € (Ref: 9790203)
  • 4 chambre Villa/Maison à vendre à Ciudad Quesada avec piscine - 699 000 € (Ref: 9790203)
  • 4 chambre Villa/Maison à vendre à Ciudad Quesada avec piscine - 699 000 € (Ref: 9790203)
  • 4 chambre Villa/Maison à vendre à Ciudad Quesada avec piscine - 699 000 € (Ref: 9790203)
  • 4 chambre Villa/Maison à vendre à Ciudad Quesada avec piscine - 699 000 € (Ref: 9790203)
  • 4 chambre Villa/Maison à vendre à Ciudad Quesada avec piscine - 699 000 € (Ref: 9790203)
  • 4 chambre Villa/Maison à vendre à Ciudad Quesada avec piscine - 699 000 € (Ref: 9790203)
  • 4 chambre Villa/Maison à vendre à Ciudad Quesada avec piscine - 699 000 € (Ref: 9790203)
  • 4 chambre Villa/Maison à vendre à Ciudad Quesada avec piscine - 699 000 € (Ref: 9790203)
  • 4 chambre Villa/Maison à vendre à Ciudad Quesada avec piscine - 699 000 € (Ref: 9790203)
  • 4 chambre Villa/Maison à vendre à Ciudad Quesada avec piscine - 699 000 € (Ref: 9790203)
  • 4 chambre Villa/Maison à vendre à Ciudad Quesada avec piscine - 699 000 € (Ref: 9790203)
  • 4 chambre Villa/Maison à vendre à Ciudad Quesada avec piscine - 699 000 € (Ref: 9790203)
  • 4 chambre Villa/Maison à vendre à Ciudad Quesada avec piscine - 699 000 € (Ref: 9790203)
  • 4 chambre Villa/Maison à vendre à Ciudad Quesada avec piscine - 699 000 € (Ref: 9790203)
  • 4 chambre Villa/Maison à vendre à Ciudad Quesada avec piscine - 699 000 € (Ref: 9790203)
  • 4 chambre Villa/Maison à vendre à Ciudad Quesada avec piscine - 699 000 € (Ref: 9790203)
  • 4 chambre Villa/Maison à vendre à Ciudad Quesada avec piscine - 699 000 € (Ref: 9790203)
  • 4 chambre Villa/Maison à vendre à Ciudad Quesada avec piscine - 699 000 € (Ref: 9790203)
  • 4 chambre Villa/Maison à vendre à Ciudad Quesada avec piscine - 699 000 € (Ref: 9790203)
  • 4 chambre Villa/Maison à vendre à Ciudad Quesada avec piscine - 699 000 € (Ref: 9790203)
  • 4 chambre Villa/Maison à vendre à Ciudad Quesada avec piscine - 699 000 € (Ref: 9790203)
  • 4 chambre Villa/Maison à vendre à Ciudad Quesada avec piscine - 699 000 € (Ref: 9790203)
  • 4 chambre Villa/Maison à vendre à Ciudad Quesada avec piscine - 699 000 € (Ref: 9790203)
1/35

699 000 €

Villa/Maison à vendre à Ciudad Quesada, Rojales, Alicante

  • 153 m2
  • 4
  • 3
  • 504 m2

Description

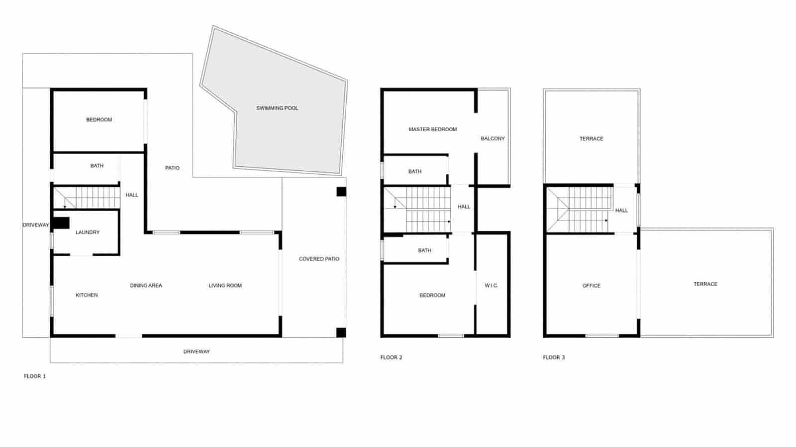
Cette villa contemporaine élégante orientée plein sud, construite en 2020 et entretenue dans un excellent état, offre un design raffiné, de vastes espaces de vie et une situation centrale très recherchée à Ciudad Quesada. Alliant architecture moderne et confort au quotidien, le bien est idéal pour une vie de famille, une résidence permanente ou des vacances de luxe.

La villa s’étend sur trois niveaux, conçus avec soin pour maximiser la lumière naturelle, le confort et la fonctionnalité.

Le rez-de-chaussée comprend un vaste espace de vie, salle à manger et cuisine en open-plan, créant une atmosphère accueillante et lumineuse. De grandes fenêtres donnent sur la piscine privée et le jardin, reliant harmonieusement la vie intérieure et extérieure. Une buanderie séparée apporte de la praticité, tandis qu’une chambre d’hôte élégante et une salle de bain complète terminent ce niveau.

Au premier étage, vous trouverez deux chambres généreuses, chacune avec sa propre salle de bain privative. L’une des chambres dispose d’un dressing walk-in, tandis que l’autre ouvre sur un balcon privé offrant des vues sur le jardin et la zone piscine.

Le niveau supérieur propose une quatrième pièce polyvalente, idéale comme bureau à domicile, studio ou espace d’hébergement supplémentaire. À partir de là, deux spacieuses terrasses offrent des vues étendues sur Ciudad Quesada, la campagne environnante, les lacs salés et même des aperçus de la mer Méditerranée.

Espaces extérieurs

Les espaces extérieurs sont pensés pour un entretien facile et une jouissance toute l’année, avec plusieurs terrasses pour dîner et se détendre, une zone dédiée pour bronzer, et une piscine privée de nage à eau salée. Le terrain entièrement clôturé offre également un stationnement sécurisé dans l’allée fermée par portail.

Emplacement & style de vie

Située dans une impasse calme, à quelques instants du cœur de Ciudad Quesada, cette villa bénéficie de l’une des positions les plus pratiques et les plus recherchées de la région. Les commodités du quotidien, notamment supermarchés, cafés, restaurants, pharmacies et magasins, se trouvent toutes à une courte marche de 300 mètres.

Ciudad Quesada est une communauté dynamique et bien établie proposant une large gamme d’activités de loisirs, telles que le golf à La Marquesa, le bowling, le mini-golf, un parc aquatique, des itinéraires de cyclisme et des promenades nature pittoresques. La présence d’écoles internationales norvégiennes et britanniques reconnues renforce encore l’attrait du quartier pour les familles.

Plages de Guardamar del Segura : env. 9 km (10 minutes)

Aéroport d’Alicante : env. 38 km (35 minutes)

Golf de La Marquesa : env. 4 km

Magasins et commodités : env. 300 m

Ce cadre central tout en étant paisible rend le bien parfaitement adapté à une vie à l’année, à des vacances ou à un investissement locatif à forte valeur.

Informations complémentaires

Fenêtres double vitrage pour l’efficacité énergétique

Piscine à eau salée facile d’entretien

Plusieurs terrasses pour recevoir et se détendre

Solarium avec vues panoramiques et partielles sur la mer

Finitions contemporaines et sols de haute qualité

Orientation plein sud maximisant la lumière naturelle tout au long de la journée.

Localisation

Ciudad Quesada, Rojales, Alicante Localisation indiquée par l'annonceur

Caractéristiques

  • Villa/Maison
  • Chambres : 4
  • Salles de bain : 3
  • Superficie: 153 m2
  • Terrain : 504 m2
  • Piscine privée
  • Vue sur la mer
  • Jardin
  • Climatisation
  • Terrasse/Balcon
  • Chauffage
  • Certificat énergétique: En cours

Comment pouvons-nous vous aider?

Avez-vous trouvé une erreur?

Dites-nous ce que vous avez détecté afin de le corriger

Calculateur d'hypothèque

€
€
%

2 219 € par mois*

+ 71 600 € impôts (69 900 €) & dépenses (1 700 €)*

*Veuillez noter que les résultats ne sont qu'un guide et non une offre ou un devis de prêt hypothécaire.

Contacter l'annonceur

Comment pouvons-nous vous aider?

€

This field is required

Vérifiez la ou les erreurs ci-dessus

Réf. 9790203

En soumettant ce formulaire, vous confirmez que vous acceptez nos conditions d'utilisation et règles de confidentialité.

Partager

Biens immobiliers correspondants

5 chambre Villa/Maison à vendre à Ciudad Quesada, Rojales avec piscine garage - 556 000 € (Ref: 8938192) 3 chambre Villa/Maison à vendre à Ciudad Quesada, Rojales avec piscine garage - 768 980 € (Ref: 9800261) 3 chambre Villa/Maison à vendre à Ciudad Quesada, Rojales avec piscine - 650 000 € (Ref: 8345930) 3 chambre Villa/Maison à vendre à Ciudad Quesada, Rojales avec piscine - 649 000 € (Ref: 8005304)

Publicité

  1. Espagne
  2. Valence
  3. Alicante
  4. Costa Blanca
  5. Rojales
  6. Ciudad Quesada
  7. 4 chambre Villa/Maison à vendre à Ciudad Quesada, Rojales avec piscine - 699 000 € (Ref: 9790203)
Appel