- 420 m2Superficie
- 4 Chambres
- 5 Salles de bain
- 1605 m2 Terrain
Cette villa de rêve est située dans l'une des zones les plus exclusives de Jávea - à La Mar Brava - juste au-dessus de l'île de Portichol, avec vue sur la mer et les montagnes de... Plus
Cette villa de rêve est située dans l'une des zones les plus exclusives de Jávea - à La Mar Brava - juste au-dessus de l'île de Portichol, avec vue sur la mer et les montagnes de... Plus
Cette magnifique propriété est perchée sur les falaises entre les célèbres criques d’Ambolo et de Granadella, un lieu où intimité et nature se marient parfaitement. Le vaste terrain de 1 258... Plus
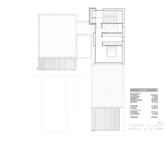
Nous vous présentons cette villa neuve et exclusive située dans le quartier d’El Piver à Jávea, Alicante, l’une des zones résidentielles les plus paisibles et recherchées de la région. À... Plus
Vivez au paradis dans la résidence exclusive La Cala de Jávea ! Nous vous présentons un projet exceptionnel de maison individuelle dans l’un des quartiers les plus recherchés de la Costa Blanca... Plus
Ce spectaculaire chef-d'œuvre moderne et avant-gardiste se trouve à seulement 8 minutes de la plage. Cette villa unique offre une vue panoramique dégagée sur les montagnes, la vallée et la... Plus
Votre refuge à Jávea Située dans la zone exclusive de Lomas Del Rey Jávea, cette villa de style ibizenco est la combinaison parfaite de luxe et de confort. Avec 4 chambres spacieuses et 4 salles... Plus
Style unique - possibilité d'extension - grand terrain de 5.302 m2 - construit de plain-pied - grand patio intérieur - possibilité de construire une autre maison de 671 m2 - rénovation début... Plus
Villa de luxe nouvellement construite au design inhabituel et à la qualité remarquable dans un quartier résidentiel, située au cœur d'une des meilleures infrastructures. D'immenses... Plus
Bienvenue dans la future maison de vos rêves dans le charmant quartier de Piver ! Cette magnifique villa de luxe en construction est conçue pour vous offrir une vie de confort, de style et... Plus
Grand terrain de 5 835m2 - Maison d'amis - Orientation sud - Magnifique jardin entouré de palmiers Propriété extraordinaire de style méditerranéen, avec plus de 5 835 m2 de terrain plat... Plus
Villa clé en main de style méditerranéen à Javea avec piscine privée et grand terrain Maison neuve exclusive à Valle del Sol Découvrez cette superbe villa clé en main située dans la paisible... Plus
Voici un projet exclusif et luxueux de villa dans le prestigieux quartier Balcón al Mar à Jávea. La villa est située dans un quartier calme, entourée de végétation et d’une belle nature avec... Plus
Cette villa neuve, construite en 2024, offre un design contemporain et une disposition confortable répartie sur deux niveaux. Le niveau supérieur comprend un vaste espace de vie ouvert avec salon,... Plus
Villa neuve exclusive à vendre à Jávea. Découvrez cette magnifique villa neuve située dans l'un des quartiers les plus privilégiés de Jávea, offrant une vue imprenable sur le majestueux... Plus
Découvrez cette impressionnante villa moderne, construite en 2019. Avec 5 chambres spacieuses, 5 salles de bains luxueuses et 2 toilettes supplémentaires, cette propriété est répartie sur trois... Plus
Villa clé en main de style méditerranéen à Javea avec piscine privée et grand terrain Maison neuve exclusive à Valle del Sol Découvrez cette superbe villa clé en main située dans la paisible... Plus