thinkSPAIN Logo
  • Acquista

    Proprietà in vendita

    • Vedi tutte le proprietà in vendita
    • Inizia la tua ricerca utilizzando i nostri filtri
    • Usa la nostra ricerca sulla mappa
    • Disegna la tua area di ricerca

    Ricerche immobiliari popolari

    Appartamenti Case Finca/Case di Campagna Ville
    Ascensore Giardino Lussuoso Nuova costruzione Parcheggio/Garage Piscina Terrazza/Balcone Vista sul mare
    Alicante Almería Barcellona Benahavís Calpe / Calp Calvià Cartagena Costa Blanca Costa del Sol Dénia Estepona Girona Gran Canaria Ibiza Madrid Maiorca Malaga Marbella Mazarrón Mijas Murcia Orihuela Palma de Mallorca Tenerife Torrevieja Valencia
    Sfoglia tutte le località e i tipi di proprietà
  • Affitta

    Proprietà in affitto

    • Vedi tutte le proprietà in affitto
    • Affitti per vacanze
    • Inizia la tua ricerca utilizzando i nostri filtri
    • Usa la nostra ricerca sulla mappa
    • Disegna la tua area di ricerca

    Ricerche di affitti popolari

    Appartamenti Case Finca/Case di Campagna Ville
    Ascensore Fronte mare Giardino Parcheggio/Garage Piscina Terrazza/Balcone Vista sul mare Vista sulle montagne
    Alicante Almería Almuñécar Altea Barcellona Calvià Cartagena Costa Blanca Costa del Sol Dénia Estepona Gran Canaria Granada Ibiza Javea / Xàbia Madrid Maiorca Malaga Marbella Murcia Palma de Mallorca San Javier Tenerife Torrevieja Torrox Valencia
    Sfoglia tutte le località e i tipi di proprietà
  • Voglio pubblicizzare su thinkSPAIN

    Cerco un agente immobiliare in:

    Alicante Almería Barcellona Cadice Castellon Girona Granada Malaga Tarragona Valencia
    Vedi tutti gli agenti immobiliari
  • Mappa / Disegna la tua area

    Usa la nostra mappa interattiva per trovare proprietà

    • Cerca sulla mappa
    • Disegna la tua area di ricerca

    Ricerche sulla mappa popolari

    Alicante Almería Barcellona Benahavís Calpe / Calp Calvià Cartagena Costa Blanca Costa del Sol Dénia Estepona Girona Gran Canaria Ibiza Madrid Maiorca Malaga Marbella Mazarrón Mijas Murcia Orihuela Palma de Mallorca Tenerife Torrevieja Valencia
  • Annuario

    Cosa stai cercando?

    • Agenti Immobiliari
    • Periti
    • Architetti / Progettazione Architettonica
    • Avvocati / Studi Legali
    • Consulenti Fiscali
    • Negoziatori di Valuta
    • Mediatori Creditizi
    • Manutenzione / Gestione Proprietà Immobiliare

    Ricerche recenti

    Agenti Immobiliari in Coín Avvocati / Studi Legali in Alicante Agenti Immobiliari in Albox Avvocati / Studi Legali in Costa Blanca Agenti Immobiliari in Malaga città Agenti Immobiliari in Teulada-Moraira Agenti Immobiliari in Costa Brava Mediatori Creditizi in Madrid città Agenti Immobiliari in Fuerteventura Avvocati / Studi Legali in Gandia Avvocati / Studi Legali in Alicante Agenti Immobiliari in Costa del Sol Avvocati / Studi Legali in Vera Agenti Immobiliari in Calpe / Calp
  • Aiuto e informazioni

    Come possiamo aiutarti?

    • Articoli e guide
    • Accesso inserzionisti

    Ricerche popolari

    Acquistare in Spagna Trasferirsi in Spagna Andare in pensione in Spagna Vivere in Spagna Lavorare in Spagna Località e Proprietà Top Finanza, legale e tributario Trovare l'immobile giusto Stile di vita e cultura spagnola Zone della Spagna Trasporto La procedura per traslocare Casa Assistenza sanitaria Mercato immobiliare Lingue e integrazione Alicante Murcia Sicurezza Attività
  • Accesso inserzionisti
thinkSPAIN Logo Proprietà

Appartamento da affitare come casa vacanza in Cómpeta, Malaga

  • Da 650€ / settimana
  • 80 m2
  • 2
  • 2
  • 90 m2
Proprietà

650 € / settimana

Rif. 6348905

Chiama
  • 2 camera da letto Appartamento da affitare come casa vacanza in Competa - 650 € (Rif: 6348905)
  • 2 camera da letto Appartamento da affitare come casa vacanza in Competa - 650 € (Rif: 6348905)
  • 2 camera da letto Appartamento da affitare come casa vacanza in Competa - 650 € (Rif: 6348905)
  • 2 camera da letto Appartamento da affitare come casa vacanza in Competa - 650 € (Rif: 6348905)
  • 2 camera da letto Appartamento da affitare come casa vacanza in Competa - 650 € (Rif: 6348905)
  • 2 camera da letto Appartamento da affitare come casa vacanza in Competa - 650 € (Rif: 6348905)
  • 2 camera da letto Appartamento da affitare come casa vacanza in Competa - 650 € (Rif: 6348905)
  • 2 camera da letto Appartamento da affitare come casa vacanza in Competa - 650 € (Rif: 6348905)
  • 2 camera da letto Appartamento da affitare come casa vacanza in Competa - 650 € (Rif: 6348905)
  • 2 camera da letto Appartamento da affitare come casa vacanza in Competa - 650 € (Rif: 6348905)
  • 2 camera da letto Appartamento da affitare come casa vacanza in Competa - 650 € (Rif: 6348905)
  • 2 camera da letto Appartamento da affitare come casa vacanza in Competa - 650 € (Rif: 6348905)
  • 2 camera da letto Appartamento da affitare come casa vacanza in Competa - 650 € (Rif: 6348905)
  • 2 camera da letto Appartamento da affitare come casa vacanza in Competa - 650 € (Rif: 6348905)
  • 2 camera da letto Appartamento da affitare come casa vacanza in Competa - 650 € (Rif: 6348905)
  • 2 camera da letto Appartamento da affitare come casa vacanza in Competa - 650 € (Rif: 6348905)
  • 2 camera da letto Appartamento da affitare come casa vacanza in Competa - 650 € (Rif: 6348905)
  • 2 camera da letto Appartamento da affitare come casa vacanza in Competa - 650 € (Rif: 6348905)
  • 2 camera da letto Appartamento da affitare come casa vacanza in Competa - 650 € (Rif: 6348905)
  • 2 camera da letto Appartamento da affitare come casa vacanza in Competa - 650 € (Rif: 6348905)
1/20

Da 650€ / settimana

Appartamento da affitare come casa vacanza in Cómpeta, Malaga

  • 80 m2
  • 2
  • 2
  • 90 m2

Descrizione

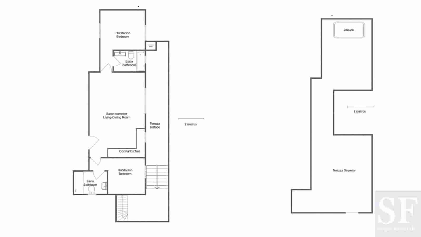
2 Camere da letto doppie (una con bagno privato) | Bagno |
Ampio soggiorno e sala da pranzo | Cucina completamente attrezzata |
Aria condizionata e riscaldamento | Asciugamani riscaldabili |
Finestre a doppio vetro | Armadi a muro |
Bellamente arredato e completamente attrezzato |
Biancheria di qualità e asciugamani forniti |
Spaziosa terrazza | Terrazza frontale | Jacuzzi |
TV e Wi-Fi | Vista mare, campagna e montagne |
Fabuloso attico di lusso con esposizione a sud-ovest che cattura le Sierras e la linea costiera mediterranea, situato in una posizione centrale all'interno del villaggio bianco di montagna di Cómpeta.
Con ogni tipo di dettaglio per garantire che la tua visita sia perfetta, l'appartamento è stato progettato, arredato e attrezzato ai più alti livelli. Aria condizionata e riscaldamento in tutto l'appartamento lo rendono adatto per l'uso durante tutto l'anno.
La camera da letto principale beneficia di un bagno con doccia privato e la camera con due letti ha l'uso del bagno degli ospiti con vasca. Il suo ampio soggiorno con sala da pranzo e la sua cucina completamente attrezzata conducono a una terrazza esposta a sud-ovest, dove ci sono scale che portano alla spaziosa terrazza con aree per sedersi e mangiare e la Jacuzzi ~ un ambiente idilliaco per godere dei spettacolari tramonti andalusi.
Situato nella bellissima regione della Axarquía e ai piedi del sistema montuoso delle Sierras Almijara e Tejeda e del Parco Naturale ~ desiderabile per escursionisti e amanti della natura e con le spiagge della Costa del Sol a soli 30 minuti di auto. Cómpeta offre una grande varietà di bar e ristoranti che servono cucina tradizionale e invitante e una varietà di negozi che vendono prodotti locali e artigianato.

Località

Cómpeta, Malaga La posizione non è stata fornita.

Caratteristiche

  • Appartamento
  • Camere da letto: 2
  • Bagni: 2
  • Costruzione: 80 m2
  • Lotto: 90 m2
  • Vista sul mare
  • Aria condizionata
  • Terrazza/Balcone
  • Riscaldamento
  • Valutazione di efficienza energetica: In corso

Come possiamo aiutarti?

Hai trovato un errore?

Diteci cosa avete rilevato per correggerlo

Contatta l'Inserzionista

Come possiamo aiutarti?

This field is required

Controllare l'errore (o gli errori) di cui sopra

Rif. 6348905

Inoltrando questo modulo, confermi di accettare i nostri Termini di utilizzo e la nostra Informativa sulla Privacy.

Condividi

Proprietà correlate

3 camera da letto Appartamento da affitare come casa vacanza in Cómpeta - 630 € (Rif: 3307011) 2 camera da letto Appartamento da affitare come casa vacanza in Cómpeta - 550 € (Rif: 4100985) 2 camera da letto Appartamento da affitare come casa vacanza in El Morche, Torrox con piscina - 500 € (Rif: 8389463) 1 camera da letto Appartamento da affitare come casa vacanza in Nerja con piscina garage - 600 € (Rif: 9691644)

Pubblicità

  1. Spagna
  2. Andalusia
  3. Malaga
  4. Costa del Sol
  5. Cómpeta
  6. 2 camera da letto Appartamento da affitare come casa vacanza in Cómpeta - 650 € (Rif: 6348905)
Chiama