thinkSPAIN Logo
  • Acquista

    Proprietà in vendita

    • Vedi tutte le proprietà in vendita
    • Inizia la tua ricerca utilizzando i nostri filtri
    • Usa la nostra ricerca sulla mappa
    • Disegna la tua area di ricerca

    Ricerche immobiliari popolari

    Appartamenti Case Finca/Case di Campagna Ville
    Ascensore Giardino Lussuoso Nuova costruzione Parcheggio/Garage Piscina Terrazza/Balcone Vista sul mare
    Alicante Almería Barcellona Benahavís Calvià Cartagena Costa Blanca Costa del Sol Dénia Estepona Girona Gran Canaria Ibiza Javea / Xàbia Madrid Maiorca Malaga Marbella Mazarrón Mijas Murcia Orihuela Palma de Mallorca Tenerife Torrevieja Valencia
    Sfoglia tutte le località e i tipi di proprietà
  • Affitta

    Proprietà in affitto

    • Vedi tutte le proprietà in affitto
    • Affitti per vacanze
    • Inizia la tua ricerca utilizzando i nostri filtri
    • Usa la nostra ricerca sulla mappa
    • Disegna la tua area di ricerca

    Ricerche di affitti popolari

    Appartamenti Case Finca/Case di Campagna Ville
    Ascensore Giardino Nuova costruzione Parcheggio/Garage Piscina Terrazza/Balcone Vista sul mare Vista sulle montagne
    Alicante Almería Almuñécar Altea Barcellona Calvià Cartagena Costa Blanca Costa del Sol Dénia Estepona Gran Canaria Granada Ibiza Madrid Maiorca Malaga Marbella Murcia Orihuela Palma de Mallorca San Javier Tenerife Torrevieja Torrox Valencia
    Sfoglia tutte le località e i tipi di proprietà
  • Voglio pubblicizzare su thinkSPAIN

    Cerco un agente immobiliare in:

    Alicante Almería Barcellona Cadice Castellon Girona Granada Malaga Tarragona Valencia
    Vedi tutti gli agenti immobiliari
  • Mappa / Disegna la tua area

    Usa la nostra mappa interattiva per trovare proprietà

    • Cerca sulla mappa
    • Disegna la tua area di ricerca

    Ricerche sulla mappa popolari

    Alicante Almería Barcellona Benahavís Calvià Cartagena Costa Blanca Costa del Sol Dénia Estepona Girona Gran Canaria Ibiza Javea / Xàbia Madrid Maiorca Malaga Marbella Mazarrón Mijas Murcia Orihuela Palma de Mallorca Tenerife Torrevieja Valencia
  • Annuario

    Cosa stai cercando?

    • Agenti Immobiliari
    • Periti
    • Architetti / Progettazione Architettonica
    • Avvocati / Studi Legali
    • Consulenti Fiscali
    • Negoziatori di Valuta
    • Mediatori Creditizi
    • Manutenzione / Gestione Proprietà Immobiliare

    Ricerche recenti

    Agenti Immobiliari in Marbella Avvocati / Studi Legali in Alicante Agenti Immobiliari in Ibiza Agenti Immobiliari in Palma de Mallorca Agenti Immobiliari in Costa Brava Avvocati / Studi Legali in Alicante Agenti Immobiliari in Antigua Mediatori Creditizi in Madrid città Manutenzione / Gestione Proprietà Immobiliare in Alicante Avvocati / Studi Legali in Costa Blanca Avvocati / Studi Legali in Valencia Agenti Immobiliari in Ibiza-Eivissa città Agenti Immobiliari in Oliva Agenti Immobiliari in Pliego
  • Aiuto e informazioni

    Come possiamo aiutarti?

    • Articoli e guide
    • Accesso inserzionisti

    Ricerche popolari

    Acquistare in Spagna Trasferirsi in Spagna Andare in pensione in Spagna Vivere in Spagna Lavorare in Spagna Località e Proprietà Top Finanza, legale e tributario Trovare l'immobile giusto Stile di vita e cultura spagnola Zone della Spagna La procedura per traslocare Trasporto Assistenza sanitaria Casa Mercato immobiliare Alicante Lingue e integrazione Sicurezza Lavoro autonomo Trovare lavoro
  • Accesso inserzionisti
thinkSPAIN Logo Proprietà

Appartamento in vendita in Benijófar, Alicante

  • 354.000 €
  • 81 m2
  • 3
  • 2
Proprietà

354.000 €

Rif. 9332399

Chiama
  • 3 camera da letto Appartamento in vendita in Benijofar con piscina - 354.000 € (Rif: 9332399)
  • 3 camera da letto Appartamento in vendita in Benijofar con piscina - 354.000 € (Rif: 9332399)
  • 3 camera da letto Appartamento in vendita in Benijofar con piscina - 354.000 € (Rif: 9332399)
  • 3 camera da letto Appartamento in vendita in Benijofar con piscina - 354.000 € (Rif: 9332399)
  • 3 camera da letto Appartamento in vendita in Benijofar con piscina - 354.000 € (Rif: 9332399)
  • 3 camera da letto Appartamento in vendita in Benijofar con piscina - 354.000 € (Rif: 9332399)
  • 3 camera da letto Appartamento in vendita in Benijofar con piscina - 354.000 € (Rif: 9332399)
  • 3 camera da letto Appartamento in vendita in Benijofar con piscina - 354.000 € (Rif: 9332399)
  • 3 camera da letto Appartamento in vendita in Benijofar con piscina - 354.000 € (Rif: 9332399)
  • 3 camera da letto Appartamento in vendita in Benijofar con piscina - 354.000 € (Rif: 9332399)
  • 3 camera da letto Appartamento in vendita in Benijofar con piscina - 354.000 € (Rif: 9332399)
  • 3 camera da letto Appartamento in vendita in Benijofar con piscina - 354.000 € (Rif: 9332399)
  • 3 camera da letto Appartamento in vendita in Benijofar con piscina - 354.000 € (Rif: 9332399)
  • 3 camera da letto Appartamento in vendita in Benijofar con piscina - 354.000 € (Rif: 9332399)
  • 3 camera da letto Appartamento in vendita in Benijofar con piscina - 354.000 € (Rif: 9332399)
1/15

354.000 €

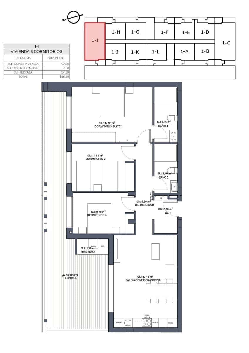
Appartamento in vendita in Benijófar, Alicante

  • 81 m2
  • 3
  • 2

Descrizione

Residenziale di nuova costruzione con piscina condominiale sulla terrazza situato nel centro del caratteristico paese di Benijófar.

Puoi scegliere tra moderni appartamenti con terrazze o attici con solarium.

Alloggi moderni di nuova costruzione con cucina a vista e soggiorno, 2 e 3 camere da letto, 2 bagni, terrazze.

Un posto auto sotterraneo disponibile a un costo aggiuntivo.

Benijófar è un paese affascinante con una incantevole chiesa e una piazza attraente situata nell’entroterra della Costa Blanca Sud, vicino ai centri turistici di Guardamar del Segura e Torrevieja.

Benijófar è anche una meta popolare per le vacanze estive, essendo abbastanza vicino ai centri turistici costieri ma sufficientemente tranquillo per potersi allontanare da tutto.

Ci sono diversi campi da golf nelle vicinanze, oltre a parchi acquatici nelle vicine Rojales e Torrevieja.

Le spiagge più vicine e migliori di Benijófar si trovano a circa quindici minuti in auto e sono alcune delle migliori spiagge della Costa Blanca Sud, a Guardamar del Segura e Torrevieja. Ci sono anche servizi regolari di autobus da Benijófar a Guardamar del Segura e Torrevieja con facile accesso alle spiagge.

A 20 minuti in auto dall’aeroporto di Alicante con voli regolari verso tutta l’Europa.

799

Località

Benijófar, Alicante Località fornita dall'Inserzionista

Caratteristiche

  • Appartamento
  • Camere da letto: 3
  • Bagni: 2
  • Costruzione: 81 m2
  • Nuova costruzione
  • Piscina comunale
  • Vicino alla spiaggia/mare
  • Vicino al campo da golf
  • Terrazza/Balcone
  • Valutazione di efficienza energetica: In corso

Come possiamo aiutarti?

Hai trovato un errore?

Diteci cosa avete rilevato per correggerlo

Calcolatore di ipoteca

€
€
%

1.124 € al mese*

+ 37.100 € taxes (35.400 €) & expenses (1.700 €)*

*Si prega di notare che i risultati sono solo una guida e non un'offerta di ipoteca o un preventivo.

Contatta l'Inserzionista

Come possiamo aiutarti?

€

This field is required

Controllare l'errore (o gli errori) di cui sopra
+34 965 023 754

Rif. 9332399

Inoltrando questo modulo, confermi di accettare i nostri Termini di utilizzo e la nostra Informativa sulla Privacy.

Condividi

Proprietà correlate

3 camera da letto Appartamento in vendita in Benijófar con piscina - 289.900 € (Rif: 9572039) 2 camera da letto Appartamento in vendita in Benijófar con piscina - 286.000 € (Rif: 8926541) 2 camera da letto Appartamento in vendita in Benijófar con piscina - 293.000 € (Rif: 8926544) 2 camera da letto Appartamento in vendita in Benijófar con piscina - 283.000 € (Rif: 8926524)

Pubblicità

  1. Spagna
  2. Valencia
  3. Alicante
  4. Costa Blanca
  5. Benijófar
  6. 3 camera da letto Appartamento in vendita in Benijófar con piscina - 354.000 € (Rif: 9332399)
Chiama