thinkSPAIN Logo
  • Acquista

    Proprietà in vendita

    • Vedi tutte le proprietà in vendita
    • Inizia la tua ricerca utilizzando i nostri filtri
    • Usa la nostra ricerca sulla mappa
    • Disegna la tua area di ricerca

    Ricerche immobiliari popolari

    Appartamenti Case Finca/Case di Campagna Ville
    Ascensore Giardino Lussuoso Nuova costruzione Parcheggio/Garage Piscina Terrazza/Balcone Vista sul mare
    Alicante Almería Barcellona Benahavís Calvià Cartagena Costa Blanca Costa del Sol Dénia Estepona Girona Gran Canaria Ibiza Javea / Xàbia Madrid Maiorca Malaga Marbella Mazarrón Mijas Murcia Orihuela Palma de Mallorca Tenerife Torrevieja Valencia
    Sfoglia tutte le località e i tipi di proprietà
  • Affitta

    Proprietà in affitto

    • Vedi tutte le proprietà in affitto
    • Affitti per vacanze
    • Inizia la tua ricerca utilizzando i nostri filtri
    • Usa la nostra ricerca sulla mappa
    • Disegna la tua area di ricerca

    Ricerche di affitti popolari

    Appartamenti Case Finca/Case di Campagna Ville
    Ascensore Giardino Nuova costruzione Parcheggio/Garage Piscina Terrazza/Balcone Vista sul mare Vista sulle montagne
    Alicante Almería Almuñécar Altea Barcellona Calvià Cartagena Costa Blanca Costa del Sol Dénia Estepona Gran Canaria Granada Ibiza Madrid Maiorca Malaga Marbella Murcia Orihuela Palma de Mallorca Tenerife Torre-Pacheco Torrevieja Torrox Valencia
    Sfoglia tutte le località e i tipi di proprietà
  • Voglio pubblicizzare su thinkSPAIN

    Cerco un agente immobiliare in:

    Alicante Almería Barcellona Cadice Castellon Girona Granada Malaga Tarragona Valencia
    Vedi tutti gli agenti immobiliari
  • Mappa / Disegna la tua area

    Usa la nostra mappa interattiva per trovare proprietà

    • Cerca sulla mappa
    • Disegna la tua area di ricerca

    Ricerche sulla mappa popolari

    Alicante Almería Barcellona Benahavís Calvià Cartagena Costa Blanca Costa del Sol Dénia Estepona Girona Gran Canaria Ibiza Javea / Xàbia Madrid Maiorca Malaga Marbella Mazarrón Mijas Murcia Orihuela Palma de Mallorca Tenerife Torrevieja Valencia
  • Come possiamo aiutarti?

    • Articoli e guide
    • Elenco di aziende e servizi
    • Accesso per inserzionisti

    Ricerche popolari

    Avvocati / Studi Legali Mediatori Creditizi Agenti Immobiliari Manutenzione / Gestione Proprietà Immobiliare Negoziatori di Valuta Periti Architetti / Progettazione Architettonica Consulenti Fiscali
    Finanza, legale e tributario Acquistare in Spagna Vivere in Spagna Trasferirsi in Spagna Trovare l'immobile giusto Stile di vita e cultura spagnola Zone della Spagna Lavorare in Spagna Andare in pensione in Spagna Località e Proprietà Top La procedura per traslocare Trasporto
thinkSPAIN Logo Proprietà

Appartamento in vendita in Carolinas Bajas, Alicante città, Alicante

  • 298.900 €
  • 84 m2
  • 2
  • 2

298.900 € Rif. 9613423

Proprietà
Rif. 9613423
Chiama
  • 2 camera da letto Appartamento in vendita in Alicante citta con piscina - 298.900 € (Rif: 9613423)
  • 2 camera da letto Appartamento in vendita in Alicante citta con piscina - 298.900 € (Rif: 9613423)
  • 2 camera da letto Appartamento in vendita in Alicante citta con piscina - 298.900 € (Rif: 9613423)
  • 2 camera da letto Appartamento in vendita in Alicante citta con piscina - 298.900 € (Rif: 9613423)
  • 2 camera da letto Appartamento in vendita in Alicante citta con piscina - 298.900 € (Rif: 9613423)
  • 2 camera da letto Appartamento in vendita in Alicante citta con piscina - 298.900 € (Rif: 9613423)
  • 2 camera da letto Appartamento in vendita in Alicante citta con piscina - 298.900 € (Rif: 9613423)
  • 2 camera da letto Appartamento in vendita in Alicante citta con piscina - 298.900 € (Rif: 9613423)
  • 2 camera da letto Appartamento in vendita in Alicante citta con piscina - 298.900 € (Rif: 9613423)
  • 2 camera da letto Appartamento in vendita in Alicante citta con piscina - 298.900 € (Rif: 9613423)
  • 2 camera da letto Appartamento in vendita in Alicante citta con piscina - 298.900 € (Rif: 9613423)
  • 2 camera da letto Appartamento in vendita in Alicante citta con piscina - 298.900 € (Rif: 9613423)
  • 2 camera da letto Appartamento in vendita in Alicante citta con piscina - 298.900 € (Rif: 9613423)
  • 2 camera da letto Appartamento in vendita in Alicante citta con piscina - 298.900 € (Rif: 9613423)
  • 2 camera da letto Appartamento in vendita in Alicante citta con piscina - 298.900 € (Rif: 9613423)
  • 2 camera da letto Appartamento in vendita in Alicante citta con piscina - 298.900 € (Rif: 9613423)
  • 2 camera da letto Appartamento in vendita in Alicante citta con piscina - 298.900 € (Rif: 9613423)
  • 2 camera da letto Appartamento in vendita in Alicante citta con piscina - 298.900 € (Rif: 9613423)
  • 2 camera da letto Appartamento in vendita in Alicante citta con piscina - 298.900 € (Rif: 9613423)
1/19

298.900 €

Appartamento in vendita in Carolinas Bajas, Alicante città, Alicante

  • 84 m2
  • 2
  • 2

Descrizione

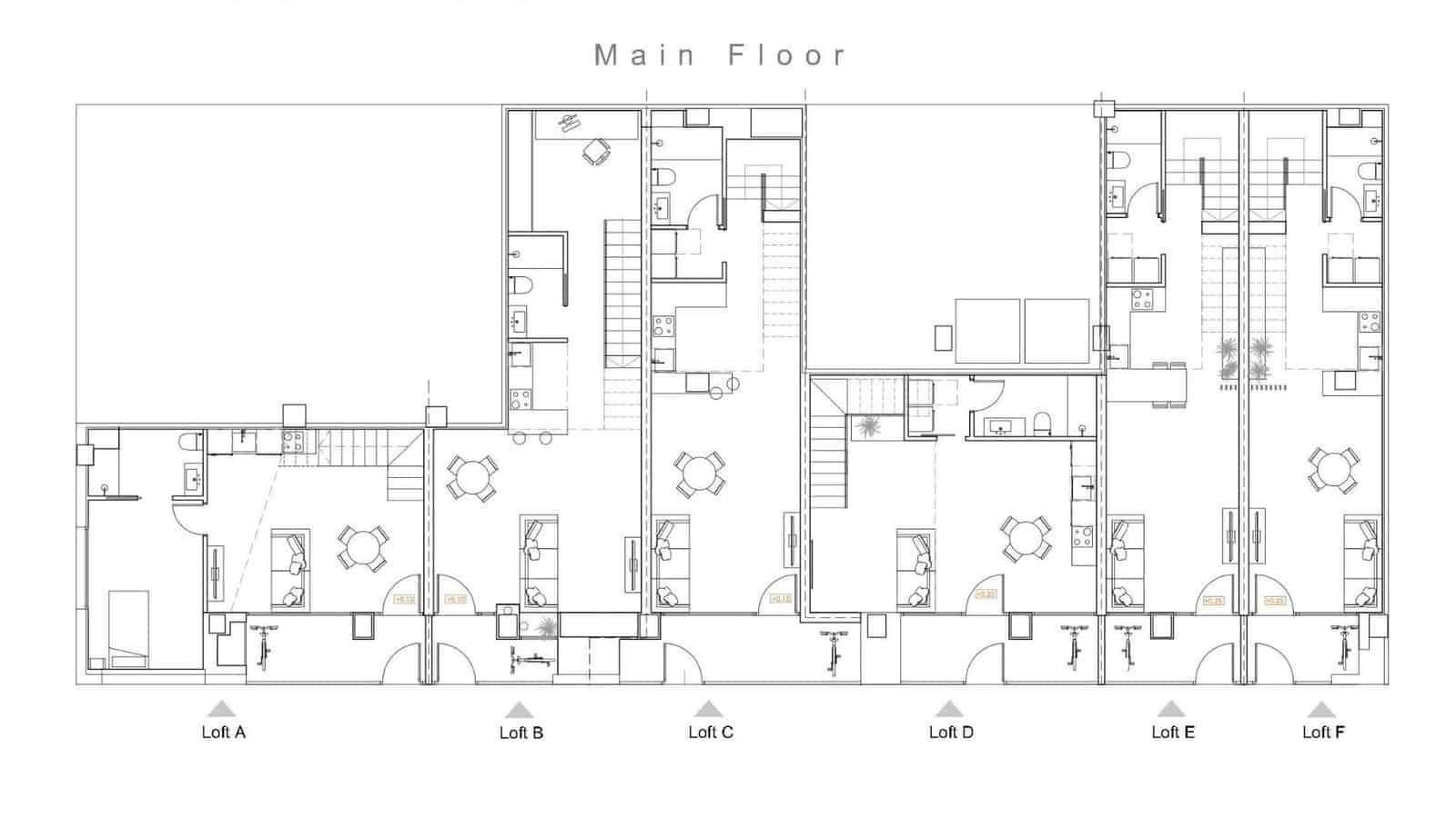
Moderni appartamenti duplex tipo loft nel cuore di Alicante

Esclusiva promozione nuova nel quartiere di Benalúa
Scoprite un'opportunità eccezionale per acquistare un elegante appartamento duplex tipo loft a Benalúa, uno dei quartieri più vivaci e ben collegati di Alicante. Questo progetto unico trasforma sei locali commerciali inutilizzati in loft residenziali moderni, offrendo uno stile di vita urbano a soli 1 km dalla costa mediterranea. Benalúa è conosciuta per i negozi locali, le caffetterie, l'attività culturale e la vicinanza al centro città, rendendolo una zona molto ambita sia dai residenti che dagli investitori.

Design contemporaneo in stile loft
Ogni abitazione è stata completamente riprogettata per offrire uno spazio fresco, aperto ed elegante. La promozione comprende loft duplex con 1 e 2 camere da letto con 2 bagni, tutti dotati di impressionanti zone a doppia altezza che valorizzano la luce naturale e forniscono un autentico ambiente loft. Il piano superiore ospita una camera da letto e un bagno completo, creando privacy e comfort.

Con accesso indipendente dalla strada e terrazza privata, ogni appartamento combina l'architettura moderna con la funzionalità. Le finiture di alta qualità, le distribuzioni contemporanee e gli interni luminosi fanno di questi loft una scelta di rilievo per chi cerca stile e funzionalità.

Comfort e servizi comuni
I residenti godranno di accesso a una piscina comune situata all'interno dell'edificio, che offre un ambiente rilassante e rinfrescante per le calde giornate mediterranee. Le terrazze private e gli ingressi indipendenti aggiungono un ulteriore livello di comodità ed esclusività.

Posizione privilegiata vicino ai principali punti di interesse
Con una posizione perfetta sia per viverci che per investire, la promozione è circondata da servizi essenziali e principali attrazioni:
Passeggiata marittima di Alicante: 1 km
Stazione ferroviaria Renfe: 0,8 km
Centro commerciale El Corte Inglés: 0,7 km
Palazzo di Giustizia di Alicante: 0,5 km
Aeroporto di Alicante: 12 km
Porto sportivo e porto di Alicante: 2 km
Campi da golf (Alicante Golf): 7 km

La zona offre eccellenti collegamenti di trasporto pubblico, luoghi culturali, aree verdi e facile accesso alle bellissime spiagge della città.

Un investimento intelligente nello stile di vita costiero di Alicante
Che stiate cercando una residenza abituale, una proprietà per vacanze o un investimento con grande potenziale di affitto, questi appartamenti duplex tipo loft a Benalúa rappresentano un'opportunità unica in una delle zone più promettenti di Alicante.

Accesso alla piscina soggetto all'approvazione della comunità quando verrà effettuata la change of use dei locali.

Località

Carolinas Bajas, Alicante città, Alicante Località fornita dall'Inserzionista

Caratteristiche

  • Appartamento
  • Camere da letto: 2
  • Bagni: 2
  • Costruzione: 84 m2
  • Nuova costruzione
  • Piscina comunale
  • Terrazza/Balcone
  • Certificato Energetico (Consumo): B
  • Certificato energetico (Emissioni): B

Come possiamo aiutarti?

Hai trovato un errore?

Diteci cosa avete rilevato per correggerlo

Calcolatore di ipoteca

€
€
%

949 € al mese*

+ 31.590 € taxes (29.890 €) & expenses (1.700 €)*

*Si prega di notare che i risultati sono solo una guida e non un'offerta di ipoteca o un preventivo.

Contatta l'Inserzionista

Come possiamo aiutarti?

This field is required

Controllare l'errore (o gli errori) di cui sopra
+34 865 445 392

Rif. 9613423

Inoltrando questo modulo, confermi di accettare i nostri Termini di utilizzo e la nostra Informativa sulla Privacy.

Condividi

Proprietà correlate

2 camera da letto Appartamento in vendita in Carolinas Bajas, Alicante città con piscina - 319.900 € (Rif: 9432612) 2 camera da letto Appartamento in vendita in Carolinas Bajas, Alicante città con piscina - 309.900 € (Rif: 9432613) 2 camera da letto Appartamento in vendita in Carolinas Bajas, Alicante città con piscina - 319.900 € (Rif: 9613424) 1 camera da letto Appartamento in vendita in Carolinas Bajas, Alicante città con piscina - 249.900 € (Rif: 9613425)

Pubblicità

  1. Spagna
  2. Valencia
  3. Alicante
  4. Costa Blanca
  5. Alicante città
  6. Carolinas Bajas
  7. 2 camera da letto Appartamento in vendita in Carolinas Bajas, Alicante città con piscina - 298.900 € (Rif: 9613423)