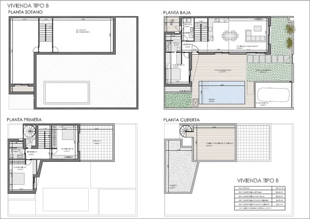
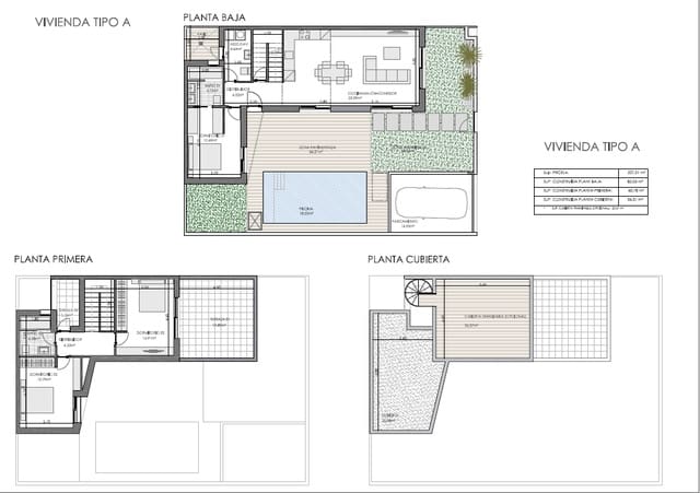
- 98 m2 Costruzione
- 3 Camere da letto
- 3 Bagni
- 151 m2 Lotto
Situato a Elche, questo complesso residenziale offre una collezione di 7 villette a schiera progettate per garantire il massimo comfort e funzionalità. Ogni abitazione è distribuita con cura per... Leggi di più