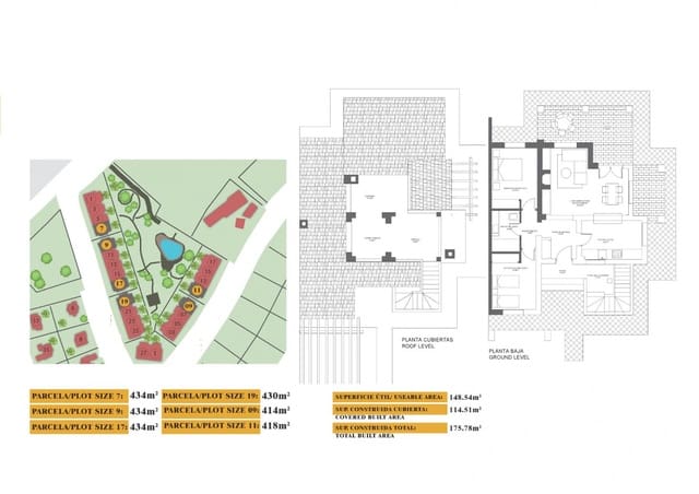
- 164 m2 Costruzione
- 2 Camere da letto
- 1 Bagno
- 275 m2 Lotto
Lussuose villette a schiera e ville nuove in un ambiente paesaggistico senza eguali nella zona di Las Palas, Fuente Álamo de Murcia, 159 m2 di superficie, 275 m2 di superficie del terreno, 100 m2 di... Leggi di più