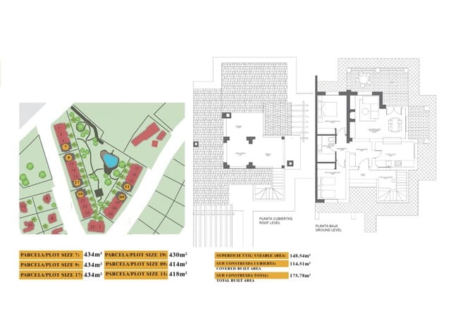
- 149 m2 Costruzione
- 4 Camere da letto
- 3 Bagni
- 178 m2 Lotto
Scopri questo magnifico duplex a Molina de Segura, un abitazione ampia, con autoconsumo di energia solare incluso, luminosa e perfettamente progettata per chi cerca comodità, spazio e qualità della... Leggi di più