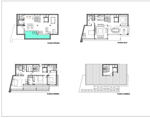
- 410 m2 Costruzione
- 4 Camere da letto
- 6 Bagni
- 660 m2 Lotto
Villa di lusso moderna e indipendente con impressionanti viste sul mare L'abitazione dispone di ascensore per maggiore comodità che collega i 3 piani della casa. Da tutte le camere da letto e... Leggi di più