Regioni

Province

Isole

Coste

Comuni

Distretti

Quartieri

Aree

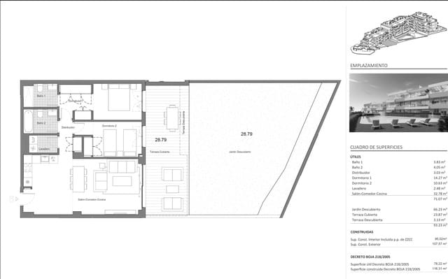
Proprietà con 2 Camere da letto in vendita in Parque Central, Estepona

163 trovato

163 trovato

  1. Spagna
  2. Andalusia
  3. Malaga
  4. Costa del Sol
  5. Estepona
  6. Estepona Pueblo
  7. Parque Central