- 630 m2 Tomt
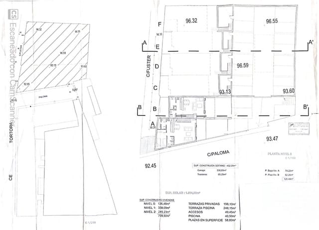
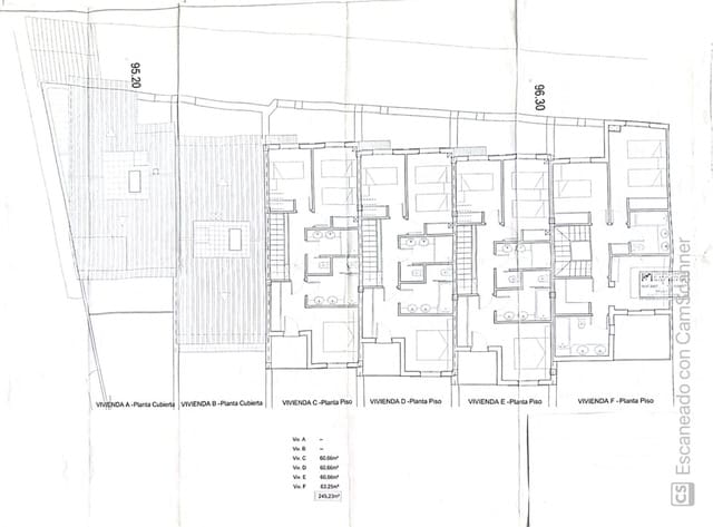
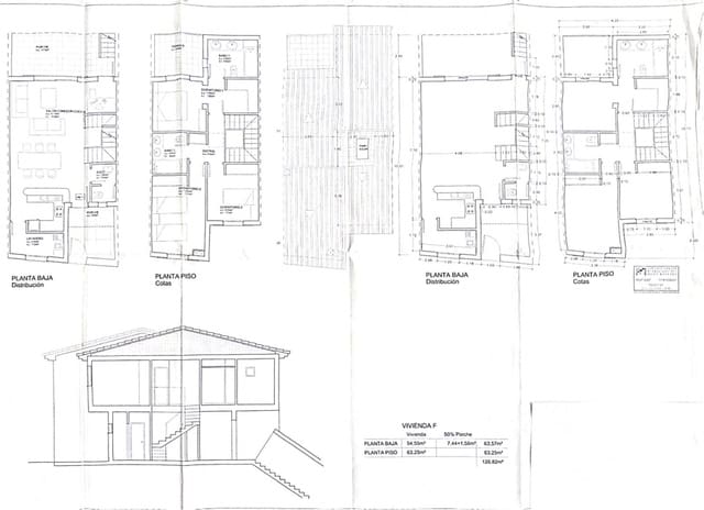
Denne firkantede, flerfamiliegrunnen til salgs tilbyr mulighet til å bygge en fire-etasjers bygning med boliger, parkeringsplass i kjelleren og basseng eller små private bassenger. Utsikt mot... Les mer
Denne firkantede, flerfamiliegrunnen til salgs tilbyr mulighet til å bygge en fire-etasjers bygning med boliger, parkeringsplass i kjelleren og basseng eller små private bassenger. Utsikt mot... Les mer
Stor mulighet! Byggegrunn i La Bonanova, Palma de Mallorca Dette byggegrunn ligger i La Bonanova, et av de mest eksklusive og rolige områdene i Palma de Mallorca. Omgitt av natur og med klare... Les mer
Oppdag en unik investeringsmulighet i et av Palmas mest eksklusive boligområder. Fire uavhengige byggegrunntomter samlet sett, hver med godkjent byggeløyve for å utvikle en luksusvilla med privat... Les mer
Vi har flere off-market muligheter for tomter på Mallorca, beliggende i områder med stor etterspørsel både for boligutvikling og kapitalinvestering. For øyeblikket har vi ulike tomter og potter... Les mer
Drømme sjøutsikt tomt med prosjekt og tillatelse i Genova Oppfyll drømmen om en villa med sjøutsikt og panoramavue i Genova! Beliggende i hjertet av Génova, et av Palma’s mest etterspurte og... Les mer
Tomt i Genova med grunnleggende prosjekt uten lisenser. Beliggenheten i Genova, i Palma de Mallorca, høres eksepsjonell ut! Her er et sammendrag av informasjonen om denne tomten med et grunnleggende... Les mer
Unik investeringsmulighet. Denne eksklusive tomten ligger i det populære Genova og tilbyr et areal på ca. 1.286 m2. Det finnes allerede et prosjekt for bygging av en luksusvilla. Prosjektet består... Les mer
Vi har flere off-market muligheter for tomter på Mallorca, beliggende i områder med stor etterspørsel både for boligutvikling og kapitalinvestering. For øyeblikket har vi ulike tomter og potter... Les mer