- 32492 m2 Tomt
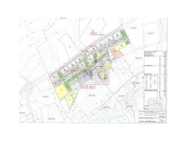
Planlagt utbyggbart grunn i La Nueva Condomina. Boligutnyttet utbyggbart areal til salgs, bestående av tre tomter som har totalt areal 32 492 m2 og en omtrentlig bygningskvote på 22 590 m2t, i... Les mer
Beklager, vi kunne ikke finne Tomter og eiendomsruiner til salgs i Zarandona treff for søket ditt. Vi anbefaler følgende:
Planlagt utbyggbart grunn i La Nueva Condomina. Boligutnyttet utbyggbart areal til salgs, bestående av tre tomter som har totalt areal 32 492 m2 og en omtrentlig bygningskvote på 22 590 m2t, i... Les mer
Selges som ideelt jordområde for planting og produksjon av grønnsaker og hagevarer. For tiden er området beplantet og i full produksjon, noe som gjør det til en utmerket mulighet både for... Les mer
Investeringsmulighet, urbane tomter i Murcia. Aktiviteten består av 11 tomter for utvikling av 99 frittstående flerfamilieboliger i tradisjonelt lukket kvartal og kommersiell lokal i første etasje... Les mer
Til salgs en bytomt på 5000 m² klassifisert som spesialbytomt, beliggende på Senda de Granada. Eiendommen har en 65 meter lang fasade og en eksisterende bygning i ruiner, tidligere brukt som... Les mer
Til salgs dette fantastiske tomten på 102 m2. Fasade som bolig. Mulighet for å bygge opptil tre etasjer. For tiden er det sementert gulv. Ligger ved siden av Barriomar skolen. Kostnader for kjøp -... Les mer
Fantastisk tomt ved landsbyen Valladolises uregulert jordbruksareal til salgs et stort utvalg av jord mellom hvilke vi finner denne Eiendommen i Murcia. Beliggenhet i Lugar La Mariana og El Cortijo,... Les mer
Fantastisk tomt i Beniajan-området for å bygge drømmehuset ditt! Tilgang til vann, strøm, avløp, 1300 kvadratmeter. Med geoteknisk studie og boligprosjekt innlevert for ett år siden. Ligger på... Les mer
Vi presenterer denne tomten på 1.972 m2 bare 10 minutter fra sentrum av Murcia i Aljucer, som har utmerket tilgjengelighet og gir deg muligheten til å bygge drømmehjemmet ditt i Huerta de Murcia.... Les mer
Mulighet for et sett med 5 urbane tomter i Aljucer som venter på urbanisering, eiendom eid av en bank uten gebyrer. Stor mulighet til å kjøpe denne boligbyggetomten i kommunen Murcia. Med... Les mer
Beliggenhet: Paraje La Matanza, Sitio de los Cuadros, nær Santomera demningen (Santomera, Murcia). Generell beskrivelse Vi legger ut denne fantastiske landlige eiendommen som er ideell for... Les mer
Tomt til salgs på 153 m² som ligger i sentrum av La Alberca (Murcia). Konsolidert bygningsareal. Dette er en tomt mellom bygninger (de 3 naboene er bygninger med kjeller, nylig bygget). Med en... Les mer
Skjøtet oppdelt tomt i Murcia, provinse Murcia, med flerfamiliebolig bruksområde og et areal på 2.100 m², med estimert bebyggelse på 4.255 m². Tomten tilhører et område på 452.5862 m², med... Les mer
Mulighetsområde i La Molineta, Molina de Segura! Direkte tomt for urban eiendom på 160 m2, ideell for å bygge en enebolig du alltid har drømt om. Ligger i et av de områdene i Molina de Segura... Les mer
Prosjektbeskrivelse for investorer: To utviklingsbare tomter til salgs i Molina del Segura, eiendom tilhørende bank, uten provisjoner. Stor mulighet til å erverve denne urbane boliggrunn i Molina... Les mer