thinkSPAIN Logo
  • Buy

    Property for Sale

    • See all properties for sale
    • Start your search using our filters
    • Use our map search
    • Draw your search area
    • Where? Use our location filters

    Popular real estate searches

    Apartments/Flats Fincas/Country Houses Townhouses Villas
    Garden Lift Luxury New Build Parking/Garage Pool Sea View Terrace/Balcony
    Alicante Almería Barcelona Benahavís Calpe / Calp Calvià Cartagena Costa Blanca Costa del Sol Dénia Estepona Girona Gran Canaria Ibiza Madrid Mallorca Marbella Mazarrón Mijas Murcia Málaga Orihuela Palma de Mallorca Tenerife Torrevieja Valencia
    Browse all locations and property types
  • Rent

    Property for Rent

    • See all properties for rent
    • Holiday rentals
    • Start your search using our filters
    • Use our map search
    • Draw your search area

    Popular rental searches

    Apartments/Flats Fincas/Country Houses Townhouses Villas
    Garden Lift Mountain Views New Build Parking/Garage Pool Sea View Terrace/Balcony
    Alicante Almería Almuñécar Altea Barcelona Calvià Cartagena Costa Blanca Costa del Sol Dénia Estepona Gran Canaria Granada Ibiza Madrid Mallorca Marbella Murcia Málaga Orihuela Palma de Mallorca Tenerife Torre-Pacheco Torrevieja Torrox Valencia
    Browse all locations and property types
  • Sell

    I want to advertise on thinkSPAIN

    • I'm an estate agent & want to list my properties
    • I'm an owner and I want to advertise my property directly

    I'm looking for an estate agent in:

    Alicante Almería Barcelona Castellón Cádiz Girona Granada Málaga Tarragona Valencia
    See all estate agents
  • Where?

    Where to buy/rent?

    • Search by lifestyle needs (Location filters)
    • Browse locations by features/services
    • Use our map search
    • Draw your search area

    Popular location searches

    Alicante Almería Barcelona Castellón Cádiz Girona Gran Canaria Granada Ibiza Madrid Mallorca Murcia Málaga Tarragona Tenerife Valencia
  • Map / Draw Your Area

    Use our interactive map to find properties

    • Map search
    • Draw your search area

    Popular map searches

    Alicante Almería Barcelona Benahavís Calpe / Calp Calvià Cartagena Costa Blanca Costa del Sol Dénia Estepona Girona Gran Canaria Ibiza Madrid Mallorca Marbella Mazarrón Mijas Murcia Málaga Orihuela Palma de Mallorca Tenerife Torrevieja Valencia
  • Directory

    What are you looking for?

    • Estate Agents
    • Surveyors
    • Architects / Architectural Design
    • Lawyers / Solicitors
    • Tax Consultants
    • Currency Brokers
    • Mortgage Brokers
    • Property Maintenance / Management

    Recent searches

    Estate Agents in Costa de la Luz Estate Agents in San Miguel de Salinas Lawyers / Solicitors in Ayamonte Lawyers / Solicitors in San Javier Estate Agents in Altea Lawyers / Solicitors in Dénia Estate Agents in Pliego Mortgage Brokers in Madrid city Estate Agents in Santa Cruz de Tenerife Estate Agents in Alicante / Alacant city Estate Agents in Alcalá la Real Lawyers / Solicitors in Huelva Estate Agents in Montserrat Lawyers / Solicitors in Costa Blanca
  • Help & Info

    How can we help you?

    • Articles & Guides
    • Jobs in Spain
    • Advertiser Login
    • Advertising with thinkSPAIN

    Popular searches

    Buying in Spain Moving to Spain Retiring in Spain Living in Spain Working in Spain News Real Estate Market Top Locations & Properties Finance, Legal & Taxes Finding the right property Areas in Spain Spanish Lifestyle & Culture Property Market Household Relocation Process Transportation Healthcare Alicante Languages & Integration Finding a job
  • Advertiser Login
thinkSPAIN Logo Properties

Villa for sale in Golf Bahía, Finestrat, Alicante

  • € 870,000
  • 160 m2
  • 3
  • 3
  • 446 m2

€ 870,000 Ref. 7060266

Properties
Ref. 7060266
Call
  • 3 bedroom Villa for sale in Finestrat with pool garage - € 870,000 (Ref: 7060266)
  • 3 bedroom Villa for sale in Finestrat with pool garage - € 870,000 (Ref: 7060266)
  • 3 bedroom Villa for sale in Finestrat with pool garage - € 870,000 (Ref: 7060266)
  • 3 bedroom Villa for sale in Finestrat with pool garage - € 870,000 (Ref: 7060266)
  • 3 bedroom Villa for sale in Finestrat with pool garage - € 870,000 (Ref: 7060266)
  • 3 bedroom Villa for sale in Finestrat with pool garage - € 870,000 (Ref: 7060266)
  • 3 bedroom Villa for sale in Finestrat with pool garage - € 870,000 (Ref: 7060266)
  • 3 bedroom Villa for sale in Finestrat with pool garage - € 870,000 (Ref: 7060266)
  • 3 bedroom Villa for sale in Finestrat with pool garage - € 870,000 (Ref: 7060266)
  • 3 bedroom Villa for sale in Finestrat with pool garage - € 870,000 (Ref: 7060266)
  • 3 bedroom Villa for sale in Finestrat with pool garage - € 870,000 (Ref: 7060266)
  • 3 bedroom Villa for sale in Finestrat with pool garage - € 870,000 (Ref: 7060266)
  • 3 bedroom Villa for sale in Finestrat with pool garage - € 870,000 (Ref: 7060266)
  • 3 bedroom Villa for sale in Finestrat with pool garage - € 870,000 (Ref: 7060266)
  • 3 bedroom Villa for sale in Finestrat with pool garage - € 870,000 (Ref: 7060266)
  • 3 bedroom Villa for sale in Finestrat with pool garage - € 870,000 (Ref: 7060266)
  • 3 bedroom Villa for sale in Finestrat with pool garage - € 870,000 (Ref: 7060266)
  • 3 bedroom Villa for sale in Finestrat with pool garage - € 870,000 (Ref: 7060266)
  • 3 bedroom Villa for sale in Finestrat with pool garage - € 870,000 (Ref: 7060266)
  • 3 bedroom Villa for sale in Finestrat with pool garage - € 870,000 (Ref: 7060266)
  • 3 bedroom Villa for sale in Finestrat with pool garage - € 870,000 (Ref: 7060266)
  • 3 bedroom Villa for sale in Finestrat with pool garage - € 870,000 (Ref: 7060266)
  • 3 bedroom Villa for sale in Finestrat with pool garage - € 870,000 (Ref: 7060266)
  • 3 bedroom Villa for sale in Finestrat with pool garage - € 870,000 (Ref: 7060266)
  • 3 bedroom Villa for sale in Finestrat with pool garage - € 870,000 (Ref: 7060266)
  • 3 bedroom Villa for sale in Finestrat with pool garage - € 870,000 (Ref: 7060266)
  • 3 bedroom Villa for sale in Finestrat with pool garage - € 870,000 (Ref: 7060266)
  • 3 bedroom Villa for sale in Finestrat with pool garage - € 870,000 (Ref: 7060266)
  • 3 bedroom Villa for sale in Finestrat with pool garage - € 870,000 (Ref: 7060266)
  • 3 bedroom Villa for sale in Finestrat with pool garage - € 870,000 (Ref: 7060266)
  • 3 bedroom Villa for sale in Finestrat with pool garage - € 870,000 (Ref: 7060266)
  • 3 bedroom Villa for sale in Finestrat with pool garage - € 870,000 (Ref: 7060266)
  • 3 bedroom Villa for sale in Finestrat with pool garage - € 870,000 (Ref: 7060266)
  • 3 bedroom Villa for sale in Finestrat with pool garage - € 870,000 (Ref: 7060266)
  • 3 bedroom Villa for sale in Finestrat with pool garage - € 870,000 (Ref: 7060266)
  • 3 bedroom Villa for sale in Finestrat with pool garage - € 870,000 (Ref: 7060266)
  • 3 bedroom Villa for sale in Finestrat with pool garage - € 870,000 (Ref: 7060266)
  • 3 bedroom Villa for sale in Finestrat with pool garage - € 870,000 (Ref: 7060266)
  • 3 bedroom Villa for sale in Finestrat with pool garage - € 870,000 (Ref: 7060266)
  • 3 bedroom Villa for sale in Finestrat with pool garage - € 870,000 (Ref: 7060266)
1/40

Marketed by

Premium Property Spain Premium Property Spain

€ 870,000

Villa for sale in Golf Bahía, Finestrat, Alicante

  • 160 m2
  • 3
  • 3
  • 446 m2

Description

Modern and bright villa with magnificent open views. It has a private pool and a garden on a private plot of 446m2. Located in the most exclusive urbanization of the Central Costa Blanca Sierra Cortina. Quiet residential area, as well as just a few minutes from the best amusement parks, leisure, gastronomy, golf, shopping centers and beaches with clear sand and crystal clear water.
Excellent villa, with careful exterior and interior design, as well as top quality finishes.
The property is developed as follows;
It has two independent direct accesses, one pedestrian and the other road to a parking area for 1 vehicle at street level.
From the pedestrian access, we enter the plot along a paved and illuminated path, to the main door of the villa.
Around the house we can enjoy more than 250m2 of spectacular green areas designed and finished conscientiously, to create a warm and quiet environment where you can enjoy the mild microclimate of the area all year round, large terraces as an extension of the interior, as well as from the relaxing private pool.
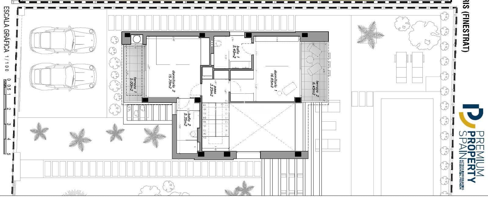
Already inside the ground floor, the first thing we find is a spectacular open space that includes the hall - a spacious living room with a double height area and a generous and practical open kitchen-dining room. From the living room and through large sliding glass doors, we go out to a large semi-covered outdoor terrace, designed as an extension of the living room and where you can enjoy the relaxing atmosphere of the pool and gardens, as well as the impressive views of the Mediterranean Sea. At the back of this plant, you will find; a large complete bathroom, a double room with a built-in wardrobe illuminated by a wide door - double window with direct access to the side terrace.
Next, the spectacular staircase of careful design and materials that gives access to the first floor:
Going up to the first floor, this is completely reserved, to a second bathroom and two large double bedrooms, one of them type suite with dressing rooms and private bathrooms, as well as two private terraces with views towards the Bay of Benidorm and Sierra Cortina. respectively.
Note 1: see attached plans; distribution and surfaces. They do not have a contractual nature, they are merely indicative and susceptible to changes in the project management.
It includes:
Armored access door to the house White lacquered interior doors Kitchen furniture BOSCH brand paneled appliances included: Oven, induction hob, extractor hood, dishwasher and refrigerator Taps in bathrooms brand TRES Solar accumulator 150 L. + electric water heater 100 L. Osmosis system Bathroom furniture Shower screens Toilet brand VILLEROY BOCH Installation of hot-cold ducted air conditioning brand PANASONIC Flooring and tiling brand ARGENTA Built-in wardrobes with sliding doors and drawers Aluminum exterior carpentry according to CTE, double glazing (4+4) CP/12 ARGON/4+4 PLANITERM XN CP, motorized blinds in bedrooms Installation of home automation package: interior and exterior lighting, blinds, air conditioning, flood zones and smoke TV, Network, USB and data sockets in living room and bedrooms Completely finished garden and private pool Parking area
This magnificent complex is located in one of the most elite urbanizations of the Costa Blanca, in Sierra Cortina, just a few meters away we find haute cuisine restaurants, 5-star hotels, shopping and leisure areas, several golf courses and theme parks.
In the front part of the complex there is a large green area protected from any construction, which is why we enjoy wonderful views of the sea, golf and the Benidorm Skyline.
In the back we enjoy wonderful views of the Puig Campana mountain, the second highest peak near the coast of Spain.
A few meters from the Rice Restaurant, Asia Gardens Hotel, Sierra Cortina Sport & Spa and Sierra Cortina's 18-hole Pitch & Putt.
The two 18-hole golf courses and the Villaitana hotel, the Terra Mitica amusement park, the Grand Luxor hotel and the La Marina shopping and leisure center are 4 minutes away.
8 minutes from the beautiful coves of Finestrat and the beaches of Benidorm. Also the town of Finestrat, listed as one of the most beautiful in Spain.
20 minutes from the port of Alicante and its leisure areas.
30 minutes from Alicante airport (ALC).

Location

Golf Bahía, Finestrat, Alicante Location provided by the Advertiser

Features

  • Villa
  • Bedrooms: 3
  • Bathrooms: 3
  • Build Size: 160 m2
  • Plot: 446 m2
  • Storeys: 2
  • Year Built: 2024
  • Pool
  • Sea View
  • Parking/Garage
  • Garden
  • Air Conditioning
  • Terrace/Balcony
  • Mountain Views
  • Heating
  • Energy Certificate (Consumption): A

How can we help you?

Is something wrong with the Ad?

Tell us about the issue so we can fix it

Mortgage calculator

€
€
%

€ 2,762 per month*

+ € 88,700 taxes (€ 87,000) & expenses (€ 1,700)*

*Please note that the results are only a guide and not a mortgage offer or quote.

About Premium Property Spain

Premium Property Spain was born from the legacy of over 60 years of experience and professionalism in the real estate sector, from the original family firm; https://www.inmojeda.com/es/quienes-somos....

We speak

    English Español Français
More about this agent +34 865 440 411

Marketed by

Premium Property Spain

Premium Property Spain

Contact the Advertiser

How can we help you?

How can we help you?

€

This field is required

Check the error(s) above
+34 865 440 411

Ref. 7060266

By submitting this form, you confirm that you agree to our Terms of Use and Privacy Policy.

Share

About Premium Property Spain About Premium Property Spain

Premium Property Spain was born from the legacy of over 60 years of experience and professionalism in the real estate sector, from the original family firm; https://www.inmojeda.com/es/quienes-somos....

We speak

    English Español Français
More about this agent +34 865 440 411 Call

Related properties

3 bedroom Villa for sale in Golf Bahía, Finestrat with pool - € 849,000 (Ref: 9625614) 3 bedroom Villa for sale in Golf Bahía, Finestrat with pool garage - € 860,000 (Ref: 9468766) 4 bedroom Villa for sale in Golf Bahía, Finestrat with pool - € 849,000 (Ref: 9625617) 4 bedroom Villa for sale in Golf Bahía, Finestrat with pool - € 849,000 (Ref: 9625618)

Advertisement

  1. Spain
  2. Valencia
  3. Alicante
  4. Costa Blanca
  5. Finestrat
  6. Golf Bahía
  7. 3 bedroom Villa for sale in Golf Bahía, Finestrat with pool garage - € 870,000 (Ref: 7060266)