thinkSPAIN Logo
  • Buy

    Property for Sale

    • See all properties for sale
    • Start your search using our filters
    • Use our map search
    • Draw your search area
    • Where? Use our location filters

    Popular real estate searches

    Apartments/Flats Fincas/Country Houses Townhouses Villas
    Garden Lift Luxury New Build Parking/Garage Pool Sea View Terrace/Balcony
    Alicante Almería Barcelona Benahavís Calpe / Calp Calvià Cartagena Costa Blanca Costa del Sol Dénia Estepona Girona Gran Canaria Ibiza Los Alcázares Madrid Mallorca Marbella Mijas Murcia Málaga Orihuela Palma de Mallorca Tenerife Torrevieja Valencia
    Browse all locations and property types
  • Rent

    Property for Rent

    • See all properties for rent
    • Holiday rentals
    • Start your search using our filters
    • Use our map search
    • Draw your search area

    Popular rental searches

    Apartments/Flats Fincas/Country Houses Townhouses Villas
    Garden Lift Mountain Views New Build Parking/Garage Pool Sea View Terrace/Balcony
    Alicante Almería Almuñécar Altea Barcelona Calvià Cartagena Costa Blanca Costa del Sol Dénia Estepona Gran Canaria Granada Ibiza Madrid Mallorca Marbella Murcia Málaga Orihuela Palma de Mallorca Tenerife Torre-Pacheco Torrevieja Torrox Valencia
    Browse all locations and property types
  • Sell

    I want to advertise on thinkSPAIN

    • I'm an estate agent & want to list my properties
    • I'm an owner and I want to advertise my property directly

    I'm looking for an estate agent in:

    Alicante Almería Barcelona Castellón Cádiz Girona Granada Málaga Tarragona Valencia
    See all estate agents
  • Where?

    Where to buy/rent?

    • Search by lifestyle needs (Location filters)
    • Browse locations by features/services
    • Use our map search
    • Draw your search area

    Popular location searches

    Alicante Almería Barcelona Castellón Cádiz Girona Gran Canaria Granada Ibiza Madrid Mallorca Murcia Málaga Tarragona Tenerife Valencia
  • Map / Draw Your Area

    Use our interactive map to find properties

    • Map search
    • Draw your search area

    Popular map searches

    Alicante Almería Barcelona Benahavís Calpe / Calp Calvià Cartagena Costa Blanca Costa del Sol Dénia Estepona Girona Gran Canaria Ibiza Los Alcázares Madrid Mallorca Marbella Mijas Murcia Málaga Orihuela Palma de Mallorca Tenerife Torrevieja Valencia
  • How can we help you?

    • Articles & Guides
    • Business & Services Directory
    • Jobs in Spain
    • Advertiser Login
    • Advertising with thinkSPAIN

    Popular searches

    Lawyers / Solicitors Mortgage Brokers Estate Agents Property Maintenance / Management Currency Brokers Surveyors Architects / Architectural Design Tax Consultants
    Finance, Legal & Taxes Buying in Spain Living in Spain Moving to Spain Finding the right property News Areas in Spain Spanish Lifestyle & Culture Property Market Working in Spain Top Locations & Properties Real Estate Market
thinkSPAIN Logo Properties

Villa for sale in San Miguel de Salinas, Alicante

  • € 649,000
  • 237 m2
  • 3
  • 3
  • 350 m2

€ 649,000 Ref. 9517334

Properties
Ref. 9517334
Call
  • 3 bedroom Villa for sale in San Miguel de Salinas with pool - € 649,000 (Ref: 9517334)
  • 3 bedroom Villa for sale in San Miguel de Salinas with pool - € 649,000 (Ref: 9517334)
  • 3 bedroom Villa for sale in San Miguel de Salinas with pool - € 649,000 (Ref: 9517334)
  • 3 bedroom Villa for sale in San Miguel de Salinas with pool - € 649,000 (Ref: 9517334)
  • 3 bedroom Villa for sale in San Miguel de Salinas with pool - € 649,000 (Ref: 9517334)
  • 3 bedroom Villa for sale in San Miguel de Salinas with pool - € 649,000 (Ref: 9517334)
  • 3 bedroom Villa for sale in San Miguel de Salinas with pool - € 649,000 (Ref: 9517334)
  • 3 bedroom Villa for sale in San Miguel de Salinas with pool - € 649,000 (Ref: 9517334)
  • 3 bedroom Villa for sale in San Miguel de Salinas with pool - € 649,000 (Ref: 9517334)
  • 3 bedroom Villa for sale in San Miguel de Salinas with pool - € 649,000 (Ref: 9517334)
  • 3 bedroom Villa for sale in San Miguel de Salinas with pool - € 649,000 (Ref: 9517334)
  • 3 bedroom Villa for sale in San Miguel de Salinas with pool - € 649,000 (Ref: 9517334)
1/12

€ 649,000

Villa for sale in San Miguel de Salinas, Alicante

  • 237 m2
  • 3
  • 3
  • 350 m2

Description

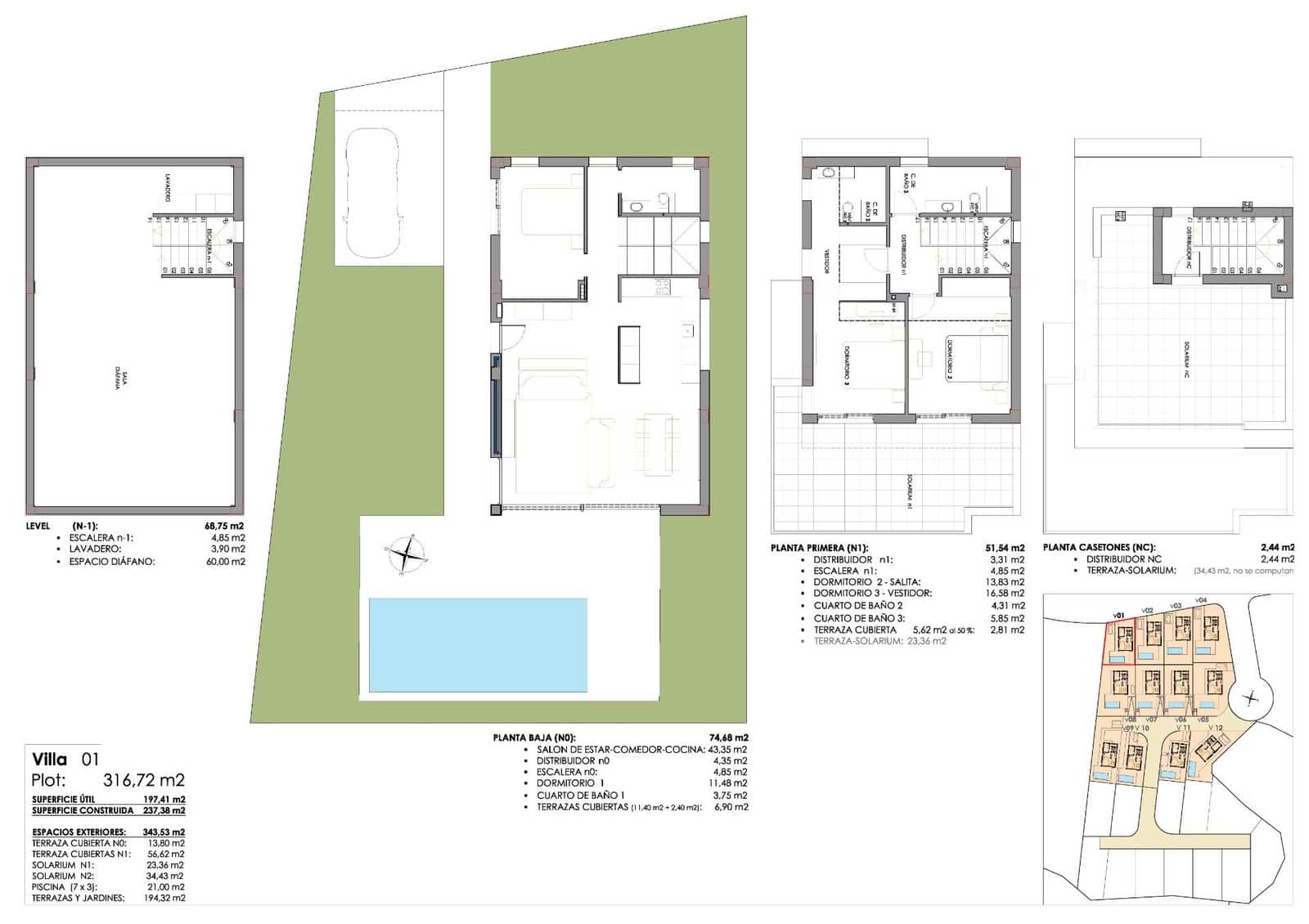
New build villas in San Miguel de Salinas

Exclusive new residential complex offering luxury villas with plots from 300 m2 and an impressive 8x3,5m swimming pool. Optional basement and solarium.

These modern homes offer 3 bedrooms, 3 bathrooms, a spacious living-dining room and a fully equipped kitchen, as well as a garden and swimming pool.

The villas stand out for their bright and open spaces, which offer exceptional views and a layout that optimises every corner of the home to the maximum. High quality finishes and interiors merge into a contemporary concept of luxury, combining the elegance, comfort and refinement that buyers desire.

The design and construction of this residential complex has taken into account fundamental aspects such as energy efficiency and the use of top quality materials, thus guaranteeing a sustainable and long-lasting lifestyle.

San Miguel de Salinas is a municipality in the Valencian Community, Spain. Located in the south of the province of Alicante, in the region of Vega Baja del Segura near the Region of Murcia. San Miguel de Salinas located close to the Las Colinas and Campoamor golf courses, offers exceptional views of the Torrevieja and La Mata lagoons. Alicante airport located 35 minutes drive away and Murcia's Corvera airport is about 1 hour drive away.

Location

San Miguel de Salinas, Alicante The location has not been provided.

Features

  • Villa
  • Bedrooms: 3
  • Bathrooms: 3
  • Build Size: 237 m2
  • Plot: 350 m2
  • New Build
  • Pool
  • Garden
  • Energy Efficiency Rating: In Progress

How can we help you?

Is something wrong with the Ad?

Tell us about the issue so we can fix it

Mortgage calculator

€
€
%

€ 2,061 per month*

+ € 66,600 taxes (€ 64,900) & expenses (€ 1,700)*

*Please note that the results are only a guide and not a mortgage offer or quote.

Contact the Advertiser

How can we help you?

€

This field is required

Check the error(s) above
+34 965 021 124

Ref. 9517334

By submitting this form, you confirm that you agree to our Terms of Use and Privacy Policy.

Share

Related properties

3 bedroom Villa for sale in San Miguel de Salinas with pool - € 560,000 (Ref: 9603348) 4 bedroom Villa for sale in San Miguel de Salinas with pool - € 649,000 (Ref: 8800217) 3 bedroom Villa for sale in San Miguel de Salinas with pool - € 630,000 (Ref: 7699224) 4 bedroom Villa for sale in San Miguel de Salinas with pool - € 739,000 (Ref: 9645030)

Advertisement

  1. Spain
  2. Valencia
  3. Alicante
  4. Costa Blanca
  5. San Miguel de Salinas
  6. 3 bedroom Villa for sale in San Miguel de Salinas with pool - € 649,000 (Ref: 9517334)