thinkSPAIN Logo
  • Buy

    Property for Sale

    • See all properties for sale
    • Start your search using our filters
    • Use our map search
    • Draw your search area
    • Where? Use our location filters

    Popular real estate searches

    Apartments/Flats Fincas/Country Houses Townhouses Villas
    Garden Lift Luxury New Build Parking/Garage Pool Sea View Terrace/Balcony
    Alicante Almería Barcelona Benahavís Calpe / Calp Calvià Cartagena Costa Blanca Costa del Sol Dénia Estepona Fuerteventura Girona Ibiza Madrid Mallorca Marbella Mazarrón Mijas Murcia Málaga Orihuela Palma de Mallorca Tenerife Torrevieja Valencia
    Browse all locations and property types
  • Rent

    Property for Rent

    • See all properties for rent
    • Holiday rentals
    • Start your search using our filters
    • Use our map search
    • Draw your search area

    Popular rental searches

    Apartments/Flats Fincas/Country Houses Townhouses Villas
    Garden Lift Mountain Views Parking/Garage Pool Sea View Seafront/Beachfront Terrace/Balcony
    Alicante Almería Almuñécar Altea Barcelona Calvià Cartagena Costa Blanca Costa del Sol Dénia Gran Canaria Granada Ibiza Madrid Mallorca Marbella Murcia Málaga Nerja Orihuela Palma de Mallorca Tenerife Torre-Pacheco Torrevieja Torrox Valencia
    Browse all locations and property types
  • Sell

    I want to advertise on thinkSPAIN

    • I'm an estate agent & want to list my properties
    • I'm an owner and I want to advertise my property directly

    I'm looking for an estate agent in:

    Alicante Almería Barcelona Castellón Cádiz Girona Granada Málaga Tarragona Valencia
    See all estate agents
  • Where?

    Where to buy/rent?

    • Search by lifestyle needs (Location filters)
    • Browse locations by features/services
    • Use our map search
    • Draw your search area

    Popular location searches

    Alicante Almería Barcelona Castellón Cádiz Fuerteventura Girona Granada Ibiza Madrid Mallorca Murcia Málaga Tarragona Tenerife Valencia
  • Map / Draw Your Area

    Use our interactive map to find properties

    • Map search
    • Draw your search area

    Popular map searches

    Alicante Almería Barcelona Benahavís Calpe / Calp Calvià Cartagena Costa Blanca Costa del Sol Dénia Estepona Fuerteventura Girona Ibiza Madrid Mallorca Marbella Mazarrón Mijas Murcia Málaga Orihuela Palma de Mallorca Tenerife Torrevieja Valencia
  • Directory

    What are you looking for?

    • Estate Agents
    • Surveyors
    • Architects / Architectural Design
    • Lawyers / Solicitors
    • Tax Consultants
    • Currency Brokers
    • Mortgage Brokers
    • Property Maintenance / Management

    Recent searches

    Estate Agents in Elche / Elx Lawyers / Solicitors in Costa Blanca Lawyers / Solicitors in Ayamonte Estate Agents in Roses Estate Agents in Alcalá la Real Estate Agents in Fuerteventura Estate Agents in Casares Estate Agents in Tenerife Estate Agents in Alicante / Alacant city Lawyers / Solicitors in Costa Cálida Lawyers / Solicitors in Granada Estate Agents in Almería Property Maintenance / Management in Costa Blanca Lawyers / Solicitors in Costa del Sol
  • Help & Info

    How can we help you?

    • Articles & Guides
    • Jobs in Spain
    • Advertiser Login
    • Advertising with thinkSPAIN

    Popular searches

    Buying in Spain Moving to Spain Retiring in Spain Living in Spain Working in Spain News Real Estate Market Top Locations & Properties Finance, Legal & Taxes Finding the right property Areas in Spain Spanish Lifestyle & Culture Property Market Relocation Process Household Transportation Healthcare Alicante Languages & Integration Brexit
  • Advertiser Login
thinkSPAIN Logo Properties

Penthouse for sale in Sant Gervasi - Galvany, Barcelona city, Barcelona

  • € 850,000
  • 110 m2
  • 3
  • 2
Properties

€ 850,000

Ref. 9599514

Call
  • 3 bedroom Penthouse for sale in Barcelona city - € 850,000 (Ref: 9599514)
  • 3 bedroom Penthouse for sale in Barcelona city - € 850,000 (Ref: 9599514)
  • 3 bedroom Penthouse for sale in Barcelona city - € 850,000 (Ref: 9599514)
  • 3 bedroom Penthouse for sale in Barcelona city - € 850,000 (Ref: 9599514)
  • 3 bedroom Penthouse for sale in Barcelona city - € 850,000 (Ref: 9599514)
  • 3 bedroom Penthouse for sale in Barcelona city - € 850,000 (Ref: 9599514)
  • 3 bedroom Penthouse for sale in Barcelona city - € 850,000 (Ref: 9599514)
  • 3 bedroom Penthouse for sale in Barcelona city - € 850,000 (Ref: 9599514)
  • 3 bedroom Penthouse for sale in Barcelona city - € 850,000 (Ref: 9599514)
  • 3 bedroom Penthouse for sale in Barcelona city - € 850,000 (Ref: 9599514)
  • 3 bedroom Penthouse for sale in Barcelona city - € 850,000 (Ref: 9599514)
  • 3 bedroom Penthouse for sale in Barcelona city - € 850,000 (Ref: 9599514)
  • 3 bedroom Penthouse for sale in Barcelona city - € 850,000 (Ref: 9599514)
  • 3 bedroom Penthouse for sale in Barcelona city - € 850,000 (Ref: 9599514)
  • 3 bedroom Penthouse for sale in Barcelona city - € 850,000 (Ref: 9599514)
  • 3 bedroom Penthouse for sale in Barcelona city - € 850,000 (Ref: 9599514)
  • 3 bedroom Penthouse for sale in Barcelona city - € 850,000 (Ref: 9599514)
  • 3 bedroom Penthouse for sale in Barcelona city - € 850,000 (Ref: 9599514)
  • 3 bedroom Penthouse for sale in Barcelona city - € 850,000 (Ref: 9599514)
  • 3 bedroom Penthouse for sale in Barcelona city - € 850,000 (Ref: 9599514)
  • 3 bedroom Penthouse for sale in Barcelona city - € 850,000 (Ref: 9599514)
  • 3 bedroom Penthouse for sale in Barcelona city - € 850,000 (Ref: 9599514)
  • 3 bedroom Penthouse for sale in Barcelona city - € 850,000 (Ref: 9599514)
  • 3 bedroom Penthouse for sale in Barcelona city - € 850,000 (Ref: 9599514)
  • 3 bedroom Penthouse for sale in Barcelona city - € 850,000 (Ref: 9599514)
  • 3 bedroom Penthouse for sale in Barcelona city - € 850,000 (Ref: 9599514)
  • 3 bedroom Penthouse for sale in Barcelona city - € 850,000 (Ref: 9599514)
  • 3 bedroom Penthouse for sale in Barcelona city - € 850,000 (Ref: 9599514)
  • 3 bedroom Penthouse for sale in Barcelona city - € 850,000 (Ref: 9599514)
  • 3 bedroom Penthouse for sale in Barcelona city - € 850,000 (Ref: 9599514)
1/30

€ 850,000

Penthouse for sale in Sant Gervasi - Galvany, Barcelona city, Barcelona

  • 110 m2
  • 3
  • 2

Description

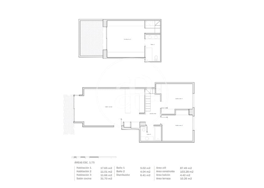
With a privileged location right in the heart of Galvany, next to the Galvany market, in one of the city’s most sought-after areas, surrounded by all kinds of shops, fashion boutiques and restaurants, we find this exclusive 110 m² duplex penthouse with two terraces.

This charming penthouse, in good condition, is distributed over two floors: a main floor of 74 m² and an upper floor of 36 m². It offers a total of 3 double bedrooms and 2 full bathrooms.

On the main floor, there is a bright living-dining room with an integrated kitchen and access to a lovely terrace overlooking the Galvany market. On this same level, there are also two double bedrooms that share a full bathroom. The upper floor, accessed via a staircase, hosts the third double bedroom with an en-suite bathroom and access to a private and cozy terrace.

A unique property in the area thanks to its location, orientation, outdoor spaces, design, and quality.

Location

Sant Gervasi - Galvany, Barcelona city, Barcelona Location provided by the Advertiser

Features

  • Penthouse
  • Bedrooms: 3
  • Bathrooms: 2
  • Build Size: 110 m2
  • Air Conditioning
  • Lift
  • Terrace/Balcony
  • Heating
  • Energy Certificate (Consumption): E
  • Energy Certificate (Emissions): E

How can we help you?

Is something wrong with the Ad?

Tell us about the issue so we can fix it

Mortgage calculator

€
€
%

€ 2,699 per month*

+ € 86,700 taxes (€ 85,000) & expenses (€ 1,700)*

*Please note that the results are only a guide and not a mortgage offer or quote.

Contact the Advertiser

How can we help you?

€

This field is required

Check the error(s) above

Ref. 9599514

By submitting this form, you confirm that you agree to our Terms of Use and Privacy Policy.

Share

Related properties

1 bedroom Penthouse for sale in Sant Gervasi - Galvany, Barcelona city with garage - € 870,000 (Ref: 9839070) 2 bedroom Penthouse for sale in L'Antiga Esquerra de L'Eixample, Barcelona city - € 715,000 (Ref: 9844719) 2 bedroom Penthouse for sale in L'Antiga Esquerra de L'Eixample, Barcelona city - € 665,000 (Ref: 9303510) 2 bedroom Penthouse for sale in Sant Gervasi - La Bonanova, Barcelona city - € 750,000 (Ref: 9326212)

Advertisement

  1. Spain
  2. Catalonia
  3. Barcelona
  4. Costa Maresme
  5. Barcelona city
  6. Sarrià-Sant Gervasi
  7. Sant Gervasi - Galvany
  8. 3 bedroom Penthouse for sale in Sant Gervasi - Galvany, Barcelona city - € 850,000 (Ref: 9599514)
Call