thinkSPAIN Logo
  • Buy

    Property for Sale

    • See all properties for sale
    • Start your search using our filters
    • Use our map search
    • Draw your search area
    • Where? Use our location filters

    Popular real estate searches

    Apartments/Flats Fincas/Country Houses Townhouses Villas
    Garden Lift Luxury New Build Parking/Garage Pool Sea View Terrace/Balcony
    Alicante Almería Barcelona Benahavís Calvià Cartagena Costa Blanca Costa del Sol Dénia Estepona Girona Gran Canaria Ibiza Javea / Xàbia Madrid Mallorca Marbella Mazarrón Mijas Murcia Málaga Orihuela Palma de Mallorca Tenerife Torrevieja Valencia
    Browse all locations and property types
  • Rent

    Property for Rent

    • See all properties for rent
    • Holiday rentals
    • Start your search using our filters
    • Use our map search
    • Draw your search area

    Popular rental searches

    Apartments/Flats Fincas/Country Houses Townhouses Villas
    Garden Lift Mountain Views New Build Parking/Garage Pool Sea View Terrace/Balcony
    Alicante Almería Almuñécar Altea Barcelona Calvià Cartagena Costa Blanca Costa del Sol Dénia Estepona Gran Canaria Granada Ibiza Madrid Mallorca Marbella Murcia Málaga Orihuela Palma de Mallorca Tenerife Torre-Pacheco Torrevieja Torrox Valencia
    Browse all locations and property types
  • Sell

    I want to advertise on thinkSPAIN

    • I'm an estate agent & want to list my properties
    • I'm an owner and I want to advertise my property directly

    I'm looking for an estate agent in:

    Alicante Almería Barcelona Castellón Cádiz Girona Granada Málaga Tarragona Valencia
    See all estate agents
  • Where?

    Where to buy/rent?

    • Search by lifestyle needs (Location filters)
    • Browse locations by features/services
    • Use our map search
    • Draw your search area

    Popular location searches

    Alicante Almería Barcelona Castellón Cádiz Girona Gran Canaria Granada Ibiza Madrid Mallorca Murcia Málaga Tarragona Tenerife Valencia
  • Map / Draw Your Area

    Use our interactive map to find properties

    • Map search
    • Draw your search area

    Popular map searches

    Alicante Almería Barcelona Benahavís Calvià Cartagena Costa Blanca Costa del Sol Dénia Estepona Girona Gran Canaria Ibiza Javea / Xàbia Madrid Mallorca Marbella Mazarrón Mijas Murcia Málaga Orihuela Palma de Mallorca Tenerife Torrevieja Valencia
  • How can we help you?

    • Articles & Guides
    • Business & Services Directory
    • Jobs in Spain
    • Advertiser Login
    • Advertising with thinkSPAIN

    Popular searches

    Lawyers / Solicitors Mortgage Brokers Estate Agents Property Maintenance / Management Currency Brokers Surveyors Architects / Architectural Design Tax Consultants
    Finance, Legal & Taxes Buying in Spain Living in Spain Moving to Spain Finding the right property News Areas in Spain Spanish Lifestyle & Culture Property Market Working in Spain Top Locations & Properties Real Estate Market
thinkSPAIN Logo Properties

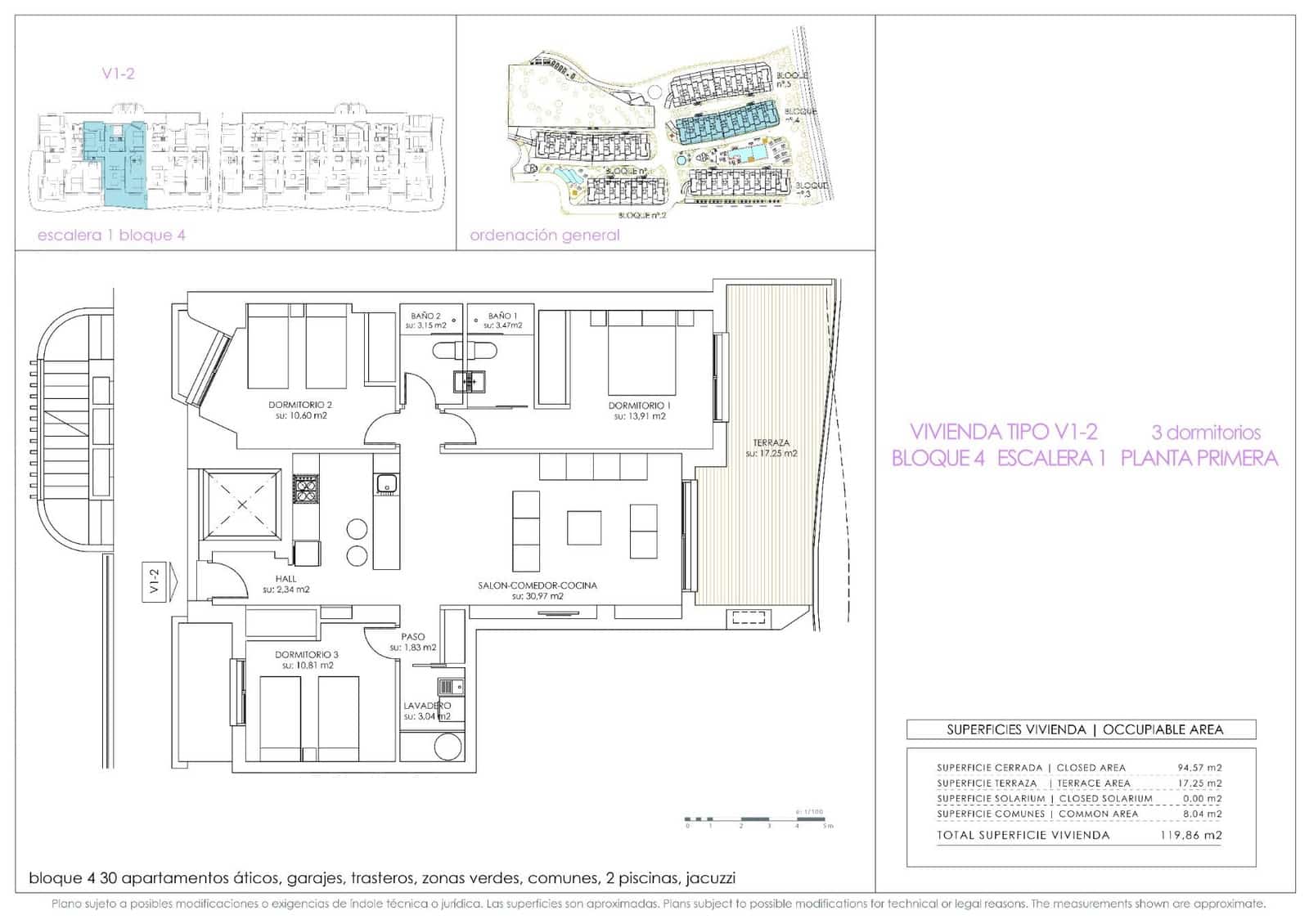
Apartment for sale in Playa Flamenca, Orihuela, Alicante

  • € 469,000
  • 94 m2
  • 3
  • 2

€ 469,000 Ref. 9631898

Properties
Ref. 9631898
Call
  • 3 bedroom Apartment for sale in Playa Flamenca with pool garage - € 469,000 (Ref: 9631898)
  • 3 bedroom Apartment for sale in Playa Flamenca with pool garage - € 469,000 (Ref: 9631898)
  • 3 bedroom Apartment for sale in Playa Flamenca with pool garage - € 469,000 (Ref: 9631898)
  • 3 bedroom Apartment for sale in Playa Flamenca with pool garage - € 469,000 (Ref: 9631898)
  • 3 bedroom Apartment for sale in Playa Flamenca with pool garage - € 469,000 (Ref: 9631898)
  • 3 bedroom Apartment for sale in Playa Flamenca with pool garage - € 469,000 (Ref: 9631898)
  • 3 bedroom Apartment for sale in Playa Flamenca with pool garage - € 469,000 (Ref: 9631898)
  • 3 bedroom Apartment for sale in Playa Flamenca with pool garage - € 469,000 (Ref: 9631898)
  • 3 bedroom Apartment for sale in Playa Flamenca with pool garage - € 469,000 (Ref: 9631898)
  • 3 bedroom Apartment for sale in Playa Flamenca with pool garage - € 469,000 (Ref: 9631898)
  • 3 bedroom Apartment for sale in Playa Flamenca with pool garage - € 469,000 (Ref: 9631898)
  • 3 bedroom Apartment for sale in Playa Flamenca with pool garage - € 469,000 (Ref: 9631898)
  • 3 bedroom Apartment for sale in Playa Flamenca with pool garage - € 469,000 (Ref: 9631898)
  • 3 bedroom Apartment for sale in Playa Flamenca with pool garage - € 469,000 (Ref: 9631898)
  • 3 bedroom Apartment for sale in Playa Flamenca with pool garage - € 469,000 (Ref: 9631898)
  • 3 bedroom Apartment for sale in Playa Flamenca with pool garage - € 469,000 (Ref: 9631898)
  • 3 bedroom Apartment for sale in Playa Flamenca with pool garage - € 469,000 (Ref: 9631898)
  • 3 bedroom Apartment for sale in Playa Flamenca with pool garage - € 469,000 (Ref: 9631898)
  • 3 bedroom Apartment for sale in Playa Flamenca with pool garage - € 469,000 (Ref: 9631898)
  • 3 bedroom Apartment for sale in Playa Flamenca with pool garage - € 469,000 (Ref: 9631898)
  • 3 bedroom Apartment for sale in Playa Flamenca with pool garage - € 469,000 (Ref: 9631898)
  • 3 bedroom Apartment for sale in Playa Flamenca with pool garage - € 469,000 (Ref: 9631898)
  • 3 bedroom Apartment for sale in Playa Flamenca with pool garage - € 469,000 (Ref: 9631898)
  • 3 bedroom Apartment for sale in Playa Flamenca with pool garage - € 469,000 (Ref: 9631898)
  • 3 bedroom Apartment for sale in Playa Flamenca with pool garage - € 469,000 (Ref: 9631898)
  • 3 bedroom Apartment for sale in Playa Flamenca with pool garage - € 469,000 (Ref: 9631898)
  • 3 bedroom Apartment for sale in Playa Flamenca with pool garage - € 469,000 (Ref: 9631898)
  • 3 bedroom Apartment for sale in Playa Flamenca with pool garage - € 469,000 (Ref: 9631898)
  • 3 bedroom Apartment for sale in Playa Flamenca with pool garage - € 469,000 (Ref: 9631898)
  • 3 bedroom Apartment for sale in Playa Flamenca with pool garage - € 469,000 (Ref: 9631898)
  • 3 bedroom Apartment for sale in Playa Flamenca with pool garage - € 469,000 (Ref: 9631898)
  • 3 bedroom Apartment for sale in Playa Flamenca with pool garage - € 469,000 (Ref: 9631898)
  • 3 bedroom Apartment for sale in Playa Flamenca with pool garage - € 469,000 (Ref: 9631898)
  • 3 bedroom Apartment for sale in Playa Flamenca with pool garage - € 469,000 (Ref: 9631898)
  • 3 bedroom Apartment for sale in Playa Flamenca with pool garage - € 469,000 (Ref: 9631898)
1/35

€ 469,000

Apartment for sale in Playa Flamenca, Orihuela, Alicante

  • 94 m2
  • 3
  • 2

Description

New build residential at Playa Flamenca!

From a well established developer we are proud to offer this just released new residential just 500 m away from sea at popular Playa Flamenca (Orihuela Costa).

Residential with nice communal pools, jacuzzis and nice common gardens. All services like supermarkets, bars and restaurants, etc are within walking distance in a very central spot at Orihuela Costa.

Wide variety of types to choose from: 2, 3 or 4 bedroom apartments. Low floors with private gardens or top floors with private solariums. All houses come with a parking space and a storage room included in the price.

Zenia Boulevard shopping center 1km away and several golf courses like Villamartin, Campoamor within 5 km from this residential will make an ideal location for your holidays or your permanent living.

Location

Playa Flamenca, Orihuela, Alicante Location provided by the Advertiser

Features

  • Apartment
  • Bedrooms: 3
  • Bathrooms: 2
  • Build Size: 94 m2
  • New Build
  • Communal Pool
  • Parking/Garage
  • Private Garden
  • Lift
  • Energy Certificate (Consumption): B
  • Energy Certificate (Emissions): B

How can we help you?

Is something wrong with the Ad?

Tell us about the issue so we can fix it

Mortgage calculator

€
€
%

€ 1,489 per month*

+ € 48,600 taxes (€ 46,900) & expenses (€ 1,700)*

*Please note that the results are only a guide and not a mortgage offer or quote.

Contact the Advertiser

How can we help you?

This field is required

Check the error(s) above
+34 865 445 392

Ref. 9631898

By submitting this form, you confirm that you agree to our Terms of Use and Privacy Policy.

Share

Related properties

3 bedroom Apartment for sale in Playa Flamenca, Orihuela with pool - € 522,000 (Ref: 6424344) 4 bedroom Apartment for sale in Playa Flamenca, Orihuela with pool garage - € 490,000 (Ref: 6687581) 2 bedroom Apartment for sale in Playa Flamenca, Orihuela with pool garage - € 435,000 (Ref: 9328616) 3 bedroom Apartment for sale in Playa Flamenca, Orihuela with pool garage - € 499,000 (Ref: 9118120)

Advertisement

  1. Spain
  2. Valencia
  3. Alicante
  4. Costa Blanca
  5. Orihuela
  6. Orihuela Costa
  7. Playa Flamenca
  8. 3 bedroom Apartment for sale in Playa Flamenca, Orihuela with pool garage - € 469,000 (Ref: 9631898)