thinkSPAIN Logo
  • Buy

    Property for Sale

    • See all properties for sale
    • Start your search using our filters
    • Use our map search
    • Draw your search area
    • Where? Use our location filters

    Popular real estate searches

    Apartments/Flats Fincas/Country Houses Townhouses Villas
    Garden Lift Luxury New Build Parking/Garage Pool Sea View Terrace/Balcony
    Alicante Almería Barcelona Benahavís Calvià Cartagena Costa Blanca Costa del Sol Dénia Estepona Girona Gran Canaria Ibiza Javea / Xàbia Madrid Mallorca Marbella Mazarrón Mijas Murcia Málaga Orihuela Palma de Mallorca Tenerife Torrevieja Valencia
    Browse all locations and property types
  • Rent

    Property for Rent

    • See all properties for rent
    • Holiday rentals
    • Start your search using our filters
    • Use our map search
    • Draw your search area

    Popular rental searches

    Apartments/Flats Fincas/Country Houses Townhouses Villas
    Garden Lift Mountain Views New Build Parking/Garage Pool Sea View Terrace/Balcony
    Alicante Almería Almuñécar Altea Barcelona Calvià Cartagena Costa Blanca Costa del Sol Dénia Estepona Gran Canaria Granada Ibiza Madrid Mallorca Marbella Murcia Málaga Orihuela Palma de Mallorca Tenerife Torre-Pacheco Torrevieja Torrox Valencia
    Browse all locations and property types
  • Sell

    I want to advertise on thinkSPAIN

    • I'm an estate agent & want to list my properties
    • I'm an owner and I want to advertise my property directly

    I'm looking for an estate agent in:

    Alicante Almería Barcelona Castellón Cádiz Girona Granada Málaga Tarragona Valencia
    See all estate agents
  • Where?

    Where to buy/rent?

    • Search by lifestyle needs (Location filters)
    • Browse locations by features/services
    • Use our map search
    • Draw your search area

    Popular location searches

    Alicante Almería Barcelona Castellón Cádiz Girona Gran Canaria Granada Ibiza Madrid Mallorca Murcia Málaga Tarragona Tenerife Valencia
  • Map / Draw Your Area

    Use our interactive map to find properties

    • Map search
    • Draw your search area

    Popular map searches

    Alicante Almería Barcelona Benahavís Calvià Cartagena Costa Blanca Costa del Sol Dénia Estepona Girona Gran Canaria Ibiza Javea / Xàbia Madrid Mallorca Marbella Mazarrón Mijas Murcia Málaga Orihuela Palma de Mallorca Tenerife Torrevieja Valencia
  • How can we help you?

    • Articles & Guides
    • Business & Services Directory
    • Jobs in Spain
    • Advertiser Login
    • Advertising with thinkSPAIN

    Popular searches

    Lawyers / Solicitors Mortgage Brokers Estate Agents Property Maintenance / Management Currency Brokers Surveyors Architects / Architectural Design Tax Consultants
    Finance, Legal & Taxes Buying in Spain Living in Spain Moving to Spain Finding the right property News Areas in Spain Spanish Lifestyle & Culture Property Market Working in Spain Top Locations & Properties Real Estate Market
thinkSPAIN Logo Properties

Apartment for sale in Relleu, Alicante

  • € 175,000
  • 111 m2
  • 1
  • 1

€ 175,000 Ref. 9648999

Properties
Ref. 9648999
Call
  • 1 bedroom Apartment for sale in Relleu with pool - € 175,000 (Ref: 9648999)
  • 1 bedroom Apartment for sale in Relleu with pool - € 175,000 (Ref: 9648999)
  • 1 bedroom Apartment for sale in Relleu with pool - € 175,000 (Ref: 9648999)
  • 1 bedroom Apartment for sale in Relleu with pool - € 175,000 (Ref: 9648999)
  • 1 bedroom Apartment for sale in Relleu with pool - € 175,000 (Ref: 9648999)
  • 1 bedroom Apartment for sale in Relleu with pool - € 175,000 (Ref: 9648999)
  • 1 bedroom Apartment for sale in Relleu with pool - € 175,000 (Ref: 9648999)
  • 1 bedroom Apartment for sale in Relleu with pool - € 175,000 (Ref: 9648999)
  • 1 bedroom Apartment for sale in Relleu with pool - € 175,000 (Ref: 9648999)
  • 1 bedroom Apartment for sale in Relleu with pool - € 175,000 (Ref: 9648999)
1/10

€ 175,000

Apartment for sale in Relleu, Alicante

  • 111 m2
  • 1
  • 1

Description

Welcome to our exclusive apartments, where elegance merges with nature. Discover a selection of homes with 2 to 3 bedrooms, each meticulously designed.

Choose from properties offering between 90 m2 and 257 m2 of living space filled with sophistication. Relax in spacious and bright living areas while enjoying the impressive views surrounding these homes.

Seize the opportunity to live in a place where modern luxury blends with an authentic Spanish touch. Prices range from 147,000 € to 269,000 €, ensuring a wide range of offers for different needs and budgets.

Experience the tranquillity and charm of a serene environment complemented by the vibrant community of this location. Enjoy cooking in a modern open-plan kitchen or spend time on a spacious terrace that connects you with the natural beauty of the region.

Location

Relleu, Alicante The location has not been provided.

Features

  • Apartment
  • Bedrooms: 1
  • Bathrooms: 1
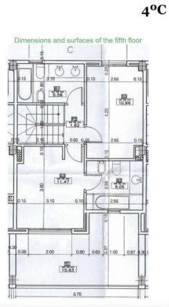
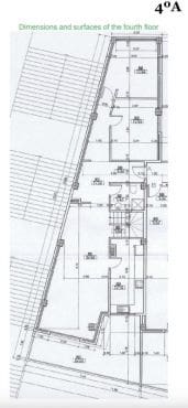
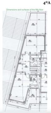
  • Build Size: 111 m2
  • New Build
  • Communal Pool
  • Terrace/Balcony
  • Energy Certificate (Consumption): G
  • Energy Certificate (Emissions): G

How can we help you?

Is something wrong with the Ad?

Tell us about the issue so we can fix it

Mortgage calculator

€
€
%

€ 555 per month*

+ € 19,200 taxes (€ 17,500) & expenses (€ 1,700)*

*Please note that the results are only a guide and not a mortgage offer or quote.

Contact the Advertiser

How can we help you?

€

This field is required

Check the error(s) above
+34 865 440 042

Ref. 9648999

By submitting this form, you confirm that you agree to our Terms of Use and Privacy Policy.

Share

Related properties

2 bedroom Apartment for sale in Relleu with pool - € 155,000 (Ref: 9648744) 2 bedroom Apartment for sale in Relleu with pool garage - € 155,000 (Ref: 9587851) 1 bedroom Apartment for sale in Relleu with pool - € 175,000 (Ref: 9633575) 1 bedroom Apartment for sale in Relleu - € 175,000 (Ref: 9643312)

Advertisement

  1. Spain
  2. Valencia
  3. Alicante
  4. Costa Blanca
  5. Relleu
  6. 1 bedroom Apartment for sale in Relleu with pool - € 175,000 (Ref: 9648999)