thinkSPAIN Logo
  • Buy

    Property for Sale

    • See all properties for sale
    • Start your search using our filters
    • Use our map search
    • Draw your search area
    • Where? Use our location filters

    Popular real estate searches

    Apartments/Flats Fincas/Country Houses Townhouses Villas
    Garden Lift Luxury New Build Parking/Garage Pool Sea View Terrace/Balcony
    Alicante Almería Barcelona Benahavís Calpe / Calp Calvià Cartagena Costa Blanca Costa del Sol Dénia Estepona Girona Gran Canaria Ibiza Madrid Mallorca Marbella Mazarrón Mijas Murcia Málaga Orihuela Palma de Mallorca Tenerife Torrevieja Valencia
    Browse all locations and property types
  • Rent

    Property for Rent

    • See all properties for rent
    • Holiday rentals
    • Start your search using our filters
    • Use our map search
    • Draw your search area

    Popular rental searches

    Apartments/Flats Fincas/Country Houses Townhouses Villas
    Garden Lift Mountain Views Parking/Garage Pool Sea View Seafront/Beachfront Terrace/Balcony
    Alicante Almería Almuñécar Altea Barcelona Calvià Cartagena Costa Blanca Costa del Sol Dénia Estepona Gran Canaria Granada Ibiza Javea / Xàbia Madrid Mallorca Marbella Murcia Málaga Palma de Mallorca San Javier Tenerife Torrevieja Torrox Valencia
    Browse all locations and property types
  • Sell

    I want to advertise on thinkSPAIN

    • I'm an estate agent & want to list my properties
    • I'm an owner and I want to advertise my property directly

    I'm looking for an estate agent in:

    Alicante Almería Barcelona Castellón Cádiz Girona Granada Málaga Tarragona Valencia
    See all estate agents
  • Where?

    Where to buy/rent?

    • Search by lifestyle needs (Location filters)
    • Browse locations by features/services
    • Use our map search
    • Draw your search area

    Popular location searches

    Alicante Almería Barcelona Castellón Cádiz Girona Gran Canaria Granada Ibiza Madrid Mallorca Murcia Málaga Tarragona Tenerife Valencia
  • Map / Draw Your Area

    Use our interactive map to find properties

    • Map search
    • Draw your search area

    Popular map searches

    Alicante Almería Barcelona Benahavís Calpe / Calp Calvià Cartagena Costa Blanca Costa del Sol Dénia Estepona Girona Gran Canaria Ibiza Madrid Mallorca Marbella Mazarrón Mijas Murcia Málaga Orihuela Palma de Mallorca Tenerife Torrevieja Valencia
  • Directory

    What are you looking for?

    • Estate Agents
    • Surveyors
    • Architects / Architectural Design
    • Lawyers / Solicitors
    • Tax Consultants
    • Currency Brokers
    • Mortgage Brokers
    • Property Maintenance / Management

    Recent searches

    Lawyers / Solicitors in Costa de la Luz Estate Agents in Montserrat Estate Agents in Mallorca Estate Agents in Costa de la Luz Estate Agents in Alcalá la Real Estate Agents in Javea / Xàbia Lawyers / Solicitors in Aguilas Lawyers / Solicitors in Ayamonte Lawyers / Solicitors in Costa Tropical Lawyers / Solicitors in Costa Blanca Estate Agents in Costa Blanca Estate Agents in Artà Estate Agents in Altea Lawyers / Solicitors in Orihuela
  • Help & Info

    How can we help you?

    • Articles & Guides
    • Jobs in Spain
    • Advertiser Login
    • Advertising with thinkSPAIN

    Popular searches

    Buying in Spain Moving to Spain Retiring in Spain Living in Spain Working in Spain News Real Estate Market Top Locations & Properties Finance, Legal & Taxes Finding the right property Areas in Spain Spanish Lifestyle & Culture Property Market Household Relocation Process Transportation Healthcare Alicante Languages & Integration Self-employment
  • Advertiser Login
thinkSPAIN Logo Properties

Apartment for sale in Alfaz del Pi / L'Alfàs del Pi, Alicante

  • € 950,000
  • 109 m2
  • 3
  • 2
Properties

€ 950,000

Ref. 9649737

Call
  • 3 bedroom Apartment for sale in Alfaz del Pi / L'Alfas del Pi with pool - € 950,000 (Ref: 9649737)
  • 3 bedroom Apartment for sale in Alfaz del Pi / L'Alfas del Pi with pool - € 950,000 (Ref: 9649737)
  • 3 bedroom Apartment for sale in Alfaz del Pi / L'Alfas del Pi with pool - € 950,000 (Ref: 9649737)
  • 3 bedroom Apartment for sale in Alfaz del Pi / L'Alfas del Pi with pool - € 950,000 (Ref: 9649737)
  • 3 bedroom Apartment for sale in Alfaz del Pi / L'Alfas del Pi with pool - € 950,000 (Ref: 9649737)
  • 3 bedroom Apartment for sale in Alfaz del Pi / L'Alfas del Pi with pool - € 950,000 (Ref: 9649737)
  • 3 bedroom Apartment for sale in Alfaz del Pi / L'Alfas del Pi with pool - € 950,000 (Ref: 9649737)
  • 3 bedroom Apartment for sale in Alfaz del Pi / L'Alfas del Pi with pool - € 950,000 (Ref: 9649737)
  • 3 bedroom Apartment for sale in Alfaz del Pi / L'Alfas del Pi with pool - € 950,000 (Ref: 9649737)
  • 3 bedroom Apartment for sale in Alfaz del Pi / L'Alfas del Pi with pool - € 950,000 (Ref: 9649737)
  • 3 bedroom Apartment for sale in Alfaz del Pi / L'Alfas del Pi with pool - € 950,000 (Ref: 9649737)
  • 3 bedroom Apartment for sale in Alfaz del Pi / L'Alfas del Pi with pool - € 950,000 (Ref: 9649737)
  • 3 bedroom Apartment for sale in Alfaz del Pi / L'Alfas del Pi with pool - € 950,000 (Ref: 9649737)
  • 3 bedroom Apartment for sale in Alfaz del Pi / L'Alfas del Pi with pool - € 950,000 (Ref: 9649737)
1/14

€ 950,000

Apartment for sale in Alfaz del Pi / L'Alfàs del Pi, Alicante

  • 109 m2
  • 3
  • 2

Description

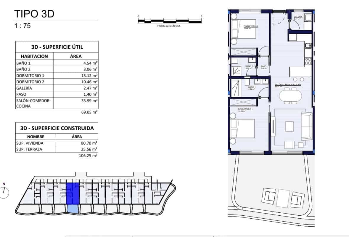
Located on a sprawling plot of over 30,000 square meters, this exceptional development can be found in the prime area near the beach and the city center. The site is adorned with original gardens dating back to 1963, now beautifully restored and enhanced to ensure privacy and tranquility. What truly sets these apartments apart are the expansive gardens and large terraces, ranging from 20 to over 130 square meters, offering stunning views of either the sea or the stunning natural park.

This urbanization offers an abundance of resort-like amenities, providing ample opportunities for leisure without needing to leave the premises. Residents can enjoy an indoor heated swimming pool, multiple outdoor pools, an equipped gym, and a sauna. Additional features include concierge services, tennis and paddle courts nestled within the landscaped surroundings, a dedicated yoga area, and an orchard. These facilities are thoughtfully designed to enhance the living experience, catering to a modern, active lifestyle.

Alfaz del Pi offers a charming blend of coastal and urban living, with its picturesque surroundings and vibrant community. The development offers dwellings ranging between 490,000 € and 850,000 €, featuring 2 to 3 bedrooms and surfaces spanning 71 m2 to 124 m2, promising a luxurious living experience. Residents will appreciate the proximity to both the natural landscape and the bustling life of the city, striking a perfect balance between relaxation and convenience.

Location

Alfaz del Pi / L'Alfàs del Pi, Alicante The location has not been provided.

Features

  • Apartment
  • Bedrooms: 3
  • Bathrooms: 2
  • Build Size: 109 m2
  • New Build
  • Communal Pool
  • Sea View
  • Garden
  • Lift
  • Terrace/Balcony
  • Energy Certificate (Consumption): G
  • Energy Certificate (Emissions): G

How can we help you?

Is something wrong with the Ad?

Tell us about the issue so we can fix it

Mortgage calculator

€
€
%

€ 3,016 per month*

+ € 96,700 taxes (€ 95,000) & expenses (€ 1,700)*

*Please note that the results are only a guide and not a mortgage offer or quote.

Contact the Advertiser

How can we help you?

€

This field is required

Check the error(s) above

Ref. 9649737

By submitting this form, you confirm that you agree to our Terms of Use and Privacy Policy.

Share

Related properties

2 bedroom Apartment for sale in Albir, Alfaz del Pi / L'Alfàs del Pi with pool garage - € 800,000 (Ref: 9165876) 3 bedroom Apartment for sale in Albir, Alfaz del Pi / L'Alfàs del Pi with pool - € 850,000 (Ref: 9641367) 3 bedroom Apartment for sale in Albir, Alfaz del Pi / L'Alfàs del Pi with pool garage - € 850,000 (Ref: 8371961) 3 bedroom Apartment for sale in Albir, Alfaz del Pi / L'Alfàs del Pi with pool - € 1,000,000 (Ref: 9641272)

Advertisement

  1. Spain
  2. Valencia
  3. Alicante
  4. Costa Blanca
  5. Alfaz del Pi / L'Alfàs del Pi
  6. 3 bedroom Apartment for sale in Alfaz del Pi / L'Alfàs del Pi with pool - € 950,000 (Ref: 9649737)
Call