thinkSPAIN Logo
  • Buy

    Property for Sale

    • See all properties for sale
    • Start your search using our filters
    • Use our map search
    • Draw your search area
    • Where? Use our location filters

    Popular real estate searches

    Apartments/Flats Fincas/Country Houses Townhouses Villas
    Garden Lift Luxury New Build Parking/Garage Pool Sea View Terrace/Balcony
    Alicante Almería Barcelona Benahavís Calpe / Calp Calvià Cartagena Costa Blanca Costa del Sol Dénia Estepona Girona Gran Canaria Ibiza Los Alcázares Madrid Mallorca Marbella Mijas Murcia Málaga Orihuela Palma de Mallorca Tenerife Torrevieja Valencia
    Browse all locations and property types
  • Rent

    Property for Rent

    • See all properties for rent
    • Holiday rentals
    • Start your search using our filters
    • Use our map search
    • Draw your search area

    Popular rental searches

    Apartments/Flats Fincas/Country Houses Townhouses Villas
    Garden Lift Mountain Views New Build Parking/Garage Pool Sea View Terrace/Balcony
    Alicante Almería Almuñécar Altea Barcelona Calvià Cartagena Costa Blanca Costa del Sol Dénia Estepona Gran Canaria Granada Ibiza Madrid Mallorca Marbella Murcia Málaga Orihuela Palma de Mallorca Tenerife Torre-Pacheco Torrevieja Torrox Valencia
    Browse all locations and property types
  • Sell

    I want to advertise on thinkSPAIN

    • I'm an estate agent & want to list my properties
    • I'm an owner and I want to advertise my property directly

    I'm looking for an estate agent in:

    Alicante Almería Barcelona Castellón Cádiz Girona Granada Málaga Tarragona Valencia
    See all estate agents
  • Where?

    Where to buy/rent?

    • Search by lifestyle needs (Location filters)
    • Browse locations by features/services
    • Use our map search
    • Draw your search area

    Popular location searches

    Alicante Almería Barcelona Castellón Cádiz Girona Gran Canaria Granada Ibiza Madrid Mallorca Murcia Málaga Tarragona Tenerife Valencia
  • Map / Draw Your Area

    Use our interactive map to find properties

    • Map search
    • Draw your search area

    Popular map searches

    Alicante Almería Barcelona Benahavís Calpe / Calp Calvià Cartagena Costa Blanca Costa del Sol Dénia Estepona Girona Gran Canaria Ibiza Los Alcázares Madrid Mallorca Marbella Mijas Murcia Málaga Orihuela Palma de Mallorca Tenerife Torrevieja Valencia
  • How can we help you?

    • Articles & Guides
    • Business & Services Directory
    • Jobs in Spain
    • Advertiser Login
    • Advertising with thinkSPAIN

    Popular searches

    Lawyers / Solicitors Mortgage Brokers Estate Agents Property Maintenance / Management Currency Brokers Surveyors Architects / Architectural Design Tax Consultants
    Finance, Legal & Taxes Buying in Spain Living in Spain Moving to Spain Finding the right property News Areas in Spain Property Market Spanish Lifestyle & Culture Working in Spain Top Locations & Properties Real Estate Market
thinkSPAIN Logo Properties

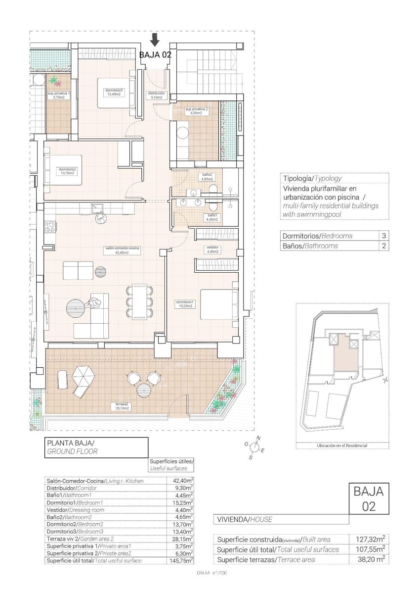
Apartment for sale in Hondón de las Nieves, Alicante

  • € 305,000
  • 127 m2
  • 3
  • 2

€ 305,000 Ref. 9667682

Properties
Ref. 9667682
Call
  • 3 bedroom Apartment for sale in Hondon de las Nieves with pool garage - € 305,000 (Ref: 9667682)
  • 3 bedroom Apartment for sale in Hondon de las Nieves with pool garage - € 305,000 (Ref: 9667682)
  • 3 bedroom Apartment for sale in Hondon de las Nieves with pool garage - € 305,000 (Ref: 9667682)
  • 3 bedroom Apartment for sale in Hondon de las Nieves with pool garage - € 305,000 (Ref: 9667682)
  • 3 bedroom Apartment for sale in Hondon de las Nieves with pool garage - € 305,000 (Ref: 9667682)
  • 3 bedroom Apartment for sale in Hondon de las Nieves with pool garage - € 305,000 (Ref: 9667682)
  • 3 bedroom Apartment for sale in Hondon de las Nieves with pool garage - € 305,000 (Ref: 9667682)
  • 3 bedroom Apartment for sale in Hondon de las Nieves with pool garage - € 305,000 (Ref: 9667682)
  • 3 bedroom Apartment for sale in Hondon de las Nieves with pool garage - € 305,000 (Ref: 9667682)
1/9

€ 305,000

Apartment for sale in Hondón de las Nieves, Alicante

  • 127 m2
  • 3
  • 2

Description

Exclusive new build apartments with views of the vineyards in Hondón de las Nieves. Modern homes in a unique natural setting. Discover this new development of flats in Hondón de las Nieves, a charming village set in a beautiful valley surrounded by olive and almond groves. This development offers 15 exclusive 2 and 3 bedroom homes, all designed to offer maximum comfort, energy efficiency and stunning views of the Vinalopó vineyards. Located in Vinalopó Medio, this peaceful enclave is ideal for those seeking a relaxed Mediterranean lifestyle, with easy access to nature and all essential services.

High quality features and modern design. Each flat has been designed with top quality materials and a functional layout, offering:

- Spacious and open-plan living spaces, ideal for modern living.
- Fully fitted kitchens with granite worktops.
- Top of the range bathrooms with built-in cisterns and top quality sanitary ware.
- Energy efficiency with aerothermal system for hot water.
- Pre-installation of ducted air conditioning, guaranteeing comfort in all seasons.
- Aluminium windows with double glazing, providing thermal and acoustic insulation.
- Reinforced security entrance door for peace of mind.
- Parking space and storage room in basement, included in the price.
- Lift in the building, ensuring accessibility and comfort.
- Solar panels on the rooftop to improve energy efficiency and reduce maintenance costs.

In addition, the residential has a communal swimming pool, perfect for enjoying the Mediterranean climate.

Privileged location in Hondón de las Nieves. Hondón de las Nieves is a town with a great wine-growing tradition, famous for its table grapes with the Vinalopó denomination of origin. Surrounded by the Sierra de Crevillente, the area offers numerous hiking trails, natural areas and a rich cultural and historical offer.

From your new home, you will have quick access to the main points of interest in the area:
- Alicante Airport - 30 km (30 minutes by car).
- Alicante Beaches - 35 km (35 minutes by car).
- Elche - 20 km (20 minutes by car).
- Crevillente Natural Park - 10 km (15 minutes drive).
- Golf Courses - 25 km (30 minutes drive).

An ideal home on the Costa Blanca. Enjoy the tranquillity of the Hondón Valley, without giving up the proximity to Alicante and Elche. Whether as a permanent residence, holiday home or investment property, these modern flats are an unbeatable choice.

Location

Hondón de las Nieves, Alicante Location provided by the Advertiser

Features

  • Apartment
  • Bedrooms: 3
  • Bathrooms: 2
  • Build Size: 127 m2
  • New Build
  • Communal Pool
  • Parking/Garage
  • Lift
  • Energy Certificate (Consumption): B
  • Energy Certificate (Emissions): B

How can we help you?

Is something wrong with the Ad?

Tell us about the issue so we can fix it

Mortgage calculator

€
€
%

€ 968 per month*

+ € 32,200 taxes (€ 30,500) & expenses (€ 1,700)*

*Please note that the results are only a guide and not a mortgage offer or quote.

Contact the Advertiser

How can we help you?

€

This field is required

Check the error(s) above
+34 865 445 780

Ref. 9667682

By submitting this form, you confirm that you agree to our Terms of Use and Privacy Policy.

Share

Related properties

3 bedroom Apartment for sale in Hondón de las Nieves with pool garage - € 280,000 (Ref: 8893315) 3 bedroom Apartment for sale in Hondón de las Nieves with garage - € 280,000 (Ref: 9381147) 3 bedroom Apartment for sale in Hondón de las Nieves with garage - € 250,000 (Ref: 8966493) 3 bedroom Apartment for sale in Hondón de las Nieves with pool garage - € 305,000 (Ref: 8893314)

Advertisement

  1. Spain
  2. Valencia
  3. Alicante
  4. Hondón de las Nieves
  5. 3 bedroom Apartment for sale in Hondón de las Nieves with pool garage - € 305,000 (Ref: 9667682)