thinkSPAIN Logo
  • Buy

    Property for Sale

    • See all properties for sale
    • Start your search using our filters
    • Use our map search
    • Draw your search area
    • Where? Use our location filters

    Popular real estate searches

    Apartments/Flats Fincas/Country Houses Townhouses Villas
    Garden Lift Luxury New Build Parking/Garage Pool Sea View Terrace/Balcony
    Alicante Almería Barcelona Benahavís Calpe / Calp Calvià Cartagena Costa Blanca Costa del Sol Dénia Estepona Girona Gran Canaria Ibiza Los Alcázares Madrid Mallorca Marbella Mijas Murcia Málaga Orihuela Palma de Mallorca Tenerife Torrevieja Valencia
    Browse all locations and property types
  • Rent

    Property for Rent

    • See all properties for rent
    • Holiday rentals
    • Start your search using our filters
    • Use our map search
    • Draw your search area

    Popular rental searches

    Apartments/Flats Fincas/Country Houses Townhouses Villas
    Garden Lift Mountain Views New Build Parking/Garage Pool Sea View Terrace/Balcony
    Alicante Almería Almuñécar Altea Barcelona Calvià Cartagena Costa Blanca Costa del Sol Dénia Estepona Gran Canaria Granada Ibiza Madrid Mallorca Marbella Murcia Málaga Orihuela Palma de Mallorca Tenerife Torre-Pacheco Torrevieja Torrox Valencia
    Browse all locations and property types
  • Sell

    I want to advertise on thinkSPAIN

    • I'm an estate agent & want to list my properties
    • I'm an owner and I want to advertise my property directly

    I'm looking for an estate agent in:

    Alicante Almería Barcelona Castellón Cádiz Girona Granada Málaga Tarragona Valencia
    See all estate agents
  • Where?

    Where to buy/rent?

    • Search by lifestyle needs (Location filters)
    • Browse locations by features/services
    • Use our map search
    • Draw your search area

    Popular location searches

    Alicante Almería Barcelona Castellón Cádiz Girona Gran Canaria Granada Ibiza Madrid Mallorca Murcia Málaga Tarragona Tenerife Valencia
  • Map / Draw Your Area

    Use our interactive map to find properties

    • Map search
    • Draw your search area

    Popular map searches

    Alicante Almería Barcelona Benahavís Calpe / Calp Calvià Cartagena Costa Blanca Costa del Sol Dénia Estepona Girona Gran Canaria Ibiza Los Alcázares Madrid Mallorca Marbella Mijas Murcia Málaga Orihuela Palma de Mallorca Tenerife Torrevieja Valencia
  • How can we help you?

    • Articles & Guides
    • Business & Services Directory
    • Jobs in Spain
    • Advertiser Login
    • Advertising with thinkSPAIN

    Popular searches

    Lawyers / Solicitors Mortgage Brokers Estate Agents Property Maintenance / Management Currency Brokers Surveyors Architects / Architectural Design Tax Consultants
    Finance, Legal & Taxes Buying in Spain Living in Spain Moving to Spain Finding the right property News Areas in Spain Property Market Spanish Lifestyle & Culture Working in Spain Top Locations & Properties Real Estate Market
thinkSPAIN Logo Properties

Bungalow for sale in La Veleta, Torrevieja, Alicante

  • € 380,000
  • 106 m2
  • 2
  • 2

€ 380,000 Ref. 9671762

Properties
Ref. 9671762
Call
  • 2 bedroom Bungalow for sale in Torrevieja with pool garage - € 380,000 (Ref: 9671762)
  • 2 bedroom Bungalow for sale in Torrevieja with pool garage - € 380,000 (Ref: 9671762)
  • 2 bedroom Bungalow for sale in Torrevieja with pool garage - € 380,000 (Ref: 9671762)
  • 2 bedroom Bungalow for sale in Torrevieja with pool garage - € 380,000 (Ref: 9671762)
  • 2 bedroom Bungalow for sale in Torrevieja with pool garage - € 380,000 (Ref: 9671762)
  • 2 bedroom Bungalow for sale in Torrevieja with pool garage - € 380,000 (Ref: 9671762)
  • 2 bedroom Bungalow for sale in Torrevieja with pool garage - € 380,000 (Ref: 9671762)
  • 2 bedroom Bungalow for sale in Torrevieja with pool garage - € 380,000 (Ref: 9671762)
  • 2 bedroom Bungalow for sale in Torrevieja with pool garage - € 380,000 (Ref: 9671762)
  • 2 bedroom Bungalow for sale in Torrevieja with pool garage - € 380,000 (Ref: 9671762)
  • 2 bedroom Bungalow for sale in Torrevieja with pool garage - € 380,000 (Ref: 9671762)
  • 2 bedroom Bungalow for sale in Torrevieja with pool garage - € 380,000 (Ref: 9671762)
  • 2 bedroom Bungalow for sale in Torrevieja with pool garage - € 380,000 (Ref: 9671762)
  • 2 bedroom Bungalow for sale in Torrevieja with pool garage - € 380,000 (Ref: 9671762)
  • 2 bedroom Bungalow for sale in Torrevieja with pool garage - € 380,000 (Ref: 9671762)
  • 2 bedroom Bungalow for sale in Torrevieja with pool garage - € 380,000 (Ref: 9671762)
  • 2 bedroom Bungalow for sale in Torrevieja with pool garage - € 380,000 (Ref: 9671762)
  • 2 bedroom Bungalow for sale in Torrevieja with pool garage - € 380,000 (Ref: 9671762)
  • 2 bedroom Bungalow for sale in Torrevieja with pool garage - € 380,000 (Ref: 9671762)
  • 2 bedroom Bungalow for sale in Torrevieja with pool garage - € 380,000 (Ref: 9671762)
  • 2 bedroom Bungalow for sale in Torrevieja with pool garage - € 380,000 (Ref: 9671762)
  • 2 bedroom Bungalow for sale in Torrevieja with pool garage - € 380,000 (Ref: 9671762)
  • 2 bedroom Bungalow for sale in Torrevieja with pool garage - € 380,000 (Ref: 9671762)
  • 2 bedroom Bungalow for sale in Torrevieja with pool garage - € 380,000 (Ref: 9671762)
  • 2 bedroom Bungalow for sale in Torrevieja with pool garage - € 380,000 (Ref: 9671762)
  • 2 bedroom Bungalow for sale in Torrevieja with pool garage - € 380,000 (Ref: 9671762)
  • 2 bedroom Bungalow for sale in Torrevieja with pool garage - € 380,000 (Ref: 9671762)
  • 2 bedroom Bungalow for sale in Torrevieja with pool garage - € 380,000 (Ref: 9671762)
  • 2 bedroom Bungalow for sale in Torrevieja with pool garage - € 380,000 (Ref: 9671762)
  • 2 bedroom Bungalow for sale in Torrevieja with pool garage - € 380,000 (Ref: 9671762)
  • 2 bedroom Bungalow for sale in Torrevieja with pool garage - € 380,000 (Ref: 9671762)
  • 2 bedroom Bungalow for sale in Torrevieja with pool garage - € 380,000 (Ref: 9671762)
  • 2 bedroom Bungalow for sale in Torrevieja with pool garage - € 380,000 (Ref: 9671762)
  • 2 bedroom Bungalow for sale in Torrevieja with pool garage - € 380,000 (Ref: 9671762)
  • 2 bedroom Bungalow for sale in Torrevieja with pool garage - € 380,000 (Ref: 9671762)
  • 2 bedroom Bungalow for sale in Torrevieja with pool garage - € 380,000 (Ref: 9671762)
  • 2 bedroom Bungalow for sale in Torrevieja with pool garage - € 380,000 (Ref: 9671762)
  • 2 bedroom Bungalow for sale in Torrevieja with pool garage - € 380,000 (Ref: 9671762)
  • 2 bedroom Bungalow for sale in Torrevieja with pool garage - € 380,000 (Ref: 9671762)
  • 2 bedroom Bungalow for sale in Torrevieja with pool garage - € 380,000 (Ref: 9671762)
  • 2 bedroom Bungalow for sale in Torrevieja with pool garage - € 380,000 (Ref: 9671762)
  • 2 bedroom Bungalow for sale in Torrevieja with pool garage - € 380,000 (Ref: 9671762)
  • 2 bedroom Bungalow for sale in Torrevieja with pool garage - € 380,000 (Ref: 9671762)
  • 2 bedroom Bungalow for sale in Torrevieja with pool garage - € 380,000 (Ref: 9671762)
  • 2 bedroom Bungalow for sale in Torrevieja with pool garage - € 380,000 (Ref: 9671762)
  • 2 bedroom Bungalow for sale in Torrevieja with pool garage - € 380,000 (Ref: 9671762)
  • 2 bedroom Bungalow for sale in Torrevieja with pool garage - € 380,000 (Ref: 9671762)
1/47

€ 380,000

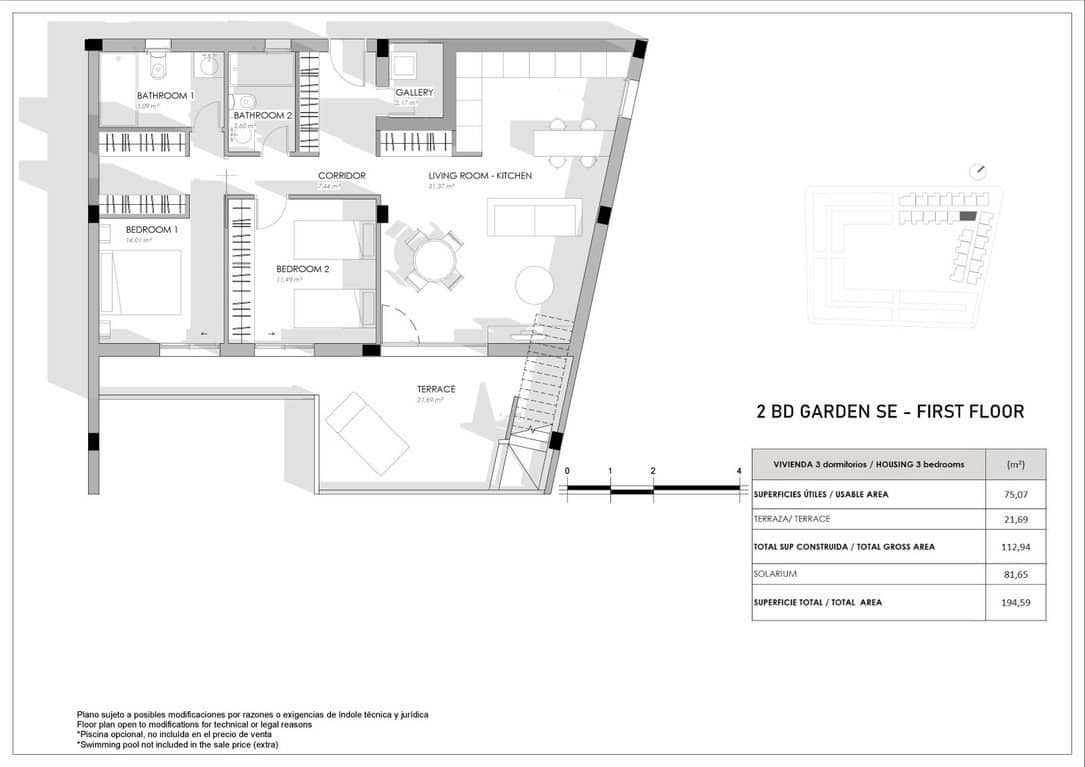
Bungalow for sale in La Veleta, Torrevieja, Alicante

  • 106 m2
  • 2
  • 2

Description

Design bungalow by the sea

Residential in a newly developed area just 250m from the sea. Excellent location very close to the urban center of Torrevieja and surrounded by services, shops and restaurants. The Torrevieja General Hospital and the marina are also nearby.

Excellent residential with a beautiful garden, swimming pool and fitness area. Enjoy this complete, modern, and charming bungalow with a minimalist design.

Location

La Veleta, Torrevieja, Alicante Location provided by the Advertiser

Features

  • Bungalow
  • Bedrooms: 2
  • Bathrooms: 2
  • Build Size: 106 m2
  • New Build
  • Communal Pool
  • Parking/Garage
  • Garden
  • Energy Certificate (Consumption): B
  • Energy Certificate (Emissions): B

How can we help you?

Is something wrong with the Ad?

Tell us about the issue so we can fix it

Mortgage calculator

€
€
%

€ 1,206 per month*

+ € 39,700 taxes (€ 38,000) & expenses (€ 1,700)*

*Please note that the results are only a guide and not a mortgage offer or quote.

Contact the Advertiser

How can we help you?

This field is required

Check the error(s) above
+34 865 445 392

Ref. 9671762

By submitting this form, you confirm that you agree to our Terms of Use and Privacy Policy.

Share

Related properties

3 bedroom Bungalow for sale in La Veleta, Torrevieja with pool garage - € 420,000 (Ref: 7689474) 2 bedroom Bungalow for sale in La Veleta, Torrevieja with pool garage - € 370,000 (Ref: 9671562) 2 bedroom Bungalow for sale in La Veleta, Torrevieja with pool garage - € 360,000 (Ref: 9518909) 2 bedroom Bungalow for sale in Playa de los Náufragos, Torrevieja with pool - € 395,000 (Ref: 9633529)

Advertisement

  1. Spain
  2. Valencia
  3. Alicante
  4. Costa Blanca
  5. Torrevieja
  6. El Acequión - Los Náufragos
  7. La Veleta
  8. 2 bedroom Bungalow for sale in La Veleta, Torrevieja with pool garage - € 380,000 (Ref: 9671762)