thinkSPAIN Logo
  • Buy

    Property for Sale

    • See all properties for sale
    • Start your search using our filters
    • Use our map search
    • Draw your search area
    • Where? Use our location filters

    Popular real estate searches

    Apartments/Flats Fincas/Country Houses Townhouses Villas
    Garden Lift Luxury New Build Parking/Garage Pool Sea View Terrace/Balcony
    Alicante Almería Barcelona Benahavís Calpe / Calp Calvià Cartagena Costa Blanca Costa del Sol Dénia Estepona Girona Gran Canaria Ibiza Los Alcázares Madrid Mallorca Marbella Mijas Murcia Málaga Orihuela Palma de Mallorca Tenerife Torrevieja Valencia
    Browse all locations and property types
  • Rent

    Property for Rent

    • See all properties for rent
    • Holiday rentals
    • Start your search using our filters
    • Use our map search
    • Draw your search area

    Popular rental searches

    Apartments/Flats Fincas/Country Houses Townhouses Villas
    Garden Lift Mountain Views New Build Parking/Garage Pool Sea View Terrace/Balcony
    Alicante Almería Almuñécar Altea Barcelona Calvià Cartagena Costa Blanca Costa del Sol Dénia Estepona Gran Canaria Granada Ibiza Madrid Mallorca Marbella Murcia Málaga Orihuela Palma de Mallorca Tenerife Torre-Pacheco Torrevieja Torrox Valencia
    Browse all locations and property types
  • Sell

    I want to advertise on thinkSPAIN

    • I'm an estate agent & want to list my properties
    • I'm an owner and I want to advertise my property directly

    I'm looking for an estate agent in:

    Alicante Almería Barcelona Castellón Cádiz Girona Granada Málaga Tarragona Valencia
    See all estate agents
  • Where?

    Where to buy/rent?

    • Search by lifestyle needs (Location filters)
    • Browse locations by features/services
    • Use our map search
    • Draw your search area

    Popular location searches

    Alicante Almería Barcelona Castellón Cádiz Girona Gran Canaria Granada Ibiza Madrid Mallorca Murcia Málaga Tarragona Tenerife Valencia
  • Map / Draw Your Area

    Use our interactive map to find properties

    • Map search
    • Draw your search area

    Popular map searches

    Alicante Almería Barcelona Benahavís Calpe / Calp Calvià Cartagena Costa Blanca Costa del Sol Dénia Estepona Girona Gran Canaria Ibiza Los Alcázares Madrid Mallorca Marbella Mijas Murcia Málaga Orihuela Palma de Mallorca Tenerife Torrevieja Valencia
  • How can we help you?

    • Articles & Guides
    • Business & Services Directory
    • Jobs in Spain
    • Advertiser Login
    • Advertising with thinkSPAIN

    Popular searches

    Lawyers / Solicitors Mortgage Brokers Estate Agents Property Maintenance / Management Currency Brokers Surveyors Architects / Architectural Design Tax Consultants
    Finance, Legal & Taxes Buying in Spain Living in Spain Moving to Spain Finding the right property News Areas in Spain Property Market Spanish Lifestyle & Culture Working in Spain Top Locations & Properties Real Estate Market
thinkSPAIN Logo Properties

Apartment for sale in Benijófar, Alicante

  • € 354,000
  • 91 m2
  • 3
  • 2

€ 354,000 Ref. 9671840

Properties
Ref. 9671840
Call
  • 3 bedroom Apartment for sale in Benijofar with pool - € 354,000 (Ref: 9671840)
  • 3 bedroom Apartment for sale in Benijofar with pool - € 354,000 (Ref: 9671840)
  • 3 bedroom Apartment for sale in Benijofar with pool - € 354,000 (Ref: 9671840)
  • 3 bedroom Apartment for sale in Benijofar with pool - € 354,000 (Ref: 9671840)
  • 3 bedroom Apartment for sale in Benijofar with pool - € 354,000 (Ref: 9671840)
  • 3 bedroom Apartment for sale in Benijofar with pool - € 354,000 (Ref: 9671840)
  • 3 bedroom Apartment for sale in Benijofar with pool - € 354,000 (Ref: 9671840)
  • 3 bedroom Apartment for sale in Benijofar with pool - € 354,000 (Ref: 9671840)
  • 3 bedroom Apartment for sale in Benijofar with pool - € 354,000 (Ref: 9671840)
  • 3 bedroom Apartment for sale in Benijofar with pool - € 354,000 (Ref: 9671840)
  • 3 bedroom Apartment for sale in Benijofar with pool - € 354,000 (Ref: 9671840)
  • 3 bedroom Apartment for sale in Benijofar with pool - € 354,000 (Ref: 9671840)
  • 3 bedroom Apartment for sale in Benijofar with pool - € 354,000 (Ref: 9671840)
  • 3 bedroom Apartment for sale in Benijofar with pool - € 354,000 (Ref: 9671840)
1/14

€ 354,000

Apartment for sale in Benijófar, Alicante

  • 91 m2
  • 3
  • 2

Description

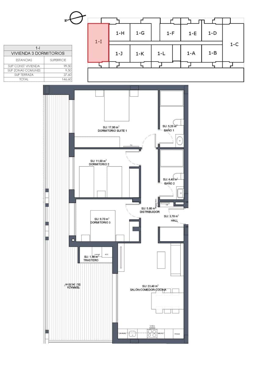
New Build residential with communal rooftop pool located in the centre of the charming village of Benijofar.

You can choose modern apartments with terraces or penthouses with solarium.

New Build modern properties with an open plan kitchen and living room, 2 and 3 bedrooms, 2 bathrooms, terraces.

An options underground parking space at an extra cost.

Benijofar is a lovely village with a charming church and an attractive square/plaza located inland on the Southern Costa Blanca, close to the tourist resorts of Guardamar del Segura and Torrevieja.

Benijofar is also a popular place to stay for the summer holidays as it is close enough to the coastal resorts yet quiet enough to be able to get away from it all.

There are several golf courses close by as well as water parks in nearby Rojales and Torrevieja.

The nearest and best beaches to Benijofar are about fifteen minutes away by car and are some of the best beaches on the Southern Costa Blanca, at Guardamar del Segura and Torrevieja. There are also regular bus services from Benijofar to Guardamar del Segura and Torrevieja with easy access to the beaches.

20 minutes drive to Alicante airport with regular flights all over Europe.

Location

Benijófar, Alicante Location provided by the Advertiser

Features

  • Apartment
  • Bedrooms: 3
  • Bathrooms: 2
  • Build Size: 91 m2
  • New Build
  • Communal Pool
  • Lift
  • Terrace/Balcony
  • Energy Certificate (Consumption): B
  • Energy Certificate (Emissions): B

How can we help you?

Is something wrong with the Ad?

Tell us about the issue so we can fix it

Mortgage calculator

€
€
%

€ 1,124 per month*

+ € 37,100 taxes (€ 35,400) & expenses (€ 1,700)*

*Please note that the results are only a guide and not a mortgage offer or quote.

Contact the Advertiser

How can we help you?

This field is required

Check the error(s) above
+34 865 445 392

Ref. 9671840

By submitting this form, you confirm that you agree to our Terms of Use and Privacy Policy.

Share

Related properties

2 bedroom Apartment for sale in Benijófar with pool - € 294,000 (Ref: 9572038) 3 bedroom Apartment for sale in Benijófar with pool - € 289,900 (Ref: 9572039) 4 bedroom Apartment for sale in Benijófar with pool - € 328,999 (Ref: 8971133) 3 bedroom Apartment for sale in Benijófar with pool garage - € 349,900 (Ref: 9544461)

Advertisement

  1. Spain
  2. Valencia
  3. Alicante
  4. Costa Blanca
  5. Benijófar
  6. 3 bedroom Apartment for sale in Benijófar with pool - € 354,000 (Ref: 9671840)