thinkSPAIN Logo
  • Buy

    Property for Sale

    • See all properties for sale
    • Start your search using our filters
    • Use our map search
    • Draw your search area
    • Where? Use our location filters

    Popular real estate searches

    Apartments/Flats Fincas/Country Houses Townhouses Villas
    Garden Lift Luxury New Build Parking/Garage Pool Sea View Terrace/Balcony
    Alicante Almería Barcelona Benahavís Calvià Cartagena Costa Blanca Costa del Sol Dénia Estepona Girona Gran Canaria Ibiza Javea / Xàbia Madrid Mallorca Marbella Mazarrón Mijas Murcia Málaga Orihuela Palma de Mallorca Tenerife Torrevieja Valencia
    Browse all locations and property types
  • Rent

    Property for Rent

    • See all properties for rent
    • Holiday rentals
    • Start your search using our filters
    • Use our map search
    • Draw your search area

    Popular rental searches

    Apartments/Flats Fincas/Country Houses Townhouses Villas
    Garden Lift Mountain Views Parking/Garage Pool Sea View Seafront/Beachfront Terrace/Balcony
    Alicante Almería Almuñécar Altea Barcelona Calvià Cartagena Costa Blanca Costa del Sol Dénia Estepona Gran Canaria Granada Ibiza Madrid Mallorca Marbella Murcia Málaga Orihuela Palma de Mallorca San Javier Tenerife Torrevieja Torrox Valencia
    Browse all locations and property types
  • Sell

    I want to advertise on thinkSPAIN

    • I'm an estate agent & want to list my properties
    • I'm an owner and I want to advertise my property directly

    I'm looking for an estate agent in:

    Alicante Almería Barcelona Castellón Cádiz Girona Granada Málaga Tarragona Valencia
    See all estate agents
  • Where?

    Where to buy/rent?

    • Search by lifestyle needs (Location filters)
    • Browse locations by features/services
    • Use our map search
    • Draw your search area

    Popular location searches

    Alicante Almería Barcelona Castellón Cádiz Girona Gran Canaria Granada Ibiza Madrid Mallorca Murcia Málaga Tarragona Tenerife Valencia
  • Map / Draw Your Area

    Use our interactive map to find properties

    • Map search
    • Draw your search area

    Popular map searches

    Alicante Almería Barcelona Benahavís Calvià Cartagena Costa Blanca Costa del Sol Dénia Estepona Girona Gran Canaria Ibiza Javea / Xàbia Madrid Mallorca Marbella Mazarrón Mijas Murcia Málaga Orihuela Palma de Mallorca Tenerife Torrevieja Valencia
  • Directory

    What are you looking for?

    • Estate Agents
    • Surveyors
    • Architects / Architectural Design
    • Lawyers / Solicitors
    • Tax Consultants
    • Currency Brokers
    • Mortgage Brokers
    • Property Maintenance / Management

    Recent searches

    Lawyers / Solicitors in Costa Blanca Estate Agents in San Pedro del Pinatar Mortgage Brokers in Madrid city Estate Agents in Montserrat Lawyers / Solicitors in Costa de la Luz Lawyers / Solicitors in Aguilas Lawyers / Solicitors in Salobreña Lawyers / Solicitors in Alicante Estate Agents in Ibiza Estate Agents in Adeje Estate Agents in Pulpí Estate Agents in Roses Estate Agents in Lugo Estate Agents in Conil de la Frontera
  • Help & Info

    How can we help you?

    • Articles & Guides
    • Jobs in Spain
    • Advertiser Login
    • Advertising with thinkSPAIN

    Popular searches

    Buying in Spain Moving to Spain Retiring in Spain Living in Spain Working in Spain News Real Estate Market Top Locations & Properties Finance, Legal & Taxes Finding the right property Areas in Spain Spanish Lifestyle & Culture Property Market Household Relocation Process Transportation Healthcare Alicante Languages & Integration Self-employment
  • Advertiser Login
thinkSPAIN Logo Properties

Apartment for sale in Mijas, Málaga

  • € 510,000
  • 108 m2
  • 2
  • 2
Properties

€ 510,000

Ref. 9683042

Call
  • 2 bedroom Apartment for sale in Mijas with pool garage - € 510,000 (Ref: 9683042)
  • 2 bedroom Apartment for sale in Mijas with pool garage - € 510,000 (Ref: 9683042)
  • 2 bedroom Apartment for sale in Mijas with pool garage - € 510,000 (Ref: 9683042)
  • 2 bedroom Apartment for sale in Mijas with pool garage - € 510,000 (Ref: 9683042)
  • 2 bedroom Apartment for sale in Mijas with pool garage - € 510,000 (Ref: 9683042)
  • 2 bedroom Apartment for sale in Mijas with pool garage - € 510,000 (Ref: 9683042)
  • 2 bedroom Apartment for sale in Mijas with pool garage - € 510,000 (Ref: 9683042)
  • 2 bedroom Apartment for sale in Mijas with pool garage - € 510,000 (Ref: 9683042)
1/8

€ 510,000

Apartment for sale in Mijas, Málaga

  • 108 m2
  • 2
  • 2

Description

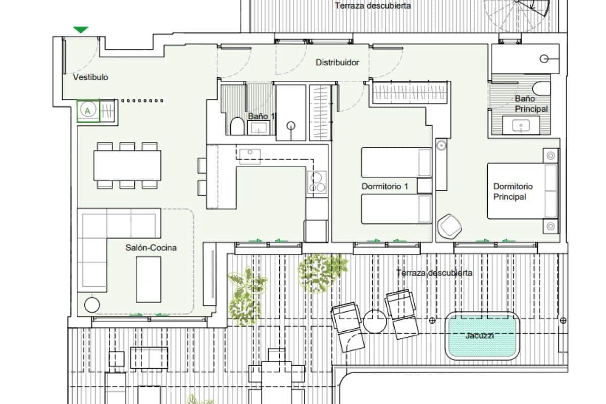
Nestled in the serene embrace of sea and mountains, this private upscale apartment community is located in the picturesque locale of Calanova Golf, Mijas.

Featuring a selection of 154 terraced residences within an exclusive setting of modern architecture, the complex offers ground-floor units with gardens, as well as apartments and penthouses with terraces. Available in configurations of two to three bedrooms and ranging from 86 m² to 145 m², each unit includes a parking space and storage room. These homes are situated within low-density buildings surrounded by beautifully maintained communal gardens. Personalization options are available to suit your unique needs.

This project presents a lifestyle filled with every conceivable comfort, all nestled within a new residential destination. Residents can indulge in amenities such as a pool, a state-of-the-art spa complete with sauna and Turkish bath, a golf simulator, and lush green areas. Price ranges start at 575,000 € and go up to 710,000 €, offering a prestigious living experience in Mijas.

Location

Mijas, Málaga The location has not been provided.

Features

  • Apartment
  • Bedrooms: 2
  • Bathrooms: 2
  • Build Size: 108 m2
  • New Build
  • Communal Pool
  • Parking/Garage
  • Communal Garden
  • Lift
  • Terrace/Balcony
  • Storeroom
  • Energy Certificate (Consumption): B
  • Energy Certificate (Emissions): G

How can we help you?

Is something wrong with the Ad?

Tell us about the issue so we can fix it

Mortgage calculator

€
€
%

€ 1,619 per month*

+ € 37,400 taxes (€ 35,700) & expenses (€ 1,700)*

*Please note that the results are only a guide and not a mortgage offer or quote.

Contact the Advertiser

How can we help you?

€

This field is required

Check the error(s) above

Ref. 9683042

By submitting this form, you confirm that you agree to our Terms of Use and Privacy Policy.

Share

Related properties

3 bedroom Apartment for sale in Mijas - € 420,000 (Ref: 8677697) 3 bedroom Apartment for sale in Mijas with pool garage - € 512,000 (Ref: 9509669) 1 bedroom Apartment for sale in Mijas with pool garage - € 407,000 (Ref: 9696802) 2 bedroom Apartment for sale in Mijas with pool garage - € 490,000 (Ref: 9504391)

Advertisement

  1. Spain
  2. Andalucia
  3. Málaga
  4. Costa del Sol
  5. Mijas
  6. 2 bedroom Apartment for sale in Mijas with pool garage - € 510,000 (Ref: 9683042)
Call