thinkSPAIN Logo
  • Buy

    Property for Sale

    • See all properties for sale
    • Start your search using our filters
    • Use our map search
    • Draw your search area
    • Where? Use our location filters

    Popular real estate searches

    Apartments/Flats Fincas/Country Houses Townhouses Villas
    Garden Lift Luxury New Build Parking/Garage Pool Sea View Terrace/Balcony
    Alicante Almería Barcelona Benahavís Calpe / Calp Calvià Cartagena Costa Blanca Costa del Sol Dénia Estepona Girona Gran Canaria Ibiza Madrid Mallorca Marbella Mazarrón Mijas Murcia Málaga Orihuela Palma de Mallorca Tenerife Torrevieja Valencia
    Browse all locations and property types
  • Rent

    Property for Rent

    • See all properties for rent
    • Holiday rentals
    • Start your search using our filters
    • Use our map search
    • Draw your search area

    Popular rental searches

    Apartments/Flats Fincas/Country Houses Townhouses Villas
    Garden Lift Mountain Views New Build Parking/Garage Pool Sea View Terrace/Balcony
    Alicante Almería Almuñécar Altea Barcelona Calvià Cartagena Costa Blanca Costa del Sol Dénia Estepona Gran Canaria Granada Ibiza Madrid Mallorca Marbella Murcia Málaga Orihuela Palma de Mallorca San Javier Tenerife Torrevieja Torrox Valencia
    Browse all locations and property types
  • Sell

    I want to advertise on thinkSPAIN

    • I'm an estate agent & want to list my properties
    • I'm an owner and I want to advertise my property directly

    I'm looking for an estate agent in:

    Alicante Almería Barcelona Castellón Cádiz Girona Granada Málaga Tarragona Valencia
    See all estate agents
  • Where?

    Where to buy/rent?

    • Search by lifestyle needs (Location filters)
    • Browse locations by features/services
    • Use our map search
    • Draw your search area

    Popular location searches

    Alicante Almería Barcelona Castellón Cádiz Girona Gran Canaria Granada Ibiza Madrid Mallorca Murcia Málaga Tarragona Tenerife Valencia
  • Map / Draw Your Area

    Use our interactive map to find properties

    • Map search
    • Draw your search area

    Popular map searches

    Alicante Almería Barcelona Benahavís Calpe / Calp Calvià Cartagena Costa Blanca Costa del Sol Dénia Estepona Girona Gran Canaria Ibiza Madrid Mallorca Marbella Mazarrón Mijas Murcia Málaga Orihuela Palma de Mallorca Tenerife Torrevieja Valencia
  • Directory

    What are you looking for?

    • Estate Agents
    • Surveyors
    • Architects / Architectural Design
    • Lawyers / Solicitors
    • Tax Consultants
    • Currency Brokers
    • Mortgage Brokers
    • Property Maintenance / Management

    Recent searches

    Lawyers / Solicitors in Costa Blanca Lawyers / Solicitors in Costa Blanca Estate Agents in Marbella Estate Agents in Sax Estate Agents in Adeje Estate Agents in Costa Almería Estate Agents in Barcelona city Lawyers / Solicitors in Valencia Estate Agents in Rábade Estate Agents in Jaén Estate Agents in Mallorca Mortgage Brokers in Madrid city Lawyers / Solicitors in Vera Lawyers / Solicitors in Costa Blanca
  • Help & Info

    How can we help you?

    • Articles & Guides
    • Jobs in Spain
    • Advertiser Login
    • Advertising with thinkSPAIN

    Popular searches

    Buying in Spain Moving to Spain Retiring in Spain Living in Spain Working in Spain News Real Estate Market Top Locations & Properties Finance, Legal & Taxes Finding the right property Spanish Lifestyle & Culture Areas in Spain Property Market Household Relocation Process Transportation Healthcare Languages & Integration Alicante Self-employment
  • Advertiser Login
thinkSPAIN Logo Properties

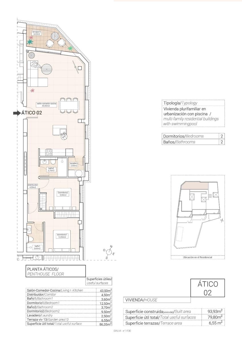
Penthouse for sale in Hondón de las Nieves, Alicante

  • € 220,000
  • 93 m2
  • 2
  • 2
Properties

€ 220,000

Ref. 9754301

Call
  • 2 bedroom Penthouse for sale in Hondon de las Nieves with pool garage - € 220,000 (Ref: 9754301)
  • 2 bedroom Penthouse for sale in Hondon de las Nieves with pool garage - € 220,000 (Ref: 9754301)
  • 2 bedroom Penthouse for sale in Hondon de las Nieves with pool garage - € 220,000 (Ref: 9754301)
  • 2 bedroom Penthouse for sale in Hondon de las Nieves with pool garage - € 220,000 (Ref: 9754301)
  • 2 bedroom Penthouse for sale in Hondon de las Nieves with pool garage - € 220,000 (Ref: 9754301)
  • 2 bedroom Penthouse for sale in Hondon de las Nieves with pool garage - € 220,000 (Ref: 9754301)
  • 2 bedroom Penthouse for sale in Hondon de las Nieves with pool garage - € 220,000 (Ref: 9754301)
  • 2 bedroom Penthouse for sale in Hondon de las Nieves with pool garage - € 220,000 (Ref: 9754301)
  • 2 bedroom Penthouse for sale in Hondon de las Nieves with pool garage - € 220,000 (Ref: 9754301)
1/9

€ 220,000

Penthouse for sale in Hondón de las Nieves, Alicante

  • 93 m2
  • 2
  • 2

Description

Exclusive new build apartments with views of the vineyards in Hondón de las Nieves

Modern homes in a unique natural setting
Discover this new development of flats in Hondón de las Nieves, a charming village set in a beautiful valley surrounded by olive and almond groves. This development offers 15 exclusive 2 and 3 bedroom homes, all designed to offer maximum comfort, energy efficiency and stunning views of the Vinalopó vineyards.

Located in Vinalopó Medio, this peaceful enclave is ideal for those seeking a relaxed Mediterranean lifestyle, with easy access to nature and all essential services.

High quality features and modern design
Each flat has been designed with top quality materials and a functional layout, offering:

Spacious and open-plan living spaces, ideal for modern living.
Fully fitted kitchens with granite worktops.
Top of the range bathrooms with built-in cisterns and top quality sanitary ware.
Energy efficiency with aerothermal system for hot water.
Pre-installation of ducted air conditioning, guaranteeing comfort in all seasons.
Aluminium windows with double glazing, providing thermal and acoustic insulation.
Reinforced security entrance door for peace of mind.
Parking space and storage room in basement, included in the price.
Lift in the building, ensuring accessibility and comfort.
Solar panels on the rooftop to improve energy efficiency and reduce maintenance costs.
In addition, the residential has a communal swimming pool, perfect for enjoying the Mediterranean climate.

Privileged location in Hondón de las Nieves
Hondón de las Nieves is a town with a great wine-growing tradition, famous for its table grapes with the Vinalopó denomination of origin. Surrounded by the Sierra de Crevillente, the area offers numerous hiking trails, natural areas and a rich cultural and historical offer.

From your new home, you will have quick access to the main points of interest in the area:

Alicante Airport - 30 km (30 minutes by car).
Alicante Beaches - 35 km (35 minutes by car)
Elche - 20 km (20 minutes by car)
Crevillente Natural Park - 10 km (15 minutes drive)
Golf courses - 25 km (30 minutes drive)

An ideal home on the Costa Blanca
Enjoy the tranquillity of the Hondón Valley, without giving up the proximity to Alicante and Elche. Whether as a permanent residence, holiday home or investment property, these modern flats are an unbeatable choice.

Location

Hondón de las Nieves, Alicante Location provided by the Advertiser

Features

  • Penthouse
  • Bedrooms: 2
  • Bathrooms: 2
  • Build Size: 93 m2
  • New Build
  • Communal Pool
  • Parking/Garage
  • Lift
  • Energy Certificate (Consumption): B
  • Energy Certificate (Emissions): B

How can we help you?

Is something wrong with the Ad?

Tell us about the issue so we can fix it

Mortgage calculator

€
€
%

€ 698 per month*

+ € 23,700 taxes (€ 22,000) & expenses (€ 1,700)*

*Please note that the results are only a guide and not a mortgage offer or quote.

Contact the Advertiser

How can we help you?

This field is required

Check the error(s) above
+34 865 445 392

Ref. 9754301

By submitting this form, you confirm that you agree to our Terms of Use and Privacy Policy.

Share

Related properties

2 bedroom Penthouse for sale in Hondón de las Nieves with pool garage - € 220,000 (Ref: 9316764) 2 bedroom Penthouse for sale in Hondón de las Nieves - € 230,000 (Ref: 9642513) 2 bedroom Penthouse for sale in Carrús Est - Camí dels Magros, Elche / Elx with pool - € 183,855 (Ref: 9742935) 6 bedroom Penthouse for sale in Elche / Elx - € 230,000 (Ref: 9551940)

Advertisement

  1. Spain
  2. Valencia
  3. Alicante
  4. Hondón de las Nieves
  5. 2 bedroom Penthouse for sale in Hondón de las Nieves with pool garage - € 220,000 (Ref: 9754301)
Call