thinkSPAIN Logo
  • Buy

    Property for Sale

    • See all properties for sale
    • Start your search using our filters
    • Use our map search
    • Draw your search area
    • Where? Use our location filters

    Popular real estate searches

    Apartments/Flats Fincas/Country Houses Townhouses Villas
    Garden Lift Luxury New Build Parking/Garage Pool Sea View Terrace/Balcony
    Alicante Almería Barcelona Benahavís Calvià Cartagena Costa Blanca Costa del Sol Dénia Estepona Girona Gran Canaria Ibiza Javea / Xàbia Madrid Mallorca Marbella Mazarrón Mijas Murcia Málaga Orihuela Palma de Mallorca Tenerife Torrevieja Valencia
    Browse all locations and property types
  • Rent

    Property for Rent

    • See all properties for rent
    • Holiday rentals
    • Start your search using our filters
    • Use our map search
    • Draw your search area

    Popular rental searches

    Apartments/Flats Fincas/Country Houses Townhouses Villas
    Garden Lift Mountain Views New Build Parking/Garage Pool Sea View Terrace/Balcony
    Alicante Almería Almuñécar Altea Barcelona Calvià Cartagena Costa Blanca Costa del Sol Dénia Estepona Gran Canaria Granada Ibiza Madrid Mallorca Marbella Murcia Málaga Orihuela Palma de Mallorca San Javier Tenerife Torrevieja Torrox Valencia
    Browse all locations and property types
  • Sell

    I want to advertise on thinkSPAIN

    • I'm an estate agent & want to list my properties
    • I'm an owner and I want to advertise my property directly

    I'm looking for an estate agent in:

    Alicante Almería Barcelona Castellón Cádiz Girona Granada Málaga Tarragona Valencia
    See all estate agents
  • Where?

    Where to buy/rent?

    • Search by lifestyle needs (Location filters)
    • Browse locations by features/services
    • Use our map search
    • Draw your search area

    Popular location searches

    Alicante Almería Barcelona Castellón Cádiz Girona Gran Canaria Granada Ibiza Madrid Mallorca Murcia Málaga Tarragona Tenerife Valencia
  • Map / Draw Your Area

    Use our interactive map to find properties

    • Map search
    • Draw your search area

    Popular map searches

    Alicante Almería Barcelona Benahavís Calvià Cartagena Costa Blanca Costa del Sol Dénia Estepona Girona Gran Canaria Ibiza Javea / Xàbia Madrid Mallorca Marbella Mazarrón Mijas Murcia Málaga Orihuela Palma de Mallorca Tenerife Torrevieja Valencia
  • Directory

    What are you looking for?

    • Estate Agents
    • Surveyors
    • Architects / Architectural Design
    • Lawyers / Solicitors
    • Tax Consultants
    • Currency Brokers
    • Mortgage Brokers
    • Property Maintenance / Management

    Recent searches

    Lawyers / Solicitors in San Javier Estate Agents in Pliego Estate Agents in Costa de la Luz Estate Agents in Costa Valencia Estate Agents in Sayalonga Surveyors in Valencia Estate Agents in Montserrat Estate Agents in Benalmádena Estate Agents in Barcelona city Estate Agents in Coín Lawyers / Solicitors in Alicante Lawyers / Solicitors in Costa Almería Property Maintenance / Management in Alicante Lawyers / Solicitors in Alicante
  • Help & Info

    How can we help you?

    • Articles & Guides
    • Jobs in Spain
    • Advertiser Login
    • Advertising with thinkSPAIN

    Popular searches

    Buying in Spain Moving to Spain Retiring in Spain Living in Spain Working in Spain News Real Estate Market Top Locations & Properties Finance, Legal & Taxes Finding the right property Spanish Lifestyle & Culture Areas in Spain Property Market Household Relocation Process Transportation Healthcare Languages & Integration Alicante Self-employment
  • Advertiser Login
thinkSPAIN Logo Properties

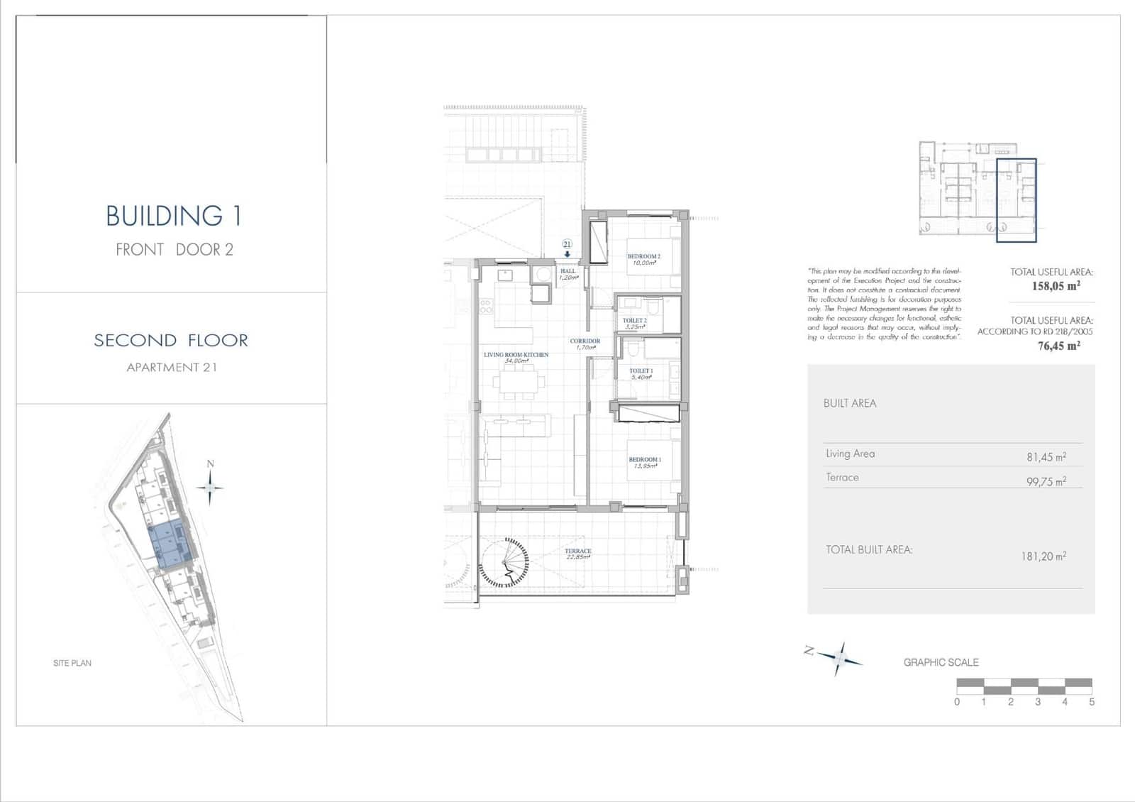
Penthouse for sale in Fuengirola, Málaga

  • € 875,000
  • 182 m2
  • 2
  • 2
Properties

€ 875,000

Ref. 9756546

  • 2 bedroom Penthouse for sale in Fuengirola with pool garage - € 875,000 (Ref: 9756546)
  • 2 bedroom Penthouse for sale in Fuengirola with pool garage - € 875,000 (Ref: 9756546)
  • 2 bedroom Penthouse for sale in Fuengirola with pool garage - € 875,000 (Ref: 9756546)
  • 2 bedroom Penthouse for sale in Fuengirola with pool garage - € 875,000 (Ref: 9756546)
  • 2 bedroom Penthouse for sale in Fuengirola with pool garage - € 875,000 (Ref: 9756546)
  • 2 bedroom Penthouse for sale in Fuengirola with pool garage - € 875,000 (Ref: 9756546)
  • 2 bedroom Penthouse for sale in Fuengirola with pool garage - € 875,000 (Ref: 9756546)
  • 2 bedroom Penthouse for sale in Fuengirola with pool garage - € 875,000 (Ref: 9756546)
  • 2 bedroom Penthouse for sale in Fuengirola with pool garage - € 875,000 (Ref: 9756546)
  • 2 bedroom Penthouse for sale in Fuengirola with pool garage - € 875,000 (Ref: 9756546)
  • 2 bedroom Penthouse for sale in Fuengirola with pool garage - € 875,000 (Ref: 9756546)
  • 2 bedroom Penthouse for sale in Fuengirola with pool garage - € 875,000 (Ref: 9756546)
  • 2 bedroom Penthouse for sale in Fuengirola with pool garage - € 875,000 (Ref: 9756546)
  • 2 bedroom Penthouse for sale in Fuengirola with pool garage - € 875,000 (Ref: 9756546)
  • 2 bedroom Penthouse for sale in Fuengirola with pool garage - € 875,000 (Ref: 9756546)
  • 2 bedroom Penthouse for sale in Fuengirola with pool garage - € 875,000 (Ref: 9756546)
  • 2 bedroom Penthouse for sale in Fuengirola with pool garage - € 875,000 (Ref: 9756546)
  • 2 bedroom Penthouse for sale in Fuengirola with pool garage - € 875,000 (Ref: 9756546)
  • 2 bedroom Penthouse for sale in Fuengirola with pool garage - € 875,000 (Ref: 9756546)
  • 2 bedroom Penthouse for sale in Fuengirola with pool garage - € 875,000 (Ref: 9756546)
  • 2 bedroom Penthouse for sale in Fuengirola with pool garage - € 875,000 (Ref: 9756546)
  • 2 bedroom Penthouse for sale in Fuengirola with pool garage - € 875,000 (Ref: 9756546)
  • 2 bedroom Penthouse for sale in Fuengirola with pool garage - € 875,000 (Ref: 9756546)
  • 2 bedroom Penthouse for sale in Fuengirola with pool garage - € 875,000 (Ref: 9756546)
  • 2 bedroom Penthouse for sale in Fuengirola with pool garage - € 875,000 (Ref: 9756546)
  • 2 bedroom Penthouse for sale in Fuengirola with pool garage - € 875,000 (Ref: 9756546)
  • 2 bedroom Penthouse for sale in Fuengirola with pool garage - € 875,000 (Ref: 9756546)
  • 2 bedroom Penthouse for sale in Fuengirola with pool garage - € 875,000 (Ref: 9756546)
  • 2 bedroom Penthouse for sale in Fuengirola with pool garage - € 875,000 (Ref: 9756546)
  • 2 bedroom Penthouse for sale in Fuengirola with pool garage - € 875,000 (Ref: 9756546)
  • 2 bedroom Penthouse for sale in Fuengirola with pool garage - € 875,000 (Ref: 9756546)
  • 2 bedroom Penthouse for sale in Fuengirola with pool garage - € 875,000 (Ref: 9756546)
  • 2 bedroom Penthouse for sale in Fuengirola with pool garage - € 875,000 (Ref: 9756546)
  • 2 bedroom Penthouse for sale in Fuengirola with pool garage - € 875,000 (Ref: 9756546)
  • 2 bedroom Penthouse for sale in Fuengirola with pool garage - € 875,000 (Ref: 9756546)
  • 2 bedroom Penthouse for sale in Fuengirola with pool garage - € 875,000 (Ref: 9756546)
  • 2 bedroom Penthouse for sale in Fuengirola with pool garage - € 875,000 (Ref: 9756546)
1/37

€ 875,000

Penthouse for sale in Fuengirola, Málaga

  • 182 m2
  • 2
  • 2

Description

Fantastic turnkey duplex penthouse with 100sqm exterior between terrace and solarium, with beautiful sea views and southwest orientation.

Amazing sky solarium for sale in Fuengirola, in a fascinating complex. Key ready.

Can you imagine living in a residential complex that offers you all the services you need to enjoy the life you have always dreamed of? We are committed to quality, innovation and variety so that you can choose the type of home that best suits your lifestyle. We offer you all the exclusivity of the Costa del Sol but without giving up the tranquility that offers you a residential complex surrounded by green areas, wonderful views of the Mediterranean and all the services you always wanted.

A complex of contemporary design housing, with total privacy and pointed in a privileged direction.

Amazing duplex penthouse "sky solarium", with all the services and its own beach club!

Free private shuttle service to the beach, bus stop, train stop, shopping center, spa & sport center, beach club...

Spend a moment to yourself taking a bath in the heated pool on the shores of the Mediterranean that our Beach Club offers you throughout the year, enjoying a drink on its terrace or renting one of the yachts that we put at your disposal, with or without a crew member...

In line with our desire to excel in all areas, our gastronomy is second to none. We offer some of the best cuisine in the region. Choose from one of our seven restaurants including a Michelín Star.

2, 3 and 4 bedroom homes with large terraces and beautiful sea views, from the ground floor with a private garden to the penthouse. Green areas and swimming pools around the urbanization. Also equipped gym, coworking for owners and 2 parking spaces and storage room per apartment.

Our goal is to create a high quality, innovative and sustainable environment where people live, work and enjoy their leisure time in community, with a variety of spaces where they can gather.

Located in a strategic enclave, the complex is in the heart of the Costa del Sol. A booming area of recognized high value, where exclusivity and the Mediterranean lifestyle are masterfully blended, creating a unique concept of life.

Location

Fuengirola, Málaga The location has not been provided.

Features

  • Penthouse
  • Bedrooms: 2
  • Bathrooms: 2
  • Build Size: 182 m2
  • Floor number: 3
  • Communal Pool
  • Sea View
  • Parking/Garage
  • Private Garden
  • Air Conditioning
  • Lift
  • Terrace/Balcony
  • Heating
  • Storeroom
  • Fitted Wardrobes
  • Energy Certificate (Consumption): B
  • Energy Certificate (Emissions): B

How can we help you?

Is something wrong with the Ad?

Tell us about the issue so we can fix it

Mortgage calculator

€
€
%

€ 2,778 per month*

+ € 62,950 taxes (€ 61,250) & expenses (€ 1,700)*

*Please note that the results are only a guide and not a mortgage offer or quote.

Contact the Advertiser

How can we help you?

€

This field is required

Check the error(s) above
If the advertiser has provided a contact telephone number, you will see it after you have filled in and sent this enquiry form.

Ref. 9756546

By submitting this form, you confirm that you agree to our Terms of Use and Privacy Policy.

Share

Related properties

2 bedroom Penthouse for sale in Fuengirola with pool garage - € 890,000 (Ref: 9503154) 3 bedroom Penthouse for sale in Fuengirola with pool garage - € 826,700 (Ref: 9061602) 2 bedroom Penthouse for sale in Fuengirola with pool garage - € 795,000 (Ref: 9756540) 2 bedroom Penthouse for sale in Fuengirola with pool garage - € 875,000 (Ref: 9756545)

Advertisement

  1. Spain
  2. Andalucia
  3. Málaga
  4. Costa del Sol
  5. Fuengirola
  6. 2 bedroom Penthouse for sale in Fuengirola with pool garage - € 875,000 (Ref: 9756546)